2023. 2. 2. 09:20ㆍ회원작품 | Projects/House
Yongin I House

ㄷ자 중정을 품은 주택
위치 대지는 용인 지산발트 주택단지의 북측 블록에 위치한다. 대지는 약간 경사진 도로에 동측을 접하고 있다. 대지는 평탄하고, 대지의 장변이 동서 방향으로 긴 정남향의 대지이다. 건축주 부부, 자녀, 손님을 위해 설계된 주택이다. 건축주의 요구로는 ‘정남향 전망을 고려한 창의 배치'와 ‘프라이버시를 보호받을 수 있을 것’ 등이었다.
대지 대지가 너무 커서 적당한 크기로 분할을 하여 동서로 긴 형태의 직사각형 대지를 만들었다. 정남측에 건축주의 분할된 나머지 땅이 위치하므로 지어진 주택 앞에는 장애물이 없다. 단독주택 단지이지만, 주변에 산이 있어서 중정을 만들어서 마음 놓고 환기 및 채광을 하는 콘셉트로 건물이 배치되었다.
진입 건물의 진입은 프라이버시를 위하여 도로측에 입구를 만들지 않고, 도로에서 안쪽으로 들어온 곳에 현관을 만들었다. 현관으로 접근하는 진입로에는 가벽과 조명, 식재를 이용하여 도로에서 현관까지의 동선이 근사한 풍경을 가지도록 했다. 최대한 완만한 경사를 이용하여 1층에 도달하고자 하는 생각도 긴 진입로를 만드는 이유였다.
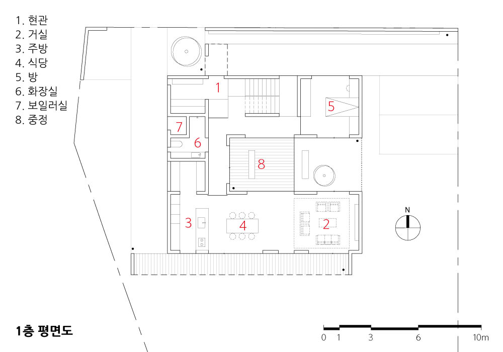
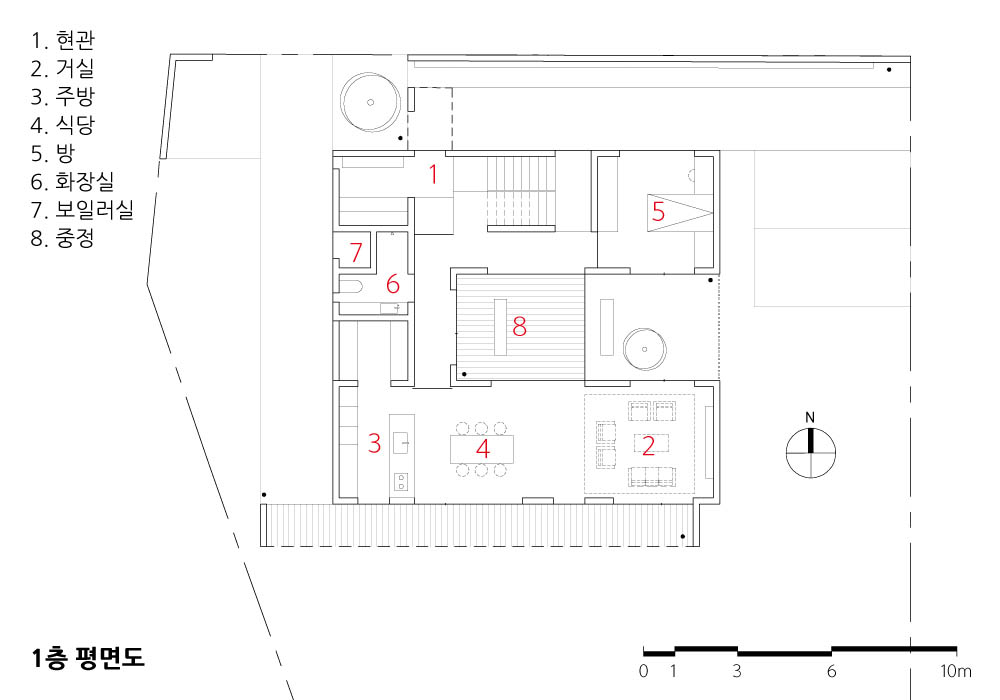
구성 건물의 매스는 ㄷ자 형태로, 도로측으로 열려있는 구성이다. 이로 인하여 건물의 중심이 되는 중정이 밝은 공간이 될 수 있었다. 또한 ㄷ자 중정의 끝에는 그릴을 사용하여 중정이 가지는 답답함을 최소화한다.
입면 도로측에서 보이는 입면은 최대한 단순하게 계획되었다. 건물의 동측 면에는 창문을 최대한 만들지 않아서 동측 입면이 건물의 주요한 인상을 주도록 디자인하였다. 전체적으로는 흰색 친환경코팅 페인트로 마감했고, 유리가 일부 사용되었다.
정면 건물의 남측은 거실과 식당, 주방이 위치한다. 이곳의 전면에는 높이 2.4미터, 폭 4.8미터에 이르는 거대한 외부 블라인드를 설치하였다. 이 블라인드는 이동이 가능하게 만들어져서, 서로 이동되고 겹치는 효과로 건물의 정면의 분위기를 다양하게 연출할 수 있다.
인테리어 인테리어는 주택이라는 용도에 알맞은 최대한 정갈한 디자인이 되도록 계획되었다. 내부 마감재는 자작나무 합판과 아이보리색의 친환경 도장으로 통일하였다. 바닥재는 자작나무 합판과 동일한 색상의 재질을 적용하였다. 내부에 사용되는 자작나무 합판은 일부 벽체, 문짝과 가구들에도 적용이 된다.
가구 모든 가구는 건물의 이미지에 어울리도록 디자인하였다. 붙박이 가구에 사용되는 자작나무 역시 동일한 재질을 사용하였고, 모든 자작나무의 표면도장은 친환경오일로 마감했다. 가구 내부에 사용되는 힌지, 레일과 같은 액세서리도 눈에 보이지 않는 히든타입을 적용하였다.
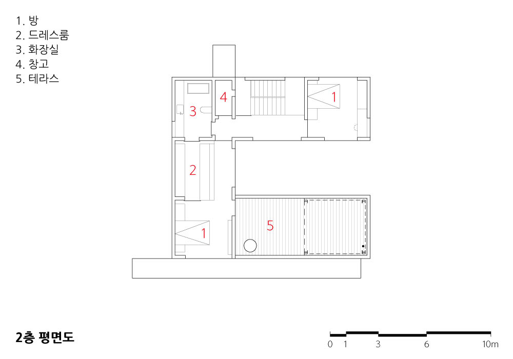
조명 모든 침실은 일반적인 다운라이트를 최소로 줄이고, 평소 간접조명만을 사용하여 생활이 충분히 가능하도록 방 전체를 관통하는 길고 커다란 간접조명을 설치하였다. 또한, 주택 내부에 사용되는 모든 조명은 따뜻한 분위기의 느낌을 갖도록 색온도를 고려하여 적용하였다.
조경 건축적인 조경 디자인을 하였다. 식재는 2곳에 집중된다. 서측 면에 2겹으로 자작나무를 식재하여 이웃집과의 프라이버시를 분리할 수 있도록 계획하였다. 또한, 도로에서 현관에 이르는 진입로에 식재를 계획하여 진입동선에서 근사한 느낌을 갖도록 한다.
디테일 실내·외의 모든 마감은 1:1로 만난다. 이런 설계는 창문이나 문, 마감의 턱선을 없게 할 수 있으므로, 단순한 디자인에 있어서 더욱 중요하다. 이 주택이 더욱 정갈한 느낌을 주는 이유는 이러한 많은 디테일에 의한 것이다. 단순하게 보이기 위해서는 숨어있는 수많은 디테일이 필요하다.

House with a ‘ㄷ’-shaped courtyard
Location The site is located in the northern block of the Jisanbalt Housing Complex in Yongin. The site faces the east side on a gently sloping road. The site is flat, and the site is long in the east-west direction. It is a house designed for the client's couple, children, and guests. The client's requests include 'the layout of windows facing due south' and 'protection of privacy.'
Site The site was so large that it was divided into proper sizes to create a rectangular site long in the east and the south. Since the rest of the client’s divided land is located in the south of the building, there are no obstacles in front of the house. Although it is a detached housing complex, the building layout was based on easy ventilation and lighting by having a courtyard because there is a mountain around it.
Entrance For access to the building, the entrance was installed inside from the road, not on the roadside, for privacy. And the access road to the entrance is designed to install temporary walls, lighting, and plants to create beautiful scenery from the road to the entrance. Also, we made it long access that reaches the first floor by using the gentle slope as much as possible, which is another reason for making the long access road.
Structure The building's mass is in the form of ‘ㄷ’ and is open to the road. That’s why the courtyard, which is the center of the building, could become a bright space. Besides, grille was used at the end of the ‘ㄷ’-shaped courtyard to minimize its dullness.
Elevation The elevation seen from the roadside was planned to be as simple as possible. The eastern side of the building is designed not to have windows if possible to allow the east elevation to give the building's primary impression. Overall, it was finished with a white eco-friendly coating paint while using some glass.
Facade There are a living room, a dining room, and a kitchen on the south side of the building. The façade is covered with a vast blind that is 2.4 meters in height and 4.8 meters in width. This blind is movable to create the different moods of the façade, as it moves and overlaps with each other.
Interior The interior is designed to be as neat as possible for a house. The interior finish was unified with birch plywood and eco-friendly ivory painting. The flooring material was used in the same color as the birch plywood. The birch plywood for the interior was also used for some walls, doors, and furniture.
Furniture All furniture is designed to match the image of the building. The birch wood used for the built-in furniture was also made of the same material, and the surface paint of all the birch plywood was finished with eco-friendly grease. The accessories such as hinges and rails used for the inside of furniture are also invisible hidden-type.
Lighting The downlights in all bedrooms are generally reduced to a minimum. Long and large indirect light fixtures are installed throughout the room to allow sufficient lighting using only indirect lighting. Besides, all the house lights are installed in consideration of color temperature to have a warm atmosphere.
Landscape We did an architectural landscape design. Planting is concentrated in two places. Birch trees are planted in two layers on the west side to separate privacy from neighboring houses. Also, planting is designed from the road to the entrance, making the access path look fancy.
Detail Both interior and exterior finishes fit each other. This kind of design is more critical for simple design, as it can eliminate the door sill of windows, doors, and finishes. These many details help this house look much neater. So, a lot of hidden details are needed to make it look simple.









| 용인 i 주택 설계자 | 황준 _ (주)황준도시 건축사사무소 건축주 | 허재성 감리자 | 황준 _ (주)황준도시 건축사사무소 시공사 | 자연앤인문집(주) 설계팀 | 신보은, 이언재 대지위치 | 경기도 용인시 처인구 원삼면 주요용도 | 단독주택 대지면적 | 495㎡ 건축면적 | 123㎡ 연면적 | 160㎡ 건폐율 | 25% 용적률 | 33% 규모 | 지상 2층 구조 | 철근콘크리트조 외부마감재 | 푼더막스NT판넬, SKK 세라타이트 코팅 내부마감재 | 자작나무합판, 목재바닥판, 친환경페인트 설계기간 | 2019. 04 - 2021. 02 공사기간 | 2020. 03 - 2021. 02 사진 | 박영채 전문기술협력 - 구조분야 : 이우호 _ 티섹구조 - 기계설비분야 : (주)천일이앤씨 - 전기분야 : (주)천일이앤씨 |
Yongin I House Architect | Hwang, June _ Hwang June architect & associates Client | Heo, Jaeseong Supervisor | Hwang, June _ Hwang June architect & associates Construction | IMZIB Project team | Shin, boeun / Lee, Eonjae Location | Wonsam-myeon, Cheoin-gu, Yongin-si, Gyeonggi-do, Korea Program | Detached house Site area | 495㎡ Building area | 123㎡ Gross floor area | 160㎡ Building to land ratio | 25% Floor area ratio | 33% Building scope | 2F Structure | RC Exterior finishing | Fundermax NT, SKK ceratite coating Interior finishing | Birch plywood, Wood floor, Eco paint Design period | Apr. 2019 - Feb. 2021 Construction period | Mar. 2020 - Feb. 2021 Photograph | Park, Youngchae Structural engineer | Lee, Wooho _ TSEC GROUP Mechanical engineer | Cheonil E&C, Co., Ltd Electrical engineer | Cheonil E&C, Co., Ltd |
'회원작품 | Projects > House' 카테고리의 다른 글
| 팸벌리하우스 2021.5 (0) | 2023.02.03 |
|---|---|
| 낙락헌(樂樂軒) 2021.5 (0) | 2023.02.03 |
| 봉양재(鳳陽齊) 2021.4 (0) | 2023.02.02 |
| 우주원 2021.4 (0) | 2023.02.02 |
| 터무늬 있는 희망아지트 _ 삼양동 청년주택 2021.3 (0) | 2023.02.01 |
