2023. 2. 3. 16:33ㆍ회원작품 | Projects/House
Bibi-jeong

자연과 공생하는 도심 속 단독주택
남북방향으로 세장하게 꺾인 형상의 부정형한 경사대지가 주는 계획의 한계는 계획과정의 수고로움을 예고했다. 비비정(備比庭)은 어쩌면 이러한 일련의 제한된 조건들을 계획의 ‘단서’로 재해석하고 치환하는 과정의 결과물인지도 모르겠다.
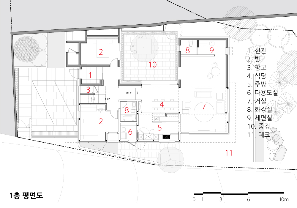
먼저, 대지에 순응하여 높낮이를 나눠 두 개의 영역으로 분절하고 사이를 비워내는 것으로부터 계획을 시작한다. 남북방향으로 장방형인 터라 채광에 불리한 조건을 두 개 영역 사이에 중정(中庭)을 두어 비워내었다. 중정과 면해 연속하여 흐르는 복도를 따라 내부공간으로 연결되는 중정을 둘러싼 곳곳의 테라스 외부공간은, 일상 속에서 자연과 부단히 교감할 수 있는 조건이 된다.
비비정(備比庭)은 자연과 가족의 일상이 부단히 교차하고 교감하는 ‘일련의 순간‘을 계획하고 조합하는 과정으로 그려갔다. 1개 층 높이의 옹벽을 존치한 상태에서 계획해야 하는 상황이라, 습기에 대응하고 충분한 자연환기가 이뤄질 수 있도록 옹벽 쪽의 1층 매스는 철근콘크리트로 계획하였다. 또 그렇게 구성된 철근콘크리트 보를 중목구조의 기둥, 보와 2층 바닥장선과 합성구조로 활용하였고, 그 위에 경량목구조로 2층과 지붕을 구성하였다. 목구조로는 상대적으로 취약할 수 있는 옹벽과 베란다, 테라스 등 외부 평슬라브 부분은 철근콘크리트구조로 풀어내고, 그 구조를 활용하여 목구조를 하이브리드화하는 방식으로 구조를 계획하였다. 지붕구조는 1층으로부터 연속한 수직기둥에 기댄 ridge beam 구조방식이어서 내부공간의 질서로부터 자유롭게 천장을 구성할 수 있었다. 리듬감 있게 흐르는 대지의 방향을 따라 구성된 꺾인 지붕선은 간결한 형태 언어를 가진다.
공학목재로 이뤄진 기둥과 보는 공간을 분절하고 통합하는, 일종의 ‘내재된 질서’이다. 내부공간은 경사진 대지의 형상을 따라 단차를 주어 중정으로 연결되도록 구성했다. 주방과 식당, 거실공간은 루버 슬라이딩 덧문으로 필요에 따라 직접적인 시선을 거를 수 있도록 하였다.
여름철 우기로 인한 공사지연이 우려되어 대책이 필요했다. 목구조는 상대적으로 골조공사가 빠르게 이뤄지는 데다, 지붕골조공사만 마무리되면 바로 방수를 씌우고 내부공정을 동시 진행할 수 있어 공기에 유리하다. 적정공기에 접어들었을 시점에 상량식을 하였는데, 거창한 의식 대신에 노부부의 손때가 묻은 성경책을 천장에 얹혀두어 집의 일부가 되게 하였다.
따뜻한 자연재료인 벽돌과 나무를 주로 사용하되, 각 재료가 가진 구축적 특질(特質)들이 잘 드러날 수 있도록 재료가 맞닿는 곳곳을 세심히 다뤘다. 이러한 자연재료는 빛과 시간의 풍화가 더해질수록 재료의 성격이 더 선명히 드러나는 장점이 있다. 주택들과의 경관을 고려해 외장재는 고벽돌로 결정하되, 반 켜를 절단하여 단면부위가 드러나도록 쌓았다. 탄화목 사이딩은 오픈조인트로 차별화된 두 가지 방식으로 적재적소에 활용하여 자칫 밋밋할 수 있는 외부경관에 리듬감을 더했다.
집은 본디 건축사의 손을 떠난 뒤, 가족이 입주해 일상을 통해 채워지고 변해가면서 완성된다고들 한다.
그간 쉼 없이 써 내려간 노부부의 ‘집 짓기 노트’는 새로운 일상과 자연을 통해 온전한 공간으로 완성될 것으로 기대한다.

Detached house in urban area coexisting with nature
From the beginning, irregularity of the site including its slope and shape which is stretched to north and south, had already warned us about the amount of the troublesome ahead. Bibijeong(備比庭) may be the result of the process of reinterpreting a series of limited conditions and replacing it with “clues” of the plan.
First, the plan begins by dividing the site by height into two areas and clearing the middle, thus adhering to the site. Since the lighting condition is very poor as the site is narrow and it lies longitudinally, we cleared the center by placing a courtyard to improve the limited site condition. The various external spaces help connecting with people and nature in daily life.
As the one-story-tall retaining wall had to be retained, the mass of the first floor which is close to the wall was embodied with reinforced concrete in order to induce natural ventilation to deal with humidity. Also the beams of reinforced concrete and the columns, beams, and floor joints of heavy timber structure came across each other to support the second floor and the roof of lightweight wooden structure. To maximize the characteristics of each material, the structure was planned in such a way as to hybridize the reinforced concrete and wood structure.
As ridge beam structure was used to shape the roof, the ceiling was formed free from the interior order. The curved roof line shaped along the direction of the axis of the site has a concise form of language.
The pillars and beams, made of engineered wood, which divide the space and integrate it are a sort of ‘inherent order'. The interior space was designed to have several steps to shape along with the slope of the site and to be connected to the courtyard. From the kitchen, dining room, or living room, the direct gaze can be filtered by sliding louvered doors when needed.
As there had been a concern about delays in construction due to the rainy season, we needed to come up with a countermeasure. In this case, wooden structure can be favorable in terms of construction duration control, as it is relatively fast in frame construction and the roof can be waterproofed immediately after its structure construction is done allowing internal process to be carried out. At sometime after the ridge beam was put up, we had a celebration, but instead of a grand ceremony, we simply placed the bible this old couple had had for long time, above the ceiling letting it become a part of the house.
Bricks and wood, which are warm natural materials, are mainly used, but the places where the materials come into contact are carefully treated so that the constructive characteristics of each material can be well reflected. Each of these natural materials has the merit that its characteristic is more clearly revealed as the material is more weathered and shone with lighting. Considering the surrounding landscape and the houses, old bricks are used as the exterior material, while it was cut in half and stacked to reveal the cut section. Carbonized wood siding was used as an open joint in two different ways in the right place to add a sense of rhythm to the plain outside landscape.
It is said that a house is completed as a family moves in, fills it with their life.
The old couple's “House Building Notes,” which have been written tirelessly so far, are expected to result in a whole space through new everyday life and nature.










| 비비정(備比庭) 설계자 | 허길수_ 건축사사무소 리얼랩 도시건축 건축주 | 주송자 감리자 | (주)솔토지빈건축사사무소 시공사 | (주)지음재건설 설계팀 | 송민영 대지위치 | 서울특별시 종로구 평창11길 88 주요용도 | 단독주택 대지면적 | 646㎡ 건축면적 | 184.03㎡ 연면적 | 290.96㎡ 건폐율 | 28.49% 용적률 | 45.04% 규모 | 지상 2층 구조 | 매트기초 / 1층 _ 철근콘크리트조 + 경량목구조 + 중목구조 / 2층 _ 경량목구조 + 중목구조 외부마감재 | 탄화목 사이딩 벽 _ 절단 청고벽돌 쌓기, 탄화목사이딩 지붕 _ 링클수지강판 담장 _ 노출 콘크리트 면처리 보수 마감, 청고벽돌 쌒기 내부마감재 | 벽, 천장 _ 친환경 도장 + 벽지 바닥 _ BOSQUET 브러쉬 온돌마루 설계기간 | 2017. 02 - 2019. 05 공사기간 | 2019. 08 - 2020. 03 사진 | 이한울 구조분야 : (주)마루엔지니어링 기계설비분야 : (주)코담기술단 전기분야 : (주)코담기술단 |
Bibi-jeong Architect | Heo, Gilsu_ Reallab Archi Client | Joo, Songja Supervisor | Soltozibin Architects Co., Ltd. Construction | Ziumje Construct Project team | Song, Minyoung Location | 88, Pyeongchang 11-gil, Jongno-gu, Seoul, Korea Program | Single Family House Site area | 646㎡ Building area | 184.03㎡ Gross floor area | 290.96㎡ Building to land ratio | 28.49% Floor area ratio | 45.04% Building scope | 2F Structure | RC + Wood frame structure Exterior finishing | Fire-retardant-treated wood siding Interior finishing | Water painting, BOSQUET bruch wooden floor Design period | Feb. 2017 - May 2019 Construction period | Aug. 2019 - Mar. 2020 Photograph | Lee, Hanwool Structural engineer | Maru ENG. Mechanical engineer | Codam ENG. Electrical engineer | Codam ENG. |
'회원작품 | Projects > House' 카테고리의 다른 글
| 유취헌 2021.6 (0) | 2023.02.06 |
|---|---|
| 빛담집(빛을 담은 집) 2021.5 (0) | 2023.02.03 |
| ^^하하집 2021.5 (0) | 2023.02.03 |
| 팸벌리하우스 2021.5 (0) | 2023.02.03 |
| 낙락헌(樂樂軒) 2021.5 (0) | 2023.02.03 |
