2023. 2. 7. 09:16ㆍ회원작품 | Projects/House
Dreaming House

‘꿈을 꾸는 家’는 강원도 원주시 혁신도시에 위치한 단독주택으로 건축주 부부와 아이 셋을 위한 공간이다. 집이란 장소는 가족 모두의 삶, 정체성에 가장 큰 부분을 차지한다. 건축주 부부가 서울에서 강원도로 내려와 단독주택을 짓고 살게 된 이유도 부부와 삼남매가 집이란 장소에서 꿈을 꾸고 먼 훗날 소중한 추억, 기억들을 떠올릴 수 있는 가족 모두의 전 생애에 걸쳐 행복한 공간을 만들고자 함이었다.
삼남매의 성장기를 위한 주택으로, 공원으로 둘러싸인 대지는 그 자체로도 아이들에게 쉼터이자 놀이터가 된다. 건축은 다만 거들 뿐이다. 중정을 품은 스킵플로어 구조의 주방과 거실에서 공간과 자연의 변화를 함께 느낄 수 있고, 순환 동선의 내부 구조는 아이들이 우당탕 뛰어놀 때도 숨바꼭질을 할 때도 요긴하게 사용될 것이다. 또한 이번 프로젝트에서는 철근콘크리트조와 목조를 결합한 하이브리드 구조를 사용했다. 각각의 구조가 가지는 장점을 극대화하기 위한 선택이다. 주택은 마음으로 짓는 프로젝트다. 비교적 먼 거리지만 설계자로서 감리자로서 최선으로 프로젝트에 임했고, 그곳에 사는 사람들의 편안한 삶을 언제나 기원했다.
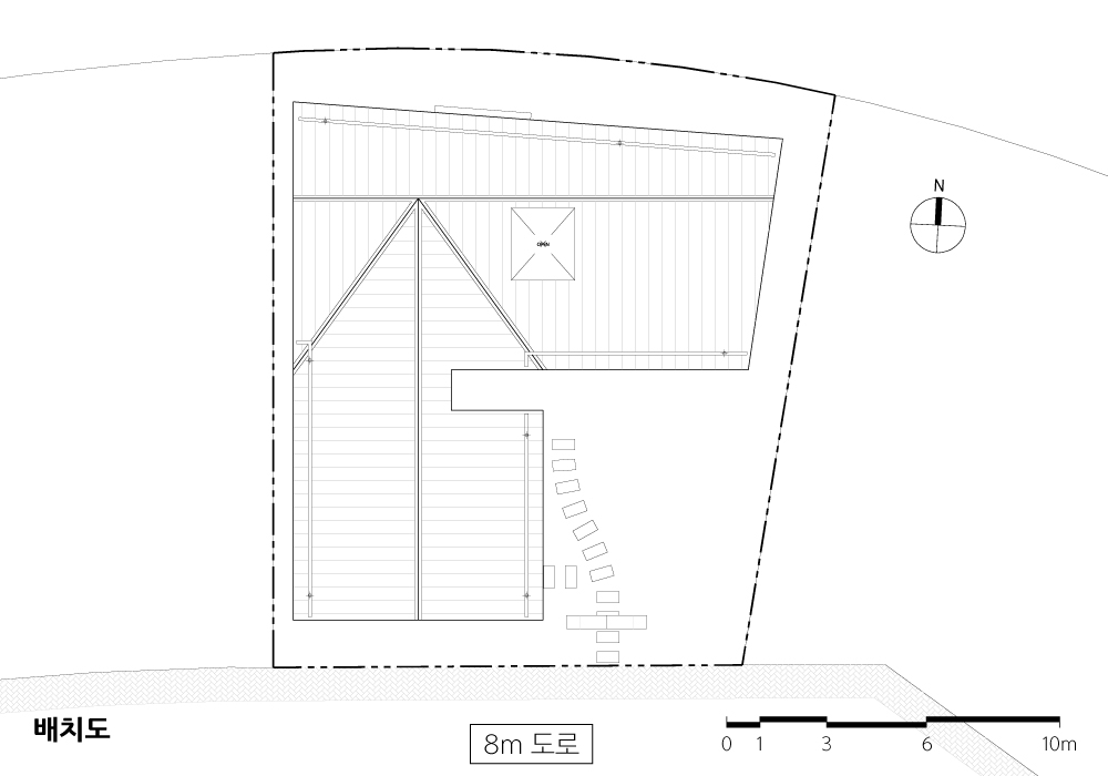
주택단지가 하나둘 조성되고 있는 강원도 원주시 혁신도시 내 대지는 동쪽으로 치악산이 위치하며 남쪽, 북쪽으로 공원이 위치해 있다. 주택은 ‘기역(ㄱ)’자 형태로 배치되어, 주변 풍경에 대한 조망을 고려하여 개방감을 주는 동시에 중정, 마당, 차폐 식물로 프라이버시를 확보하였다.
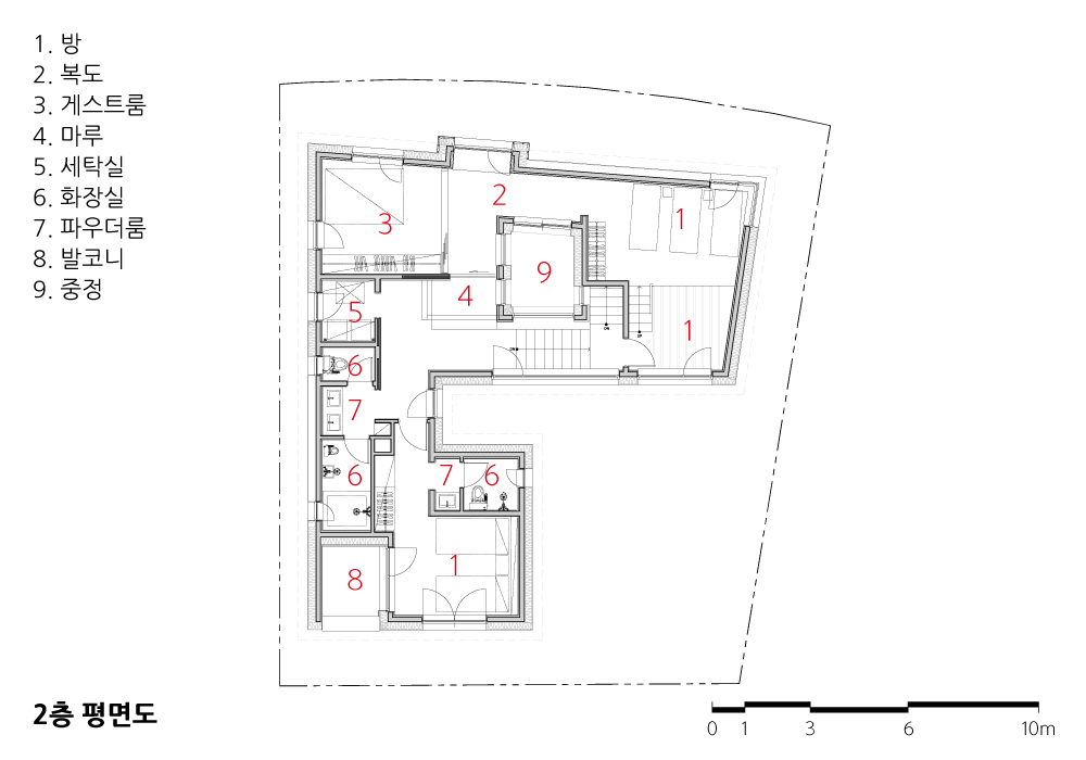
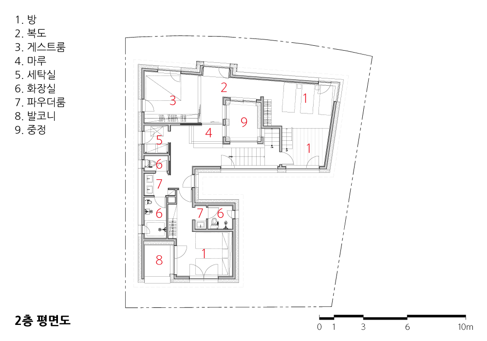
꿈을 꾸는 家의 가장 큰 특징은 스킵플로어 구조와 순환 동선이다. 현관을 기준으로 좌측에 주방이 위치하고, 중정을 지나 반 층 아래로 거실이 위치한다. 반 층 위로 아이 방이 있으며, 아이 방에서도 레벨 차이를 두어 2층에서도 아이 방으로 진입할 수 있도록 계획하였다. 향후 아이들이 성인이 되었을 때 각각의 공간으로 사용될 수 있다.
주방, 2층 평상, 거실은 가족의 공용공간이다. 아빠와 엄마 그리고 삼남매가 함께 책을 읽거나 대화를 나누며 서로 공유할 수 있는 공간이 되고, 거실은 도서관과 북 카페의 이미지를 떠올리며 벽면 가득 찬 책꽂이를 디자인하였다. 마당보다 반 층 낮은 거실은 남측 채광과 함께 외부로부터 프라이버시를 확보하고, 동측과 북측으로 코너 창을 통해 치악산과 공원을 조망할 수 있도록 하였다. 2층은 평상을 두어 작은 공용공간이 순환되도록 하여 집 전체가 삼남매의 놀이공간이 될 수 있도록 계획하였다. 실내·외 동선은 아이들을 따라간다. 내부공간을 순환하며 삼남매의 방은 놀이공간이 되기도, 휴식공간이 되기도 하며 이곳에서의 추억을 쌓아간다. 동·남·북쪽의 창을 통해 채광과 조망을 확보하고, 친환경적인 목재마감으로 따뜻한 공간을 계획하였다.

'The House of Dreams' is a detached house located in the Innovation City of Wonju-si, Gangwon-do, and it is a space for the client couple and their three children. The place of home is the most significant part of the life and identity of the whole family. The client couple moved to Gangwon-do from Seoul and built a detached house to live in because they wanted to make it a comfortable space throughout their lives. The whole family can dream of and remember their precious memories and memories in the future.
As a house for the three siblings growing up, the site surrounded by a park is itself a shelter and a playground for the children. Architecture is just secondary. You can feel the change of space and nature in the kitchen and the living room with the skip-floor structure that embraces the courtyard, and the internal circulation will be helpful for children to romp around and play hide-and-seek. Also, this project used a hybrid structure that combines reinforced concrete and wooden structures. In this way, it can maximize the advantages of each system. A house project is to build with the heart. Although it is relatively far away, we worked hard on the project as a designer and supervisor, and we always prayed for the comfortable life of the residents.
The site in the Innovation City in Wonju-si, Gangwon-do, where housing complexes are being built, has Mt. Chiak in the east and a park in the south and the north. The house is arranged in a ‘ㄱ’ shape, giving a sense of openness by considering the view of the surrounding landscape while securing privacy with the courtyard, yard, and shielding plants.
The most significant feature of ‘The House of Dreams’ is the skip-floor structure and circulation. The kitchen is on the left of the entrance, and the living room is down a half-floor after the courtyard. The children’s room is a half-floor up, and it is also designed to be accessible from the second floor with a level difference. It can be used as a separate space for the children in the future when they become adults.
The kitchen, the wooden bench on the 2nd floor, and the living room are shared spaces. It becomes a space where the father, the mother, and their three siblings can read books or have a conversation together. The living room is designed to have bookshelves all around the wall, which is reminiscent of the images of libraries and book cafes. The living room, which is half a story lower than the yard, secures privacy from the outside with sunlight from the south and allows Mt. Chiak and the park through corner windows in the east and the north. On the second floor, a small shared space is designed to be circulated by placing a bench so that the entire house could become a play space for the three siblings. Indoor and outdoor circulation follows the children. The three siblings' room becomes a play space or a rest space to build memories along with the inner space. The windows on the east, south, and north are designed to secure light and view to be a warm space completed with an eco-friendly wooden finish.










| 꿈을 꾸는 家 설계자 | 강미현 _ 건축사사무소 예감 건축주 | 김수연, 유승래 감리자 | 강미현 _ 건축사사무소 예감 시공사 | (주)그리크지않은집 설계팀 | 김우철, 정하진, 기혜진, 김준원, . 강신용, 서로사, 이주람 대지위치 | 강원도 원주시 달마중3길 23 주요용도 | 단독주택 대지면적 | 282.60㎡ 건축면적 | 112.11㎡ 연면적 | 184.18㎡ 건폐율 | 39.67% 용적률 | 65.17% 규모 | 지상 2층 구조 | 철근콘크리트구조, 일반목구조 외부마감재 | 외벽 _ 스타코(파렉스코리아), 송판노출콘크리트 미장 지붕 _ 징크(덕신코리아.주) 내부마감재 | 벽지 _ 코스모스 합지, 마루 _ 노바 와이드오크, 테라코빈티지 마감, 자작합판 등 설계기간 | 2018. 11 - 2019. 04 공사기간 | 2019. 06 - 2019. 12 사진 | 김성철 구조분야 : (주)두항구조안전기술사사무소 기계설비분야 : 대신기술단, 양지시스템 전기·소방분야 : 대신기술단 |
Dreaming House Architect | Kang, Mihyeon _ Yegam Architecture firm Client | Kim, Suyeon / Yoo, Seungrae Supervisor | Kang, Mihyeon _ Yegam Architecture firm Construction | The not so big house Project team | Kim, Woocheol / Jeong, Hajin / Ki, Hyejin / Kim, Junweon / Kang, Shinyoung / Seo, Rosa / Lee, Juram Location | 23, Dalmajung 3-gil, Wonju-si, Gangwon-do, Korea Program | House Site area | 282.60㎡ Building area | 112.11㎡ Gross floor area | 184.18㎡ Building to land ratio | 39.67% Floor area ratio | 65.17% Building scope | 2F Structure | RC, Wooden Structure Exterior finishing | Stucco, Exposed Concrete Plastering(Pine Board), Zinc Interior finishing | Wallpaper, Nova Floor, Terraco Vintage Finishing, Birch Plywood Design period | Nov. 2018 - Apr. 2019 Construction period | Jun. 2019 - Dec. 2019 Photograph | Kim, Seongcheol Structural engineer | Duhang Structural Safety Technician Office Mechanical engineer | Daesin Engineering Group, Yangji System Electrical·Fire engineer | Daesin Engineering Group |
'회원작품 | Projects > House' 카테고리의 다른 글
| 리오네즈 2021.7 (0) | 2023.02.07 |
|---|---|
| 일곡동 단독주택 2021.8 (0) | 2023.02.07 |
| 서패동 주택 2021.7 (0) | 2023.02.07 |
| 월산리 주택 2021.7 (0) | 2023.02.07 |
| 하남 참나무집 2021.7 (0) | 2023.02.07 |
