2023. 2. 7. 09:17ㆍ회원작품 | Projects/House
LYONNAISE

대지에 그려진 선율…
고요함, 새들의 지저귐, 바람의 향기, 녹음, 실록, 예찬, 촉촉함, 자연, 정갈함, 정제됨, 정성, 배산임수, 위요감, 밀도, 수평성, 고즈넉함, 안식처, 청정, 투명함, 속도, 느림, 차분함, 원초성, 적막, 물아일체, 안빈낙도, 강호한정, 유유자적, 안분지족, 절제, 어머니, 사랑, 따스함, 온화함, 소박함, 섬세함….
장인의 마음가짐으로 소중한 이들에게 따듯한 음식과 가치 있는 공간을 선물하고자 하는 건축주와 대지에 대한 첫인상을 기록해 두었던 단어들이다. 설계하는 과정과 감리하는 2년이라는 기간 동안 가슴과 머리에 항상 뿌리내렸던 가치들이다. 보통 건축행위를 이끌어가는 주된 인자는 합리적 사고를 기반으로 한 것들이지만, 본 프로젝트에 임할 때는 위 단어들로 연결된 감정의 영역에 건축의 과정을 스며들게 하기 위해 노력하였다. 대지의 숨결을 느끼려 했고, 그 선상에 건축주의 삶의 궤적을 담고 건축의 본질을 향한 이야기를 녹여내어, 지형 사이를 유유히 유영하는 하나의 선율을 만들고자 하였다.
그리하여 건축물이 오래 전부터 이 자리에 뿌리를 내리고 있었던 것처럼 매만져 나가는 것이, 이 대지에서 남은 삶을 영위할 건축주를 위한 배려와 책임이라고 생각했다.
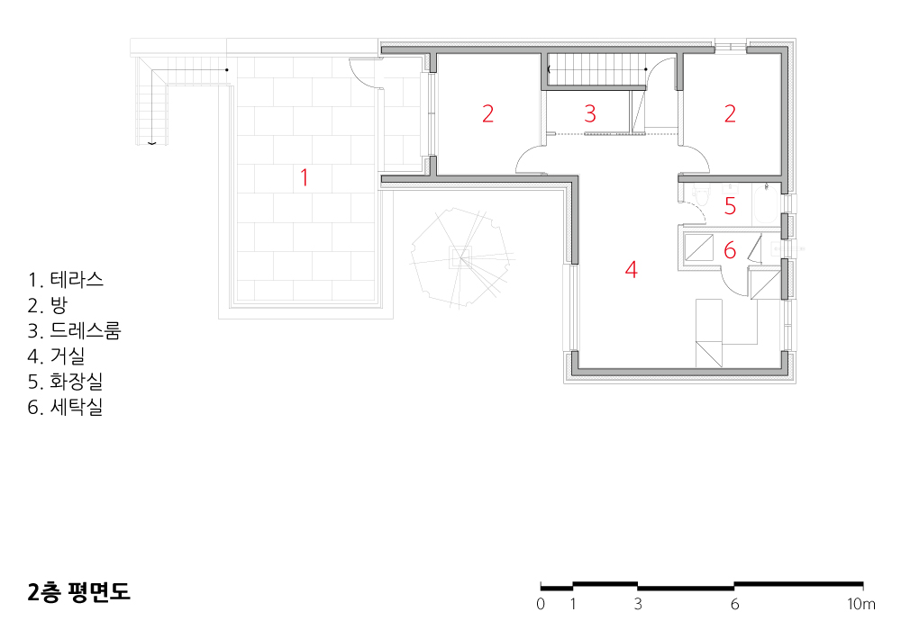
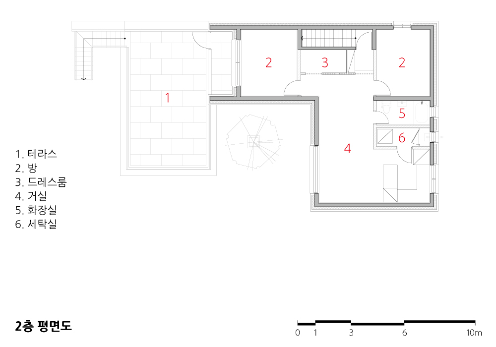
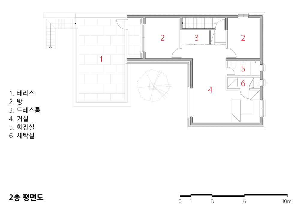
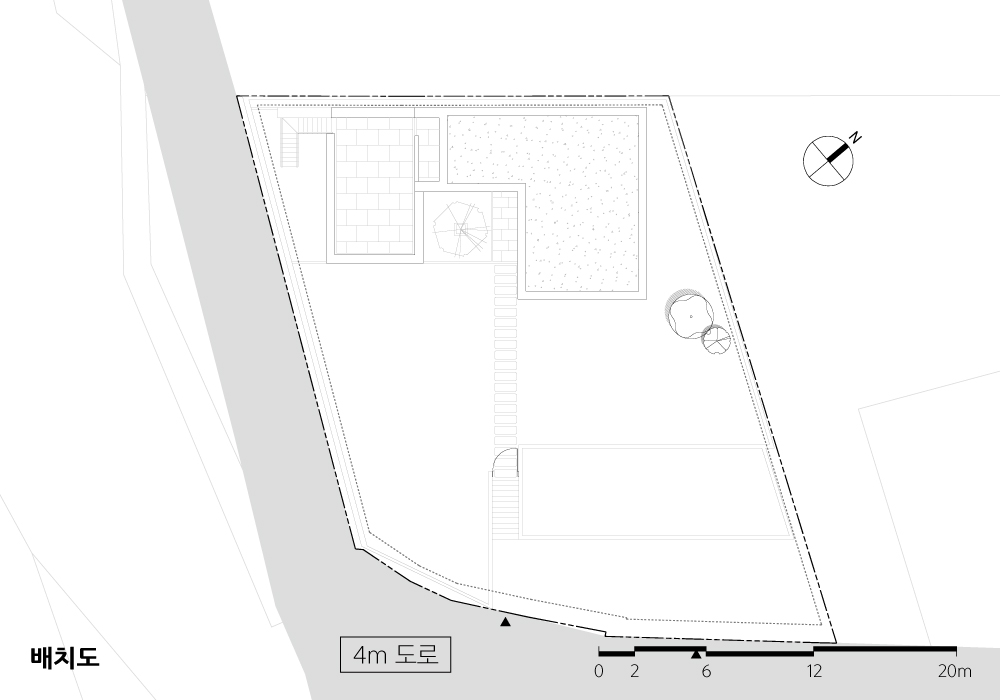
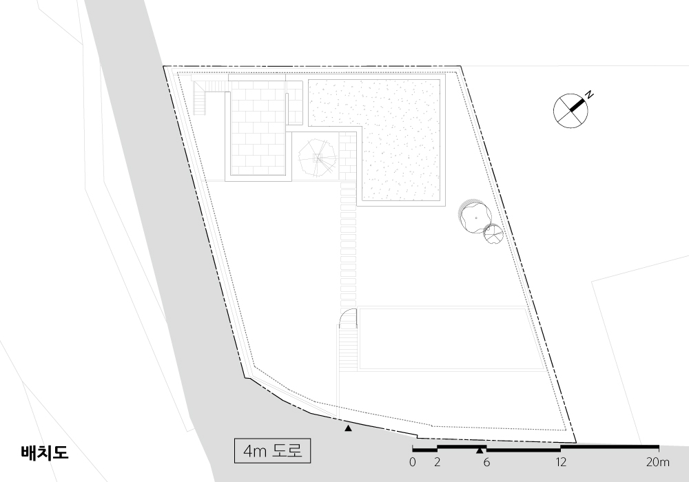
주변의 맥락을 건축에 담기 위해 지형과 산세의 흐름을 건축에 연결하였고, 1, 2층 프로그램의 상이한 성격을 반영하여 입면의 투과성을 결정하였다. 그것은 산세가 가진 양감의 흐름을 자연스레 받아내면서, 1층 공간이 갖는 여백의 가치를 농밀하게 만들어내는 결과로 이어지게 되었다. 산의 정직하고 고요한 형상을 녹이고, 건물의 양감을 고양시키기 위해 묵직한 덩어리로 구성하였다. 작은 규모의 건축이라도, 그 안에서 유영하는 사람들로 하여금 대지와 건축, 빛의 농담이 빚어내는 긴장과 감동의 순간들을 경험할 수 있도록 하기 위해 동선과 정주의 공간을 뚜렷하게 배치하였다. 그리고 대지 옆을 흐르는 도로의 속도를 늦추기 위해 왕벚꽃나무와 관목들로 여과시켜 이곳을 찾는 이들에게 대지에 들어서는 순간에 느린 시간을 선물하려고 하였다.
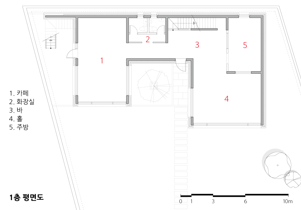
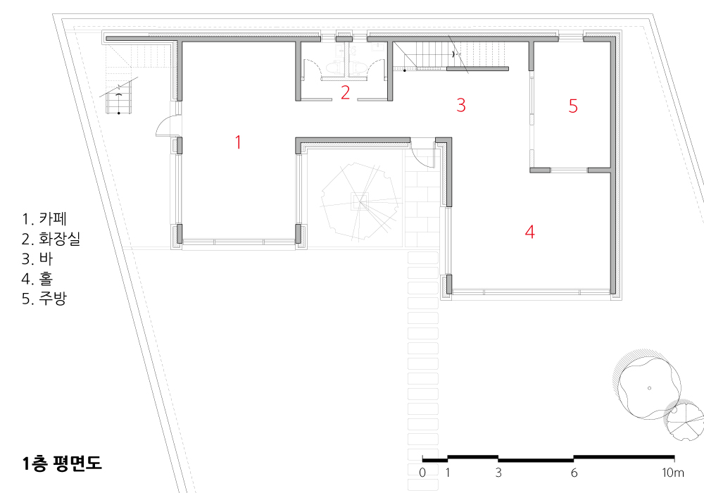
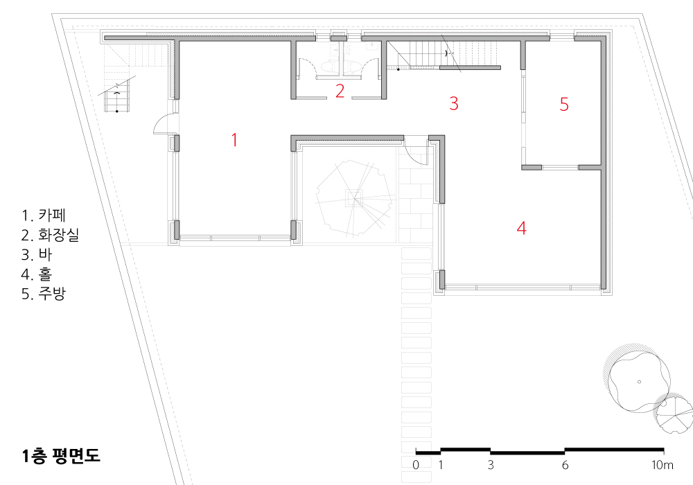
내부는 프랑스 가정식 레스토랑이라는 프로그램의 속성이 갖는 다양한 컬러와 맛과 향기라는 변주를 위한 배경으로서, 노출 콘크리트와 나왕합판의 상보적인 단아함으로 공간을 구성하였다. 바닥은 콘크리트에 푸른색 계열의 종석을 직접 흩뿌린 후 폴리싱 작업을 하였다. 자연스레 흩뿌려진 푸른 종석의 단면들이 빛을 머금어, 회색 공간에 신선한 찬란함과 싱그러운 시간을 선물해 주길 바란다. 조명, 유도등과 각종 설비들을 콘크리트 골조 타설 시 모두 미리 계획하고, 선시공 하여 매립함으로써 공간의 정제미와 단아미를 고양시키려 하였다.
조명, 패브릭, 가구, 주방, 간판, 조경(교목, 관목, 지피초하류와 바위까지) 등에 이르는 모든 부분에 관해 건축주와 함께 교감하고 결정하는 서사적 과정을 2년 가까이 일구어가며, 건축행위의 범주에 대한 개념이 재정의되길 바라왔다. 결과의 가치뿐만 아니라 과정의 가치가 건축행위의 소중한 덕목이 되길 바라며, 곧 새로운 대지와 건축 안에서 삶을 시작할 건축주와 그곳을 찾는 이들이 생애 가운데 소중한 추억의 한 조각을 가슴 한편에 담을 수 있기를 바란다.

The melody drawn on the site...
Tranquility, the chirping of birds, the fragrance of wind, greenery, annals, admiration, moistness, nature, cleanliness, refined, sincerity, baesanimsu(mountain in the back and a river in the front), enclosure, density, horizontality, quietness, sanctuary, purity, transparency, speed, slowness, calmness, primordiality, silence, mulailche(oneness of the ego and the outside world), anbinnakdo(content amid poverty and take pleasure in acting honestly), kangohanjeong(praising nature and enjoy leisurely), youyoujajeok(relaxing and having slow life), anbunjijok(living content), temperance, mother, love, warmth, gentleness, simpleness, delicacy… .
With the mindset of a craftsman, these are the words that we took notes about the first impressions of the site and the client who wanted to present warm food and valuable space to their loved ones. These are the values that were deeply rooted in our hearts and mind during the two years of designing and supervising. Normally, the main factors that lead to architectural acts are those based on rational thinking. Still, we tried to permeate an architectural process into the emotional realm connected with the above words for this project. We also tried to feel the breath of the site and create a melody that leisurely cuts through the terrain by containing the trajectory of the client's life and melting the story towards the essence of architecture.
Therefore, we thought that designing the building as if it had taken root in this place for a long time was our consideration and responsibility for the client who would spend the rest of his life on this site.
To incorporate the surrounding context into architecture, I connected the flow of topography and mountain to the architecture and determined the permeability of the elevation by reflecting the different characteristics of the first and second-floor programs. It naturally embraces the flow of the sense of volume of the mountain, leading to the dense creation of the emptying value of the space on the first floor. It is composed of a heavy mass to dissolve the honest and quiet shape of the mountain and enhance the sense of volume of the building. Even if it is a small-scale architecture, the circulation and the settlement space are clearly arranged so that the people inside can experience the moments of tension and emotion created by the jokes of site, architecture, and light. And to slow down the road flowing next to the site, it is designed to be filtered through Yoshino cherry trees and shrubs to give the visitors a slow time as soon as they enter the site.
The interior is a background for the variations of different colors, tastes, and scents of a home-style French restaurant. Space is composed of the complementary elegance of exposed concrete and lauan plywood. The floor was polished after spraying blue keystone directly on the concrete. We hope that the cross-sections of the naturally scattered blue keystone will absorb light and present fresh splendor and refreshing time in the gray space. To enhance the refinement and beauty of the space, we planned and installed lighting, guidance lights, and other facilities before constructing the concrete frame.
For nearly two years, we went through an epic process of sympathizing and making decisions with the client about everything from lighting, fabric, furniture, kitchen, signage, and landscaping (trees, shrubs, ground cover trees, rocks). In the meantime, we constantly desired the redefinition of what architectural act means. We hope that the value of the process, not just the result, will become a valuable virtue of the architectural act. The client will soon start living in a new site and architecture, and the visitors will have a precious memory about the place in their hearts.








| 리오네즈 설계자 | 이근식 _ (주)엘케이에스에이 건축사사무소 건축주 | 박연화 감리자 | 이근식 _ (주)엘케이에스에이 건축사사무소 시공사 | 건축주 직영공사 설계팀 | 조명선, 조승욱 대지위치 | 경기도 양평군 서종면 문호리 주요용도 | 근린생활시설 / 단독주택 대지면적 | 724.00㎡ 건축면적 | 130.30㎡ 연면적 | 199.30㎡ 건폐율 | 18.00% 용적률 | 27.53% 규모 | 지상 2층 구조 | 철근콘크리트구조 외부마감재 | 치장벽돌 내부마감재 | 노출콘크리트(유로폼,신재) 화장, 라왕합판 설계기간 | 2019. 07 – 2020. 02 공사기간 | 2020. 03 – 2020. 12 사진 | 구의진 구조분야 : 라임구조 기계설비분야 : 주신MEC 전기분야 : 엘림전설 소방분야 : 주신MEC / 엘림전설 |
LYONNAISE Architect | Lee, Keunsik _ LEE KEUN SIK Architects Client | Park, Yeonhwa Supervisor | Lee, Keunsik _ LEE KEUN SIK Architects Construction | Owner direct control Project team | Jo, Myeongseon / Jo, Seungwook Location | Moon Ho-ri, Seojong-myeon, Yangpyeong-gun, Gyeonggi-do, Korea Program | Neighborhood facility / Private house Site area | 724.00㎡ Building area | 130.30㎡ Gross floor area | 199.30㎡ Building to land ratio | 18.00% Floor area ratio | 27.53% Building scope | 2F Structure | RC Exterior finishing | Brick Interior finishing | Exposed concrete, Rawang plywood Design period | Jul. 2019 – Feb. 2020 Construction period | Mar. 2020 – Dec. 2020 Photograph | Gu, Uijin Structural engineer | LAIM Mechanical engineer | JUSIN MEC Electrical engineer | ELLIM Fire engineer | JUSIN / ELLIM |
'회원작품 | Projects > House' 카테고리의 다른 글
| 세덩이 안마당집 2021.8 (0) | 2023.02.08 |
|---|---|
| 가리봉동 다세대주택 2021.7 (0) | 2023.02.07 |
| 일곡동 단독주택 2021.8 (0) | 2023.02.07 |
| 꿈을 꾸는 家 2021.7 (0) | 2023.02.07 |
| 서패동 주택 2021.7 (0) | 2023.02.07 |
