2023. 2. 7. 09:17ㆍ회원작품 | Projects/House
Ilgok-dong House

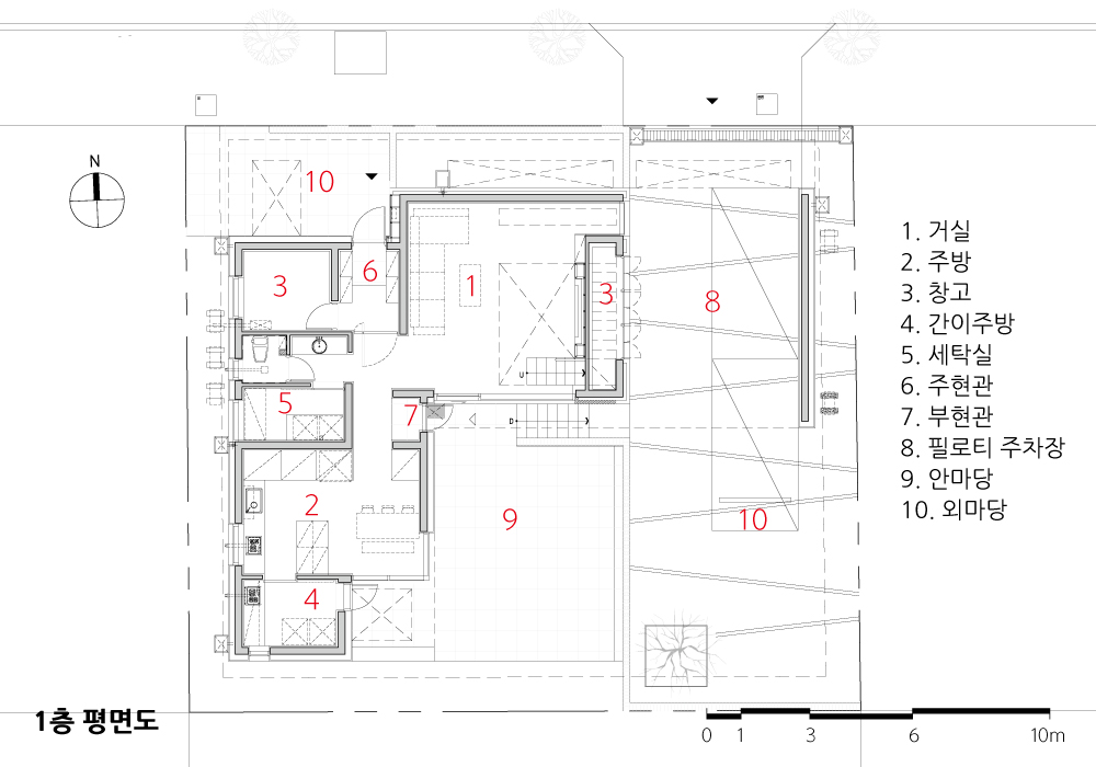
외마당과 안마당
부지는 북향을 주 출입구로 두고 동측이 1.2미터가량 낮은 지형에 기존 단층 주택이 자리 잡고 있었다. 건폐율 40% 미만 지역에서 건축주가 요구하는 규모를 수용하기 위해 3개 층이 필요했으나, 3층의 높은 집보다는 다소 낮고 수평적인 비례의 집을 만들고자 했다. 때문에, 초기에 지하층을 가진 2층 규모로 검토했지만, 1.2미터의 낮은 지형차에서 지하 상부가 건폐율에 산정되는 문제가 있어 최종적으로 3층 집으로 결정하였다. 다만, 상부를 경쾌하게 처리하고 도로변에서 매스를 분절하는 방식으로 시각적 부담과 높이감을 상쇄시키기로 하였다.
건축주의 성향을 고려하여 부지 내부에서도 어느 정도 사회적 마주침이 가능한 공간을 두기 위하여 각각의 성격이 다른 두 개의 마당을 제안하였다. 안마당과 외마당을 두고 안마당은 거실의 레벨에 맞춘 사적 공간으로, 외마당은 주차장과 도로의 레벨에 맞춘 사회적 공간으로 규정하였다. 애견을 동반한 산책과 마실 문화가 잘 정착되어 있는 동네에서 현관문을 통하지 않고 편한 복장으로 낮은 담장 너머의 친구를 부르거나 인사할 수 있는 반 개방적인 외마당과 이보다 높게 형성된 레벨에서 가족들만의 문화를 누릴 수 있는 안마당의 조화는 이 집을 다른 주변 집들과 차별화하고, 단독주택에서의 사회적 공간 탐구라는 지점에서 소기의 가능성을 보여주고 있다.
순환적 공간
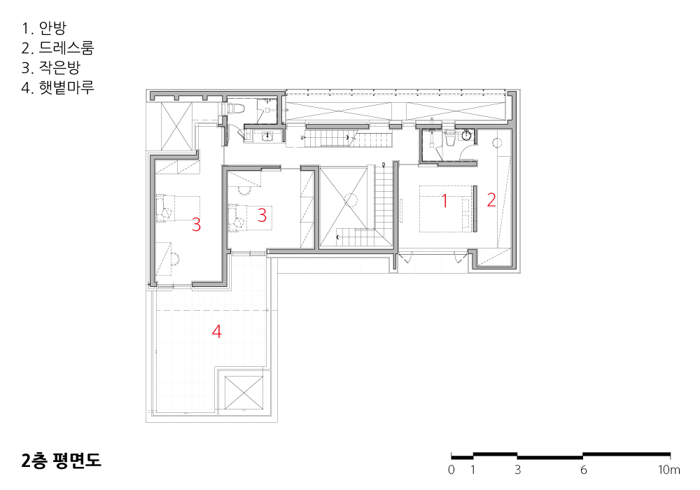
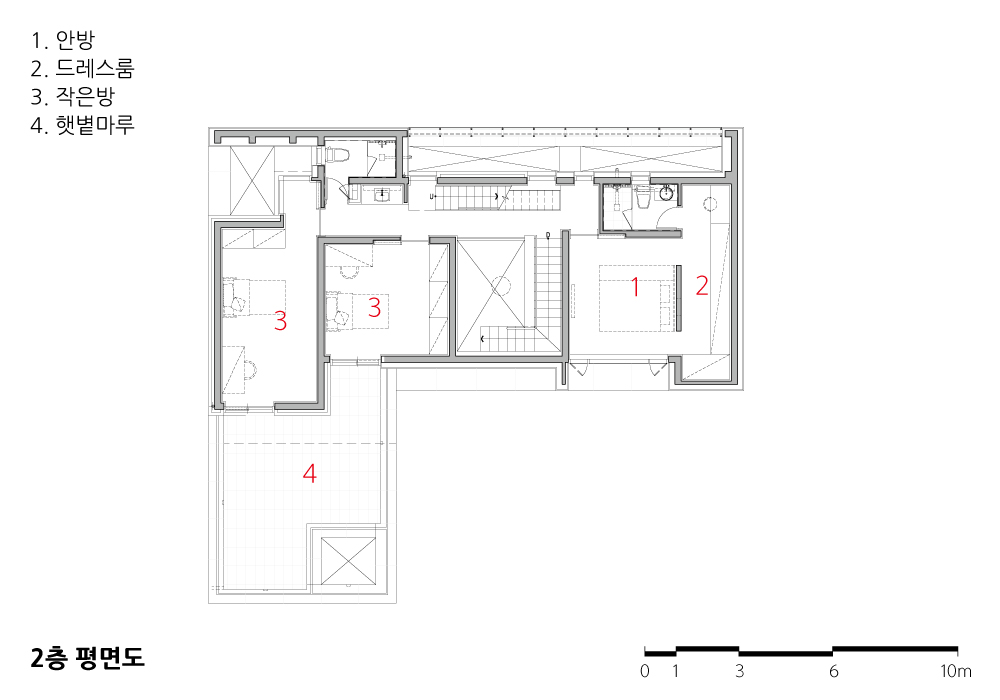
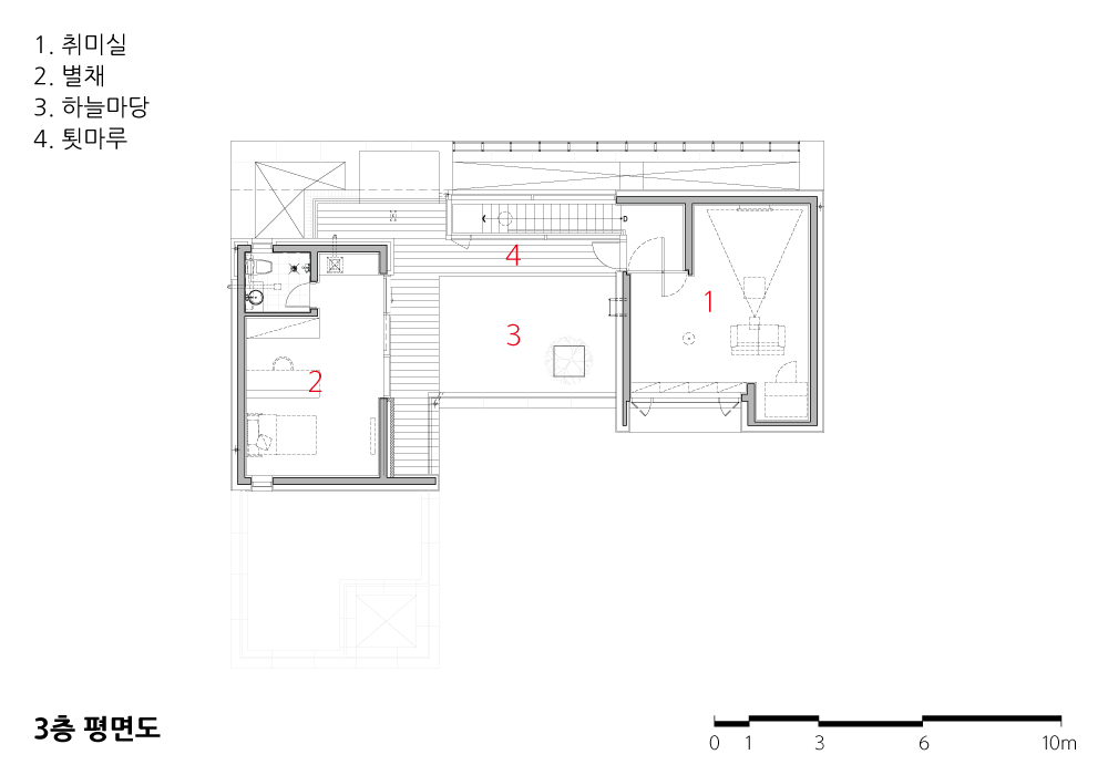
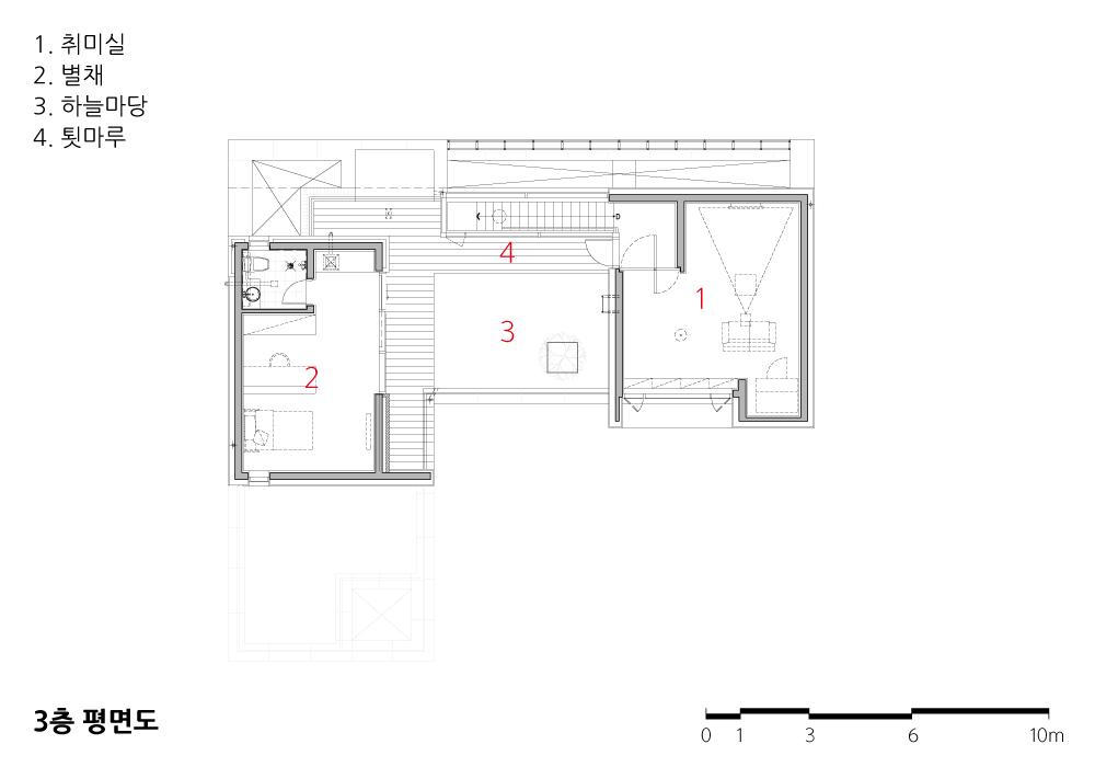
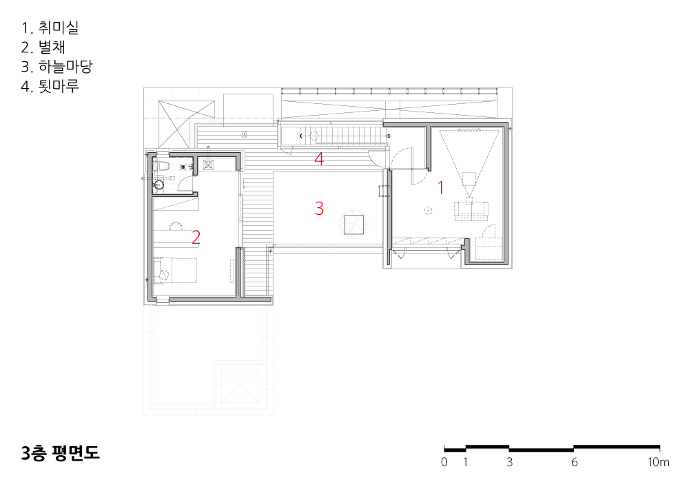
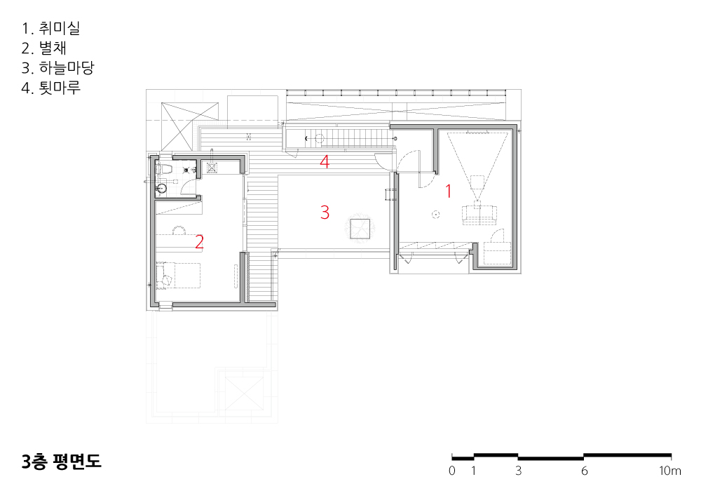
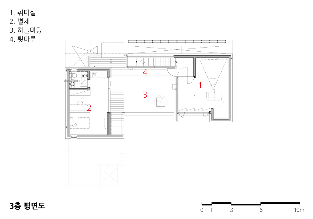
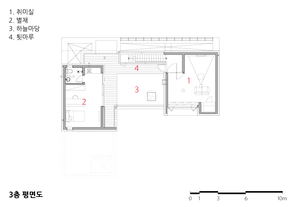
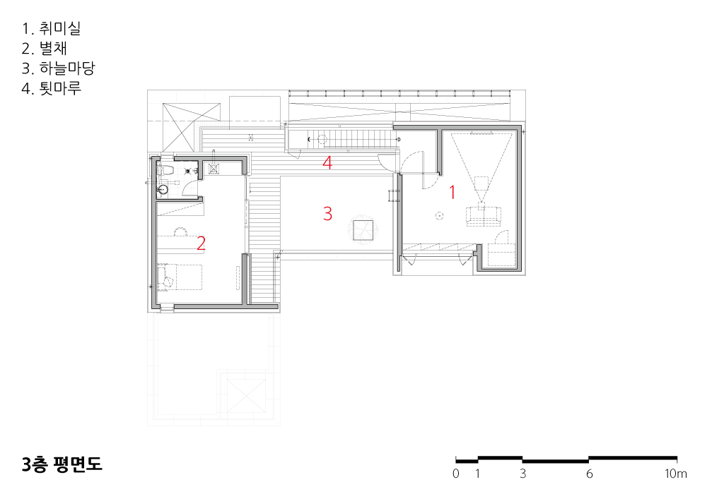
집의 공간 구성은 1층에 가족 공용공간을 두고 2층에 침실, 3층에 취미실과 별채로 구성하였다. 이처럼 보편적인 방식으로 실을 안배하여 편안하고 익숙함을 추구하되, 각각의 단위 공간에서는 실별로 특성을 주고자 하였다. 가령 아이들 공간은 각각의 방으로 구획하였으나 전면의 널따란 마당을 통해 아이들만의 놀이문화나 여가를 공유할 수 있고, 별채는 본채에서 외부로 나가 툇마루와 하늘 마루를 건너가는 동안 주변 공원 조망을 만끽하는 재미와 독립성을 누릴 수 있다. 주방의 식탁 테이블에서는 유리창 너머로 안마당과 붉은 적벽돌 담장 너머 있는 외마당의 백일홍까지 이어지는 입체적인 경관을 만들어 내고 있다.
우리는 이 집이 단순히 기능적이고 편리한 공간 구성에 집중하여 그저 방들이 집합된 이쁜 덩어리로서 만족하는 것을 경계하였다. 1층 거실과 2층 복도에는 유리 바닥, 주차장과 거실 알코브 사이에는 세로로 긴 창을 두어서 공간이 시각적으로 관통되도록 하고, 방들은 다시 열린 마당으로 이어지는 순환적 구조로 구성원들 간의 교감을 유발할 수 있도록 의도하였다.
도로변 2층 창호 너머에 설치된 알루미늄 타공패널은 내부 공간을 스크린하는 기능을 우선으로 하였지만, 여느 집들에서 나타나는 차갑고 무심한 배면이라는 인상을 지우고자 따뜻한 조도와 입체적 형태의 경관조명으로 다채로운 가로변 풍경을 만들어 내도록 하였다.

External courtyard and inner courtyard
The land sits in the existing one-story detached house at the low terrain of which the east side is lower about 1.2m with the main entrance in the north. Because three stories should accommodate the size requested by the building owner in the region of which the building-to-cover ratio is under 40%, we intend to make the house with a slightly lower horizontal proportion rather than three stories high house. Because of this, we reviewed two levels with a basement in the beginning but, due to the problem that the top of the basement from the low terrain difference of 1.2m is counted to the building-to-cover ratio, we determined three stories house finally. However, it was decided to offset the visual burden and height by handling the upper part lightly and dividing the mass on the side of the road.
By considering the tendency of the building owner, we suggest two courtyards with each different characteristic to allow some social encounters within site. The inner courtyard was defined as a private space tailored to the living room level, while the external courtyard was defined as a social space tailored to the level of the parking lot and road. In a neighborhood where the culture of walking and drinking with dogs is well established, a semi-open outer yard where you can call or greet friends over a low fence in comfortable clothes without going through the front door is unique. The harmony of the courtyard where you can enjoy the family's culture only at a higher level differentiates this house from other surrounding houses and shows the desired potential at the point of exploring social space in a detached house.
Circular space
In terms of space composition, there is the family common space on the first floor, the bedrooms on the 2nd floor, and the hobby room and separate building on the 3rd floor. Likewise, comfort and familiarity are pursued by placing the room universally, but the room-specific characteristics are intended for each space. For example, children's areas are divided into each room. Still, children's play culture and leisure can be shared through the spacious front yard, and separate houses can enjoy the view of the surrounding park while going outside from the main building and the sky floor. The dining table in the kitchen creates a three-dimensional picture that extends beyond the windows to the courtyard and to the outer courtyard, which is over the red brick fence.
We are cautious that this house focused on the functional and convenient space composition and was satisfied with a pretty mass of rooms. A glass floor is placed in the living room on the first floor. The hallway on the second floor and a long vertical window are placed between the parking lot and the living room alcove to penetrate the space visually. The room with the circular area connected to the open yard again is intended to trigger the communication with members.
The aluminum perforated panel installed over the second floor of the road was designed to screen the interior space. Still, to remove the impression that it was cold and indifferent shown in other houses, it was intended to create a variety of street views with warm illuminance and three-dimensional forms of landscape lighting.







| 일곡동 단독주택 설계자 | 임태형 _ (주)건축사사무소 플랜 건축주 | 김미선 감리자 | 임태형 _ (주)건축사사무소 플랜 시공사 | (주)디엠산업개발 설계팀 | 조하니 대지위치 | 광주광역시 북구 일곡로 주요용도 | 단독주택 대지면적 | 332.80㎡ 건축면적 | 132.35㎡ 연면적 | 244.87㎡ 건폐율 | 39.77% 용적률 | 73.58% 규모 | 지상 3층 구조 | 기초 – 철근콘크리트 매트기초 지상 – 벽 : 철근콘크리트 / 지붕 : 철근콘크리트 외부마감재 | 대리석, 적벽돌, 알루미늄 타공패널, 무절적삼목 사이딩 내부마감재 | 친환경 벽지, 자작합판, 강마루, 포세린 타일 설계기간 | 2019. 08 - 2019. 12 공사기간 | 2020. 03 - 2020. 09 사진 | 윤준환 구조분야 : (주)S&구조컨설턴트 기계설비분야 : (주)새터이엔지 전기분야 : (주)새터이엔지 소방분야 : (주)새터이엔지 |
Ilgok-dong House Architect | Lim, Taehyung _ PLAN Architects office Co., Ltd. Client | Kim, Miseon Supervisor | Lim, Taehyung _ PLAN Architects office Co., Ltd. Construction | DM Industrial Development, Inc. Project team | Jo, Hanee Location | Ilgok-ro, Buk-gu, Gwangju, Korea Program | Single Family House Site area | 332.80㎡ Building area | 132.35㎡ Gross floor area | 244.87㎡ Building to land ratio | 39.77% Floor area ratio | 73.58% Building scope | 3F Structure | Ferroconcrete Mat Foundation Exterior finishing | Marble, Red brick, Aluminium perforated panel, Western red cedar siding(Uncut) Interior finishing | Eco-friendly wall paper, Birch plywood, Laminate floor, Porcelain tile Design period | Aug. 2019 - Dec. 2019 Construction period | Mar. 2020 - Sep. 2020 Photograph | Yoon, Joonhwan Structural engineer | S&ENG, lnc. Mechanical engineer | Sateng, lnc. Electrical engineer | Sateng, lnc. Fire engineer | Sateng, lnc. |
'회원작품 | Projects > House' 카테고리의 다른 글
| 가리봉동 다세대주택 2021.7 (0) | 2023.02.07 |
|---|---|
| 리오네즈 2021.7 (0) | 2023.02.07 |
| 꿈을 꾸는 家 2021.7 (0) | 2023.02.07 |
| 서패동 주택 2021.7 (0) | 2023.02.07 |
| 월산리 주택 2021.7 (0) | 2023.02.07 |
