2023. 2. 7. 09:18ㆍ회원작품 | Projects/House
GARIBONG-DONG HOUSING

가리봉동 다세대주택이 자리 잡은 ‘구로동로’ 일대는 상업적 성격을 가진 폭 20미터의 왕복 4차선 도로에 면해, 비교적 많은 차량과 보행자가 통행하는 곳이다. 도로 주변으로 낙후된 건물이 많고 번잡한 환경으로 향후 정비가 요구되는 거리이다.
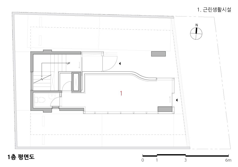
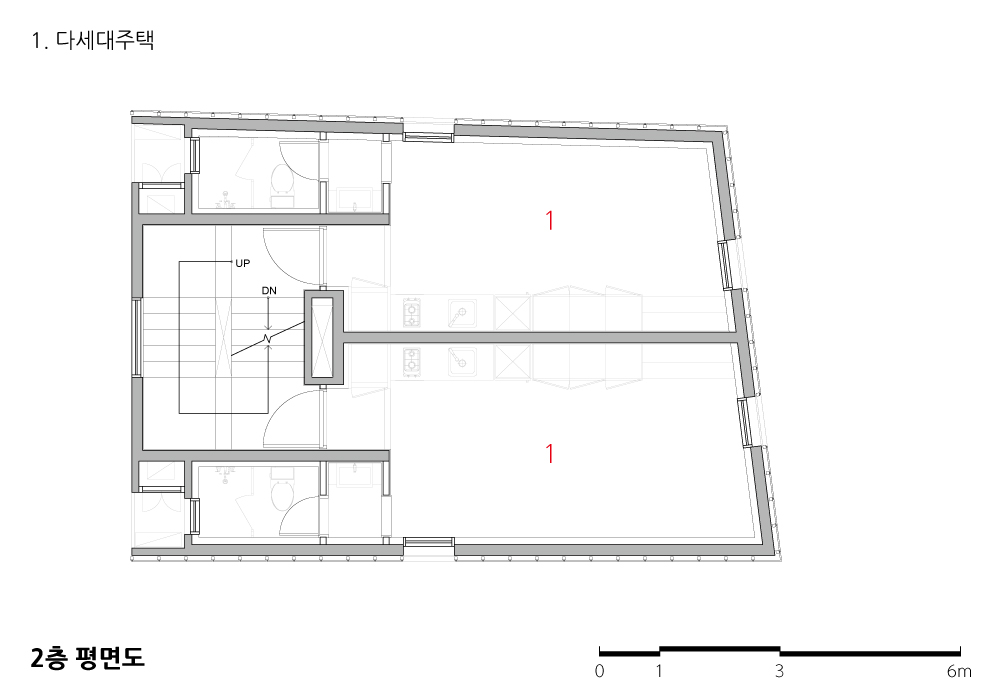
대지는 남북 방향으로 약 10% 정도의 경사가 있는 동서 방향의 긴 형태로, 일조에 유리한 조건을 가지고 있었다. 다만 차로로부터 소음 등에 직접적으로 노출돼 있어 이를 차단할 수 있는 대책이 필요했다. 1층에는 작은 소매점으로 이용될 근린생활시설을 배치하고 2층부터 5층까지 다세대주택 6세대를 배치했다. 4~5층에는 한 세대가 2개 층을 이용하는 ‘복층형 타입’ 2세대를 마련했다. 면적이 작은 대지의 특성상 콤팩트(compact)한 평면이 반복되도록 계획해 이용자가 공간을 효율적으로 이용하도록 의도했다.
건물 매스와 입면은 우선 최대한 ‘단순하게’ 형태를 만들고, 주변의 복잡하고 무질서한 환경과 대비되는 ‘질서’와 ‘리듬’이 있는 규칙적인 그리드(grid) 패턴을 변형해서 적용하여 단아한 입면이 되도록 구성했다. 이를 위해 외장 재료로는 비교적 단단한 금속 재질이자 반투명한 성격이 있는, 그러면서도 표면에 깊이감을 줄 수 있는 ‘익스펜디드 메탈(Expanded Metal)’을 적용했다. 익스펜디드 메탈로 하나의 ‘레이어(layer)’가 추가된 표면은 마치 부드럽고 얇은 천을 두른 것처럼 반투명하게 어른거리는 느낌을 자아낸다.
시간에 따라 변화되는 표면의 모습은 평범한 일상의 하루 속에서도 계속해서 변화하는 다양한 모습을 보여주며, 구로동로 일대에 새로운 풍경과 활기가 되어 주리라 기대한다.

The area of ‘Gurodong-ro,’ where multi-family houses are located in Garibong-dong, fronts a 20-meter-wide four-lane road with commercial characteristics. So it is a place where relatively many vehicles and pedestrians pass, requiring maintenance in the future because the road is crowding with many old buildings.
The site was long from east to west with an inclination of about 10% north and south, and it had favorable conditions for sunlight. However, since it was directly exposed to noise from the road, it was necessary to block it. Neighborhood facilities with small retail stores sit on the first floor, and six multi-family houses cover from the second to fifth floors. On the 4th and 5th floors, there are two households of 'duplex type' where a flat uses two floors. Since the site is tiny, we designed repeating plans to use space efficiently.
The building mass and elevation are as simple as possible. In contrast to the surrounding complex and disordered environment, regular grid patterns with 'order' and 'rhythm' are transformed and applied to form the elegant elevation. For this purpose, 'Expanded Metal', relatively hard metal material with translucent properties and gives a sense of depth to the surface, was applied as an exterior material. The surface added with a single 'layer' of expanded metal is translucent and shimmering as if wrapped in a soft, thin cloth.
The appearance of the surface, which changes with time, shows various aspects that are constantly evolving in a single, ordinary day, and we expect that it will become a new landscape and vitality to the area of Gurodong-ro.








| 가리봉동 다세대주택 설계자 | 조성주 _ (주)엠오엠건축사사무소 건축주 | 고창우, 김선희 감리자 | 조성주 _ (주)엠오엠건축사사무소 시공사 | 와이엠종합건설(주) 설계팀 | 엄성욱, 이지현, 최석희 대지위치 | 서울특별시 구로구 구로동로 21-2 주요용도 | 공동주택(다세대 주택) 대지면적 | 142.00㎡ 건축면적 | 69.31㎡ 연면적 | 280.58㎡ 건폐율 | 48.81% 용적률 | 197.59% 규모 | 지상 5층 구조 | 철근콘크리트구조 외부마감재 | 알루미늄 익스펜디드메탈, 불소수지 도장 내부마감재 | 합판 위 수성페인트, 강화마루 설계기간 | 2017. 02 - 2017. 08 공사기간 | 2020. 04 - 2020. 11 사진 | 최진보 구조분야 : (주)허브구조 엔지니어링 기계설비분야 : 이래엠이씨 전기분야 : 성지이앤씨 소방분야 : 이래엠이씨, 성지이앤씨 |
GARIBONG-DONG HOUSING Architect | Cho, Seongju _ M.O.M ARCHITECTS Client | Go, Changwoo / Kim, Sunhee Supervisor | Cho, Seongju _ M.O.M ARCHITECTS Construction | YM Construction Project team | Eum, Sungouk / Yi, Jihyun / Choi, Seokhui Location | 21-2 Gurodong-ro, Guro-gu, Seoul, Korea Program | Multiplex Housing Site area | 142.00㎡ Building area | 69.31㎡ Gross floor area | 280.58㎡ Building to land ratio | 48.81% Floor area ratio | 197.59% Building scope | 5F Structure | RC Exterior finishing | Aluminum Expanded metal, PVDF Coating Interior finishing | Water paint finish above plywood, Wood flooring Design period | Feb. 2017 - Aug. 2017 Construction period | Apr. 2020 - Nov. 2020 Photograph | Choi, Jinbo Structural engineer | HUB Structural Engineering Mechanical engineer | IRae MEC Electrical engineer | SeonJi ENC Fire engineer | IRae MEC, SeonJi ENC |
'회원작품 | Projects > House' 카테고리의 다른 글
| 리오넬과 루이하우스 2021.8 (0) | 2023.02.08 |
|---|---|
| 세덩이 안마당집 2021.8 (0) | 2023.02.08 |
| 리오네즈 2021.7 (0) | 2023.02.07 |
| 일곡동 단독주택 2021.8 (0) | 2023.02.07 |
| 꿈을 꾸는 家 2021.7 (0) | 2023.02.07 |
