2023. 2. 8. 09:15ㆍ회원작품 | Projects/House
Three mass courtyard house

단독주택 건축이 할 수 있는 것 
아파트가 아닌 단독주택에서 실현할 수 있는 건축적 대안을 생각해 본다. 
아파트처럼 면적을 기능에 최적화시키거나 공원 같은 커다란 조경공간을 가질 수는 없다. 
단독주택은 작지만 거실에서 바로 나갈 수 있는 마당을 지닐 수 있고, 다섯 방향(천창포함)으로 창을 내어 빛과 경관을 내부로 끌어들일 수 있으며 수직으로 확장하는 뚫린 공간을 만들 수 있다. 
설계방향 설정 
1. 도로면으로부터 프라이버시를 보호한다. 
2. 마당을 만들고 실내공간과 유기적으로 확장 또는 활용할 수 있게 만든다. 
3. 내부공간은 밝고 넓게 보이게 한다. 
4. 형태와 공간에 장식과 군더더기를 없앤다. 
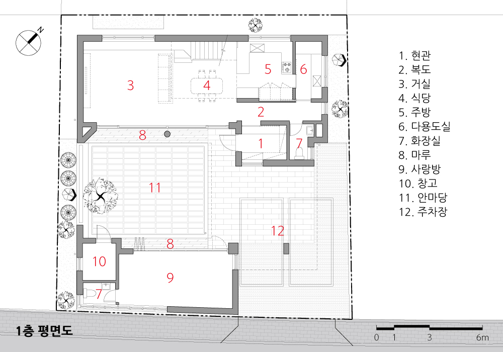
세 개의 덩어리(큰 덩어리 한 개와 작은 덩어리 두 개) 
큰 덩어리는 대지 안쪽에, 작은 덩어리 하나는 도로 쪽으로 나란하게 11자로 배치한다. 나머지 작은 덩어리 하나를 두 덩어리 사이 동북쪽에 걸쳐 띄워서 연결한다. 세 개의 덩어리가 연결되어 바깥마당(필로티 주차장)과 안마당을 만들었다. 1층의 공간들은 안마당 쪽으로 창을 크게 만들어 수평적 확장감을 준다. 2층을 오르는 계단은 뚫린 공간을 가로질러 오르며, 위쪽에는 천창이 햇빛을 끌어들여 빛과 그림자를 연출한다.
안마당 
우리 옛 살림집을 말할 때 마당을 빼고는 설명이 어렵다. 안마당, 사랑마당, 행랑마당, 뒷마당 등 위치와 사용목적에 따라 붙여진 이름도 다양하다. 수천 년 동안 마당과 함께 살아온 우리의 몸속에 마당의 DNA가 들어있는지도 모른다. 오늘날 아파트를 최고의 입지, 기능적 공간배치, 편리함과 공간의 활용성 등의 수식어로 표현하고 있지만 갑갑한 느낌을 가지게 되는 것은 마당을 갖지 못하여 생긴 향수 때문이 아닐까 생각한다. 
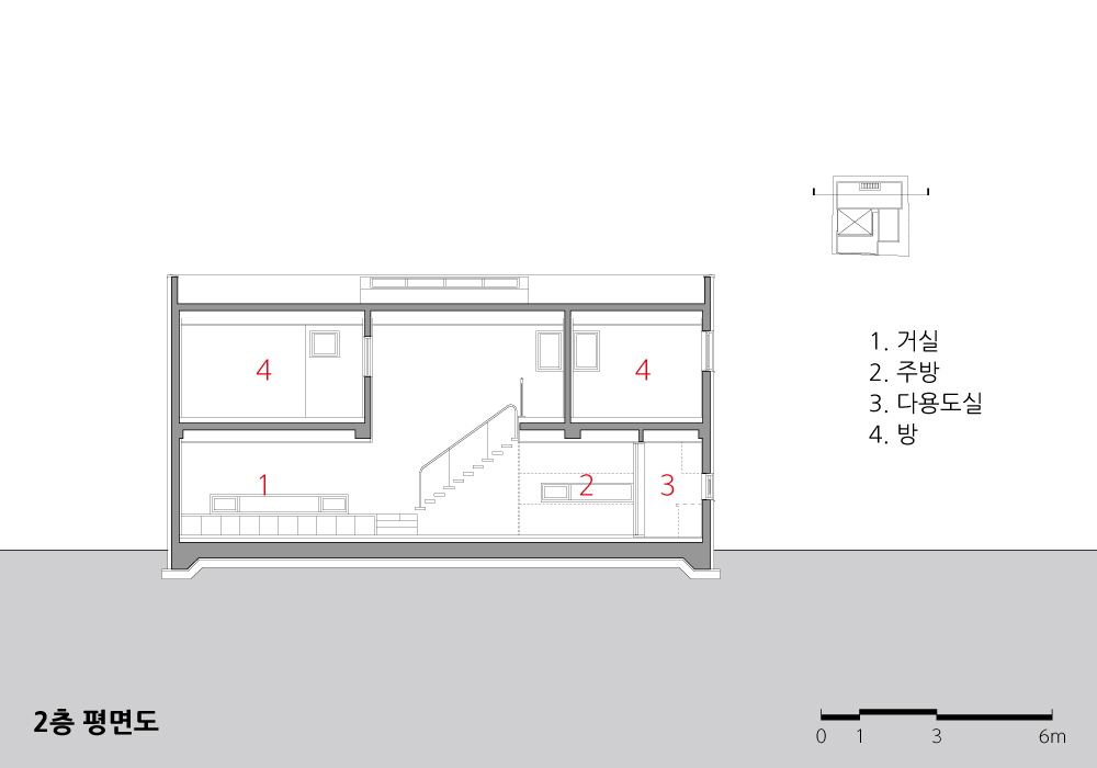
1층은 옛 살림집을 본보기 삼아 안마당-마루-실내로 연결되는 공간을 만들고, 2층에도 옥상 테라스를 만들어 옥외공간을 가깝게 사용할 수 있게 하였다. 
검소하지만 사치스럽지 않다(검이불루 _ 儉而不陋) 
‘살림집’이라는 단어를 좋아한다. 우리 조상들이 살아오셨던 살림집의 느낌은 ‘검이불루(儉而不陋)’라는 단어와 느낌이 일치한다. 공간의 관계를 조합하여 만들고, 필요한 부분은 채우고 불필요한 부분은 비워낸다. 형태는 그 공간의 결합관계를 가감 없이 자연스럽게 드러내면 된다. 그뿐이다. 간혹 빛이 그 공간을 장식해 줄 뿐이다. 
세 덩이 안마당집이 검이불루의 살림집으로 인식된다면 설계자로서 더없이 행복할 것이다.

What a detached house can do 
I think of the realistic architectural alternative in the detached house rather than the apartment.  
It is impossible to optimize the area to the function like apt or have ample landscape space like a park.  
Despite the small size, the detached house can have the yard accessible from the living room and induce the light and scenery inside by making windows in 5 directions (including the ceiling) and making the open space extend vertically. 
Setting the direction of design 
1. Protect privacy from the road 
2. Make the yard and ensure the organic extension or utilization with inner space.  
3. Make the inner space looks bright and wide.  
4. Remove the decoration and clutter from form and space. 
Three loaves (one large and two small)  
The large one is placed inside the land, and the small one is placed side by side on the roadside with 11. We connect the other small ones by floating them to the northeast between the two loaves. The three masses were joined to create an outer courtyard (piloti parking lot) and an inner courtyard. The spaces on the first floor have large windows towards the courtyard, giving a horizontal sense of expansion. The stairs going up to the second floor across the open space, and the skylight at the top induces the sunlight to create light and shadows. 
Inner courtyard 
It is difficult to explain without the courtyard when explaining our old house. The names given vary depending on the location and purpose of use, such as the inner courtyard, outer courtyard, the yard for servants, and backyard. Our bodies, which have lived with the yard for thousands of years, may contain the yard's DNA. Today, apartments are described as the best location, functional space arrangement, convenience, and space utilization. Still, I think it is because of the homesickness that came from not having a yard. 
The first floor is an example of an old house, and a courtyard-floor-interiors space is built, and a rooftop terrace is also built on the second floor to provide close use of the outdoor space. 
frugal but not extravagant 
I like the word 'private home.' The feeling of a private home where our ancestors have lived is identical to the terms of 'frugal but not extravagant.' It combines the relation of space, fills the necessary part but empties the unnecessary detail. The shape only naturally reveals the combination of the space without any adjustment. That's all. Sometimes, the light decorates the space. If the inner courtyard house of 3 loaves is recognized as a private house of 'frugal but not extravagant,' the designer couldn't be happier.









| 세덩이 안마당집 설계자 | 김재만 · 김경태 · 박덕성 _ 도원건축그룹(도원A&C 건축사사무소 · 도원GT 건축사사무소 · 도원DS 건축사사무소) 건축주 | 지주령 감리자 | 김경태 _ 도원GT 건축사사무소 시공사 | 토마건설 설계팀 | 성무석, 이유진, 신유진 대지위치 | 경상남도 진주시 사들로34번길 9-5 주요용도 | 단독주택 대지면적 | 280.80㎡ 건축면적 | 150.07㎡ 연면적 | 199.76㎡ 건폐율 | 53.67% 용적률 | 71.14% 규모 | 지상 2층 구조 | 철근콘크리트구조 외부마감재 | 라임스톤, 스타코 내부마감재 | 실크벽지, 본타일, 강마루 설계기간 | 2020. 08 - 2020. 10 공사기간 | 2020. 10 - 2021. 03 사진 | 유재만 구조분야 : 혜담구조엔지니어링 기계설비분야 : 라인엔지지어링 전기분야 : 라인엔지지어링  | 
Three mass courtyard house Architect | Yoo, Jaeman · Kim, Kyeongtae · Park, Deoksung _ Dowon architecture design group(Dowon A&C Architects · Dowon GT Architects · Dowon DS Architects) Client | Ji, Juryeong Supervisor | Kim, Kyeongtae _ Dowon GT Architects Construction | Toma construction Project team | Sung, moosuck / Lee, yujin / Sin, yujin Location | 9-5, Sadeul-ro 34beon-gil, Jinju-si, Gyeongsangnam-do, Korea Program | Detached house Site area | 280.80㎡ Building area | 150.07㎡ Gross floor area | 199.76㎡ Building to land ratio | 53.67% Floor area ratio | 71.14% Building scope | 2F Structure | RC Exterior finishing | Limestone, Stuco Interior finishing | Silk wallpaper, Bontile, Kangmaru Design period | Aug. 2020 - Oct. 2020 Construction period | Oct. 2020 - Mar. 2021 Photograph | Yoo, Jaeman Structural engineer | Hyeodam sturcture engneering Mechanical engineer | Line engneering Electrical engineer | Line engneering  | 
'회원작품 | Projects > House' 카테고리의 다른 글
| lll:결~집 2021.8 (0) | 2023.02.08 | 
|---|---|
| 리오넬과 루이하우스 2021.8 (0) | 2023.02.08 | 
| 가리봉동 다세대주택 2021.7 (0) | 2023.02.07 | 
| 리오네즈 2021.7 (0) | 2023.02.07 | 
| 일곡동 단독주택 2021.8 (0) | 2023.02.07 | 
