2023. 2. 8. 09:19ㆍ회원작품 | Projects/House
lll: layered

정면에서 바라보는 첫 모습은 
세로로 긴 복층형 로우하우스(row house)처럼 독립된 집의 집합체를 그렸다. 정면 도로에서 바라볼 때, 세 개의 집이 붙어 있는 모습이다. 왼쪽부터 차례대로 직사각형 집과 두 개의 사다리꼴형 집이 보인다. 두 개의 사다리꼴 집 사이에는 외부로 돌출된 작은 계단실이 있다. 계단실을 기준으로 두 개의 사다리꼴 집은 10도 벌어져 있다. 보는 시점에 따라 집의 정면이 다르게 보이는 이유이기도 하다. 세로로 보이는 집의 1층과 2층 사이에 가로로 긴 보이드를 적용, 상층부와 저층부를 나눴다. 이러한 건축적 비례와 리듬을 통해, 수평성이 강조된 저층부와 공중으로 부유하는 상층부가 형성된다. 외부 계단실은 세로로 긴 보이드가 적용된다. 이는 수직동선의 시야 확보와 건축적 비례로 나누어진 집의 세로를 강조하는 디자인 어휘이다. 
설계의도 : 공동거주에서 독립거주 찾기 
건축법상 다가구주택은 단독주택의 여러 개 하위목록 중 하나다. 소유권이 하나인 주거에 여러 가구가 함께 거주하는 형태로, 관리주체가 있어서 유지관리가 지속되는 장점이 있다. 이와는 별개로 거주자 입장에서는 다세대와 유사한 거주환경이 주어지기 때문에 공동거주 형태로 읽고 설계하는 것이 적절해 보인다. 공동으로 거주해야 한다면, 가급적 자신의 생활과 타인의 생활에서 발생하는 불필요한 간섭을 최소화하고 싶지 않을까? 그래서 우리는 각 가구의 생활동선과 생활영역에서 최소한의 간섭이 발생하도록, 공유하는 부분을 최소화하기로 했다. 그리고 수평으로 가구를 분리하는 방식 대신, 수직으로 가구를 분리하는 방식을 선택했다. 이러한 설계방식은 공동거주에서 발생하는 층간 소음을 최소화하고, 개별적인 현관을 확보한다. 또 독립적인 생활동선이 보장된다. 생활영역 거리 확보를 위한 개별적인 외부공간도 함께 설계된다. 
설계과정 : 프로그램 구성 
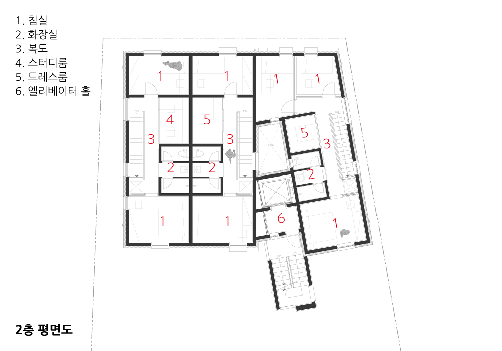
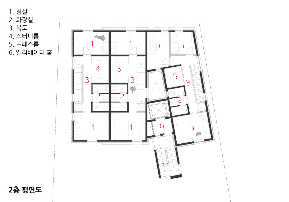
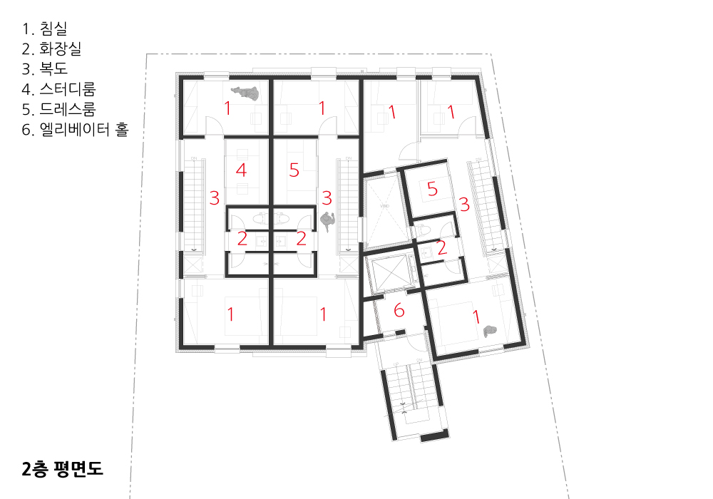
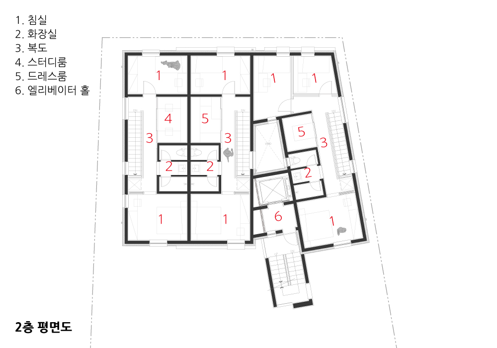
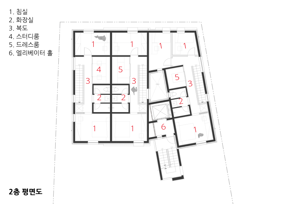
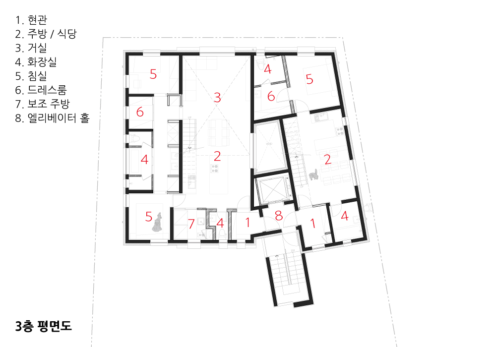
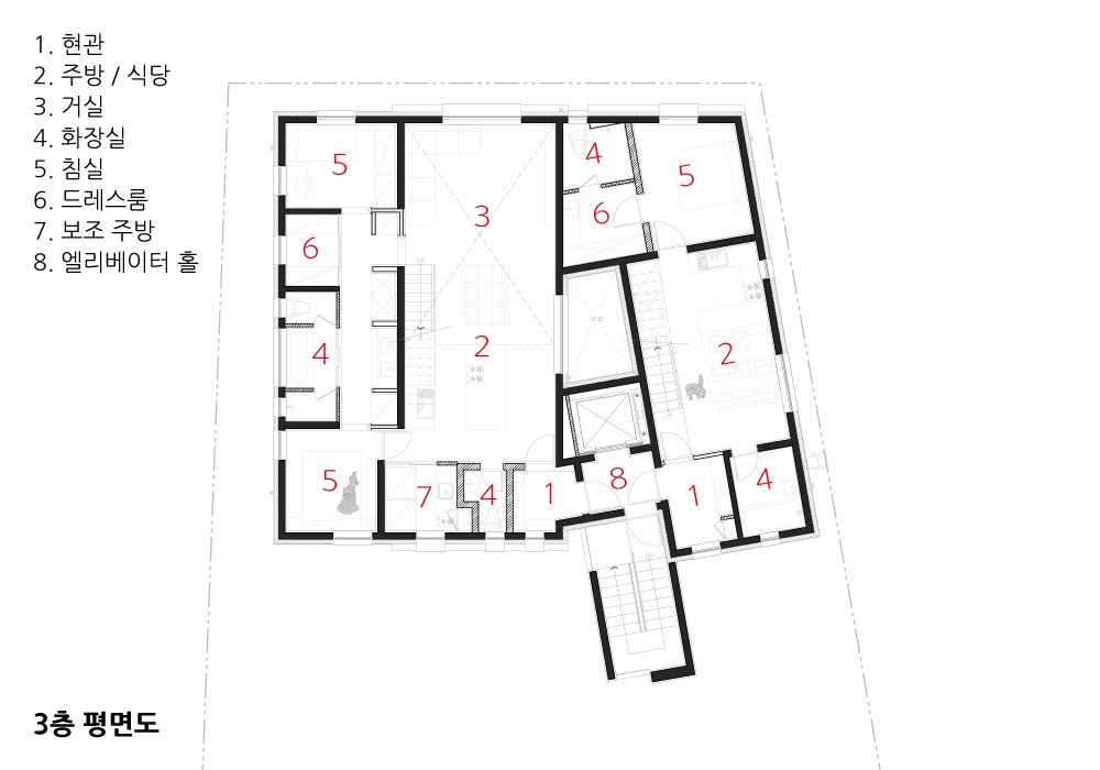
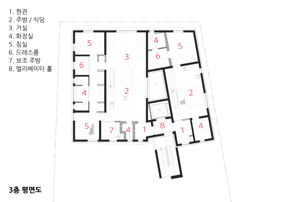
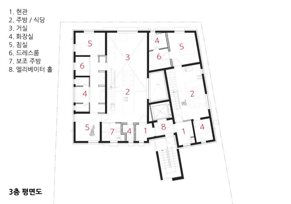
각 가구의 독립적인 거주생활을 목적으로 설계방향을 설정했다. 일반적인 다세대처럼 가구를 적층하지 않고, 로우하우스처럼 가구를 세로방향으로 구분한다. 여기서 대지의 폭(width)과 가구의 거주모듈(module)에 따라 가구 수를 결정한다. (사다리꼴 대지 형상 : 정면 폭 20미터, 후면 폭 16미터 / 깊이 21미터) 지구단위계획, 지침에 따라 다섯 가구까지 구성이 가능하며, 층수는 3층으로 제한된다. 대지의 최소 폭, 16미터를 기준으로 세 개의 임대가구를 복층(1층~2층) 로우하우스 타입으로 대지 형상을 따라 배치한다. 정면과 후면 폭 차이에서 오는 쇄기 형태의 보이드에 건물의 숨구멍인, 중정과 상층부 주거를 위한 코어(core: 계단, 엘리베이터)를 배치한다. 두 개의 가구는 3층에 배치한다. 두 개의 모듈을 사용하는 주인가구와 한 개의 모듈을 사용하는 임대가구가 중정을 기점으로 배치된다. 최종 다섯 가구는 저층(1~2층)을 사용하는 복층형 세 가구와 3층을 사용하는 단층형 두 가구로 확정되었다. 
다섯 개의 집 : 다섯 개의 마당 
다섯 개의 집은 각자의 외부공간을 갖는다. 저층부 가구는 외부 녹지로 확장되는 후면 테라스를 통해 다양한 삶의 방식을 취할 수 있다. 휴식을 취하는 리딩누크, 가족과 즐기는 바비큐 타임, 그리고 외부 녹지와 실내를 연결하는 완충데크로 사용할 수 있다. 상층부 두 가구에는 다락에서 연결되는 옥상데크가 적용된다. 주인가구의 넓은 옥상데크는 주거 1모듈이 적용되어, 다양한 외부공간 활용이 가능하다. 정면과 후면 각각 두 개의 데크가 적용된 임대가구는 거주자의 활용에 따라 맞춤할 수 있도록 설계되었다. 다섯 개의 마당(외부공간)은 각 가구의 생활영역을 구분하고 적정거리를 만들었다.  
따로 또 같이 : 포치와 계단&엘리베이터 
출입구를 분리한다. 공동거주에서 공용공간을 최소화하는 것은 전용률을 올리는 장점이 있으며, 각 거주자의 독립적 생활을 더 보장한다는 의미다. 코어(계단&엘리베이터)를 통해 수직으로 연결되는 출입구와 달리, 저층가구는 각자의 포치를 통해 출입이 가능하다. 2층 캔틸레버 구조와 전면 가벽으로 형성된 포치 공간은 거주자에게 심리적 안정감과 물리적 여유공간을 제공한다. 자전거, 유모차 또는 외부활동에 필요한 다양한 물품들을 수납할 수 있는 여유공간도 생긴다. 분리된 생활동선과 각 가구의 분리된 전이공간을 통해 독립된 거주공간은 가까워진다.  
 * 전이공간은 성격이 다른 두 개의 공간 사이에서 완충해주는 공간을 의미한다. 내·외부 사이에 있는 발코니도 이에 해당한다. 
옥상데크+다락+디자인의도=두개의 시옷(ㅅ) 지붕  
세 가지 이유가 만나서 지금의 사선지붕 형태가 발현되었다. 
1. 옥상데크 (상층부 가구에게 외부공간 제공) 
정북사선의 영향에 따라 주인가구의 옥상데크 위치를 선정한다. 서측으로 열린 공간을 확보한다. 임대가구의 옥상데크는 중정에 면하여 정면과 후면 각각 두 개의 지점, 자투리 공간을 이용한다. 
2. 다락 (3층 이하 층수제한 해결 방법) 
실내에서 옥상데크로 확장되는 공간을 설계하기 위해서는 다락이 필요하다. (실내)높이 제약이 있는 다락에서 사선 지붕은 선택이 아니라 필수라고 생각한다. 범용적인 실(RM)의 사용보다는 완충공간, 수납공간, 알파공간으로 정의되는 다락의 특성상 옥상데크와 실내를 연결하는 소통 공간으로 적용한다. 
3. 디자인 의도 (세로형태의 로우하우스 모습 구현) 
세로로 연속된 세 개의 집과 함께, 두 개의 사선 지붕은 건물 전체를 이끌어가는 중요한 디자인 어휘이다. 두 개의 집을 커다란 사다리꼴형 집처럼 보이게 만들며, 세로방향의 건물로 디자인 방향을 제시한다. 다른 의도, 자의적 해석으로 평지붕, 박공지붕, (다른 경사방향의)사선 지붕을 적용할 수도 있다. 하지만 자의적 해석을 지양하는 우리의 디자인 방향에 따라, 실내와 옥상데크 동선 확보를 위한 합리적 디자인을 취한다. 그 결과 서쪽 방향으로 건축 리듬이 느껴지는 사선 지붕을 적용한다. 
 * 다락은 연면적 삽입에 제외됨. 다락 실내 높이를 평균 1.8미터 이내로 해야 함. 
외장재 : 세로 형태와 가로방향의 텍스처  
실제 건물의 형태는 가로가 길지만, 디자인 의도는 세로방향이다. 
설계기법 및 디자인 의도에 따라 세로방향으로 집을 읽도록 유도하고, 외장재를 가로 배치하여 텍스처(texture:질감)를 느낄 수 있도록 했다. 질감의 단계를 하나씩 밟고 올라가면서 켜를 느끼게 하고 싶었다. 동시에 질감을 갖는 거대한 덩어리(mass)처럼 보이길 바랐다. 이를 위해 질감의 켜가 방향성을 갖지 않도록 백색 벽돌의 컬러와 유사한 백색 줄눈을 적용했다. 재료가 방향성을 갖게 되면, 재료에 초점이 맞추어져서 전체를 방해하기 때문이다.

First view from the front 
We intended to draw the collection of independent houses like vertically long row houses. From the front road, three houses look attached. Two trapezoidal places from the left follow the rectangular house. There is a small stair hall protrude between two trapezoidal houses.  Based on the staircase, the two trapezoidal houses are ten degrees apart. That's the reason why the facade of the house looks different depending on the point of view. 
The long horizontal void is open between the first and second floors of the house, dividing the upper and lower parts vertically. Through this architectural proportion and rhythm, the lower part emphasizes horizontality and the upper part floats in the air.  
The long vertical void is applied to the external stair hall. This design language secures the view of the vertical circulation and emphasizes the verticality of the house divided by architectural proportion. 
Design intention: Searching the independent residence from common residence 
Under the Building Act, multi-family housing is one of several sub-categories of detached houses. In the form of multiple households living together in a residential area of which ownership is one, it has an advantage of continuing maintenance because there is a management entity. On the contrary, residents are given a multi-generation similar living environment, so it seems appropriate to design in the form of joint residence. 
If people should reside together, wouldn't they like to minimize unnecessary interference in their lives and the lives of others? Therefore, we determine to reduce the common area for the minimized intervention in each household's circulation and living area. Rather than separating the homes horizontally, we select the method to separate the home vertically. This design can minimize the floor noises from the common place of the residence and secure the separate entrance. In addition, the independent circulation is guaranteed.  
The individual external space is also designed to secure the distance of the living area. 
Design process: composition of program 
The direction of design is set with the goal of independent life of each household. Instead of stacking furniture like a general multi-generational house, the furniture is divided vertically like a row house. Here, the number of homes is determined according to the site's width and the household's housing module. (Trapezoidal site shape: front width 20 meters, rear width 16 meters / depth 21 meters) 
The composition is possible for up to 5 households depending on the district unit plan and guideline. However, the restriction on the floor numbers is maximum three floors.  
Based on 16m, the minimum width of the site, three rental units are placed with the double floor (1st-2nd floor) row house type according to the site's shape. In the wedge shape void resulting from the difference between front and rear width, the courtyard, which is the windpipe of the building, and the core(stair, elevator) for the upper part residence are placed. 2 pieces of furniture are placed in the 3rd floor. The leaseholder's space using two modules, and the tenant's space using one module is set around the courtyard.  
The final five households were confirmed as three double floor type households using the lower floors (1st and 2nd floors) and two single-story homes using the third floor. 
Five houses: five years 
5 houses have their external spaces respectively.  
The lower-floor households can take on various lifestyles through the rear terrace that extends into the outside greenery. For example, it can be used as a reading nook to take a break, barbecue time to enjoy with the family, and a buffer deck that connects the outdoor greenery and the indoor space. 
The rooftop decks apply to 2 upper-floor households. The expansive rooftop deck of the leaseholder adopts one housing module, making various external spaces possible. The tenants' homes in which two decks are applied at the front and rear are designed to customize according to residents' utilization.  
Five yards (external space) divide the living area of each household and create the appropriate distance. 
Separately and jointly: Porch and stair &elevator 
The entrances are separated. Minimizing the shared space in the multi-family residence can bring the merits of a high utilization rate, meaning the independence of each resident is better guaranteed. In addition, unlike the entrance connected vertically through the core (stair & elevator), the lower floor households can enter the house through their porch.  
The porch spaces formed with a two-story cantilever structure and a fake front wall provide the residents with psychological comfort and extra physical spaces. It also provides an extra space to store bicycles, strollers, or various items necessary for outdoor activities. The independent living space becomes closer through the separated moving line and the separate transition space of each household.  
*The transition space means the space that buffers 2 spaces with different characteristics. The balcony between external and internal space also applies.  
Rooftop deck + attic +design intention = 2 ㅅ shape roof 
The encounter of 3 reasons has brought the current ㅅ shape roof. 
1. Rooftop deck (Providing the external space to upper floor households) 
We selected the location of the rooftop deck of the leaseholder's household according to the influence of the due north slanted line. The open space to the west is secured. The roof deck of the tenant's household uses two points of extra space, one at the front and the other at the rear, respectively, to face the courtyard. 
2. Attic (How to solve the limit on the number of floors below 3 stories) 
The attic is needed to design the space expanding from indoor to rooftop deck. In an attic with (indoor) height restrictions, I think a slanted roof is necessary, not an option. Rather than using a general-purpose room (RM), it is applied as a communication space connecting the roof deck and the interior due to the characteristics of the attic, which is defined as a buffer space, storage space, and alpha space. 
3. Design intention (Realizing the view of vertical shpe row house) 
Along with three houses connected vertically, two slanted roofs are essential to design languages that lead the entire building. It makes two houses look like substantial trapezoidal houses and suggests design direction with the vertical building.  
Other intentions, arbitrary interpretations, may adopt flat roofs, gabled roofs, and slanted roofs (in different sloping directions). However, according to our design direction, which avoids arbitrary interpretation, practical design is taken to secure indoor and rooftop deck approaches. As a result, a slanted roof with an architectural rhythm is applied in the west direction. 
* The attic area is excluded from the total floor area. Therefore, the average indoor height of the attic should be within 1.8 m. 
Exterior building material :  vertical shape and horizontal shape texture 
Although the shape of the actual building is horizontally long, the design intention is vertical. 
According to the design technique and design intent, I induced the house vertically. The exterior material runs horizontally so that the texture could express itself. I wanted to make people feel its layer while stepping up the texturing step by step. At the same time, I wanted it to look like a vast mass of texture. For this purpose, white joints similar to white bricks were applied so that the textured layers do not have directionality. This is because when the material has directionality, the material becomes focused and disturbs the whole.









| lll:결~집 설계자 | 차석헌_건축사사무소 틔움 건축주 | 박인천, 최영순 감리자 | 한태희 _ 건축사사무소 클라우드나인 시공사 | 우리마을A&C(주) 설계팀 | 강성진, 이동진 대지위치 | 경기도 고양시 덕양구 오금1로 25 주요용도 | 다가구주택 대지면적 | 383.60㎡ 건축면적 | 184.29㎡ 연면적 | 443.19㎡ 건폐율 | 48.04% 용적률 | 115.53% 규모 | 지상 3층 구조 | 철근콘크리트구조 외부마감재 | 롱브릭타일 내부마감재 | 석고보드 위 수성페인트, 강마루, 타일 설계기간 | 2020. 02 – 2020. 08 공사기간 | 2020. 08 – 2021. 03 사진 | 외부 _ 권기돈 / 내부 _ 꼬시나 구조분야 : 시너지구조엔지니어링 기계설비분야 : (주)코담기술단 전기분야 : 성지이앤씨 소방분야 : (주)코담기술단  | 
lll: layered Architect | Cha, Seokheon_ TIUM Architects Client | Park, Incheon / Choei, Yeongsun Supervisor | Han Tae-hui _ CLOUD9 ARCHITECTs Construction | Woorimaeulanc Inc. Project team | Kang, Seongjin / Lee, Dongjin Location | 25, Ogeum 1-ro, Deogyang-gu, Goyang-si, Gyeonggi-do, Korea Program | Multi Family House Site area | 383.60㎡ Building area | 184.29㎡ Gross floor area | 443.19㎡ Building to land ratio | 48.04% Floor area ratio | 115.53% Building scope | 3F Structure | RC Exterior finishing | Long brique tile Interior finishing | Water paint finish above Gypsum board, Wood flooring, Tile Design period | Feb. 2020 - Aug. 2020 Construction period | Aug. 2020 - Mar. 2021 Photograph | Exterior _ Kwon, Gidon / Interior _ Cocina Structural engineer | Synergy Engineering Consultants Mechanical engineer | Codam Engineering Inc. Electrical engineer | Seong-Ji E&C Fire engineer | Codam Engineering Inc.  | 
'회원작품 | Projects > House' 카테고리의 다른 글
| 비네토 2021.8 (0) | 2023.02.08 | 
|---|---|
| 부암동 투루프 하우스 (0) | 2023.02.08 | 
| 리오넬과 루이하우스 2021.8 (0) | 2023.02.08 | 
| 세덩이 안마당집 2021.8 (0) | 2023.02.08 | 
| 가리봉동 다세대주택 2021.7 (0) | 2023.02.07 | 
