2023. 2. 8. 09:20ㆍ회원작품 | Projects/House
Buam-dong Two Roof House

북악산 산기슭에 자리 잡은 이 대지는 북악산의 좋은 전망과 남쪽으로 열려있는 좋은 대지조건을 가진다. 북측의 인접도로보다 낮은 경사지라는 대지조건을 이용하여 도로에서 2층으로 바로 진입하는 방식을 택하였고, 이로 인해 마당에서 보면 2층이지만 도로에서 보면 단층 건물처럼 보이는, 위치에 따라 다양한 모습을 보여주는 집을 계획하였다. 이는 인접도로가 넓지 않은 상황에서 보행자의 시선에 위압감을 주는 건물이 아니라 골목 스케일의 친근한 집으로 보이고 싶은 의도에도 부합했다.
도로 쪽 입면에는 부쩍 많아진 부암동의 유동인구로부터 시선을 차단하는 장치를 계획해야 했지만, 그것이 단절이나 차단의 역할을 하는 것은 원치 않았기 때문에 목재 루버를 통해 시선을 어느 정도 가리되 막지는 않는 대문과 담장을 계획하였다.
환기와 채광을 중요하게 생각하는 건축주의 요구에 따라, 남측은 최대한 큰 창문을 배치하여 채광을 확보하고, 북측 후면 옹벽 쪽에서는 집을 3미터 이격해서 혹시 모를 습기와 환기문제를 해결하였다.
주택의 형태는 도로에서 단층으로 보이는 2층 매스가 너무 길거나 비대해 보이지 않도록 약간의 리듬감을 주어 매스를 나누었고, 북악산 기슭이라는 환경에 어울리도록 두 개의 경사지붕을 구성하여 지루하지 않도록 하였다. 외부 마감재료도 나누어 1층은 석재로 구성, 땅에 견고하게 자리 잡고 있는 안정적인 기단의 느낌을 주었고 2층은 시간이 지나도 질리지 않고 곱게 나이 드는 재료인 벽돌로 구성하여 친근한 골목길을 만들고자 했다.
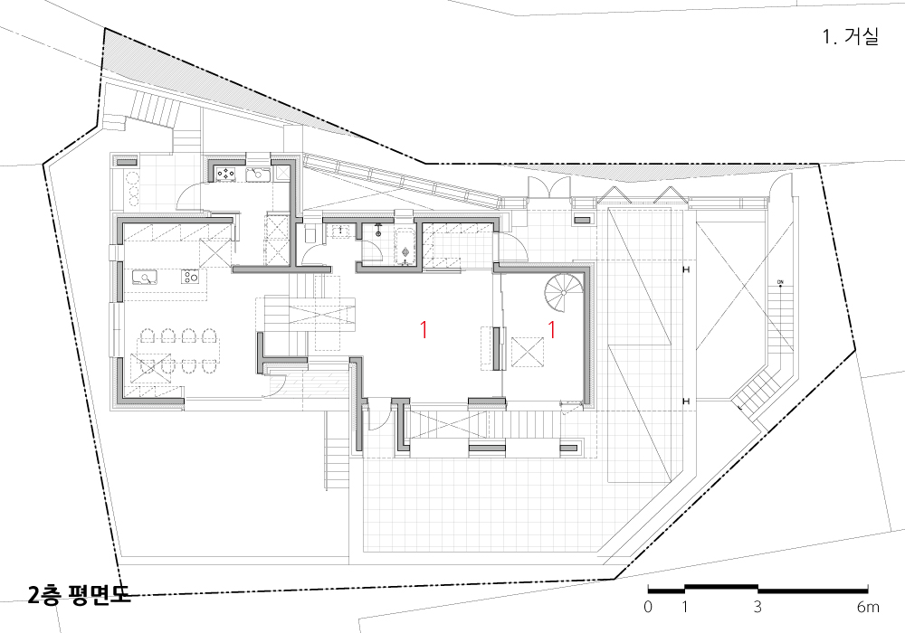
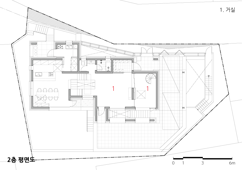
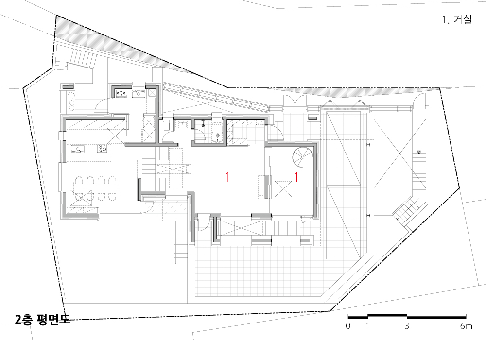
내부 층별 공간은 2층이지만 스킵플로어 형태를 채택하여 4개 층과 같은 다양한 단면의 공간구성을 꾀하였다. 자녀는 독립하고 부부만 거주하는 주택이어서, 진입도로에 붙은 2층의 대부분의 공간은 부부의 취미생활 공간이자 손님을 맞을 수 있는 거실과 서재, 그리고 식당공간이 스킵플로어 형태로 배치되었다. 프라이빗한 마당이 접한 1층은 두 개의 침실과 다목적 미디어룸, 그리고 게스트룸으로 구성되었다. 이를 통해 1층은 두 부부의 프라이빗한 주거공간으로, 2층은 외부 손님맞이와 다양한 활동이 가능한 퍼블릭한 독립적 공간을 만들 수 있었다. 각 층과 방마다 남향과 외부 전경을 바라보는 외부공간을 두어 각자의 공간에서 쉽게 외부와 연결되게 하였고, 전체적으로는 북악산과 한양도성의 성곽을 향한 큰 창들을 구성하여 집안에서도 서울의 역사와 자연을 잘 느낄 수 있게 고려하였다.
내부 공간의 특징은, 두 개의 큰 경사지붕 밑의 높은 층고 공간이 내부에서 충분히 느껴질 수 있게 거실과 주방공간이 배치되었다. 또 일부 경사지붕 아래에 서재와 다락방을 배치하여 공간 활용성을 높였다. 두 개의 큰 경사지붕 사이에는 채광을 위한 큰 천창이 있으며, 이 창을 통한 빛이 계단공간을 통해 1층 아래에까지 내려오게 만들었다.
스킵플로어로 연결되는 계단 부분의 한쪽 벽면에는 2.5개 층 높이의 책장을 구성하여 계단 디자인과 일체화되게 설계를 하였고, 이를 통해 층별 연결 공간의 통일성을 주었다. 해외 손님들이 많이 오는 건축주의 직업 특성상 그들을 위한 게스트룸을 1층에 구성하였고, 게스트룸까지의 별도 외부 진입 동선을 계획하여 변화하는 라이프 스타일의 상황에 맞게 이용할 수 있도록 하였다.
외부공간의 특징은, 2층 테라스의 바닥은 석재로 부암동과 한양도성의 멋진 전경을 볼 수 있으며, 1.5층의 붙은 지붕이 있는 외부공간은 가족을 위한 수공간이, 그리고 1층의 정원은 다양한 수종의 나무와 잔디가 있고 부부침실에서 바로 진입이 가능한 구성을 지닌다.

Located at the foot of Mt. Bukak, this site has a good view of Mt. Bukak and good site conditions open to the south. Using the site condition of a lower slope than the adjacent road on the north side, we took the method of directly entering the second floor from the road. As a result, it is designed to be a two-story house when viewed from the yard, but to look like a single-story building from the road, showing various appearances depending on locations. This is also in line with the intention to make it look like a friendly house on an alley scale, rather than an intimidating building to pedestrians in a situation where the adjacent road is not wide.
We had to plan a device on the elevation toward the road in order to block the gaze from the rapidly increased floating population in Buam-dong. But we did not want it to act as a cutoff or a blocker, so we planned to install the gate and fence that hide the gaze to some extent but not block it through wooden louvers.
In response to the request of the client who values entilation and light, we arranged the window as large as possible on the south side to secure lighting and separated the house 3 meters away from the rear retaining wall on the north side to solve any possible moisture and ventilation problems.
As for the shape of the house, the mass is divided by giving a sense of rhythm so that the two-story mass, which looks like a single story on the road, does not look too long or bulky, and two sloping roofs are constructed in keeping with the environment of Mt. Bukaksan so that it is not boring. The exterior finishing materials are also divided: the first floor is made of stone, giving the impression of a stable base firmly situated on the ground, and the second floor is made of bricks, a material that won't be boring even after time passes so as to build a friendly alleyway.
Although the indoor space by floor is two floors, we adopted a skip floor tye to create the spatial layout of various cross-sections like four floors. Since their children stand on their own feet and only the married couple live in the house, most of the space on the second floor attached to the access road consists of a space for the couple's hobby, a living room for guests, a study, and a dining area in the structure of skip floor. On the first floor, facing the private courtyard, there are two bedrooms, a multipurpose media room, and a guest room. So, we could design the first floor as a private residential space for the couple and the second floor as a public independent space for guests and various activities. All the floors and rooms have an outdoor space facing south and the whole view outside so that each space can be easily connected to the outside. In general, large windows facing Mt. Bugaksan and the fortress walls of Hanyangdoseong are installed so that they can feel the history and nature of Seoul at home.
The indoor space is characterized by the layout of a livingroom and a kitchen where there is very high ceiling space under two large sloping roofs within the house. In addition, a study and an attic are placed under some sloping roofs to increase space utilization. There is a large skylight for daylighting between the two large sloping roofs, enabling light to come in through this window down the first floor through the space of staircase.
On one wall of the stairway leading to the skip floor, a 2.5 story-high bookcase is designed to be integrated with the stairway design, giving unity to the space connected to each floor. Considering the nature of the client's job who often welcomes foreign guests, we made a guest room on the first floor and planned a separate external entry route to the guest room so that it could be used according to changing lifestyle.
The feature of outdoor space is that the terrace floor on the second floor is made of stone, so they can see a wonderful view of Buam-dong and Hanyangdoseong. The outdoor space with a 1.5-floor attached roof has a water space for families and a garden with a variety of trees and lawns on the first floor, allowing direct access from the couple's bedroom.







| 부암동 투루프 하우스 설계자 | 박의진, 이영호_ (주)엠엘앤피아키텍트 건축사사무소 건축주 | 개인 감리자 | 박의진 _ (주)엠엘앤피아키텍트 건축사사무소 시공사 | 동아 A&C 대지위치 | 서울특별시 종로구 백석동길 127 주요용도 | 단독주택 대지면적 | 420.30㎡ 건축면적 | 207.83㎡ 연면적 | 297.34㎡ 건폐율 | 49.45% 용적률 | 70.74% 규모 | 지상 2층 구조 | 철근콘크리트구조 외부마감재 | 외벽 _ 치장벽돌쌓기, 지정석재마감 / 지붕 _ THK0.5 컬러강판 담장 _ THK40 적삼목루버마감 / 데크 _ 방킬라이 데크재 내부마감재 | 벽 _ 벤자민무어 친환경 도장 / 바닥 _ 신명마루 원목마루 SM-OAK BR 걸레받이 _ H:80 갈바 위 지정도장 / 타일 _ 대제타일 District Marengo 수전 등 욕실기기 _ 아메리칸 스탠다드 설계기간 | 2017. 11 – 2018. 05 공사기간 | 2018. 05 – 2019. 09 사진 | 박영채 구조분야 : 드림구조 계설비·전기분야 : 정연엔지니어링 토목분야 : 보강엔지니어링 |
Buam-dong Two Roof House Architect | Park, Euijin · Lee, Myungho(RIBA) _ mlnp architects Client | Private Supervisor | Park, Euijin _ mlnp architects Construction | Donga A&C Location | 127, Baekseokdong-gil, Jongno-gu, Seoul, Korea Program | House Site area | 420.30㎡ Building area | 207.83㎡ Gross floor area | 297.34㎡ Building to land ratio | 49.45% Floor area ratio | 70.74% Building scope | 2F Structure | RC Exterior finishing | Wall _ Brick, Stone Roof _ THK0.5 Color Stell Plate Interior finishing | Wall – Benjamin Moore Paint Floor – SHinmyeong Flooring Wood Floor SM-OAK BR Tile – Daeje Tile District Marengo Design period | Nov. 2017 – May 2018 Construction period | May 2018 – Sep. 2019 Photograph | Park, Youngchea Structural engineer | Dream Structure Mechanical·Electrical engineer | JeongYeon Eng Fire engineer | Bokang Eng |
'회원작품 | Projects > House' 카테고리의 다른 글
| 양평주택 2021.9 (0) | 2023.02.09 |
|---|---|
| 비네토 2021.8 (0) | 2023.02.08 |
| lll:결~집 2021.8 (0) | 2023.02.08 |
| 리오넬과 루이하우스 2021.8 (0) | 2023.02.08 |
| 세덩이 안마당집 2021.8 (0) | 2023.02.08 |
