2023. 2. 9. 09:23ㆍ회원작품 | Projects/House
Yangpyeong Residence

자연 속으로
오래전 계단식 논이었던 대지는 야트막한 언덕 위에 집을 짓기 위한 터로 만들어져 있었다. 터 앞 남서 측에는 주택이 있고, 북서 측은 참나무·밤나무 숲이 있으며, 동향에는 낮은 산들이 포근하게 마을을 감싸고 있다. 서향은 먼 시야에 겹겹이 높은 산이 넓게 펼쳐져 있으며, 산과 마을 사이로 북한강이 반짝이며 흐른다. 산과 강, 마을과 작은 밭들은 자연의 아름다움과 정겨운 삶의 모습을 본연 그대로 보여주고 있다.
도심 속 아파트에서 30년을 살아왔던 건축주는 이 지역에서 옛 시골집 전원생활을 할 수 있을 것 같았고, 2020년 초 코로나19로 세상이 다소 어수선한 와중 조그만 집을 지어 자연 속으로 돌아올 결심을 하게 되었다. 건축주는 이른 아침 따스한 햇빛이 건물 내로 깊숙이 스며들고, 한낮에는 창들을 통해 밝은 빛이 비치면서 주변 풍경이 쏟아져 들어오는 모습을 상상했다. 늦은 오후에는 신선한 바람과 함께 서산마루에 물들어 가는 저녁노을을 보고 싶어했다.
공간, 그리고 미니멀 라이프
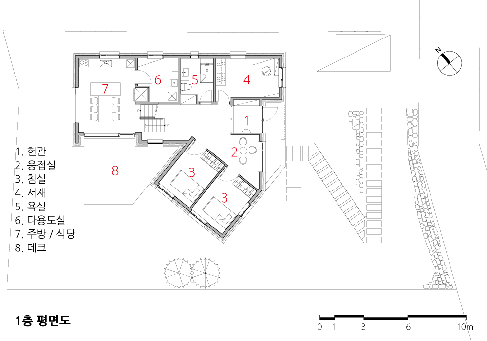
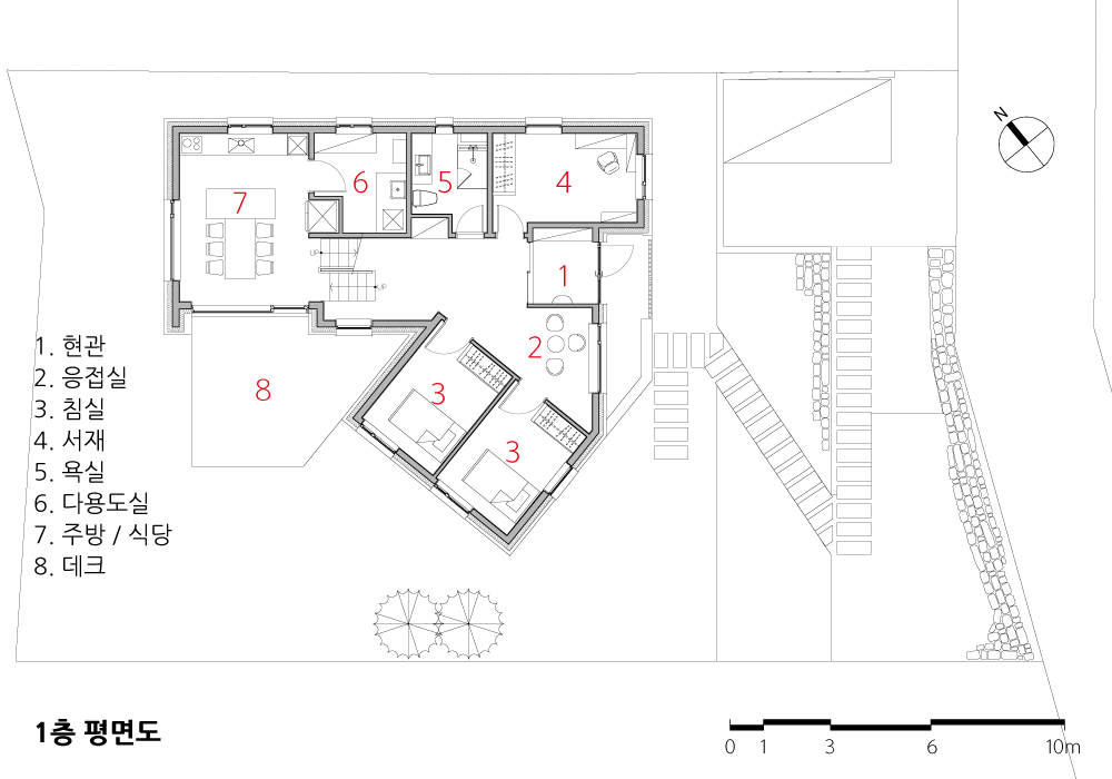
주변의 지형적 조건과 마을의 형성 과정, 이웃과의 개방성을 고려하여 건물의 위치, 높이와 방향이 결정되었다. 대지는 부지가 정리되기 전의 모습을 일부라도 복원하기 위하여 도로에서부터 전면 출입구까지 완만한 경사의 램프를 설치하였고, 북서 측 야산 숲 가까이에 있는 식당과 주방 부분의 바닥을 건물 전면부 바닥보다 1미터 높였다.
대지 주변의 자연을 닮은 조각 형태의 미니멀한 실용적 건물은 간결한 선의 조화로 건물 전체에 통일감을 주고, 4면에 펼쳐진 산·강·마을·하늘을 담는 갤러리 같은 공간으로 만들어졌다. 코로나19가 만든 거리두기의 생활과 성찰적 삶의 태도를 온전히 실천할 수 있는 공간이기도 하다. 건물의 모습과 외벽의 질감, 색채는 계절과 날씨, 시간에 따른 빛과 그림자, 그리고 세월과 함께 서서히 고색으로 바래는 외벽 자재들에 의해 지속적으로 변한다.
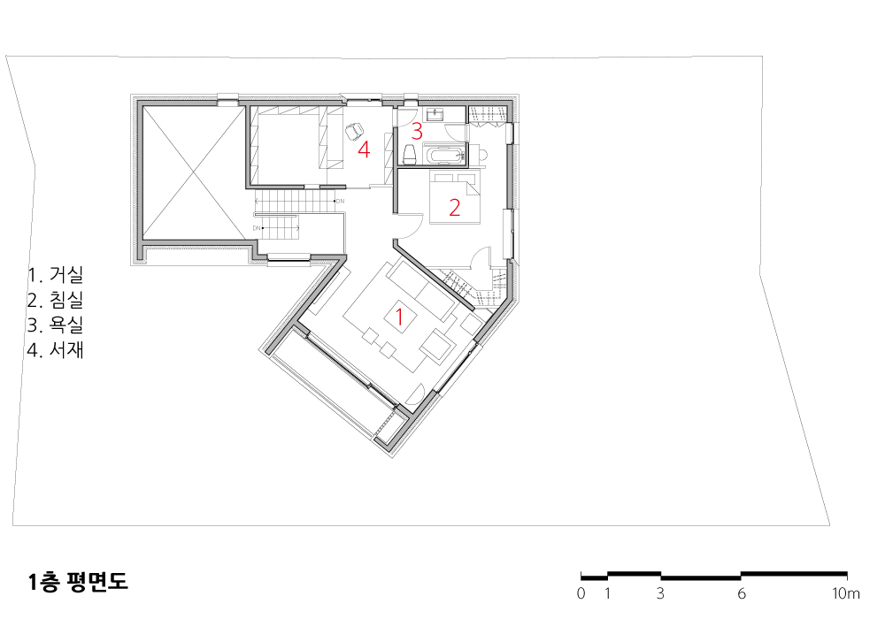
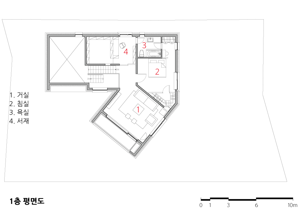
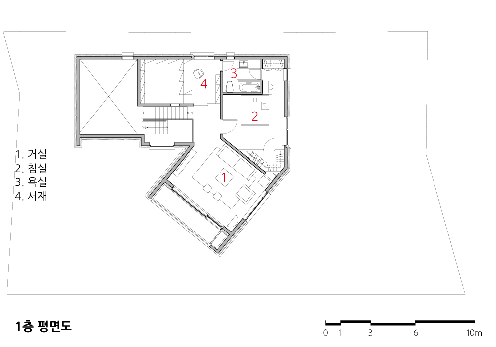
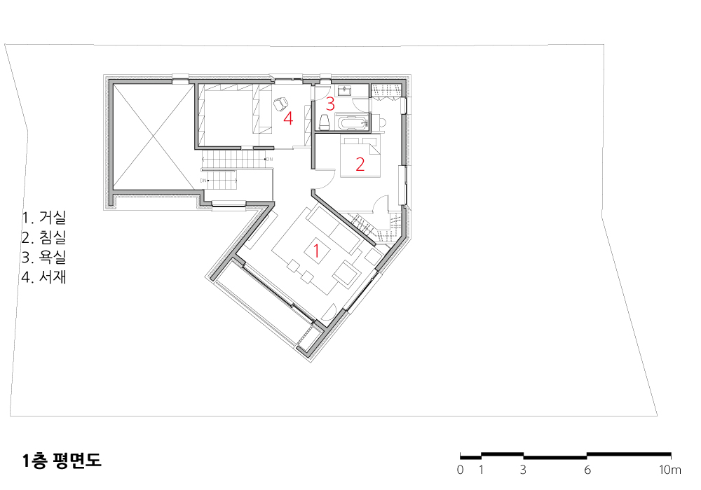
남동향에서 북서향으로 가로지르는 건물의 중심축은 수평, 수직으로 비워져 있으며 집의 성격을 보여주는 과정적 공간이다. 출입구에서부터 2층 거실까지의 비워진 내부 공간은 현관, 복도, 응접실, 계단의 주 동선을 따라 빛과 풍경, 스케일 변화에 의한 다양한 공간의 체험을 유도하며, 해가 지면 외부에 보여지는 외적 내부 공간으로 변한다.
수시로 바뀌는 대지 주변의 수채화 같은 풍경은 4면의 크고 작은 창문들을 통해 바라보이고, 눈부신 햇살은 이른 아침부터 저녁노을이 질 때까지 건물 안으로 구석구석 쏟아져 들어와 소박한 벽, 바닥, 가구들을 화려하게 장식한다. 창들은 자연의 바람을 받아들이고, 그 바람은 건물 내부에서 순환한 후 자연 배기한다.
외부 마감재들은 내구성을 우선 고려하였고, 화학적 영향보다 시간과 자연에 의해서 반응하고 변화하는 자재인 청회색 징크와 회색 전벽돌을 사용하였다. 징크판은 270밀리미터 폭의 수직 모듈로 이루어지고, 모든 벽체의 모서리, 창문, 개구부는 모듈에 맞추어 구성된다. 벽체에서 후퇴한 부분에는 적삼목을 사용하여 자연재와 인공재가 적절한 조화를 이루도록 했다. 외벽체는 490밀리미터 두께로서 단열성을 높이고, 깊게 파여진 창문들에 의해서 건물의 조각적 형태가 강조되었다. 내부는 흰색 페인트와 벽지를 천정과 벽체에 사용하였고, 계단, 창호, 가구들은 건물의 단순성, 경제성을 고려하여 간결하고 절제된 디테일을 적용하였다.

Into the nature
The land, which was once a paddy rice field, was built to build a house on a low hill. In front of the site, there are houses on the southwest side, oak and chestnut forests on the northwest side, and low mountains surround the village in the east. On the west side, mountains with high layers spread wide in the long-distance, and the Bukhangang river flows between the mountains and the village. The mountains, rivers, and small fields show the beauty of nature and warm life in natural shape.
After living in an apartment in the city for 30 years, the client seemed that it's possible to have a countryside life in an old country house. In early 2020, the world was somehow rumpled with the COVID-19 crisis. The client decided to return to nature. The client imagined warm sunlight shine deep into the building in the early morning and bright light shining through windows in the middle of the day, pouring in surrounding landscapes. In the late afternoon, the client wanted to see the sunset with the peak of the west mountain and fresh wind.
Space, and minimal life
The building's location, height, and direction were decided by considering the geographic condition of the surrounding area, the way that the village was formed, and openness to the neighbors. The gentle ramp was installed from the road to the front entrance to restore the appearance of the land before clearing the site and raised the restaurant and kitchen sections floor near the northwest hill forest by one meter above the front floor of the front floor the building.
The minimal practical building, which resembles nature around the site, is designed as a space that resembles a gallery that provides a sense of unity throughout the building with the harmony of simple lines and holds mountains, rivers, villages, and sky on four sides. It is also a place to perfectly practice the social distancing and reflective life attitude due to the COVID-19 crisis. The appearance, texture, and color of the building's exterior walls are constantly changing by the season and weather, the light and shadow, the slowly fading exterior wall over time.
The central axis of the building, which crosses from the southeast to the northwest, is horizontally and vertically empty and is a space in a process that shows the characteristics of the house. The empty interior space from the entrance to the living room on the second floor leads to the various experiences of light, scenery, and scale changes along the main path of the entrance, hallway, reception room, and stairs, and turns into an external interior space seen outside after sunset.
The building's central axis, which crosses from the southeast to the northwest, is horizontally and vertically empty and is a space that shows the house's characteristics. The open interior space from the entrance to the living room on the second floor leads to the various experiences of light, scenery, and scale changes along the main path of the entry, hallway, reception room, and stairs. It turns into an external interior space seen outside after sunset.
The landscape around the land that looks like a watercolor painting fills full through four large and small windows, and dazzling sunlight pours into the building from early morning until sunset, shining simple walls, floors, and furniture. The windows allow the natural wind, which circulates in the building and then emits naturally.
Considered durability as the first when considering external finishes, used blue-grey jinks and traditional gray bricks, materials that react and change over time due to nature rather than chemical effects. The jink plate consists of a 270mm wide vertical module, with corners, windows, and openings of all walls tailored to the module. For the place withdrawn from the wall, redwood made an apt harmony between natural and artificial materials. The exterior wall is 490mm thick, increasing insulation and emphasizing the sculptural shape of the building by deep-cut windows. White paint and wallpaper were fused for the ceilings and walls inside, and stairs, windows, and furniture had similarities with simple and moderate details considering the simplicity and economy of the building.










| 양평주택 설계자 | 이인호 _ (주)건축사사무소 이래건축 건축주 | 김인춘 감리자 | 이인호 _ (주)건축사사무소 이래건축 시공사 | 김인춘 설계팀 | 이은미, 권혜지 대지위치 | 경기도 양평군 서종면 문호리 주요용도 | 단독주택 대지면적 | 500.00㎡ 건축면적 | 119.80㎡ 연면적 | 175.50㎡ 건폐율 | 23.96% 용적률 | 35.10% 규모 | 지상 2층 구조 | 철근콘크리트구조 외부마감재 | - 건물 외벽 : 0.7mm 티타늄 징크판, 적삼목 - 창호 : THK 38mm 로이 삼중유리 - 지붕 : THK 0.7mm 티타늄 징크판 내부마감재 | - 벽 : 석고보드 2겹 위 실크벽지 - 천장 : 석고보드 위 친환경페인트 - 바닥 : 온돌마루 설계기간 | 2020. 03 - 2020. 08 공사기간 | 2020. 09 - 2021. 02 사진 | 이인호 구조분야 : SQ엔지니어링(주) 기계설비분야 : (주)노스타엔지니어링 전기·통신분야 : (주)전기설계·협인 |
Yangpyeong Residence Architect | Lee, Inho _ Erae Architects Client | Kim, Inchoon Supervisor | Lee, Inho _ Erae Architects Construction | Kim, Inchoon Project team | Lee, Eunmi / Kwon, Haeji Location | Munho-ri, Seojong-myeon, Yangpyeong-gun, Gyeonggi-do, Korea Program | Single Family House Site area | 500.00㎡ Building area | 119.80㎡ Gross floor area | 175.50㎡ Building to land ratio | 23.96% Floor area ratio | 35.10% Building scope | 2F Structure | RC Exterior finishing | 0.7mm Titanium zinc sheet, Cedar wood, 38mm Low-e triple glass Interior finishing | Painting & wall paper on gypsum board Design period | Mar. 2020 - Aug. 2020 Construction period | Sep. 2020 - Feb. 2021 Photograph | Lee, Inho Structural engineer | Kim. Sungki Mechanical engineer | Nam, Chulwoong Electrical engineer | Hyeobin consultants |
'회원작품 | Projects > House' 카테고리의 다른 글
| 빌라드루 2021.9 (0) | 2023.02.09 |
|---|---|
| 문도방 갤러리 & 주택 2021.9 (0) | 2023.02.09 |
| 비네토 2021.8 (0) | 2023.02.08 |
| 부암동 투루프 하우스 (0) | 2023.02.08 |
| lll:결~집 2021.8 (0) | 2023.02.08 |
