2023. 2. 9. 09:25ㆍ회원작품 | Projects/House
Moondobang Gallery & House

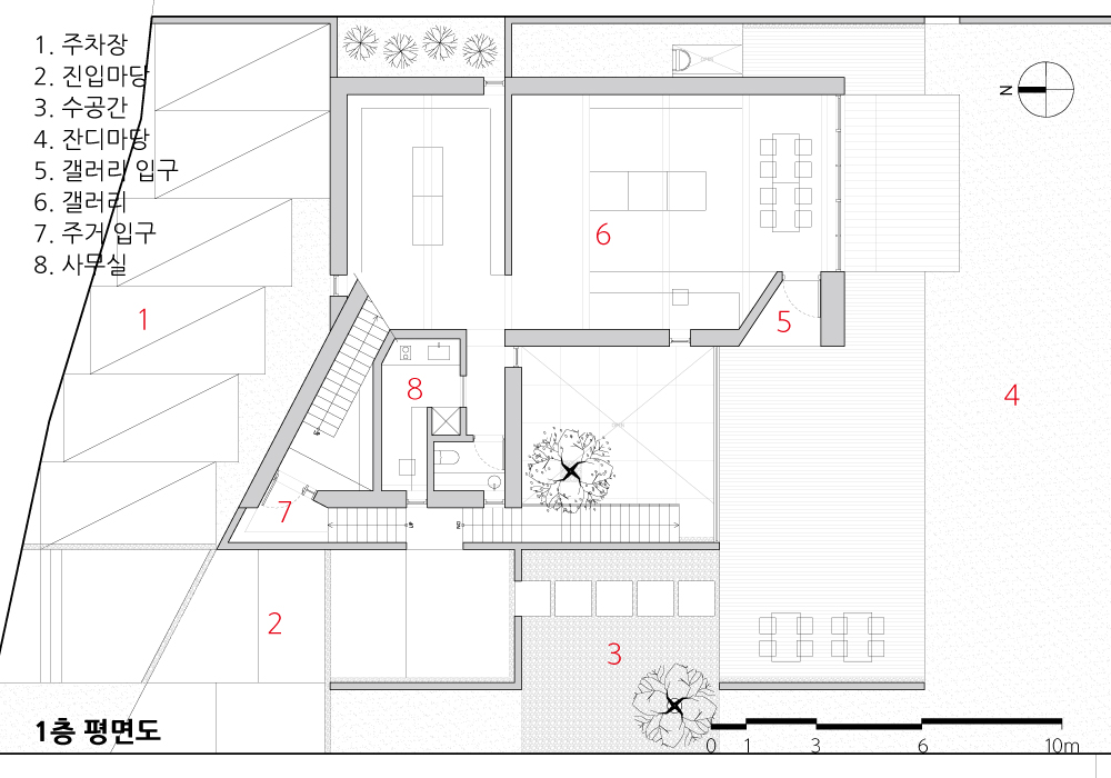
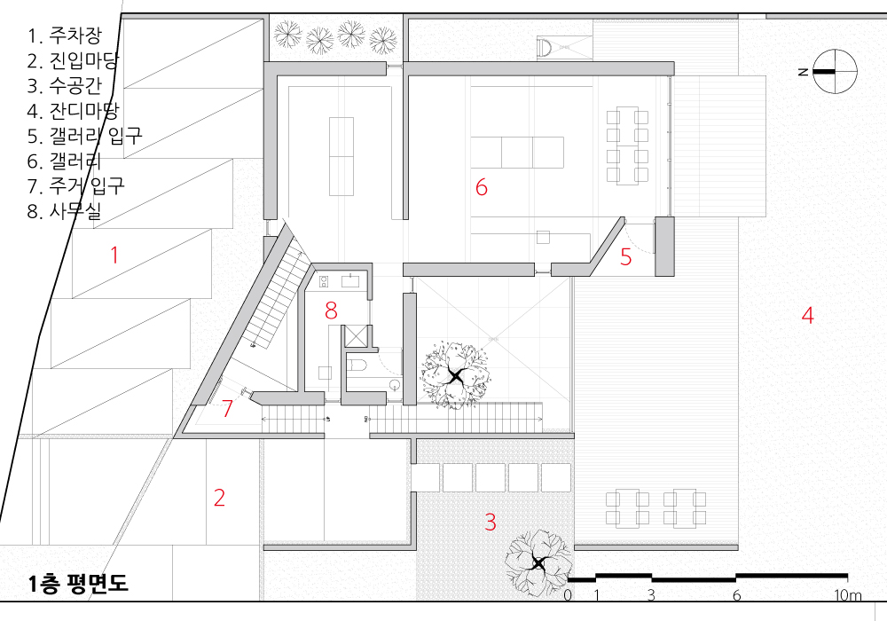
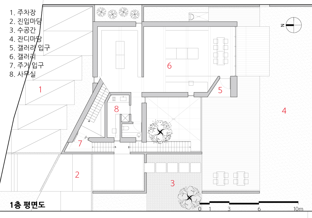
부지는 행정구역 상 신도시 분당에 속하지만, 계획도시 범위 밖에 위치한다. 주변은 단독주택과 카페, 갤러리 등이 적당히 혼재된 마을로 비교적 수준 높은 건축들이 만드는 정온한 분위기와 상업적인 활력이 혼재되어 있다.
도예, 즉, 그릇 만드는 일은 건축과 닮아있다. 고유한 형태가 중요하지만 그 안에 담김의 본질-비어있음의 이유–을 넘지 않는다. 면으로 이루어진 그릇의 경계는 안으로는 비움의 형태를, 밖으로는 그릇의 형상을 만든다. 문도방의 그릇은 가장 기본적인 색이라고 할 수 있는 흰색이 주종을 이룬다. 형태 요소를 최소화해 절제의 미학을 이룬다. 단순하지만 존재감을 분명히 드러내면서도 음식이 담기는 순간을 위한 여백을 분명하게 남겨둔다. 문도방의 그릇에 대한 인상은 좋은 건축의 그것과 같다.
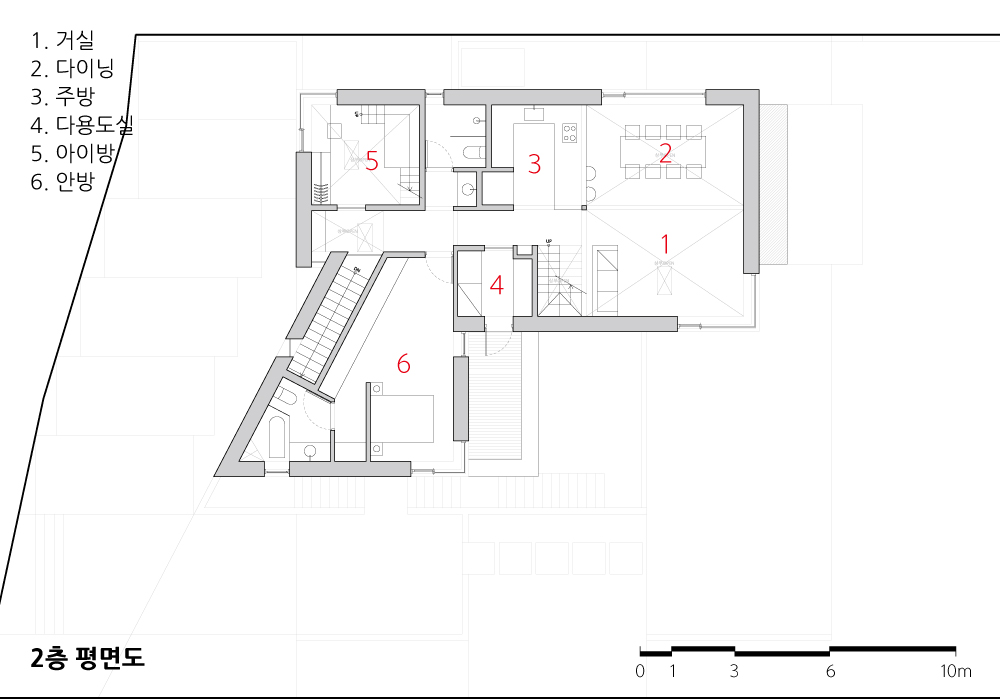
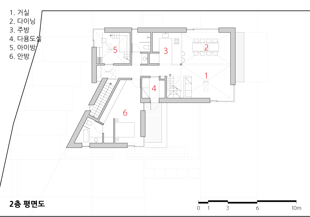
문도방 갤러리&주택의 지하층 공방과 1층 전시장은 철근콘크리트 구조, 주거공간인 2층과 다락은 박공형태의 목구조로 구현된 하이브리드 건축이다. 회색 톤 벽돌의 최종 결정은 의뢰자에게 맡겨졌다. 우리는 시멘트 벽돌이 이루는 다양한 변주보다는 기본적인 순수함에 집중하고자 했고, 두 개의 시설을 조합하는 과정에서 선택된 사선 벽면에, 기존 쌓기에 직교하는 이형쌓기를 통해 다른 성격의 표면을 만들었다. 다름은 이질적인 것의 공존보다는 같은 질서의 변주에 의해 만들어진다.

The site belongs to Bundang, the new city in the administrative district, and is located outside the planned city limits. Vicinity is a village with a moderate mix of detached houses, cafes, and galleries and is mixed with a silent atmosphere created by relatively high-quality buildings and commercial vitality.
Pottery, making bowls, and architecture have a lot in common. Although the original shape is important, they do not exceed the nature of including the reason for being empty. The boundaries of the bowl consisting of noodles shape vacancy in and a bowl outside. White is the most basic color of Moondobang's bowls. It minimizes the shape elements and accomplishes the beauty of moderation. It is simple, but it reveals its presence clearly, and it also leaves a clear space for the moment the food is served. Moondobang's impression of the bowl is the same as that of good architecture.
The underground atelier and the exhibition hall on the first floor of reinforced concrete structures, the second floor, which are residential spaces, and the lofts, which are in the form of tympanum wood of Moondobang Gallery & Residence, are a hybrid architecture. The final decision on the grey brick was on the client. We wanted to focus on the elemental purity rather than diverse variations made of cement bricks and created a different surface on the sloping wall selected to combine the two facilities, irregular brickwork which crosses at the right angles of the existing brickwork. Differences are created by giving variations of the same order rather than the coexistence of heterogeneous things.









|
문도방 갤러리 & 주택 설계자 | 조남호 _ (주)솔토지빈 건축사사무소 건축주 | 문병식, 유인향 감리자 | 조남호 _ (주)솔토지빈 건축사사무소 시공사 | (주)시스홈 종합건설 대지위치 | 경기도 성남시 분당구 금곡동 일반 33-10(대) 주요용도 | 제1종근린생활시설 대지면적 | 643.00㎡ 건축면적 | 128.57㎡ 연면적 | 386.60㎡ 건폐율 | 19.99% 용적률 | 39.07% 규모 | 지하 1층 - 지상 2층 구조 | 철근콘크리트구조 + 목구조 외부마감재 | 외벽 _ 두라스택 벽돌(S시리즈) / 지붕 _ 징크 내부마감재 | 석고보드 위 친환경수성페인트 설계기간 | 2018. 06 – 2019. 03 공사기간 | 2019. 06 - 2020. 05 사진 | 이동웅, 윤준환 구조분야 : 라임구조 기계설비분야 : 코담기술단 전기분야 : 코담기술단 |
Moondobang Gallery & House Architect | Cho, Namho _ SOLTOZIBIN ARCHITECTS Client | Moon, Byungsik / Yu, Inhyang Supervisor | Cho, Namho _ SOLTOZIBIN ARCHITECTS Construction | Syshome Construction Co., Ltd. Location | Soetgol-ro, Bundang-gu, Seongnam-si, Gyeonggi-do, Korea Program | Commercial Facilities, Single Family House Site area | 643.00㎡ Building area | 128.57㎡ Gross floor area | 386.60㎡ Building to land ratio | 19.99% Floor area ratio | 39.07% Building scope | B1 - 2F Structure | RC + Timber Structure Exterior finishing | Exterior wall _ Duastack Brick(S-serise) / Roof _ VM ZINK Interior finishing | Eco-friendly Water Based Paint Gypsum Board Design period | 2018. 06 – 2019. 03 Construction period | 2019. 06 - 2020. 05 Photograph | Lee, Dongwoong / Yoon, Joonhwan Structural engineer | LAIM Engineering Mechanical engineer | Codam Technology Group Electrical engineer | Codam Technology Group |
'회원작품 | Projects > House' 카테고리의 다른 글
| 삶가구주택 2021.10 (0) | 2023.02.10 |
|---|---|
| 빌라드루 2021.9 (0) | 2023.02.09 |
| 양평주택 2021.9 (0) | 2023.02.09 |
| 비네토 2021.8 (0) | 2023.02.08 |
| 부암동 투루프 하우스 (0) | 2023.02.08 |
