2023. 2. 10. 09:13ㆍ회원작품 | Projects/House
3-Family House

시작 : 틔움건축이 생각하는 건축 
주거형태는 바뀌고 있다. 미래가치 투자를 위한 부동산에서, 현재 생활을 중요하게 생각하는 건강한 소비문화로 변화되고 있다. 대표적인 주거문화인 아파트에서 발현되기 힘든, 개인에게 맞춤화된 거주공간을 찾는 요구 또한 많아졌다. 
틔움은 건강한 주거, 사람에게 맞추어진 주거문화를 생각한다. 보편적인 가치를 만족하는 합리적인 공간을 바탕으로 거주자의 요구를 반영한 생활공간을 지향한다. 
만남 : 건축주와 틔움의 시작점 
아파트에 길들여진 사람들, 과거와 달리 편리한 주거형태를 맛본 사람들에게 단독주거란 어떤 공간일까? 보편적 기준에 맞추어진(일정 기준 이상이 되는) 공간보다 나은 주거는 무엇일까?  
틔움건축은 이렇게 생각한다. 그 답은 일반적인 공간에서 발현되지 못한 고유한 공간 추구다. 또 개인의 삶과 생활을 담을 수 있는 맞춤 공간의 시작이다. 테일러가 만드는 거창한 맞춤정장을 의미하는 것이 아니다. 소소하게라도 현재 생활에 꼭 맞는 공간, 현재의 공간과 미래의 시간을 함께 담는 공간을 만드는 일을 의미한다. 
건축주의 두 번째 집(세곡 3가구주택)은 그렇게 시작했다. 개인에게 맞추고, 보편적 가치를 충족한다. 효용성과 값어치를 갖는다. 건축주의 투자와 시간을 소중히 담는다. 분명, 지금보다 나중에 더 좋아할 집을 만든다. 
  
대지 : 건물의 정면은 서향이다 
대지는 세곡2지구 보금자리 주택지구에 위치한다. 남-북으로는 이웃한 건물들이 자리하며, 서-동으로 열린 대지환경이다. 대지기준으로 서측에는 분주한 전면도로가, 동측에는 경관녹지가 자리한다. 
서로 다른 관계성은 각기 다른 얼굴을 요구한다. 보행자, 차량의 소통이 많은 (분주한)서측은 이웃한 건물들과 같이 정면, 즉 얼굴이 되는 게 맞다. 하지만 필터링이 되지 못하는 내·외부 관계는 거주자의 사생활을 침해한다. 그래서 틔움건축은 역설적으로 접근했다. 서측 방향과 적극적으로 관계를 맺는 이웃 건물들과 달리, 경관녹지가 위치한 동측과 적극적으로 관계를 맺는다. 또 거실, 주방을 포함한 주 생활공간을 동측에 배치, 열린 환경을 구현했다. 대신 분주한 서측은 담백한 얼굴로 정면을 완성한다. 
건축주 요구 사항 
[실제 거주하는 건축주의 부모님을 위해 아파트처럼 편리한 평면구조] 합리적이며 기능적인 평면 구성. 
[접근이 편리한 건축] 거주자의 나이를 감안, 높이차를 최소화. 주인세대를 1층에 위치시키며, 최소한의 단차가 적용된 평면. 
[외부공간을 즐길 수 있는 확장성] 평소 자연을 좋아하는 취향을 반영. 거주자 본인이 키우는 식물과 경관녹지에 펼쳐진 자연환경이 조화 속에 즐길 수 있도록 확장. 
[외형적으로 큰 집] 지구단위 지침에 따라 경사지붕을 내부로 수렴되도록 디자인. 네모 반듯한 서측 정면. 
[외부 시선에서 자유로운 내부] 서측 전면도로와 대지 사이에 적절한 이격 거리와 차폐물이 없음. 거주자 사생활 보호를 위해 서측 면의 개구부를 최소화. 
[유지관리가 편리한 집] 내·오염성이 강한 내외장재 사용. 사용부재와 자재는 하자보증 기한이 확실한 제품을 사용. 
[매력있는 임대세대] 살기 좋고 매력적인 공간을 생성. 채광을 위한 천창, 유연한 공간활용을 위한 다락과 외부데크 설계. 
건축공간의 시작 : 디자인의 대원칙 
[편리한 동선 & 건축적 산책로] 편리한 동선은 합리적이다. 불필요한 보행을 최소화한 합리적 동선은 쾌적한 거주성을 보장한다. 그럼에도 불구하고 회유(돌아가는) 동선은 공간을 풍성하게 한다. 동선의 시작, 첫인상은 건축적 산책로에서 시작한다. 
[내외부의 밀착도] 전면도로가 위치한 서측을 단단히 하고, 내외부 경계를 분명히 한다. 반대로 경관녹지가 위치한 동측은 내외부를 밀착, 모호하게 한다. 명확한 건축 지점, 서로 다른 장면 연출을 통해 거주자의 삶을 편안하게 만든다. 
[단순화하기] 미장센의 미니멀은 이야기를 충실히 보이게 한다. 현란한 기교는 없다. 건축공간을 정확히 전달하고 싶다. 기교와 짙은 화장 대신 민낯을 고스란히 드러내고 싶다. 
[기본기에 충실한 집] 겨울에 따뜻하고 여름에 시원한 집이 돼야 한다. 외부로부터 방해받지 않는 집이 돼야 한다. 낮 시간에도 조명을 켜지 않는, 일정한 조도가 확보되는 집이 돼야 한다. 
[임대세대 특화] 더하기 공간을 만든다. 일정한 조도를 유지시키는 천창을 만든다. 거주자의 다양한 생활과 이야기를 담을 수 있는 다락과 외부데크를 만든다. 
공간구성과 디자인 
[얼굴 : 미니멀 디자인의 시작] 먼저 건축주의 의도와 대지 환경, 그리고 건축사의 생각을 가득 채운다. 그리고 다시 비우기 시작한다. 버릴 수 있는 것과 꼭 있어야 할 것을 구분한다. 그렇게 정제된 디자인은 담백한 얼굴이 된다. 
[정면 : 서측 도로변 얼굴] 많은 이야기를 담아야 하기에 더 비우고, 단순화한다. 거주자의 사생활을 보호하는 막의 역할과 이웃한 건물에 비해 커 보이는 효과를 만든다. 두 개의 임대세대가 묶인 단일감은 정면성과 더불어 균질한 바탕면을 생성한다. 이 바탕 위에 전면계단을 설치, 입체감을 도드라지게 한다. 
[후면 : 동측 경관녹지 얼굴] 내외부 경계를 모호하게 만들기 위해(내외부를 밀착시키기 위해) 많은 창구를 만든다. 외부 자연환경을 내부로 유입시키도록 창문의 크기와 개수를 확보한다. 1층 내부 건축적 산책로 끝에 위치한 마루와 외부 툇마루는 막힘없이 연속된다. 다락에서 확장되는 옥상데크는 2층 임대세대에 다양한 외부 활동을 제공한다. 옥상데크에 설치된 큐블럭은 적절한 차폐와 열림을 동시에 구현하는 어휘로 적용된다. 이와 같은 전체 외형은 균질한 포세린 타일을 통해 담백하게 완성된다. 
1층 주인세대 
[동선 : 합리적인 동선+심미적인 동선] 서측에서 바로 진입하지 않고 남측으로 진입한다. 남측 진입에 대한 건축주 요청도 있었지만, 적나라하게 외부로 드러나는 출입구를 지양한 흔적이다. 현관을 따라 유입된 동선은 내부를 서-동으로 관통한다. 서-동 축의 끝, 건축적 산책로 끝에는 경관녹지를 내부로 유입시키는 차경이 내외부에 연속된 툇마루와 함께 자리한다. 현관에서 진입하여 바라본 관통 축의 끝에 픽처프레임(차경)을 놓는다. 
건축적 산책로의 좌측, 공용공간을 따라 동선은 U자로 휘어진다. 그리고 다시 서측에 위치한 부출입구로 외부와 연결된다. 거대한 U자 형태의 동선체계(서측 도로변으로 진입해서 다시 서측 도로변으로 나온다.)는 공용과 사적 영역을 구분하는 동시에 합리적인 동선을 제시한다. 또 생활에 필요한 보조동선(빨래, 분리수거, 쓰레기처리, 식자재 적재 등 원활한 주방동선 포함)을 제공한다. 
[LDK 구성 : 바깥쪽에서 안쪽으로 깊어지다] 서측에서 동측으로 내부 위계는 사적 영역으로 심화된다. 그리고 서-동 축을 따라 좌측:공용, 우측:사적 영역으로 구분된다. 
‘좌측 영역’의 첫 번째, 거주자를 위한 개인 응접실이 배치된다. 개인 응접실은 내부로 확장되는 가변적인 미닫이문으로 활용성을 높이며, 부출입구를 통해 외부로 직접 연계가 가능하다. 그다음 주방과 식당, 거실이 차례대로 배치된다. 그리고 다시 보조주방과 다용도실에서 부출입구로 연결, 편리한 생활동선을 제공한다. 동측에 설치된 전창은 경관녹지의 풍부한 자연환경을 거실로 유입시키는 창구 역할을 수행한다. 
‘우측 영역’은 서측부터 작은방, 공용욕실, 주인침실이 차례대로 배치된다. 공용욕실 내부에 거주자 나이를 고려한 매립 욕조가 설치된다. 경관녹지와 맞닿아 있는 주인침실 또한 외부 자연과 조우한다. 
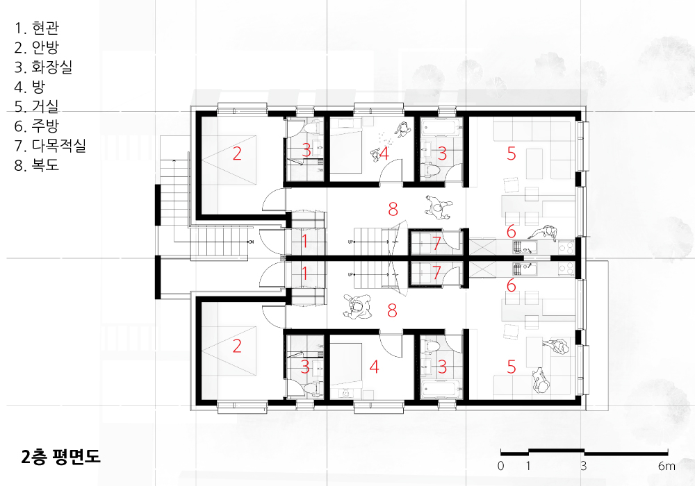
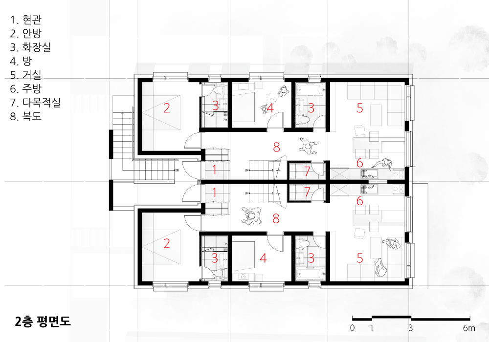
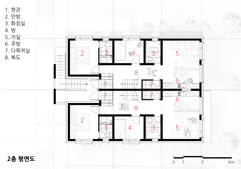
2층 임대세대 
[동선 : 동선분리+계단] 2층 임대세대와 외부를 연결하는 외부계단을 서측 도로변에 설치하여 임대거주자에게 편리성과 독립성을 제공한다. 내부로 유입된 동선은 서-동 축을 따라 각 실이 연계되도록 복도와 계단으로 구현된다. 
[LDK 구성 : 유연하게 확장하다] 열림과 닫힘, 내외부 관계를 고려하여 동측에 공용공간(주방, 거실)을 배치한다. 방향에 따라 공용욕실, 작은방, 주인침실로 구성된다. 내부 계단이 위치한 홀은 2층 높이의 층고와 천창을 통해 쾌적한 거주환경을 확보하고, 옥상데크와 다락을 연결하는 구심점으로 제공된다. 내부 계단 하부에는 김치냉장고, 세탁기, 수납창고가 위치한다.
어휘의 활용 
[역전된 경사지붕] 일반적인 박공지붕의 형태와 달리, 내부로 수렴되는 형태이다. 내부 공간활용과 고유한 외관 디자인을 위해 적용된다. (실용적인 다락공간 확보, 천창 구현 / 균질한 표피와 정제된 직육면체가 생성하는 정면성 구현) 
[천창과 다락] 임대세대를 위한 특화방안이다. 옥상데크와 더불어 거주자의 다양한 생활을 수용하는 다락을 제공한다. 천창을 통해 유입된 간접광은 내부 조도 환경을 일정하게 유지시켜 준다. 
[큐블럭] 열림과 닫힘을 반복적으로 표현하는 재료는 차폐 효과와 거주자의 막힘없는 시선을 도와준다. 
[외부 계단] 기능을 위한 전면 배치, 전체 외형의 입체감을 불어 넣는 디자인 요소로 적용된다. 
[건축적 산책로 : 1층과 2층] 합리적인 동선체계와 더불어 심미적 동선을 구현한다. 1층 동측에 위치한 차경(픽처프레임)은 보행의 즐거움과 자연환경을 내부로 유입시키는 적극적 어휘로 삽입된다. 천창이 설치된 2층 내부 계단은 다락과 옥상데크 이동을 위한 즐거운 동선을 제공한다. 1층 공용욕실에 위치한 매립 욕조는 연로한 건축주를 위한 배려다. 
[재료의 물성] 외장재로 적용된 포세린 타일은 전체 맥락을 일관성 있게 유지한다. 내·오염성 및 내구성 확보와 균질한 재료의 물성이 특징이다.

Start : The architecture that TIUM Architects think of 
Housing is changing. From real estate for future value investment in a healthy consumption culture that values life of now. There has also been an increasing demand to find a residential space customized to individuals, which is difficult to be found in apartments, a representative residential culture.  
TIUM aims a healthy housing and a residential culture customized to people. Based on a reasonable space that satisfies universal values, we look for a living space that reflects the needs of residents.  
Meeting : The starting point of the client and TIUM 
What kind of space is a single residence for those who are used for apartments, those who have tasted a sip of convenient housing unlike in the past? What housing is better than a space that meets universal standards (which is above a certain standard)?   
This is what TIUM Architects think. The answer is the pursuit of a unique space that has not been expressed in a general space. It is also the beginning of a customized space that can embrace an individual life and living. This doesn't mean a fabulous customized suit made by a tailor. This means creating a space that fits the present life, a space that has the present space and future time together, although it may not be huge.  
The client's second house (SEGOK MULTI-FAMILY HOUSE) started that way. It adapts to individuals and meets universal values. It has utility and value. It carefully embraces the investment and time of the client. Obviously, we build a house that people will like more later, than now.  
  
Land : The façade is facing west 
The land is located in the Bogeumjari Housing district of Segok2. Neighboring buildings are located in the north and south, and the land is open to the west and east. There is a busy frontal road on the west, and the green landscape on the east.  
Different relationships ask for different faces. It is true that the (busy) west side, where pedestrians and vehicles come and go a lot, should become the front, the face, like neighboring buildings. However, the relationship between interior and exterior that cannot filter violates the privacy of residents. Therefore, TIUM Architects approached in a new angle. Unlike neighboring buildings that actively relate to the west side, the building relate to the east side where the green landscape is located. Moreover, the main living space including living rooms and kitchens, was placed on the east side to realize an open environment. But, the busy west side completed the façade with a light face.  
Client's request 
A floor structure that is as convenient as an apartment for the client's parents who are actually living : rational and functional floor design. 
Easy-to-access architecture: Minimizing the height difference taking the age of the resident into consideration. The floor plan with the minimum step applied, with the owner's household located on the first floor. 
Expandability to enjoy outside : Reflecting the client's love of nature. Expanded so that residents themselves can enjoy the plants they grow and the natural environment in the landscape green area in harmony. 
Externally large house: Design so that the inclined roof converges to the inside, according to the district unit guidelines. A square, straight west façade. 
Interior free from being exposed to outside : Appropriate separation distance between the west front road and the ground, and no cover. Minimize the opening on the west side to protect the privacy of residents. 
House with convenient maintenance : Use of highly fouling resistant interior and exterior materials. Use of products with a definite warranty period for use materials and resources. 
Attractive tenant households : Created a space that is good and attractive to live in. Designed ceiling for lighting, attic and exterior deck for flexible space utilization. 
Start of the building space : Design principles 
[Convenient pathway & architectural trail] Convenient pathway is rational. A rational pathway that minimized unnecessary walking provides quality dwelling. Nevertheless the circular (returning) pathway makes the space abundant. Starting point of the pathway, the first impression starts from the architectural trail.  
[Closeness of the interior and exterior] Frontal road makes the west side hard, and clearly shows the boundary of the interior and exterior. On the other hand, the east side where the green landscape is located combining the interior and exterior, making the border ambiguous. The clear architectural point, and the different scenery make the life of the resident comfortable.  
[Simplify] Minimal of Mise-en-Scène emphasizes the story. There is no flashy technique. We want to clearly show the architectural space. Instead of technique and make the story heavy make-up, we want to show the naked face.  
[Fundamental House] The house should be warm in winter and cool in summer. It should be a house that is intact from the exterior. We want the house to not use lighting in the daytime, where a certain amount of luminance is provided.  
[Specialized tenant] We should make an added place. We make a skylight where certain luminance is maintained. We make an attic and outer deck that can embrace diverse life and story of residents.  
Space organization and design 
[Face : Start of the minimal design] First, fully fill in the purpose of client, land environment, and the thoughts of architects. And again, start emptying. Determine that can be abandoned and that is necessary. And the refined design becomes a naked face.  
[Façade : face facing west road] Empty more and simplify to embrace more stories. It works as a barrier to protect the privacy of parents and make it look taller than neighboring buildings. The sense of unity and being front creates an even background. We installed a frontal stairs on this background, and emphasized three-dimensional effect.  
[Back : facing east green landscape] Installed many windows are made to obscure the internal and external boundaries (to keep them in close contact). The size and number of windows are secured to let the external natural environment into the interior. Located at the end of the architectural walkway in the first floor, the floor and the outer toenmaru are continuous without any blockage. The rooftop deck, which expands from the attic, provides a variety of external activities for tenant households on the second floor. The Q-block installed on the rooftop deck is working as a vocabulary that simultaneously implements appropriate shielding and opening. This overall appearance is completed lightly through even porcelain tiles. 
First floor owner's household 
[Pathway : rational + aesthetic] Rather than entering directly from the west, enters the south. There was also a request from the client to enter from the south, but it is a request of avoiding the entrance that is exposed to the outside. The pathway introduced along the porch passes through the interior from west to east. At the end of the west-east axis and at the end of the architectural trail, there is a continuous toenmaru inside and outside the landscape green area. A picture frame (borrowed scenery) is placed at the end of the axis viewed from the entrance. 
On the left side of the architectural trail, the pathway is bent in a U shape along the public space. And again, it is connected to the outside through the side entrance located on the west side. The huge U-shaped pathway structure (entering the west side of the road and coming back to the west side) divides public and private areas while present reasonable pathway It also provides auxiliary pathways necessary for daily life (including smooth kitchen pathways such as laundry, recycling, garbage disposal, and loading of food materials). 
[LDK organization : Deepens from outside to inside] From the west to the east, the internal hierarchy deepens into the private realm. And along the west-east axis, it is divided into left: public, right: private areas. 
The first private reception for residents in the 'left area' is placed. Personal reception increase usability through variable sliding doors that expand into the interior, and can be directly connected to the outside through the side entrance. Then, the kitchen, dining room, and living room are arranged in order. And again, it is connected from the auxiliary kitchen and the multipurpose room to the side entrance to provide convenient living pathways. The frontal window installed on the east side serves as a window for introducing the rich natural environment of the landscape green area in the living room. 
In the 'right area,' small room, residence bathrooms, and owner's bedrooms are arranged in order from the west. A landfill bathtub will be installed inside the residence bathroom taking the age of the residents into consideration. The owner's bedroom, which is connected to the green landscape, also encounters external nature. 
Second floor tenant 
[Pathway : circulation pattern + stairs] Provides sense of independence by installing the exterior stairs that connect the second floor tenant households and exterior on the west roadside. The pathway connected to the inside is implemented as corridors and stairs so that each thread is connected along the west-east axis.  
[LDK organization : flexibly expands] A public space (kitchen, living room) is arranged on the east side considering the opening, closing, and internal and external relationships. Depending on the direction, it is composed of a residential bathroom, a small room, and an owner's bedroom. The hall, where the inner stairs are located, is provided as a center point connecting the rooftop deck and the attic to secure a pleasant living environment through a two-story floor height and ceiling. A kimchi refrigerator, washing machine, and warehouse are located under the inner stairs. 
Words used 
[Reverse pitched roof] Unlike the general perforated roof, it converges into the interior. It is applied to the internal space utilization and unique exterior design.  (Secure practical attic space, implementing skylight/implementing even external face and sense of front created by refined rectangle) 
[Skylight and attic] Specialty for tenant households. Along with the rooftop deck, it provides an attic that accommodates the diverse lives of residents. Indirect light introduced through the ceiling keeps the internal illumination environment. 
[Q Block] The material that repeatedly expresses opening and closing has a shielding effect and keeps residents' unblocked. 
[Exterior stairs] Installed at the front for functions, and works as a design element that gives the three-dimensional effect of the entire appearance. 
[Architectural trail : first and second floor] It implements aesthetic and reasonable pathway. Borrowed scenery (picture frame), located on the east side of the first floor, working as an active vocabulary that introduces the joy of walking and the natural environment into the interior. The stairs in the second floor with skylight provide a pleasant pathway for the attic and rooftop deck. The landfill bathtub, located in the public bathroom on the first floor, is a consideration for the elderly owner. 
[Property of material] Porcelain tiles applied as exterior materials maintain a consistent overall context. Securing fouling resistant, durable and even material properties is its' own character.








| 삶가구주택 설계자 | 차석헌 _ 건축사사무소 틔움 건축주 | 오형주, 정점숙 감리자 | 차석헌 _ 건축사사무소 틔움 시공사 | 건축주 직영공사 설계팀 | 강성진, 이동진 대지위치 | 서울특별시 강남구 밤고개로26길 13-5 주요용도 | 다가구주택 대지면적 | 265.00㎡ 건축면적 | 157.48㎡ 연면적 | 254.42㎡ 건폐율 | 59.43% 용적률 | 96.01% 규모 | 2층 구조 | 철근콘크리트구조 외부마감재 | 외부용 포셀린타일(유니퍼) 내부마감재 | 석고보드 위 수성페인트, 원목마루, 타일 설계기간 | 2016. 06 – 2016. 09 공사기간 | 2016. 08 – 2017. 06 사진 | 이한울 구조분야 : 시너지구조엔지니어링 기계설비분야 : (주)코담기술단 전기분야 : (주)코담기술단 소방분야 : (주)코담기술단  | 
3-Family House Architect | Cha, Seokheon _ TIUM Architects Client | Oh, Hyeongju / Jung, Jeomsuk Supervisor | Cha, Seokheon _ TIUM Architects Construction | Direct undertaking work Project team | Kang, Seongjin / Lee, Dongjin Location | 13-5, Bamgogae-ro 26-gil, Gangnam-gu, Seoul, Korea Program | Multi Family House Site area | 265.00㎡ Building area | 157.48㎡ Gross floor area | 254.42㎡ Building to land ratio | 59.43% Floor area ratio | 96.01% Building scope | 2F Structure | RC Exterior finishing | Outdoor porcelain tile Interior finishing | Water paint finish above gypsum board, Wood flooring, Tile Design period | Jun. 2016 - Sep. 2016 Construction period | Aug. 2016 - Jun. 2017 Photograph | Lee, Hanul Structural engineer | Synergy Engineering Consultants Mechanical engineer | Codam Engineering Inc. Electrical engineer | Codam Engineering Inc. Fire engineer | Codam Engineering Inc.  | 
'회원작품 | Projects > House' 카테고리의 다른 글
| 광주 운림동 추사채 2021.10 (0) | 2023.02.10 | 
|---|---|
| 아우름725 2021.10 (0) | 2023.02.10 | 
| 빌라드루 2021.9 (0) | 2023.02.09 | 
| 문도방 갤러리 & 주택 2021.9 (0) | 2023.02.09 | 
| 양평주택 2021.9 (0) | 2023.02.09 | 
