2023. 2. 8. 09:21ㆍ회원작품 | Projects/House
Vigneto

아파트값이 치솟으면서 도심 속 협소(상가)주택에 대한 관심이 조금씩 높아져 가고 있다. 아파트는 공동주택의 일부를 내가 소유하고 있는 것이지만, 상가주택 또는 단독주택은 내 땅과 내 건물을 소유할 수 있다는 장점을 가지고 있다. 심지어 내 생활방식에 맞게 짜인 공간과 동선을 만들 수 있고, 임대수익창출 또는 직영을 통한 직주근접의 경제활동이 가능하다. 물론 도심 속 일정 규모의 대지를 구매하고, 건축을 하는 비용은 만만치 않다. 하지만 천정부지로 오른 아파트 가격과 공동주택 생활에서 오는 여러 가지 스트레스에 대한 대안으로 협소한 땅을 사서 협소한 건물을 짓고 사는 사람들이 늘어나고 있다.
이탈리아에서 요리를 공부하고 돌아온 건축주 부부도 부산 광안리에 위치한 협소한 대지를 구매하고, 자신들의 보금자리와 작은 이탈리안 레스토랑을 운영할 수 있는 상가주택을 의뢰하기 위해 우리를 찾아왔다.
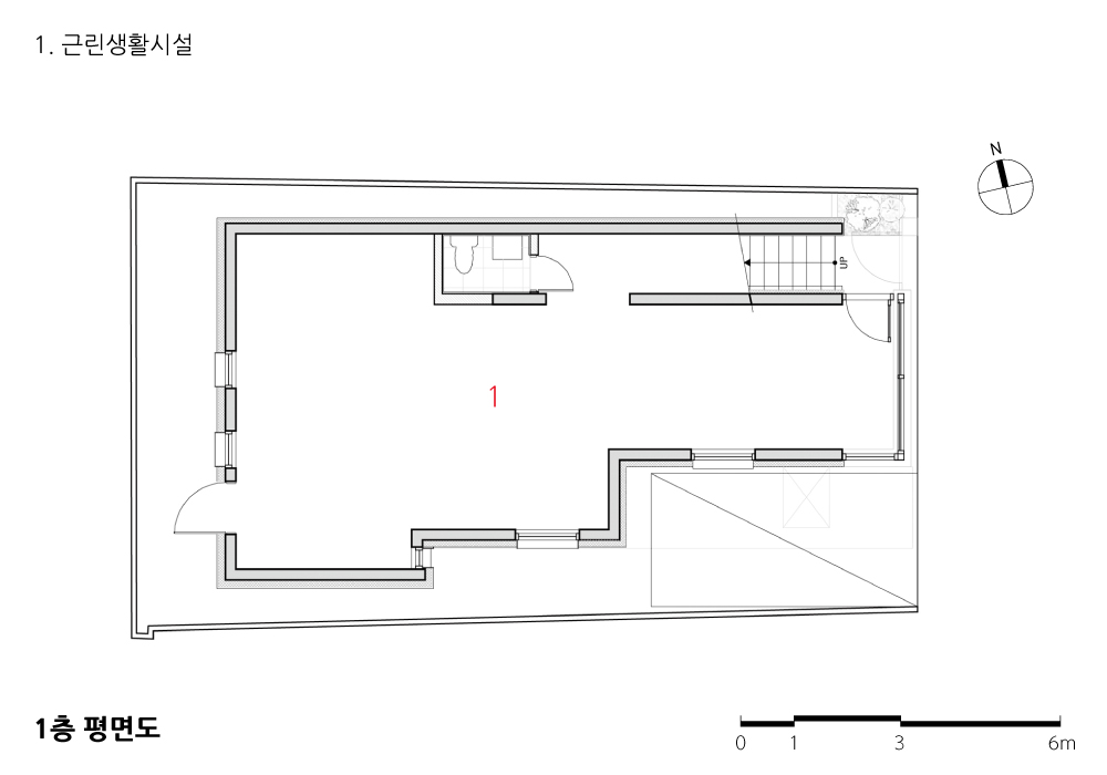
비네토 프로젝트는 밀도 높은 도시와 협소한 주거가 만나는 지점에 대한 고민과, 협소한 공간을 어떻게 하면 풍요롭게 만들까에 대한 고민으로 시작되었다.
출입구와 계단실, 2층 발코니와 3층 베란다의 좁은 틈새들을 비집고 들어가서 배치된 조경공간은 그러한 해결책의 하나인 동시에, 이 건물만이 가지는 입면의 아이덴티티를 부여해 주고 있다.
바깥과 안을 자연스럽게 분리하고 연결하는 역할을 하는 조경은, 도시와 주거의 경계에서 내부에서 창을 통해 보이는 풍경이 되고, 고밀도 도심 주거지역에서 쉽게 일어날 수 있는 외부로부터의 프라이버시 침해를 완화시키는 역할을 한다.
협소주택 프로젝트에서 가장 중요한 점이라고 할 수 있는 것은 선택과 집중인데, 건축주 부부는 그러한 면에서 상당히 유연성을 갖고 예산을 고려하고, 자신들의 라이프스타일에 필요한 만큼의 공간만을 요구했다. 주 생활공간인 2층 거실의 규모를 좀 더 넓히기보다는 쓸모 있는 크기의 발코니를 계획하였고, 그로 인해 또다시 프라이버시를 보호하는 켜를 만들었다. 이는 실내에서만 한정되어 있는 거주자의 행위를 외부로 확장시켜주고 있다. 건축주들의 행위는 결국 올리브와 여러 가지 허브를 조경공간에서 키우고, 1층 레스토랑의 유기농 식재료로 쓰는 것으로까지 확장되었다.

Skyrocketed apartment price has led the gradually increasing interest in urban small(flat with shops) houses. In an apartment, a part of a multi-house is owned by people, but the commercial house or detached house has the advantage of owning both the land and the building. Moreover, it is possible to create a space and circulation that is structured according to one's lifestyle and allows economic activity through rental income generation or direct management. Of course, the cost of purchasing certain sized land and building the city is huge. However, people are increasingly purchasing the small land and building the small building as an alternative against many stresses from skyrocketed apt price and the multi-house life.
The building owner couple who studied cooking in Italy and returned visited us to purchase the small land located in Gwangan-ri, Busan, and commission the flat with shops where they can reside and operate the small Italian restaurant.
Vineto project started from the thought about the point where a dense city meets a narrow dwelling, and how to enrich a small space.
The landscaping space arranged through the narrow gaps of the entrance and stairwell, the balcony on the 2nd floor, and the veranda on the 3rd floor is one such solution. It gives the identity of the elevation unique to this building at the same time.
The landscape, which plays a role in connecting the inner and outer space naturally, becomes the scenery seen through the window from the inner boundary of the city and dwelling and plays a role to alleviate the privacy infringement that can quickly occur in the highly-dense urban region.
The most crucial thing in a small house project is selection and focus. So, the building owner couple considered the budget with a lot of flexibility and requested only the space for their lifestyle. We planned the usable sized balcony rather than extend the 2nd-floor living room, which is the primary living space, and created the frame that can protect privacy. This can develop the behavior of residents restricted in indoor-only into the external area. The behavior of building owners grew into growing olive and many herbs in the landscape space and using organic food ingredients in the restaurant on the first floor.









| 비네토 설계자 | 최새벌 _건축사사무소 1458 건축주 | 비네토 감리자 | 김여경 시공사 | (주)엔원종합건설 설계팀 | 조정은, 박현주 대지위치 | 부산광역시 수영구 수영로522번길 55 주요용도 | 단독주택 + 제2종근린생활시설 대지면적 | 121.70㎡ 건축면적 | 72.98㎡ 연면적 | 181.46㎡ 건폐율 | 59.96% 용적률 | 149.10% 규모 | 지상 3층 구조 | 철근콘크리트구조 외부마감재 | 벽돌타일, 노출콘크리트 내부마감재 | 타일, 자작나무합판, 실크벽지, 강마루 설계기간 | 2019. 06 - 2019. 11 공사기간 | 2020. 02 - 2020. 12 사진 | 남상인, 김명구, 변종석 구조분야 : 모아구조 계설비분야 : 광명토탈엔지니어링 전기분야 : 광명토탈엔지니어링 소방분야 : 광명토탈엔지니어링 |
Vigneto Architect | Choi, Saebeol_ Architecture Label 1458 Client | Vigneto Supervisor | Kim, Yeokyung Construction | N1 Project team | Jo, Jeongeun / Park, Hyunjoo Location | 55, Suyeong-ro 522beon-gil, Suyeong-gu, Busan, Korea Program | Single Family House + Commercial Facilities Site area | 121.70㎡ Building area | 72.98㎡ Gross floor area | 181.46㎡ Building to land ratio | 59.96% Floor area ratio | 149.10% Building scope | 3F Structure | RC Exterior finishing | Bricktile, Concrete Interior finishing | Tile, Plywood, Wallpaper Design period | Jun. 2019 - Nov. 2019 Construction period | Feb. 2020 - Dec. 2020 Photograph | Nam, Sagnin / Kim, Myunggu / Byeon, Jongsuk Structural engineer | Moa Mechanical engineer | Kwangmyeong Electrical engineer | Kwangmyeong Fire engineer | Kwangmyeong |
'회원작품 | Projects > House' 카테고리의 다른 글
| 문도방 갤러리 & 주택 2021.9 (0) | 2023.02.09 |
|---|---|
| 양평주택 2021.9 (0) | 2023.02.09 |
| 부암동 투루프 하우스 (0) | 2023.02.08 |
| lll:결~집 2021.8 (0) | 2023.02.08 |
| 리오넬과 루이하우스 2021.8 (0) | 2023.02.08 |
