2023. 2. 9. 09:21ㆍ회원작품 | Projects/Public
HAKROK LIBRARY

현대사회의 도서관과 빛
학록도서관은 민간 기업이 군사교육기관에 건축물 기증을 제안하면서 시작되었다.
공공도서관 프로젝트가 주어진 프로그램과 면적 조건하에서 진행하는데 비해, 이 프로젝트는 프로그램과 공간에 대해 자유롭게 제안할 수 있는 좋은 기회가 되었다.
프로젝트를 진행하면서 ‘무지와 어두움의 낮은 곳에서 지혜와 빛의 높은 곳으로 올라감’을 구현한 미켈란젤로의 메디치 도서관 개념을 현대적으로 재구성해보고 싶었고, 복합적 문화공간으로서의 현대적 도서관에서 ‘빛’은 어떻게 내부 공간과 관계를 맺을 것인가에 대한 건축적 질문에서 시작하게 되었다.
계획부지는 앞뒤로 2.4미터 정도 레벨 차이가 나며, 좌우로 아름드리나무들이 자리 잡은 좋은 자연환경을 가진 땅이었다. 이러한 조건은 빛으로부터 충만한 상징적 중심공간을 두고, 2.4미터의 높이차를 이용한 스킵 플로어가 중심공간을 휘감으며 상승하는 연속적 공간구조로 발전되었다.
중앙홀은 수직적 빛의 공간이면서, 사선적 흐름의 동선 공간이고, 주변의 자연경관을 시각적으로 경험하는 공간이 된다.
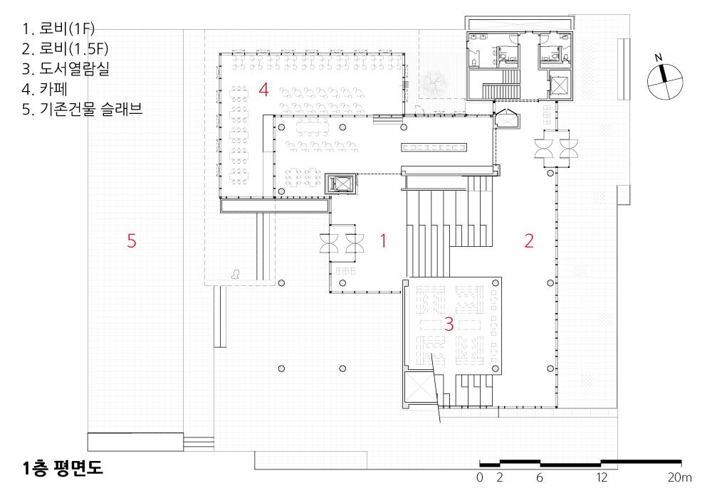
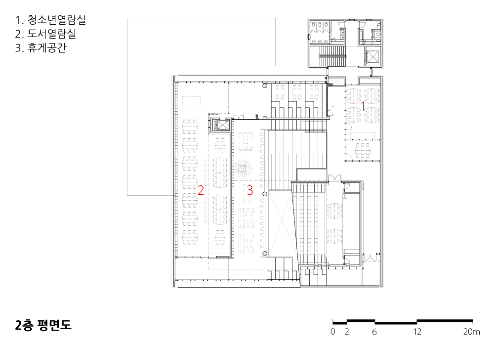
프로그램의 관점에서 바라보면, 1층 카페테리아에서 중앙의 다목적 전시홀을 거쳐 개방형 열람공간과 휴게공간, 그리고 정적인 열람공간과 계단식 열람공간으로 이어진다. 반투명 유리로 구성된 하늘계단을 따라 시네라이브러리를 경험하고, 옥상정원으로 나오면 광대한 자연 경관과 마주하며 공간의 이야기는 완결된다.
외부의 형태는 건축 단면이 지형과 만나서 만들어내는 흐름을 직접적으로 전달한다. 스킵플로어의 운동감이 입면으로 드러나며, 투명한 저층부와 부유하는 수평 볼륨의 대비는 진입부의 깊이감과 함께 내부 공간으로 시선이 집중될 수 있는 장치가 된다.
건축 외적인 관점에서 학록도서관은 군대사회와 지역사회에 영향을 끼칠 수 있는 잠재력을 지니고 있다. 전국에서 훈련을 위해 방문하는 군 간부들이 학록도서관을 계기로 군부대 내에도 좋은 문화시설이 들어설 수 있다는 인식이 일어나고, 개별 부대 내의 복지·문화시설들이 개선되는 계기가 되는 프로젝트이길 바란다. 또한, 문화 시설이 부족한 인근 지역사회와 공유되는 도서관으로 영역이 확대되기를 기대해 본다.

Library and light of the modern society
Hangnok Library started when a private company proposed a building donation to a military education institution.
When the public library project was carried out under given program and area conditions, this project became an excellent chance to propose programs and space freely.
During the project, we wanted to modernize Michelangelo's concept of the Medici Library, which embodied 'from a low place of ignorance and darkness to a high place of wisdom and light.' Thus, we started with the architectural question of relating to a modern library's interior space as a cultural complex.
The planned site is 2.4 meters from front to back, and it was a land with an excellent natural environment where armful trees are located side to side. The condition developed into a continuous spatial structure. Using a height difference of 2.4 meters, a skip floor covers the central space and rises, with a main symbolic area full of light.
The central hall is a vertical space of light, a pathway space of diagonal flow, and a place to experience the surrounding scenery visually.
The space program has a continuing spatial storyline; from the first floor's cafeteria through a central multi-purpose exhibition hall, it leads to an open reading space, a resting place, a static reading, and a step reading zone.
This journey ends with the roof garden with vast nature through the cine-library along the translucent glass sky stair.
The external shape directly tells the flow created by the architectural cross-section meeting the terrain. The movement of the skip floor is revealed as elevation, and the contrast between the transparent lower class and the floating horizontal volume becomes a method that allows attention to be focused on the interior space and the depth of the entry.
From a perspective other than architecture, Hangnok library has a potential that can affect the military society and local society. We hope that military officials visiting for training from all over the country will know that good cultural facilities can be built in the military base through the Hangnok library. In addition, welfare and cultural facilities in individual units will be improved. Moreover, we hope that the area of the library will be expanded to share with nearby communities that lack cultural facilities.








| 학록도서관 설계자 | 이상대 _ (주)스페이스연 건축사사무소 건축주 | (주)풍산 / 육군 부사관 학교 감리자 | 이상대 _ (주)스페이스연 건축사사무소 시공사 | 금성건설(주) 설계팀 | 이병석, 여윤정, 허영강, 서세희, 주영찬, 연웅희 대지위치 | 전라북도 익산시 낭산면 석천리 주요용도 | 교정 및 군사시설(도서관) 대지면적 | 4,178.00㎡ 건축면적 | 1,114.87㎡ 연면적 | 2,073.12㎡ 건폐율 | 26.68% 용적률 | 46.05% 규모 | 지하 1층 - 지상 3층 구조 | 철근콘크리트구조 외부마감재 | 황등석, 에칭유리, 화산석 내부마감재 | 스타코 설계기간 | 2017 - 2018 공사기간 | 2018 - 2019 사진 | 김재윤 구조분야 : (주)전우구조 기계설비분야 : (주)성신기계설비 전기분야 : (주)천일이앤씨 |
HAKROK LIBRARY Architect | Lee, Sangdae _ Spaceyeon Architects Client | POONGSAN / Non Commissioned Officer Academy Supervisor | Lee, Sangdae _ Spaceyeon Architects Construction | Kumsung Construction Project team | Lee, Byunsuk / Yeo, Yoonjung / Heo, Youngkang / Seo, Sehee / Joo, Youngchan / Yeon, Woonghee Location | Seokcheon-ri, Nangsan-myeon, Iksan-si, Jeollabuk-do, Korea Program | Library Site area | 4,178.00㎡ Building area | 1,114.87㎡ Gross floor area | 2,073.12㎡ Building to land ratio | 26.68% Floor area ratio | 46.05% Building scope | B1F - 3F Structure | RC Exterior finishing | Granite, Etching glass, Volcano stone Interior finishing | Stuco Design period | 2017 - 2018 Construction period | 2018 - 2019 Photograph | Kim, Jaeyun Structural engineer | Jeon and Partners Structural Mechanical engineer | Sungshin Machine Electrical engineer | Cheon-il ENC |
'회원작품 | Projects > Public' 카테고리의 다른 글
| 양지마을 푸른환경도서관 2021.11 (0) | 2023.02.13 |
|---|---|
| 창신제2동 마을회관 2021.10 (0) | 2023.02.10 |
| 광명시평생학습원 2021.8 (0) | 2023.02.08 |
| 선감역사박물관 2021.3 (0) | 2023.02.01 |
| 무궁화추모공원 2021.1 (0) | 2023.01.30 |
