2023. 2. 13. 09:17ㆍ회원작품 | Projects/Public
Green-Environment-Library of Yangji Village

마을공동체 활성화의 매개체
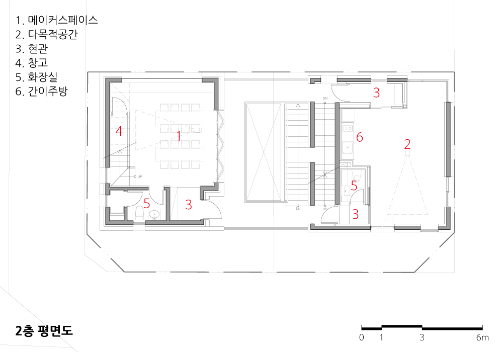
오래된 저층주거지인 강북구 양지마을은 2015년 주거환경개선사업에 선정되어 현재 주민공동체 활동과 마을재생이 추진되고 있는 곳이다. 사업의 일환으로 2017년 양지마을사랑채를 신축하여 1층에는 아이들을 위한 푸른환경도서관, 2층은 다목적 공간, 지하는 마을상점으로 사용하였다. 하지만 협소한 공간 문제로 서울시가 바로 옆 인접 단독주택 부지를 매입하여 지역프로그램을 담아내는 별동 설립을 기획하였고, 주민들은 협의 과정을 통해 푸른환경도서관을 별동에 배치하기로 하였다. 그리고 새롭게 마련된 별동의 2층과 3층에는 창의적인 디자인과 3D프린팅이 가능한 메이커스페이스를 마련했다. ‘푸른환경도서관’은 그 이름에서 드러나듯이 아이들이 어렸을 때부터 환경의 중요성을 깨닫고 일상생활 속에서 자연스럽게 친환경 활동을 실천할 수 있도록 이끄는 배움의 장이자, 자유로운 표현이 가능한 창의 놀이공간이다. 증축된 푸른환경도서관이 기존 마을사랑채와 함께 마을공동체 활성화의 시너지를 만들어 냈으면 한다. 그리고 주민의 생활반경 속에서 일상의 일부인 소통, 생산, 소비, 돌봄, 교육이 가능한 복합공간으로서 주민 간 상호작용을 엮어내는 매개체가 되길 기대한다.
흐름과 머무름의 공간
대상지는 경사가 가파른 좁은 골목길을 따라오르다가 마주하게 되는 주택지 내 공간이다. 우리는 이곳에 지역주민들을 이어주는 역할과 마을 거점공간으로서의 머무름의 역할을 부여하고자 했다. 특히 이 공간은 초등학교가 인접하고 어린이공원과 마주한 대지이기에, 기능적 이동이 아닌 서로 소통하는 공간이자 놀이 공간의 연장으로 기획했다. 증축계획에 있어서 건물의 매스는 기존 건물에 이어붙인 것이 아니라 별동으로 두었다. 그리고 건물 사이에 비워진 공간은 주변의 흐름을 안으로 흡수하는 동시에 어린이공원과 마을길을 이어주는 공간, 그리고 다채로운 활동을 하며 머무를 수 있는 마을의 골목길과 같은 공간으로 제안하였다. 엇갈려 올라가는 두 개의 계단과 건물을 이어주는 두 개의 브릿지를 통해 다양한 레벨에서 공간을 이어주고 여러 방향에서 접근할 수 있도록 했다. 입체적으로 형성된 여러 동선의 흐름은 이용자에게 선택의 폭을 넓혀준다. 그리고 어린이공원이나 사이 공간을 향해 놓인 각각의 폴딩도어를 열면 내·외부공간이 연결된다. 푸른환경도서관의 여러 공간에서 흐름과 머무름이 적절하게 어우러져 지역민들의 활발한 공동체 활동이 이루어지길 기대해본다.

A medium for activating the village community
Yangji village, Gangbuk-gu, an old low-rise residential area, was selected for the 2015 residential environment improvement project. The resident community activity and village regeneration are currently being pushed forward. As a way of the project, Yangji village, Sarangchae were constructed, the Blue environment library for children on the 1st floor, the multipurpose space on the 2nd floor, and the village store on the underground floor. However, due to the narrow space, The Seoul Metropolitan Government planned to establish a separate building that captures local programs by purchasing a detached house site right next to it. Residents decided to place the Blue Environment Library in a separate building through the consultation process. On the 2nd and 3rd floors of separate buildings newly prepared, the maker space allowing creative design and 3D printing is arranged. As its name reveals, ‘Blue environment library’ is a venue of learning that leads children to realize the importance of the environment and practice eco-friendly activities naturally in daily life. The creative play space allows free expression. I hope that the expanded Blue Environment Library will create synergy in revitalizing the village community with the existing village Sarangchae. In addition, I hope that it will become a medium for weaving interactions between residents as a complex space where communication, production, consumption, care, and education, which are part of daily life in the residents’ living radius, are possible.
Space of flow and staying
The target area is a space in a residential area that one can encounter while climbing up a narrow alley with steep slopes. I intend to grant the role of connecting the residents and staying as a vital point gap. In particular, this space faces the children's park and is adjacent to the elementary school. We planned it as a communication space and the extension of play space rather than the functional movement. In terms of the extension plan, the mass of the building is designed not to attach to the existing building but separated as a detached building. The space between buildings is proposed to connect the children's park and village road while absorbing the adjacent flow into the inner room. The space is like an alley where people can stay while doing various activities. Two stairs crossing each other and two bridges connecting the building allow to connect the space at multiple levels and approach in many directions. The flow of many movement lines formed in 3D will expand the width of selection to users. And when you open each folding door facing the children's park or the space in between, the inside and outside areas are connected. Therefore, I expect that various activities of residents will be carried out in harmony with the flow and stay in the different spaces of the Blue Environment Library.








| 양지마을 푸른환경도서관 설계자 | 김현숙 _ (주)이엔건축사사무소 건축주 | 강북구청 감리자 | 김현숙 _ (주)이엔건축사사무소 시공사 | 세정토건(주) 설계팀 | 박지은, 강수정 대지위치 | 서울특별시 강북구 삼양로51길 22 주요용도 | 제1종근린생활시설(마을회관) 대지면적 | 181.63㎡ 건축면적 | 108.63㎡ 연면적 | 290.50㎡ 건폐율 | 59.81% 용적률 | 125.43% 규모 | 지하 1층, 지상 3층 구조 | 철근콘크리트구조 외부마감재 | 매가패널, 점토벽돌 내부마감재 | 강화온돌마루재, 석고보드 위 페인트 설계기간 | 2019. 05 - 2019. 11 공사기간 | 2020. 04 - 2020. 12 사진 | 이한울 구조분야 : 중앙구조기술사사무소 기계설비분야 : 세원엔지니어링(주) 전기분야 : (주)정연엔지니어링 소방분야 : 세원엔지니어링(주) |
Green-Environment-Library of Yangji Village Architect | Kim, Hyunsuk _ EN ARCHITECTS Inc. Client | Gangbuk-gu Office Supervisor | Kim, Hyunsuk _ EN ARCHITECTS Inc. Construction | SJ Construction Co., Ltd. Project team | Bak, Jieun / Kang, Soojeong Location | 22 Samyangro-51gil, Gangbuk-gu, Seoul, Korea Program | Neighbourhood facility(Library, Makerspace) Site area | 181.63㎡ Building area | 108.63㎡ Gross floor area | 290.50㎡ Building to land ratio | 59.81% Floor area ratio | 125.43% Building scope | B1F - 3F Structure | RC Exterior finishing | Mega panel, Brick Interior finishing | Wood flooring, Eco-friendly water paint Design period | May 2019 - Nov. 2019 Construction period | Apr. 2020 - Dec. 2020 Photograph | Lee, Hanul Structural engineer | Jungang Structural Engineering Co., Ltd. Mechanical engineer | Sewon Inc. Electrical engineer | Jeongyeon Inc. Fire engineer | Sewon Inc. |
'회원작품 | Projects > Public' 카테고리의 다른 글
| 군자동 복합청사 2022.6 (0) | 2023.02.20 |
|---|---|
| 성북구립 길음동 글빛도서관 인테리어 2022.2 (0) | 2023.02.16 |
| 창신제2동 마을회관 2021.10 (0) | 2023.02.10 |
| 학록도서관 2021.9 (0) | 2023.02.09 |
| 광명시평생학습원 2021.8 (0) | 2023.02.08 |
