2023. 2. 20. 09:21ㆍ회원작품 | Projects/Public
Gunja-dong office comaplex

대상지는 저층의 주거건물이 군집을 이루고 있는 주거 밀집 지역에 위치하고 있다. 새롭게 조성되는 군자동 복합청사는 기존 청사가 가지는 경직된 이미지와 달리, 마을과 조화되고 지역민이 쉽게 접근할 수 있는 열린 청사라는 개념으로 계획하였다. 프로그램의 성격과 법규적인 제약, 그리고 도로에서의 접근성을 고려하여 매스의 볼륨을 적절하게 분절하였으며, 모든 층에 주민들을 위한 프로그램이 있는 공간을 구성하였다.
청사라는 건축물의 상징성과 주변과의 조화를 고려하여 벽돌을 주요 외장재료로 사용하였다. 또한, 단순한 매스 구성과 풍부한 외부 녹화 공간 계획을 통해, 건물 사용자들의 편의와 외부와의 시각적·공간적 연계를 고려하였다.
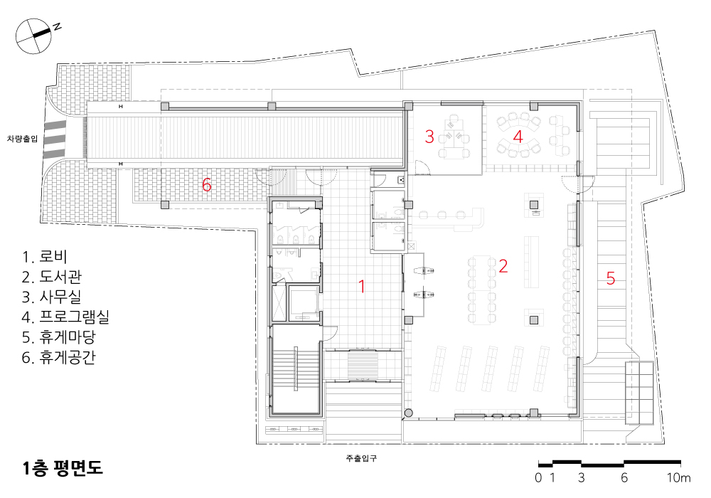
지하층은 이형의 땅 모양이지만, 가용할 수 있는 공간을 최대한 활용하였다. 지역의 주차난을 조금이나마 해결할 수 있도록 주말에는 주차장을 지역주민들에게 개방하여 주차면적을 최대한 확보하였다. 또한 주민들이 쉽게 접근하여 쉴 수 있는 청사라는 콘셉트로 1층에는 민원실이 아닌 도서관을 배치하였다.
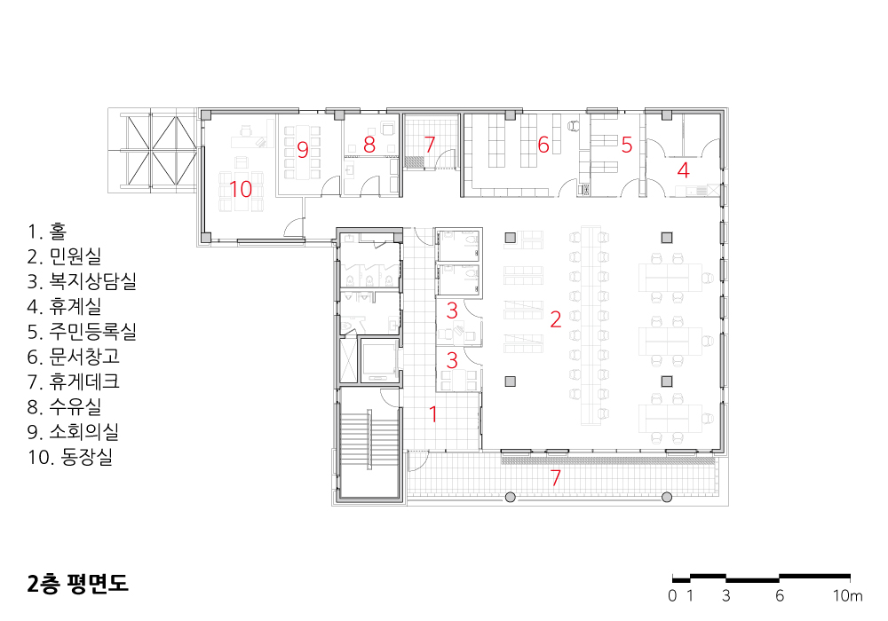
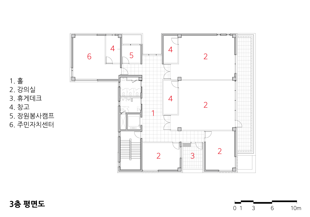
2층에는 동장실과 민원실을 같은 층에 배치하여 업무의 효율성을 높이고, 충분한 공용공간과 외부공간을 계획하여 주민들이 민원실을 이용하는 데 쾌적한 환경을 조성하였다. 주민자치센터와 강의실이 있는 3층은 공간을 가변적으로 쓸 수 있게 구성하여 다양한 성격의 교육과 문화활동을 지원할 수 있도록 공간을 계획하였다.
대규모의 인원이 이용하는 대강당은 4층에 독립적으로 배치하였다. 대강당과 함께, 각종 행사에 대응할 수 있도록 간단한 조리가 가능한 다용도실과 충분한 수납공간도 확보하였다. 5층에는 독립적인 성격의 동대본부와 주민특화공간이 위치한다. 야외활동 공간과 연결되는 주민특화공간은 간단한 여가 취미생활과 생활체육을 할 수 있는 다목적 쉼터로서의 역할을 한다.

The site is located in a densely populated area where low-rise residential buildings form a cluster. Unlike the rigid image of the existing government office building, the newly created Gunja-dong office Complex was planned with the concept of an open building, harmonized with the village and easily accessible to local residents. Considering the characteristic of the program, legal restrictions, and accessibility on roads, the volume of the mass was divided appropriately, and all floors were constructed for residents enjoying the program.
Considering the symbolism of the government office building and harmony with the surroundings, bricks were used as the main exterior material. Building users can enjoy conveniences, thanks to the organization of a simple and symbolic mass with abundant exterior and green spaces, Also, the visual and spatial connections were fully considered throughout the building.
Even though the basement floor is shaped like a heterogeneous land, the parking area was secured as much as possible, by making the most of the available space. Opening the space to local residents on weekends contributes to solve the parking difficulties in the area as well. In addition, the library, not a civil service room, was placed on the first floor. with the concept of an office building where residents can easily access and take a rest,
On the second floor, the Office for Chief of Dong, and the Civil Service Office were placed on the same floor to increase the efficiency of work. Also, residents can use the Civil Service room with a pleasant environment, thanks to the arrangement of sufficient external areas for common use. The third floor, where the residents' self-governing center and lecture room are located, was designed variably to support various types of education programs and cultural activities.
The multipurpose room, used by a large number of people, was independently placed on the fourth floor. Not only the multipurpose room, but also the utility room, available for simple cooking during various events and sufficient storage spaces, were secured. On the 5th floor, independent Reserve Forces Training Management Center, and the specialized space for residents were arranged. The specialized space for residents connected to outside is served as a multipurpose shelter for simple leisure and sports.







| 군자동 복합청사 설계자 | 강준성_레트로건축사사무소 건축주 | 광진구 감리자 | 송호 건축사사무소 시공사 | 우리글로벌건설(주) 설계팀 | 양지훈 설계의도 구현 | 레트로건축사사무소 대지위치 | 서울특별시 광진구 면목로13 주요용도 | 업무시설(공공업무시설) 대지면적 | 955.80㎡ 건축면적 | 526.51㎡ 연면적 | 2,997.12㎡ 건폐율 | 55.09% 용적률 | 199.72% 규모 | 지하 2층 - 지상 5층 구조 | 철근콘크리트구조 외부마감재 | 롱브릭, 금속마감 설계기간 | 2019. 10 – 2022. 04 공사기간 | 2020. 08 - 2022. 03 사진 | 김성철 전문기술협력 - 구조분야 : 아이원구조기술사사무소 - 기계설비분야 : (주)코담기술단 - 전기분야 : (주)코담기술단 - 소방분야 : (주)코담기술단 |
Gunja-dong office comaplex Architect | Gang, Junseong_ RETRO ARCHITECTS Client | Gwangjin-gu Supervisor | Songho Architects Construction | Woori Global Construction Project team | Yang, Jihun Design intention realization | RETRO ARCHITECTS Location | 13, Myeonmok-ro, Gwangjin-gu, Seoul, Korea Program | Public office Site area | 955.80㎡ Building area | 526.51㎡ Gross floor area | 2,997.12㎡ Building to land ratio | 55.09% Floor area ratio | 199.72% Building scope | B2F - 5F Structure | RC Exterior finishing | longbrick, metal Design period | Oct. 2019 – Apr. 2020 Construction period | Aug, 2020 - Mar, 2022 Photograph | Kim, Seongcheol Structural engineer | i-one Structural engineer office Mechanical engineer | Codam Technical Group Electrical engineer | Codam Technical Group Fire engineer | Codam Technical Group |

'회원작품 | Projects > Public' 카테고리의 다른 글
| 세빛자매원 2022.9 (0) | 2023.02.23 |
|---|---|
| 노원지역자활센터 2022.7 (0) | 2023.02.21 |
| 성북구립 길음동 글빛도서관 인테리어 2022.2 (0) | 2023.02.16 |
| 양지마을 푸른환경도서관 2021.11 (0) | 2023.02.13 |
| 창신제2동 마을회관 2021.10 (0) | 2023.02.10 |