2023. 2. 10. 09:15ㆍ회원작품 | Projects/Public
Changsin 2-dong Village Hall

창신2동마을회관은 동대문역 한양도성박물관이 위치한 서울한양도성 성곽 근처에 인접한다. 가파른 언덕길을 올라 가쁜 숨을 쉬어가기 좋은 위치에 자리 잡고 있다.
애초의 계획은 창신2동 주민센터 내의 자치회관 프로그램 운영을 위해 기존 1층의 마을회관을 2층으로 증축하여 부족한 공간을 확보할 예정이었다.
기존 건물 노후화에 따른 슬라브와 보, 벽체의 보강, 내진설계를 반영하고 전기설비와 기계설비를 새롭게 교체해야 하므로, 증축할 경우 공공건축물 표준 공사비 예산 외에도 구조보강 공사비가 예산의 50% 추가로 필요했다.
이에 공사비 증가 사유를 구청장에게 보고하고 증축의 경우와 신축의 경우를 비교 검토하여, 전체 소요예산이 비슷할 경우 건물의 물리적 수명과 기능적 수명을 고려해 새로 신축하기로 결정하였다.
신축 시 현행 기준의 단열성능을 확보하고 사물놀이 연습 시 발생하는 소음의 민원 방지를 위해 흡음재를 추가로 설치해야 하므로 내부 공간이 더 협소해지는 단점을 최소화하기 위해, 평면은 하나의 공간에서 여러 기능을 수행하도록 했다.
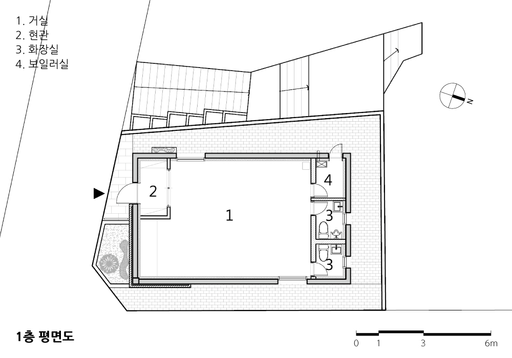
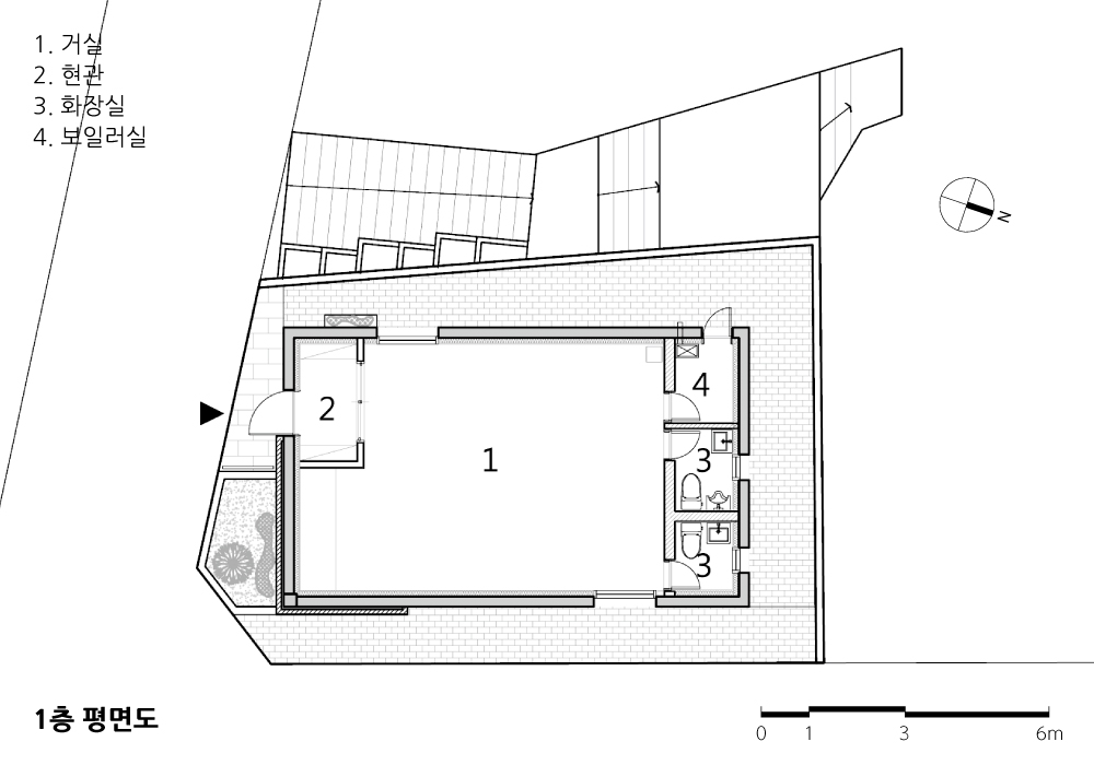
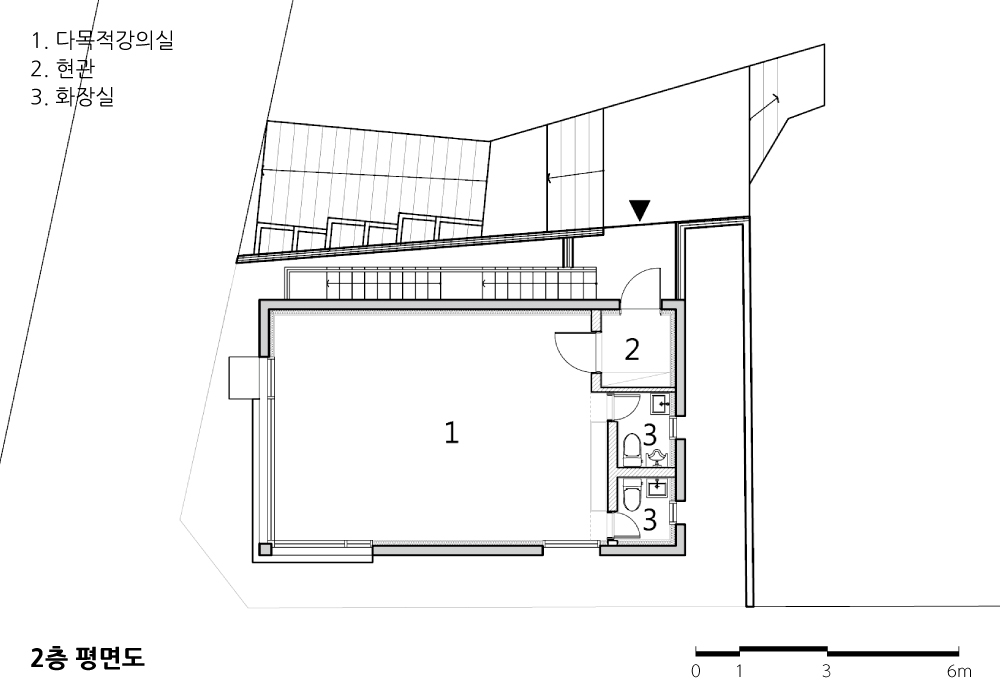
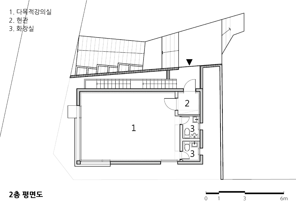
전용 면적이 30제곱미터로 협소한 1층 거실에서 2층으로 오르는 내부계단을 만들 경우 실 사용공간이 비효율적으로 작아지므로, 2층 진입 동선은 외부 도로에 있는 계단을 활용하여 진입하도록 하였다.
1층 거실은 사물놀이 연습장으로 사용하고 2층 다목적강의실은 자치회관 운영프로그램실로 사용하며, 지붕은 주민들의 도시농업 텃밭으로 사용한다.
주요 외장재는 유지관리를 고려한 노출콘크리트 마감과 기존 마을회관의 외장재였던 붉은벽돌을 코너 출입구 파사드에 일부 반영하였다.
작은 규모의 마을회관은 설계부터 시공까지 주민협의회 의견을 수렴하고 조율하는 과정이 쉽지 않았다. 저예산 공공건축물의 신축 과정은 4명의 현장소장이 교체되는 어려움이 있었고, 그 과정에서 노출콘크리트 외장재 마감을 구현하는 한계를 받아들여야 했다.
신축 후 마을회관에서는 창신2동주민센터에서 시행하고 있었던 다양한 문화·복지·교육 프로그램을 수행하게 되며, 지역주민의 적극적인 참여를 통해 주민의 삶의 질을 높이게 된다. 점점 더 사라져 가는 마을회관이 지역 커뮤니티를 회복하고 전통적으로 담당해왔던 지역공동체 형성의 구심체 역할을 수행하기를 희망한다. 나아가 반복되는 일상이 쌓여 만들어지는 주민들의 삶의 요구를 품는 지속적인 공간으로 남아주길 바란다.

The Changsin 2-dong village hall is near the Hanyangdoseong Fortress wall in Seoul, with the Hanyangdoseong Museum of Dongdaemun Station. Therefore, it stands on an excellent position to climb a steep hill and breathe.
The original plan was to expand the existing one-story village hall to the two-story building to secure insufficient space to operate the autonomy center program in Changsin 2-dong community center.
In addition to the standard construction cost of public buildings, 50% of the budget, structural reinforcement costs were also needed to reflect the reinforcement and seismic design of slabs, beams, and walls. Again, it was due to existing buildings' aging and replacing new electrical and mechanical facilities.
Therefore, we reported the increase in construction costs to the head of the Gu, compared and reviewed the case of extension and new construction. Ultimately, we decided to build a new building taking the physical and functional life of the building into consideration.
We had to provide current insulation performance when constructing the new building and install sound absorption materials to prevent complaints about noise during samulnori performances. Hence, to minimize the disadvantage of narrowing the interior space, we designed a plat surface to play many roles in space.
If we build an inner staircase from the living room on the first floor to the second floor with a narrow dedicated area of 30 square meters, the actual space shall be inefficiently reduced, so we planned the access route on the second floor to enter using the stairs on the outer road.
The living room on the first floor is used as a samulnori practice room. The multipurpose classroom on the second floor works as a community-operating multi-room. The roof is an urban agricultural garden for residents.
The primary exterior materials partially reflected the exposed concrete finish, considering the maintenance and the red brick. It was the exterior material of the existing village hall, on the corner entrance façade.
The gathering and coordinating opinions of the residents' council from the design to construction was not easy for the small village hall. In constructing a low-budget public building, it had the difficulty of four site directors being replaced. In addition, we had to perceive the limitations of implementing the finish of exposed concrete exterior materials in the process.
After the construction, the village hall will perform various cultural, welfare, and educational programs implemented by the Changsin 2-dong community center and improve residents' quality of life through the active participation of locals. We hope the continuously disappearing village halls restore the local community and serve as a central body for forming local communities as they have done traditionally. Furthermore, we hope that this building will remain a continuous space that embraces the needs of residents' lives, where repeated daily lives are accumulated.







| 창신제2동 마을회관 설계자 | 강영란_(주)아이디어5 건축사사무소 건축주 | 종로구청 감리자 | (주)아이디어5 건축사사무소 시공사 | 보광종합건설(주) 대지위치 | 서울특별시 종로구 낙산성곽1길 37 주요용도 | 마을회관 대지면적 | 90.00㎡ 건축면적 | 50.01㎡ 연면적 | 100.03㎡ 건폐율 | 55.57% 용적률 | 111.15% 규모 | 2층 구조 | 철근콘크리트구조 외부마감재 | 노출콘크리트, 제일벽돌 치장쌓기 내부마감재 | THK8강마루, 목재흡음판, 친환경수성페인트 설계기간 | 2018. 01 – 2018. 08 공사기간 | 2018. 08 – 2019. 04 사진 | 정광식 구조분야 : 동양구조기술사사무소 기계설비분야 : 연엔지니어링 전기분야 : 연엔지니어링 소방분야 : 연엔지니어링 |
Changsin 2-dong Village Hall Architect | Kang, Youngran_IDEA5 ARCHITECTS Client | Jongno-gu office Supervisor | IDEA5 ARCHITECTS Construction | BOKWANG Construction Co.,Ltd Location | 37, Naksanseonggwak 1-gil, Jongno-gu, Seoul, Korea Program | Village Hall Site area | 90.00㎡ Building area | 50.01㎡ Gross floor area | 100.03㎡ Building to land ratio | 55.57% Floor area ratio | 111.15% Building scope | 2F Structure | RC Exterior finishing | Exposed concrete, Jeil Brick Interior finishing | Wood Flooring, Sound absorption wood, Eco-friendly water paint. Design period | 2018. 01 – 2018. 08 Construction period | 2018. 08 – 2019. 04 Photograph | Jung, Kwangsik Structural engineer | DongYang Structure Mechanical engineer | Yeon Eng. Electrical engineer | Yeon Eng. Fire engineer | Yeon Eng. |
'회원작품 | Projects > Public' 카테고리의 다른 글
| 성북구립 길음동 글빛도서관 인테리어 2022.2 (0) | 2023.02.16 |
|---|---|
| 양지마을 푸른환경도서관 2021.11 (0) | 2023.02.13 |
| 학록도서관 2021.9 (0) | 2023.02.09 |
| 광명시평생학습원 2021.8 (0) | 2023.02.08 |
| 선감역사박물관 2021.3 (0) | 2023.02.01 |
