2023. 2. 21. 09:23ㆍ회원작품 | Projects/Public
Nowon Community Selfsufficiency Center

노원구 상계동은 1980년대 대규모 재개발로 거대한 아파트 숲으로 둘러싸인 서울의 전형적인 주거 밀집 지역이다. 노원지역자활센터가 위치한 블록은 그동안 재개발이 이뤄지지 않아 오랫동안 낙후된 상태로 현재까지 이어져 왔다. 노원지역자활센터는 이곳에서 지역사회 공동체 구현이라는 목표를 가지고 30년 이상 묵묵히 제 역할을 해왔다. 저소득층, 실직자 등이 경제적으로 자립할 수 있도록 체계적인 자활 서비스를 제공하고, 초기 상담부터 시작하여 기본교육, 근로능력 향상을 위한 전문기술교육 시행 및 일거리 제공을 통한 훈련을 시행한다. 지역 내 어르신들을 위한 경로당을 운영하며 노인복지에도 관심을 갖는다. 
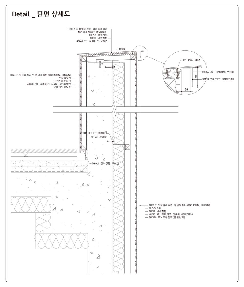
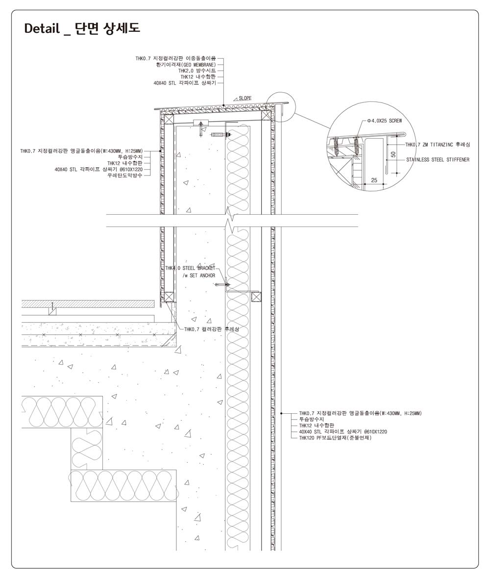
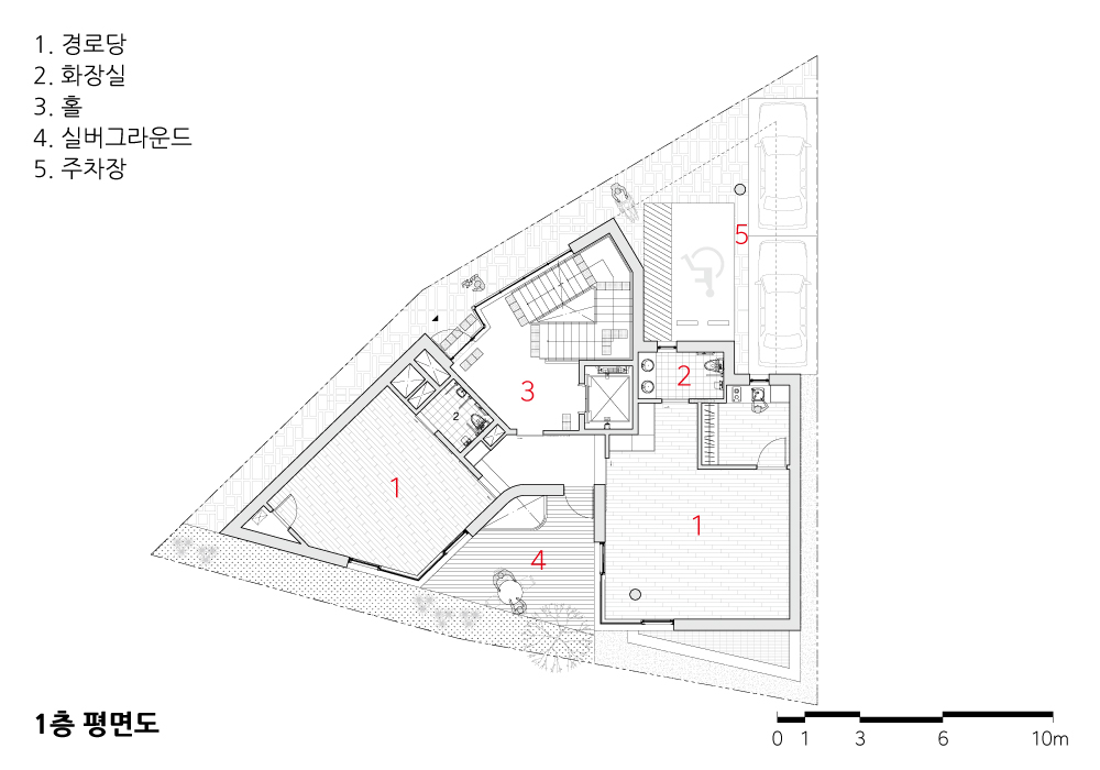
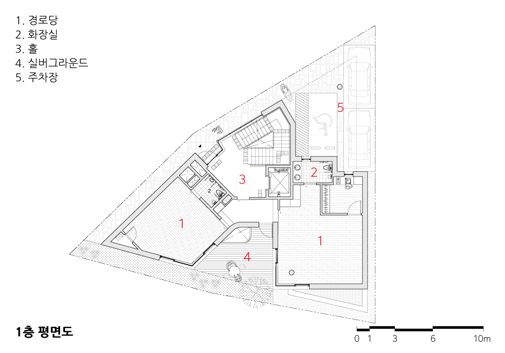
대지는 북측으로 좁은 4미터 도로에 접하는 삼각형 형태이다. 남쪽으로는 초등학교 후면과 맞닿아 있으며 주변은 오래된 주택들로 둘러싸여 있다. 센터는 자활 서비스를 위한 교육실과 사무실, 그리고 어르신들의 휴게공간인 경로당으로 계획된다. 이형적 부지를 효과적으로 활용하기 위해 대지 형태에 따른 두 개의 긴 변을 이용하여 매스를 계획하고, 남향으로 중정마당을 제안하여 외기와 접하는 면을 최대화하였다. 초등학교 방향으로 시야가 트여 있는 남향의 중정마당을 중심으로 실들이 둘러싸인 형태로 계획되어 실내의 모든 전용 공간과 공용 공간에서 채광과 환기에 유리한 쾌적한 환경을 조성했다.

Sanggye-dong, Nowon-gu, is a typical highly residential area in Seoul packed with apartment buildings due to large-scale redevelopment in the 1980s. The block in which Nowon Community Selfsufficiency Center is located has not been redeveloped so far, being backward for a long time. Nowon Community Selfsufficiency  Center has been silently playing its role with the goal of realizing a local community for over 30 years. It provides systematic self-sufficiency services to the low-income class and the unemployed so that they can become economically independent and conduct training through basic education, professional technical education to improve working ability, and job provision starting from early educational counseling. The organization is also interested in the welfare of the elderly by operating a senior center in the local area. 
The site has the shape of a triangle facing the narrow road of 4m on the north side. It faces the back of the elementary school to the south and is surrounded by old houses. Nowon Community Selfsufficiency Center is planned be accommodating an education center and office for self-support services and a senior citizen center, a resting space for the elderly. In order to effectively utilize the heterogeneous site, a building mass made using two long sides according to the site shape was planned, and the surface in contact with the outer space was maximized by proposing a courtyard to the south. It was designed to be surrounded by rooms centered on the south-facing courtyard with an open view towards the elementary school, creating a pleasant environment for light and ventilation in all private and public spaces indoors.










| 노원지역자활센터 설계자 | 이중희_투엠투건축사사무소 건축주 | 노원구청 감리자 | 동원건축사사무소 시공사 | 이본건설 설계의도 구현 | 투엠투건축사사무소 대지위치 | 서울특별시 노원구 한글비석로47길 99-3 주요용도 | 사회복지시설 대지면적 | 299.63㎡ 건축면적 | 179.03㎡ 연면적 | 659.85㎡ 건폐율 | 59.75% 용적률 | 162.96% 규모 | 지하 1층 - 지상 3층 구조 | 철근콘크리트구조 외부마감재 | 컬러강판, 벽돌 내부마감재 | 석고보드 위 수성페인트, 흡음보드 설계기간 | 2019. 12 - 2012. 05 공사기간 | 2021. 03 - 2022. 02 사진 | 신경섭 전문기술협력 - 구조분야 : SDM - 기계설비분야 : 대광엔지니어링 - 전기분야 : 대광엔지니어링 - 소방분야 : 대광엔지니어링  | 
Nowon Community Selfsufficiency Center Architect | Lee, Junghee_2m2 architects Client | Nowon-gu office Supervisor | Dongwon Architects Construction | Ebon Construction Design intention realization | 2m2 architects Location | 99-3, Hangeulbiseok-ro 47-gil, Nowon-gu, Seoul, Korea Program | Social welfare facilities Site area | 299.63㎡ Building area | 179.03㎡ Gross floor area | 659.85㎡ Building to land ratio | 59.75% Floor area ratio | 162.96% Building scope | B1F - 3F Structure | RC Exterior finishing | Coating metal, Brick Interior finishing | Paint on gypsum board, Sound absorption board Design period | Dec. 2019 - May 2020 Construction period | Mar. 2021 - Feb. 2022 Photograph | Shin, Kyungsub Structural engineer | SDM Mechanical engineer | Daegwang Engineers Electrical engineer | Daegwang Engineers Fire engineer | Daegwang Engineers  | 

'회원작품 | Projects > Public' 카테고리의 다른 글
| 월산 4동 행정복지센터 2023.4 (0) | 2023.04.19 | 
|---|---|
| 세빛자매원 2022.9 (0) | 2023.02.23 | 
| 군자동 복합청사 2022.6 (0) | 2023.02.20 | 
| 성북구립 길음동 글빛도서관 인테리어 2022.2 (0) | 2023.02.16 | 
| 양지마을 푸른환경도서관 2021.11 (0) | 2023.02.13 |