2023. 4. 19. 16:04ㆍ회원작품 | Projects/Public
Wolsan 4-dong Community Service Center


물리적 환경의 극복
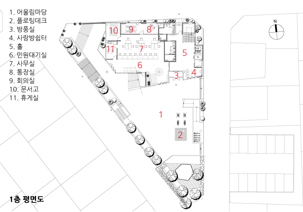
대지는 오래된 주택가에 위치한 삼각형 모양의 작은 땅이다. 도시에 자리한 오래된 마을이 가진 여러 인문학적 이야기를 뒤로한 채, 작은 삼각형 땅 지하를 주차장으로 조성해야 하는 발주처의 프로그램 요구와 방향성 없이 오르내리며 최고 2미터의 높이 차이를 가진 세 도로는 건축에 대한 접근 방식을 다분히 기능의 해결로 귀결되게 만들었다. 도로 레벨이 가장 낮은 부분에 주차장 출입구를 설치해 램프의 길이를 최소화했고, 각 도로에서 대지를 관통하는 기존 보행의 흐름과 기억들을 유지시킨 다양한 접근 동선을 구성하고 1층 부분을 비워내 다양한 행위를 담을 수 있는 마당의 역할을 하게 하였으며, 행정복지센터의 주민친화적 성격이 최대한 발현될 수 있도록 계획했다. 건축물의 배치는 남향에 따른 환경성과 형태에 따른 시공성 등을 고려하여 삼각형 대지의 가장 직각에 가까운 부분을 기점으로 ‘ㄱ’자 형태로 계획했다.
재료, 기억에 대한 존중
건물을 보며 대화를 하다 보면 ‘관공서 같다’는 표현을 사용한다. 이는 공공건축물로서 갖춰야 하는 피상적인 형태에, 땅이 가진 고유성과 지역성이 배제되어 있음을 의미할지도 모른다. 지하주차장 공사를 위해 대부분의 땅을 굴착해야 하며 새로운 공간과 형태의 건축이 기존 대지의 물리적 환경을 완전히 바꾸는 상황 속에서, 금속마감재 등의 이질적인 재료 사용을 지양하고 오래된 주거지역에서 쉽게 볼 수 있는 조적, 돌, 유리 등에 어울리는 재료를 외피에 적용했다. 또 외부 반자 마감은 목재를 사용하여 자칫 느껴질 수 있는 딱딱하고 차가운 이미지가 완화되도록 했다. 이로써 기존의 작은 주택들 사이에서 위압적일 수 있는 규모와 형태의 새로운 건축물, 기존 건축물과 공유하는 재료의 연속성을 통해 마을 풍경에 섞일 수 있도록 하였다. 동시에 비워진 공간과 불규칙적으로 디자인된 유리창들이 풍경과 반응하며 ‘공공성’이라는 차별적 이미지를 부여하도록 했다.
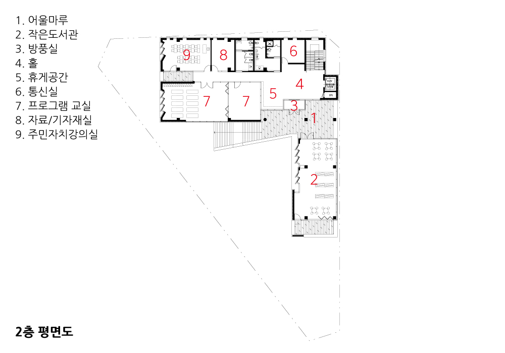
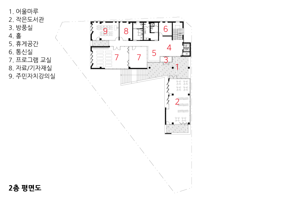
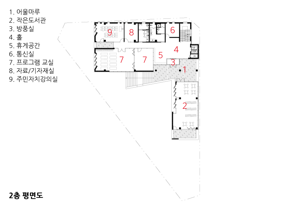
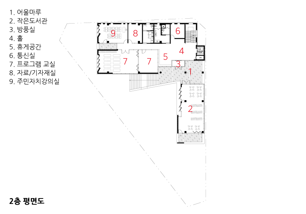
도시와 소통하는 다양한 외부공간 구성
기존 대지를 이용했던 주민들의 기억을 반영해 각각의 도로에서 진입할 수 있도록 필로티 형태로 구성한 작은 도서관의 하부 공간은 기존 정자와는 시각적으로 연결된다. 거리를 넘어 도시의 풍경이 관통하는 시각적 통로이며 휴게, 담소 등 주민들의 일상을 담는 장소가 되도록 했다. 메스의 분리와 비워낸 공간들을 통해 각 층별로 다양한 외부공간을 구성했다. 옥상은 공공건축에 설치되는 신재생에너지 설비 설치를 위한 철골구조를 공간화하여 디자인적으로 태양광패널을 설치했고, 하부에 충분한 높이를 확보해 사람들의 행위를 담는 옥상 마당으로 이용될 수 있도록 계획했다. 공간이 빌려온 도시의 풍경은 비좁은 마을 환경과 대비되어 확대된 개방감을 갖는다. 이곳이 주민들의 훌륭한 소통의 장이 되기를 기대해 본다.





Overcoming the physical environment
The site is a small triangular plot of land located in an old residential area. Setting aside many humanistic stories of the old town located in the city, the client's request for program that creates a small underground parking lot on this small triangular site, and the three roads with a height difference of up to 2m, going up and down without direction have led to an architectural approach of functions. The length of the ramp was minimized by installing the parking lot entrance at the lowest level of the road, and various access routes were formed to keep the flow and memory of existing walking that runs through the site on each road. The first floor was designed to be void to play the role of a yard for a variety of activities, and to maximize the residentriendly nature of an administrative welfare center. The layout of the building was planned in an ‘ㄱ’ shape starting from the most perpendicular part of the triangular site, by taking into account the south-facing environmental characteristics and constructability depending on the form.
Respect for material and memory
When we talk while looking at the building, we say ‘it looks like a government office’. This may mean that the uniqueness and locality of the land are excluded from the superficial form that is a requirement for public buildings. Most of the land needed to be excavated for construction of the underground parking lot, and a new space and form of construction completely changed the physical environment of the existing site. Under this circumstance, we tried to avoid using disparate materials including metal finishes, and for exterior we applied such materials as masonry, stone, and glass we can easily see in old residential areas. In addition, timber was used on the finish for an exterior ceiling to alleviate the possible hard and cold image. In this way, a new building ㅣ in a scale and form that can be compelling among existing small houses, and a continuity of materials shared with existing buildings allowed it to blend into the landscape of the town. At the same time, emptied space and irregularly designed glass windows reacted to the landscape so as to give a differentiated image of 'publicness'.
Layout of outdoor spaces that communicate with the city
Reflecting the memories of the residents who used the existing site, the lower space of a pilotitype small library accessible from each road is visually connected to the existing pavilion. It is a visual passage where the landscape is intersected with the city beyond the street, and it is intended to be a place to contain everyday life of residents, such as resting and chatting. Through the separated masses and the emptied spaces, various outdoor spaces were constructed on each floor. The rooftop was designed to have solar panels in terms of design by making the steel structure a space for the installation of new renewable energy facilities in public architecture and to serve as a rooftop yard for people's activities by securing sufficient height at the lower part. The urban landscape borrowed from the space has expanded openness in contrast to the cramped village environment. We hope that this place will be a great place for the residents to communicate.



| 월산 4동 행정복지센터 설계자 | 정영법 _ (주)로운건축사사무소 건축주 | 광주광역시 남구 감리자 | (주)보림건축사사무소 시공사 | 석진종합건설(주) 설계팀 | 이대운, 박정인, 김하정, 김재영 대지위치 | 광주광역시 남구 대남대로 390번길 11 주요용도 | 공공업무시설 대지면적 | 1,211.00㎡ 건축면적 | 559.61㎡ 연면적 | 2,064.40㎡ 건폐율 | 46.21% 용적률 | 93.20% 규모 | B1F - 3F 구조 | 철근콘크리트구조 외부마감재 | 치장벽돌 내부마감재 | 친환경 수성페인트 설계기간 | 2020. 05 – 2021. 01 공사기간 | 2021. 04 – 2022. 01 사진 | 정영법 구조 | (주)세움구조기술사사무소 기계설비 | 다경엔지니어링 전기 | (주)한울이엔지 소방 | (주)한울이엔지 |
Wolsan 4-dong Community Service Center Architect | Jeong, Yeongbeop _ LOUN Architects Corp. Client | Gwangju Namgu Supervisor | BoriArchitects Corp. Construction | Seokjin Constructor Corp. Project team | Lee, Daewoon / Park, Jeongin / Kim, Hajeong / Kim Jaeyeong Location | 11, Daenam-daero 390beon-gil, Nam-gu, Gwangju, Korea Program | Office Site area | 1,211.00㎡ Building area | 559.61㎡ Gross floor area | 2,064.40㎡ Building to land ratio | 46.21% Floor area ratio | 93.20% Building scope | B1F - 3F Structure | RC Exterior finishing | Brick Interior finishing | Eco-friendly water paint Design period | May 2020 – Jan. 2021 Construction period | Apr. 2021 – Jan. 2022 Photograph | Jeong, Yeongbeop Structural engineer | Seum Structural engineering Inc. Mechanical engineer | Dagyeong Engineering Electrical engineer | Hanul Engineering Inc. Fire engineer | Hanul Engineering Inc. |

'회원작품 | Projects > Public' 카테고리의 다른 글
| 회원첫작품_춘천시 건강생활지원센터 2023.5 (0) | 2023.05.18 |
|---|---|
| 주왕산 세계 지질 탐방 안내센터 2023.4 (0) | 2023.04.19 |
| 세빛자매원 2022.9 (0) | 2023.02.23 |
| 노원지역자활센터 2022.7 (0) | 2023.02.21 |
| 군자동 복합청사 2022.6 (0) | 2023.02.20 |