2023. 2. 9. 09:22ㆍ회원작품 | Projects/Neighborhood Facility
Cafe Act 2

예산 국도변에 접한 평행사변형의 대지로, 봄의 벚꽃이 매우 아름다운 대지에 젊은 건축주 부부의 카페 신축을 계획하게 되었다.
국도에 접한 대지의 길이가 좁아 건축물의 인지성을 향상시키기 위해 박공 모양의 통창을 계획하여 야간에 조명이 주는 시선 이동을 유도하였고, 이를 통해 실내 자연광을 유입하여 채광이 풍부한 실내공간을 연출하였다.
초기 설계계획은 벽돌 타일을 통해 매스(덩어리)가 주는 차분함을 주려고 했으나, 공사 예산과 주변 환경(건축물, 경관)을 고려하여, 밝은 화이트 색상을 통해 주변 풍경과 대비될 수 있도록 최종 결정되었다.
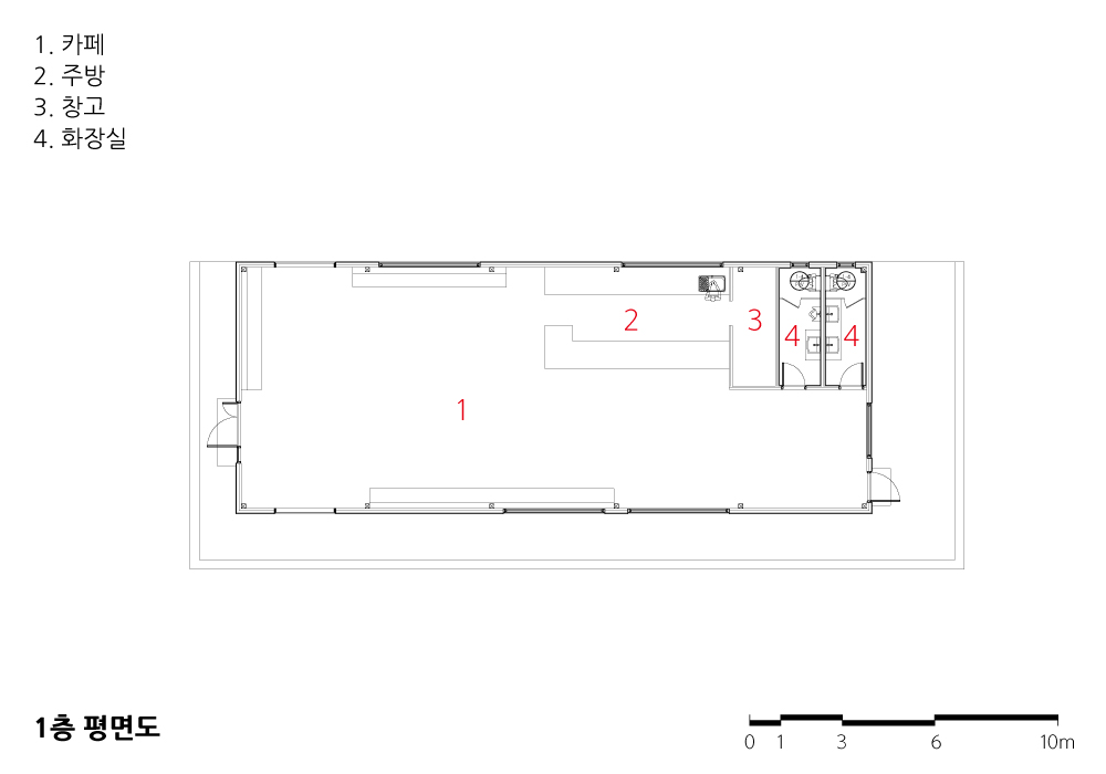
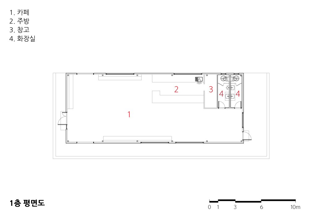
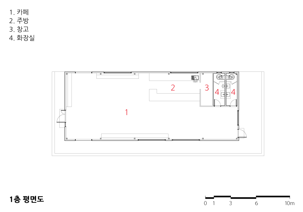
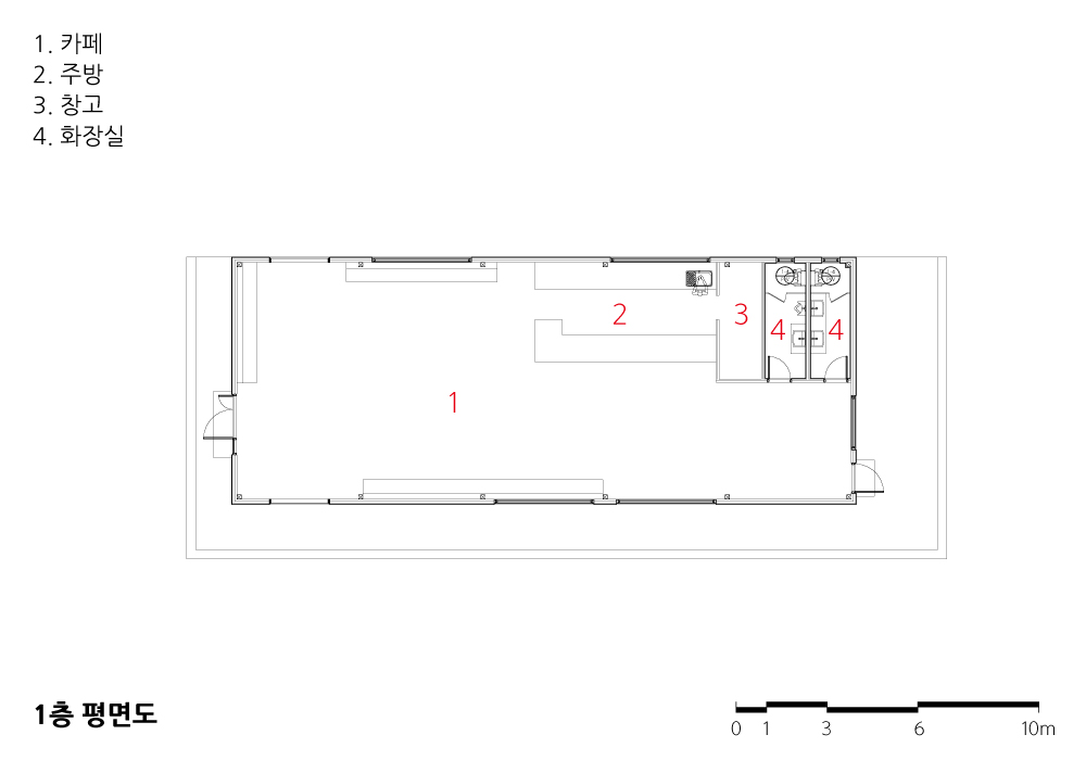
영업 시설로서 164제곱미터의 작은 내부 공간을 보완하기 위해 마당과 주변 경관을 활용한 야외공간을 연계하도록 계획하고, 각각의 공간에 색상과 재료를 다르게 하여 방문자들이 지루함을 느끼지 못하도록 영역을 구분하였다.
화이트 색상의 단순한 구조체에 마감을 최소화하여 구조체 자체에서 느낄 수 있는 공간감을 최대한 확보하였고, 이와 대비되는 우드가구, 플랜트 등을 조합하여 실내를 구성하였다.

It is a parallel landscape adjacent to Yesan National Road and plans to build a cafe for a young couple on a land where cherry blossoms are very beautiful in spring.
In order to improve the recognition of buildings due to the narrow length of land adjacent to the national road, a gabled roof-shape window was planned to induce eye movement given by lighting at night, thus creating an indoor space rich in lighting.
The initial design plan was intended to provide the calmness of mass through brick tiles, but considering the construction budget and surrounding environment (buildings and landscapes), it was finally decided to contrast the surrounding landscape with bright white colors.
In order to supplement the 164㎡ interior space as a sales facility, the outdoor space using the yard and surrounding landscape was planned to be connected, and each space was divided into different colors and materials so that visitors would not feeling bored.
By minimizing the finish on a simple white-colored structure, the maximum sense of space that can be felt on the structure itself was secured, and the contrasting wood furniture and plants were combined to form an interior.








| 예산 카페 제2막 설계자 | 방재웅 _ 라움 건축사사무소 건축주 | 정제성 감리자 | 방재웅 _ 라움 건축사사무소 시공사 | 위드라움 설계팀 | 박세영 대지위치 | 충청남도 예산군 삽교읍 충의로127 주요용도 | 제1종근린생활시설(휴게음식점) 대지면적 | 1,041.00㎡ 건축면적 | 164.00㎡ 연면적 | 164.00㎡ 건폐율 | 15.75% 용적률 | 15.75% 규모 | 지상 1층 구조 | 경량철골구조 외부마감재 | 스타코 마감 내부마감재 | 수성페인트 도장마감 설계기간 | 2020. 06 – 2020. 09 공사기간 | 2020. 10 - 2020. 12 사진 | 이한울 구조분야 : (주)이든구조컨설턴트 기계설비분야 : 코담기술단 전기분야 : 코담기술단 소방분야 : 코담기술단 |
Cafe Act 2 Architect | Bang, Jaewoong _ RAUM Architecture Client | Jeong, Jeseong Supervisor | Bang, Jaewoong _ RAUM Architecture Construction | Withraum Project team | Park, Seyoung Location | 127 Chungui-ro, Sapgyo-eup, Yesan-gun, Chungcheongnam-do, Korea Program | Neighborhood living facility(Cafeteria) Site area | 1,041.00㎡ Building area | 164.00㎡ Gross floor area | 164.00㎡ Building to land ratio | 15.75% Floor area ratio | 15.75% Building scope | 1F Structure | Lightweight steel structure Exterior finishing | Stucco Interior finishing | Eco-friendly water based paint Design period | Jun. 2020 – Sep. 2020 Construction period | Oct. 2020 - Dec. 2020 Photograph | Lee, Hanul Structural engineer | Eden Structure Mechanical engineer | Kodam Engineering Electrical engineer | Kodam Engineering Fire engineer | Kodam Engineering |
'회원작품 | Projects > Neighborhood Facility' 카테고리의 다른 글
| 오조리-빌레꼿 2021.10 (0) | 2023.02.10 |
|---|---|
| 수연목서(修硏木書) 2021.9 (0) | 2023.02.09 |
| Cafe KLITZ 2021.9 (0) | 2023.02.09 |
| 세종대학교 캠퍼스타운 거점센터 2021.8 (0) | 2023.02.08 |
| 나주 스테이케이션 202108 (0) | 2023.02.08 |
