2023. 2. 8. 09:18ㆍ회원작품 | Projects/Neighborhood Facility
Naju Staycation

부지는 전라남도 나주혁신도시에 위치한다. 건축주는 이곳에서 도시 생활자들이 다양한 문화체험을 매개로 교감하고, 잠시 머무르며 쉴 수 있는 장소를 만들고자 하였다.
이 건축물(스테이케이션)의 첫인상은 언뜻 닫혀있는 듯 보이며, 그 흔한 간판 하나도 찾기 힘들어서 외관만 보고서는 쉽게 그 용도를 가늠할 수 없을 정도이다. 1층 상업공간과 2층, 3층 주거공간을 포함한 이 건축물은 주변의 건축물들이 답습하던 관습적 표현방식에 거리를 두고 독자적인 시그니처로 고고한 인상을 풍기며 자신의 존재감을 드러낸다. 단일 재료의 외벽 마감, 제어된 창호 계획, 엄격한 면 분할을 통해 만들어진 외관 이미지는 주거공간과 상업공간을 구분 짓지 않고 일체화된 형태미를 보여준다. 요란한 가로경관에는 절제의 전략으로 대응하고 숨겨진 내부공간에서는 다양한 공간의 경험을 주는 반전을 선사하고자 하였다.
상업공간 입구의 가벽을 지나서 중정으로 들어서면 전혀 다른 공간을 맞닥뜨리게 된다. 단단한 외벽 안에 감추어져 있던 푸르른 조경과 이단 영롱 쌓기를 한 벽돌벽 사이로 떨어지는 자연광의 분위기를 느끼게 되면, 무표정해 보이던 첫인상을 납득할 수 있게 된다. 외관의 구성은 간결하다. 단아한 색조의 와이드 벽돌을 단단하게 쌓아 올리고, 개구부와 경계벽에서 일부 영롱 쌓기를 도입하여 입체적인 벽돌 외관을 만들어 내도록 하였다. 영롱 쌓기가 적용된 부분에 한하여 경관조명을 연출하여 주경과는 또 다른 야경의 파사드를 지닐 수 있도록 하였다. 이는 오후 6시를 전후하여 서비스가 미묘하게 조정되는 스테이케이션의 성격과도 무관하지 않다.
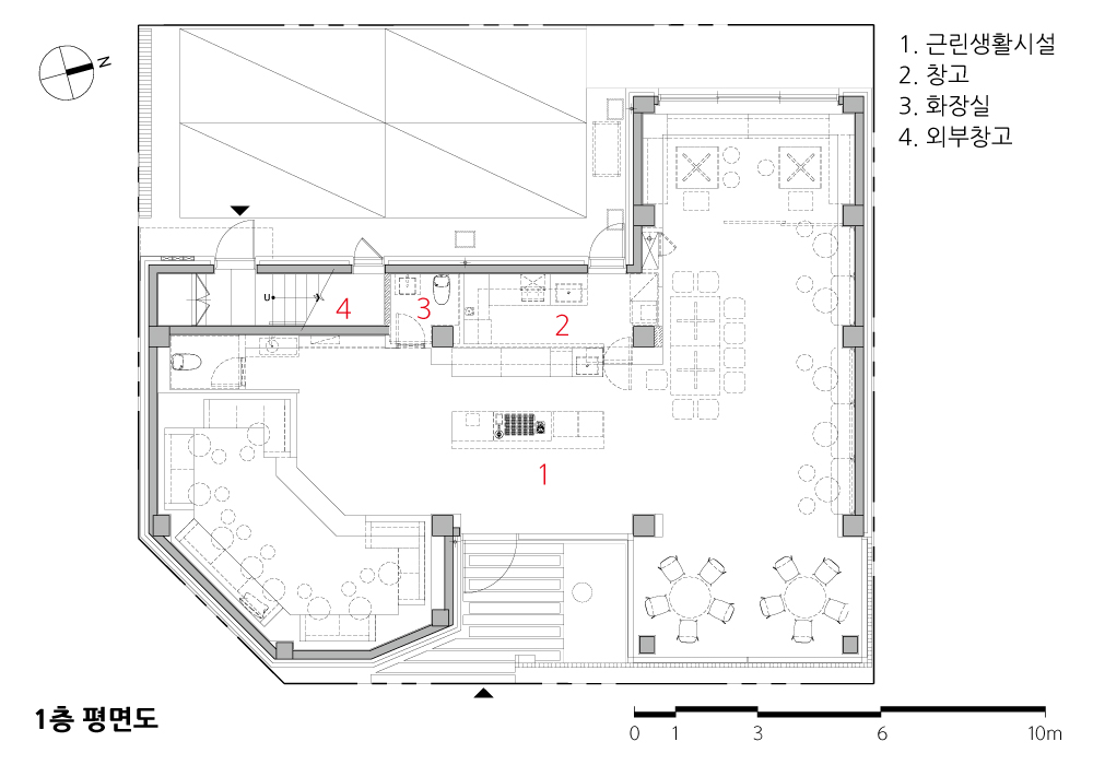
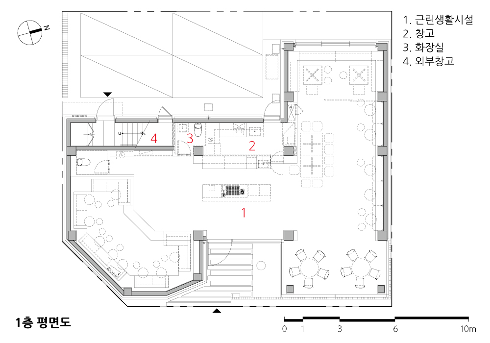
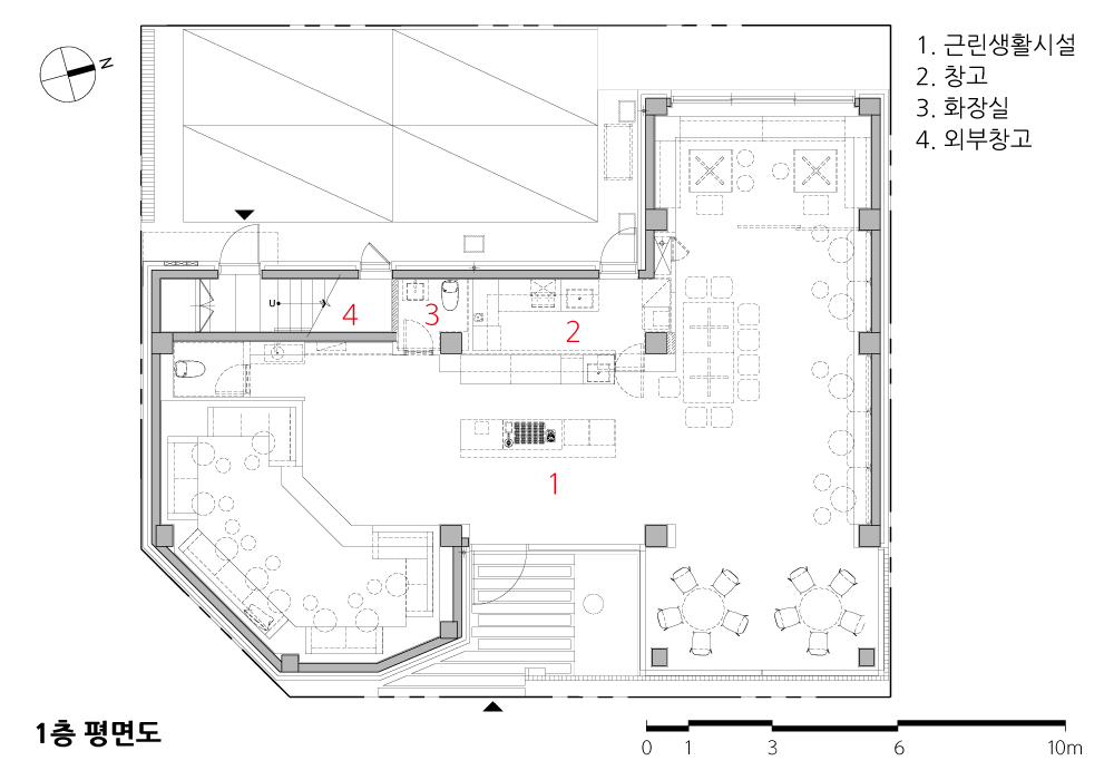
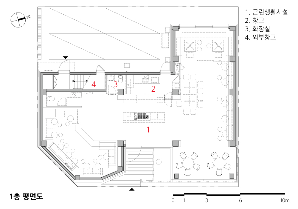
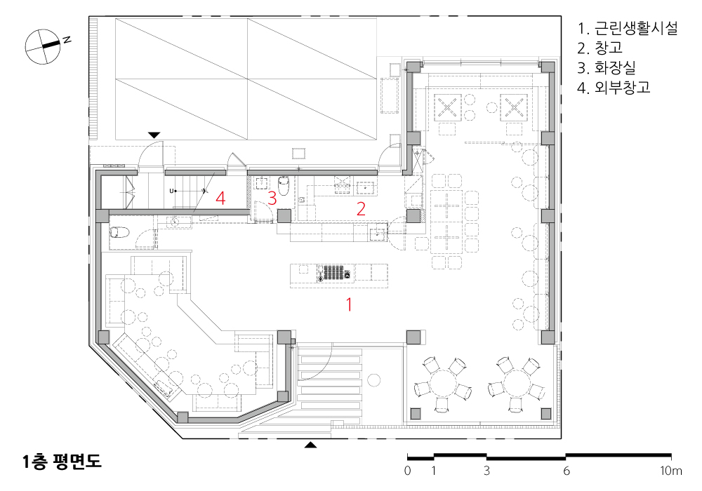
스테이케이션의 내부 접객 공간은 중앙의 바(Bar)를 기준으로 좌우 2개의 영역으로 나뉜다. 바 우측 공간은 바와 같은 바닥 레벨에서 형성되어 있다. 높은 층고의 볼트 지붕, 후정의 녹색 풍경, 패턴화된 자연채광으로 둘러싸여 개방적이며 자유로운 분위기를 연출하고 있다. 시즌별로 전시나 다양한 행사 공간으로 활용될 수 있도록 가변적 공간을 구현하였다.
바 좌측은 바닥 레벨을 60센티미터 낮추고, 벽면의 창호를 두지 않아 우측과 대비되는 안락한 공간으로 계획하였다. 상부에는 겹지붕 형식의 천창을 두었다. 천창 유리 면에 투과되어 보이는 외부 마감재는 밀러스텐레스를 사용하여 스테이케이션 내부와 외부의 시선이 교차하는 재미있는 상황을 만들어 내고 있다.
스테이케이션은 ‘머물다’라는 의미의 스테이(Stay)와 ‘휴가’를 뜻하는 베케이션(Vacation)의 합성어로, 즉 휴가 중에 먼 곳으로 떠나지 않고 집이나 집 근처에서 휴가를 보내는 것을 의미한다고 한다. 위태롭게도 한창 코로나가 창궐하기 시작한 2020년 봄에 오픈한 이곳은, 다행히 이 장소에 애정을 갖게 된 동네 주민들의 성원과 SNS 바람을 타고 무척 분주한 일상을 보내고 있는듯하다.
비록 넓지 않은 공간이지만 맥락 없이 표류하는 동네 상업건축의 가벼운 속성과 속도감에 맞서서, 우리의 삶 속에 잠시 ‘머무르다’라는 휴식 한 조각과 그것에 담긴 다양한 종류의 영감과 휴식을 선물해 주는 편안한 공간으로서 스테이케이션이 오래도록 그 존재감을 이어가길 바란다.

The site is in Naju innovation city, Jeollanam-do. The building owner intends to make the place where urban dwellers can communicate through various cultural experiences and stay and relax.
The first impression of this building(staycation) looks closed, and it is impossible to guess the usage by looking at the external appearance because it is hard to find the common signs. This structure gives its elegance with the exclusive signature and reveals its existence, unlike the conventional expression method that followed the surrounding buildings. The external image created through exterior wall finishing of a single material, controlled window plan, and the strict side division shows the uniform physical beauty without dividing the residential and commercial spaces. It responded to the noisy streetscape with a strategy of restraint and was intended to reverse the experience of various areas in the hidden interior space.
Passing the fake wall at the entrance of the commercial space and entering the courtyard, you will face a different area. If you feel the mood of natural light that falls between the blue landscape hidden in the solid wall and the brick wall stacked in a double layer with space, you will understand the first impression that looks indifferent. The configuration of the external appearance is simple. The graceful colored wide bricks are stacked firmly, and the partial empty spaced stacking method is applied in the opening and boundary wall, creating the stereoscopic wall appearances. The landscape lighting is adopted only in the parts where the empty-spaced stacking method is applied, making the facade of different night scenery. It is related to the nature of staycation, of which service is delicately adjusted around 6 pm.
The inner guest service space of staycation is divided into two areas, right and left, based on the center bar. The suitable length of the bar is formed at the floor level like a bar. It is surrounded by a high vaulted roof, green landscape in the backyard, patterned natural light, creating a free atmosphere. The variable space is created to be utilized as the space for seasonal exhibitions or various events.
The floor level of the right bar is lowered about 60 cm, and no windows are installed on the wall and planned—the comfortable space in contrast with the right side. On the top, a double-roofed skylight is placed on the upper part. The exterior finishing material that can be seen through the glass surface of the skylight uses mirror stainless steel to create an interesting situation where the eyes of the inside and outside of the staycation intersect.
Staycation is a compound of stay and vacation, meaning to enjoy a vacation at home and nearby the house without departing far away. This place opened in spring 2020 when the corona started to outbreak to live a busy life, fortunately, due to SNS and the support of village people who came to love this place.
Even if it is not a vast space, despite the light attribute and sense of speed of commercial architecture in the neighborhood that drifts without context, I hope that it will continue to exist for a long time as a comfortable space that presents various kinds of inspiration and relaxation. A piece of rest is called 'stay' in our lives.







| 나주 스테이케이션 설계자 | 임태형 _ (주)건축사사무소 플랜 건축주 | 김재권 외 1명 감리자 | 임태형 _ (주)건축사사무소 플랜 시공사 | (주)대유건설 설계팀 | 조하니 대지위치 | 전라남도 나주시 석전2길 주요용도 | 단독주택 및 제2종 근린생활시설 대지면적 | 280.90㎡ 건축면적 | 165.52㎡ 연면적 | 468.42㎡ 건폐율 | 58.92% 용적률 | 166.76% 규모 | 지상 3층 구조 | 기초 _ 철근콘크리트 매트기초 지상 _ 벽 : 철근콘크리트 / 지붕 : 철근콘크리트 외부마감재 | 치장벽돌 쌓기, 영롱쌓기, 아연도강판, 복층유리 내부마감재 | 포세린 타일, 강마루, 실크벽지, 실크 천장지, 화강석 설계기간 | 2018. 10 - 2019. 02 공사기간 | 2019. 07 - 2020. 03 사진 | 김성희 구조분야 : (주)S&구조컨설턴트 기계설비분야 : (주)플렌이엔지 전기분야 : (주)한길이앤씨 소방분야 : (주)한길이앤씨 인테리어 : (주)디자인오 |
Naju Staycation Architect | Lim, Taehyung _ PLAN Architects office Co., Ltd. Client | Kim, Jaegwon Supervisor | Lim, Taehyung _ PLAN Architects office Co., Ltd. Construction | DAEU Co., Ltd. Project team | Jo, Hanee Location | Seokjeon 2-gil, Naju-si, Jeollanam-do, Korea Program | Single family house, Type2 commercial facilities Site area | 280.90㎡ Building area | 165.52㎡ Gross floor area | 468.42㎡ Building to land ratio | 58.92% Floor area ratio | 166.76% Building scope | 3F Structure | Ferroconcrete Mat Foundation Exterior finishing | Veneer wall, Brick Stacking, Galvanized sheet iron, Double glazing Interior finishing | Porcelain tile, laminate floor, Silk wall paper, Silk ceiling paper, Granite Design period | Oct. 2018 - Feb. 2019 Construction period | Jul. 2019 - Mar. 2020 Photograph | Kim, Sunghee Structural engineer | S&ENG, lnc. Mechanical engineer | Planeng, lnc. Electrical engineer | Hangil, lnc. Fire engineer | Hangil, lnc. Interior engineer | Design5, lnc. |
'회원작품 | Projects > Neighborhood Facility' 카테고리의 다른 글
| Cafe KLITZ 2021.9 (0) | 2023.02.09 |
|---|---|
| 세종대학교 캠퍼스타운 거점센터 2021.8 (0) | 2023.02.08 |
| 라티스 빌딩 2021.7 (0) | 2023.02.07 |
| 반하당 2021.7 (0) | 2023.02.07 |
| 청년공간 길:이음 2021.6 (0) | 2023.02.06 |
