2023. 2. 6. 09:17ㆍ회원작품 | Projects/Neighborhood Facility
Youth Space Gil:eum

대지는 길음역 7번 출구에서 도보 5분 거리에 위치하며 20미터 도로에 접하고 있다. 작은 점포들이 연속되어 있던 거리에 근린생활시설이 차츰 들어서면서 거리의 풍경이 바뀌고 있다.
기존 건물은 1960년에 시멘트블록으로 지어진 단층의 단독주택인데, 마당 부분을 점포로 활용하기 위해 지붕을 덧붙인 것이 확인됐다. 이번 작업은 건축물대장에 기재된 면적에 맞추어 증축된 부분을 덜어내고 내부의 칸막이벽을 철거하여 청년공간으로 리모델링하는 작업이다.
지붕은 일본식 중목구조로 틀이 형성되어 있어 그 뼈대를 드러내기 위한 작업이 공사의 중요한 부분이 된다. 마당의 지붕을 철거하고 보니 60년이 된 목재틀은 재사용이 불가능할 정도로 훼손되어 있어 그 형태를 유지하며 새로운 목재로 뼈대를 형성했다.
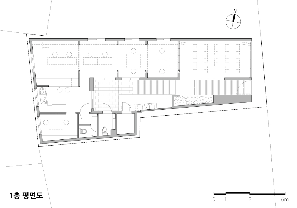
작은 방들로 나뉘어 있던 내부 공간은 벽체를 철거하면서 목재 기둥과 보로 보강하여 하나의 공간으로 구성했다. 기존에 사용하던 보일러와 바닥난방을 유지하여 철거범위를 최소화하고, 외부 벽체에 설치되어 있던 목재 창호는 같은 크기의 알루미늄 창호로 교체, 적벽돌과 수성페인트로 구성된 외부 벽체는 그대로 유지했다. 지붕으로 오르는 철제 계단도 기존의 구조물을 유지하며 난간을 보강했다.
‘청년공간 길:이음’은 성북구청 일자리경제과에서 추진해온 사업이다. 성북구의 청년네크워크를 중심으로 청년 창업지원과 지역주민 커뮤니티센터 공간으로 활용되며, 삼양로 거리의 새로운 풍경으로 자리하게 될 것으로 기대해 본다.

The site is located five minutes' walk from Exit 7 of Gileum Station and is adjacent to a 20-meter road. As neighborhood living facilities gradually enter the streets where small stores were continuing, the landscape of the streets is changing.
The existing building is a single-story detached house built with cement blocks in 1960, and it is confirmed that the roof was added to use the yard as a store. The work is to remove the part of the extension according to the area listed in the building register and remodel it into a youth space by removing the barrier removal.
The roof is a Japanese-style wooden structure, so the work to reveal its frame becomes an important part of the construction. When the roof of the yard was removed, the 60-year-old wooden frame was damaged beyond reuse, maintaining its shape and forming a frame of new wood.
The interior space, which was divided into small rooms, consists of a single space, reinforcing the walls with wooden pillars and beams. The existing boiler and floor heating are maintained to minimize the scope of demolition. Wood windows installed on exterior walls are replaced with aluminum windows of the same size, and exterior walls consisting of red bricks and water-based paints are maintained. Steel stairs to the roof also maintain existing structures and reinforce the railings.
Youth Space Gil:eum, this project has been promoted by the Seongbuk-gu Office's Job Economy Division, and is expected to be used as a space for youth start-up support and community center for local residents, centered around the youth network in Seongbuk-gu.









| 청년공간 길:이음청년공간 길:이음 설계자 | 김경희_(주)건축사사무소 모도건축 건축주 | 성북구청 시공사 | 사회적 기업 새암 설계팀 | 이응락 대지위치 | 서울특별시 성북구 삼양로 31 주요용도 | 근린생활시설(사무소) 대지면적 | 138.50㎡ 건축면적 | 71.47㎡ 연면적 | 71.47㎡ 건폐율 | 51.60% 용적률 | 51.60% 규모 | 지상 1층 구조 | 지붕 - 목구조 / 벽 - 시멘트블록조 외부마감재 | 치장벽돌 쌓기 및 수성 페인트 (기존 마감재 유지) 내부마감재 | 바닥 - PVC타일, 벽 - 결로방지 단열 페인트(온새미로). 천장 - 결로방지 단열 페인트(온새미로), 목재(오일스테인) 설계기간 | 2020. 02 - 2020. 04 공사기간 | 2020. 06 – 2020. 10 사진 | 김재경 구조분야 : (주)파워구조기술사사무소 기계설비분야 : (주)하나설비설계사무소 전기분야 : (주)하나설비설계사무소 |
Youth Space Gil:eum Architect | Kim, Kyunghee_modo architect office Client | Seongbuk-gu Office Construction | Seam Project team | Lee, Eungrak Location | 31, Samyang-ro, Seongbuk-gu, Seoul, Korea Program | Neighborhood facility(office) Site area | 138.50㎡ Building area | 71.47㎡ Gross floor area | 71.47㎡ Building to land ratio | 51.60% Floor area ratio | 51.60% Building scope | 1F Structure | Timber structure + Cement block structure Exterior finishing | Brick, Water paint Interior finishing | PVC tile, Heat insulated paints, Wood Design period | Feb. 2020 - Apr. 2020 Construction period | Jun. 2020 – Oct. 2020 Photograph | Kim, Jae-Kyeong Structural engineer | Power structure & engineering Mechanical engineer | Hana engineering Electrical engineer | Hana engineering |
'회원작품 | Projects > Neighborhood Facility' 카테고리의 다른 글
| 라티스 빌딩 2021.7 (0) | 2023.02.07 |
|---|---|
| 반하당 2021.7 (0) | 2023.02.07 |
| SNOW5319 2021.6 (0) | 2023.02.06 |
| 김빌딩 2021.5 (0) | 2023.02.03 |
| 엄지척 2021.4 (0) | 2023.02.02 |
