2023. 2. 3. 16:46ㆍ회원작품 | Projects/Neighborhood Facility
KIM BLDG.

도시 재생을 위하여…
오늘날, 지난 1980~1990년대에 빠른 도시화를 반영하여 준공된 건물들이 노후화로 인해 새로운 숨결을 요구하는 대수선이나 신축을 요구하는 경우가 많다. 본 프로젝트는 2종 일반주거지역이지만 과거 용적률 250퍼센트인 시대에 지어진 건물로서, 신축보다는 대수선을 선택하여 건축물로서의 두 번째 삶을 시작하게 만드는 도시재생 프로젝트이다.
최초 건물의 양태는 드라이비트 외관을 가지고 있었으며, 그 또한 과거 자기질 타일 외관에 덧방시공한 결과물이었다. 과거 법규에 따라 도로 사선제한에 의해 건물의 전면부가 깎여있는 상태였고, 4층까지는 라멘구조이고, 5층은 내력벽 구조여서 전 층을 사옥으로 사용할 예정인 건축주로서는 구조 보강 요구가 필수적이었다. 또한 5층 건물임에도 엘리베이터가 없었기에, 엘리베이터를 설치하기 위해 모든 층의 해당 슬라브를 삭제하고 구조 보강을 해야 하는 작업도 필수적인 사항이었다. 1층은 카페, 2~5층은 사옥, 지하층은 복합 문화공간으로 구성하는 것을 목표로 전면 대수선 프로젝트에 임하게 되었다. 골조 구조 보강을 포함한, 내·외부 모든 요소를 재구성하는 대수선 프로젝트였다.
서교동이라는 격자형 도시 속에서 대지에 강한 존재감으로 자리 잡도록 하기 위해 외관은 묵직한 마천석으로 제안했다. 저층부는 플라워카페의 이미지를 반영하고, 상층부의 매스감을 돋보이게 하기 위해 마천석보다 밝은 고흥석으로 외피구성을 하였다. 입면의 명도 차이를 통해 콘트라스트를 구현하면서, 부유감을 부여하려고 하였다. 모든 석재는 가로메지만 강조하기 위해 상부 쪽을 45도 커팅하여 시공하였다.
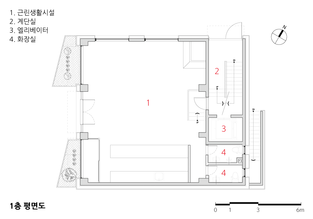
기존 화장실 전면 위치를 엘리베이터 후면인 내부로 변경하고, 그 자리에 엘리베이터를 삽입하기 위한 철거 및 구조 보강공사가 장기간 진행되었다. 내부 공간의 효율성을 극대화하기 위해 대공간을 만들어야 했고, 구조기술사와 함께 구조보강은 최대한 외벽 쪽으로 구성하도록 하였다. 도로 사선제한도 적용받지 않기 때문에, 그 부분을 철거하고 새로이 벽체를 구성하여 오롯한 존재감을 위해 입방체의 형상을 만들고자 하였다.
전체의 통일된 입면 구축을 위해 기존의 불규칙한 개구부들의 일부는 채우고, 어느 곳은 절개하여 개구부 창호의 균질성을 확보해 입방체의 가치를 보좌할 수 있도록 의도하였다. 전 층의 전기, 통신, 설비도 새로운 경로를 통해 모두 재설정하였다.
온전히 강인한 생명을 얻은 건축물이, 이어질 다음 생애에 굳건한 모습으로 많은 사람에게 영감과 행복을 주는 공간으로 뿌리내릴 수 있기를 바라본다.

For urban regeneration...
Today, old buildings that were completed with rapid urbanization in the 1980s and 1990s often need to be newly born through significant remodeling or new construction due to aging. This project stands in a General Residential Zone 2, but the building was built when the floor area ratio was 250%. Therefore, it is an urban regeneration project that begins its second life as a building through remodeling rather than new construction.
The existing exterior of the building has Dryvit, which was also the result of covering over the existing porcelain tile exterior in the past. According to the past laws, the building's facade resulted from setback regulation from road width, and the 4th floor had Rahmen structure, and the 5th floor had bearing wall structure. Therefore, structural repair was required because the client wanted to use the entire building as an office building. In addition, there was no elevator even though it was a five-story building, so it was essential to remove the slabs from all floors and reinforce the structure to install the elevator. This project was intended to remodel the first floor as a café, the 2nd to 5th floors as an office building, and the basement floor as a complex cultural space. It is designed to reconstruct all elements inside and outside, such as reinforcing the frame structure.
To show its strong presence on the site in an urban grid of Seogyo-dong, the exterior is designed with heavy Macheon stone. The coverings were made of Goheung stone, which is brighter than Macheon stone, to reflect the flower cafe's image on the lower floors and highlight the sense of mass on the upper floors. We tried to express a feeling of floating while contrasting the lightness difference of the elevation. The stone was a horizontal masonry joint, but the upper part was cut at 45 degrees to emphasize it.
The demolition and structural reinforcement work was carried out for an extended period to change the front of the existing toilet to the interior, the rear of the elevator, and install the elevator. Also, to maximize the efficiency of the indoor space, ample space was created. The structure was reinforced toward the outer wall as much as possible in consultation with the structural designer. Since it was exempted from setback regulation from road width, we planned to demolish the part and construct a new wall to make it cube-shaped for its complete presence.
To establish the unified elevation as a whole, we designed to value the shape of the cube by filling some of the existing irregular openings and cutting them in some places to secure the homogeneity of windows. The electricity, communication, and equipment for all floors were also reset through a new route.
I hope that this building, given a new life, can take root as a space that provides inspiration and happiness for many people in a solid form in its next life.










| 김빌딩 설계자 | 이근식 _ (주)엘케이에스에이 건축사사무소 건축주 | 김진철 감리자 | 이근식 _ (주)엘케이에스에이 건축사사무소 시공사 | (주)떼오하우스종합건설 설계팀 | 김성주 대지위치 | 서울특별시 마포구 서교동 주요용도 | 근린생활시설 대지면적 | 234.40㎡ 건축면적 | 123.18㎡ 연면적 | 710.70㎡ 건폐율 | 52.55% 용적률 | 250.65% 규모 | 지하 1층, 지상 5층 구조 | 철근콘크리트 외부마감재 | 상부 마천석, 하부 고흥석 내부마감재 | 페인트 설계기간 | 2019. 10 - 2020. 01 공사기간 | 2020. 03 - 2020. 09 사진 | 안병규 구조분야 : 파워구조 기계설비분야 : 주신MEC 전기분야 : 엘림전설 |
KIM BLDG. Architect | Lee, Keunsik _ LEE KEUN SIK Architects Client | Kim, Jinchul Supervisor | Lee, Keunsik _ LEE KEUN SIK Architects Construction | TOHAUS ARCHITECTURE INTERIOR DESIGN Project team | Kim, Sungjoo Location | Seogyo-dong, Mapo-gu, Seoul, Republic of Korea Program | Neighborhood FACILITY Site area | 234.40㎡ Building area | 123.18㎡ Gross floor area | 710.70㎡ Building to land ratio | 52.55% Floor area ratio | 250.65% Building scope | B1F - 5F Structure | RC Exterior finishing | Stone Interior finishing | Paint Design period | Oct. 2019 - Jan. 2020 Construction period | Mar. 2020 - Sep. 2020 Photograph | An Byunggyu Structural engineer | Power Structure consultants Mechanical engineer | JUSIN MEC Electrical engineer | ELLIM |
'회원작품 | Projects > Neighborhood Facility' 카테고리의 다른 글
| 청년공간 길:이음 2021.6 (0) | 2023.02.06 |
|---|---|
| SNOW5319 2021.6 (0) | 2023.02.06 |
| 엄지척 2021.4 (0) | 2023.02.02 |
| PAULBASSETT DT점 2021.4 (0) | 2023.02.02 |
| 하늘을 드린_옥동상가주택 2021.4 (0) | 2023.02.02 |
