2023. 2. 16. 09:17ㆍ회원작품 | Projects/House
Memories of Giwa

한옥의 기억_추억이 현실이 되다
강화도 단독주택 ‘기와의 추억’은 아련한 추억의 작품이다. 건축주는 첫 상담 시 지붕 재료는 기와를 적용하고, 몸이 불편하니 계단 대신 경사로를 계획해 달라는 것과 패시브 주택(PASSIVE HOUSE)이면 좋겠다는 바람을 전했다. 지긋이 나이가 든 지금, 단순한 재료로서의 기와가 아닌 어릴 적 한옥에서의 기억이 너무 그리웠던 것은 아닐까? 강화도 단독주택 ‘기와의 추억’은 이런 그리움을 담기 위한 집이다.
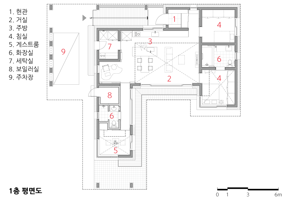
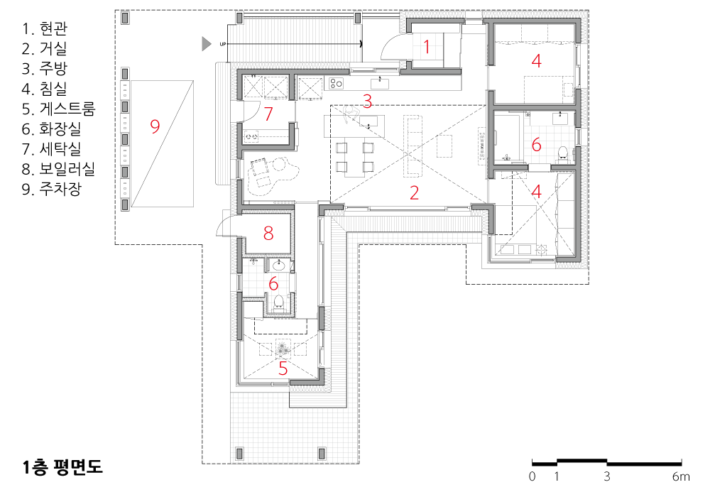
중정을 품은 단층주택, 치유하듯 거니는 원형의 산책로
전체적인 매스는 가운데 중정을 품은 단층의 ‘ㅜ+ㄷ’자 형이다. 거실을 중심으로 양옆엔 길고 작은 매스를 배치하여 중정을 만들었다. 건물은 대지 가운데 배치하고, 건물 주변으로는 원형의 산책로를 계획하여 중심의 주택을 고스란히 감상할 수 있도록 하였다. 이는 넓은 여백을 사색하듯 움직임의 선으로 채우는 요소이기도 하다. 건축주가 요구한 기와는 평기와로 제안하여 현대적 느낌의 한옥에 다가서려 했다.
대문을 열고 들어서면 가로로 긴 매스와 마주한다. 마치 한옥의 사랑방을 닮았는데, 손님을 맞이하는 공간이기도 하고 사적인 생활이 가능하도록 안마당을 보호하는 요소이기도 하다.
강렬한 첫인상_표정 있는 전이 공간
전반적으로 차분한 느낌의 한옥이 연상되도록 지붕은 박공형태를, 외장재는 회색의 모노타일을 적용하였다. 건물 전체의 첫인상을 좌우하는 이곳은 외부이면서 내부의 성격을 지닌 전이 공간인데, 비를 맞지 않는 외부공간으로서 온화하지만 강렬하고 굳건히 구축된 모습으로 노부부의 삶을 은유하듯 보여주려 했다.
기술과 아름다움을 담아낸 저에너지 주택
빛과 바람과 단열, 환기 등 쾌적한 공간을 만들기 위해 열교 극복, 우수한 단열성능 자재 및 기밀시공 등 패시브 하우스(PASSIVE HOUSE) 요소가 설계와 시공에 반영되었다. 디자인 등 고려할 부분이 많았지만 목재를 적절히 활용하면서 최대한 미적인 부분을 담아내려 노력하였다.
하이브리드 구조_철근콘크리트+중목구조
구조는 기초와 벽체는 철근콘크리트로, 지붕은 중목구조를 적용한 하이브리드 구조이다. 목재를 사용하여 한옥과 유사한 느낌을 주고 경사지붕의 시공성도 고려한 선택이었다.

The memories of hanok_memory become a reality.
Ganghwa Island detached house ‘Memories of Giwa’ is a work of dim memories. During the first consultation, the owner asked me to apply tile roofing materials and plan a ramp instead of stairs because they were uncomfortable, and hoped that it would be a passive house. Perhaps they missed the memories of hanok as a child, not just Giwa as a simple material. Ganghwa Island's detached house ‘Memories of Giwa’ is a house to capture this longing.
A single-story house with courtyard,
A circular walkway that you walk as if you're healing.
The overall mass is a single layer of ‘ㅜ+ㄷ’ shape with courtyard in the center. Long and small masses were placed on both sides of the living room to create a courtyard. The building was placed in the middle of the site, and a circular walkway was planned around the building so that the central house could be enjoyed intact. It is also an element that fills the wide margin with lines of movement as if contemplating. The tile they requested was proposed as a plain roof tile to approach a modern hanok.
When you open the gate and enter, you will face a long horizontal mass. It resembles a guest room in a hanok, but it is also a space to greet guests and an element to protect the courtyard to enable private life.
Intense first impression. A space with facial expressions.
Overall, the roof is in the form of a gable and the exterior material is gray monotile to remind of a calm hanok. This place, which determines the first impression of the entire building, is an outer and internal transition space, and as a non-conforming outer space, it tried to metaphorically show the lives of old couples in a gentle but intense and powerful images.
A low-energy house with technology and beauty.
Passive house elements such as overcoming heat bridges, excellent insulation performance materials, and airtight construction were reflected in the design and construction to create a pleasant space such as light, wind, insulation, and ventilation. There were many things to consider, such as design, but we tried to capture the aesthetic parts as much as possible while properly utilizing wood.
Hybrid Structure_Reinforced Concrete+Wooden post & beam Structure
The structure is a hybrid structure in which the foundation and walls are reinforced concrete, and the roof is a Wooden post & beam Structure. It was a choice that used wood to give a feeling similar to that of hanok and considered the construction of the sloped roof.












| 기와의 추억 설계자 | 서경화 _ 플라잉 건축사사무소 건축주 | 윤팔중자 감리자 | 서경화 _ 플라잉 건축사사무소 시공사 | 윈윈하우징 대지위치 | 인천광역시 강화군 내가면 강화서로 225번길 17 주요용도 | 단독주택 대지면적 | 1,269.00㎡ 건축면적 | 191.62㎡ 연면적 | 191.62㎡(용적률 산정면적 : 164.25㎡) 건폐율 | 15.10% 용적률 | 12.94% 규모 | 1층 구조 | 철근콘크리트구조 + 중목구조(지붕) 외부마감재 | 모노타일(오석 클래식) 내부마감재 | 도배지, 원목마루, 편백나무, 타일 설계기간 | 2020. 06 - 2020. 11 공사기간 | 2020. 12 – 2021. 08 사진 | 권기돈 전문기술협력 - 구조분야 : (주)두항구조안전기술사사무소 - 기계설비분야 : (주)코담기술단 - 전기분야 : 제이앤영 |
Memories of Giwa Architect | Seo, Kyounghwa _ Flying Architecture Client | Yoon, Paljungja Supervisor | Seo, Kyounghwa _ Flying Architecture Construction | Winwin Housing Location | 17, Ganghwaseo-ro 225beon-gil, Naega-myeon, Ganghwa-gun, Incheon, Korea Program | House Site area | 1,269.00㎡ Building area | 191.62㎡ Gross floor area | 191.62㎡ Building to land ratio | 15.10% Floor area ratio | 12.94% Building scope | 1F Structure | RC+Light-frame wood structure Exterior finishing | Mono Tile Interior finishing | Wallpaper, Wood flooring, Wood louver, Tile Design period | Jun. 2020 - Nov. 2020 Construction period | Dec. 2020 – Aug. 2021 Photograph | Kwon, Keedon Structural engineer | Doohang Structures & Consultants Co. Ltd Mechanical engineer | CODAM Technology company Electrical engineer | J&Young Electrical & Mechanical |

'회원작품 | Projects > House' 카테고리의 다른 글
| 커튼콜 2022.2 (0) | 2023.02.16 |
|---|---|
| USD HOUSE 2022.2 (0) | 2023.02.16 |
| 사이먼하우스 2022.2 (0) | 2023.02.16 |
| 수완동 주택 2022.2 (0) | 2023.02.16 |
| 커브 하우스 2022.1 (0) | 2023.02.15 |