2023. 2. 16. 09:13ㆍ회원작품 | Projects/House
Simon House

건축주는 자신과 함께 늙어갈 집을 짓고 싶어 했다. 지금은 청소년인 두 자식들이 미래에 각자의 삶을 찾아 세상에 나간 후에도 언제든 찾아와서 기댈 수 있는 부모로 늙어가고 싶어 하는 욕망처럼, 집도 자식들이 언제든 찾아와서 쉴 수 있는 곳이길 바랐다.
각 구성원의 개별공간은 현재의 쓰임새를 충족시킬 뿐 아니라 미래에 독립한 자녀들이 단기간 자신의 가족과 함께 지낼 수 있는 구조여야 했다. 따라서 각 구성원의 침실은 내부에서 독립적인 위치를 점할 수 있어야 할 뿐 아니라 충분한 크기를 갖추고 독립적으로 기능할 수 있어야 했다. 건축주가 요구한 프로그램은 법에서 정의된 용적률 내에서 확보하기 어려워 최대한의 면적을 확보할 수 있는 방법을 모색하는 것으로부터 설계가 시작되었다.
설계를 진행하는 도중 Covid 시대가 도래하였다. 건축주의 요구사항이었던 공간의 충분한 크기와 독립성은 집에서 머무는 시간이 길어지는 시대에 필수적인 요소가 되고 말았다. 저녁에 들어와서 잠을 자고 나가던 공간이 24시간 내내 머무르며 자고 쉬고 일하고 배설하는 모든 행위를 담아내는 공간으로 변모하고 있는 것이다.
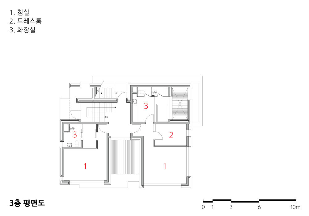
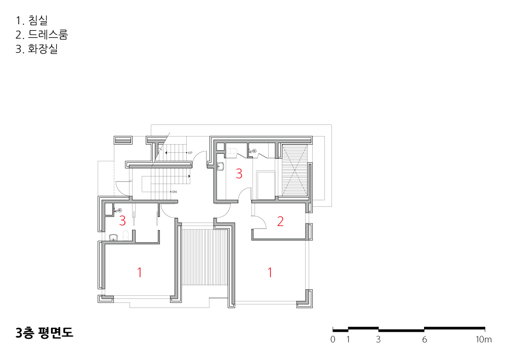
각 구성원들의 침실을 각 층별로 분산시켜 독립적인 개별공간의 위치를 확보하고, 가족이 공유하는 거실 주방도 독립적인 구조를 가질 수 있도록 하였다. 각 침실에는 개별적인 화장실이 구성되어 있어 독립적으로 생활이 가능한 구조를 가지고 있다. 또한, 내부공간의 크기가 한정적일 수밖에 없는 점을 고려하여 부지를 둘러싼 자연 및 도시의 외부공간을 시각적으로 들여오는 역할을 하는 창을 계획하였다.
집에서 머무는 시간이 길어질수록 외부공간에 대한 요구사항은 커질 수밖에 없다. 물리적으로 작은 크기의 대지에 외부공간을 담아낼 수 없기에, 전통적인 개념의 마당은 지붕의 상부와 각 층에 마련된 발코니 공간으로 치환되어 설계되었다. 각 발코니 공간들은 공용으로 사용하는 공간에 부속되도록 하여, 확장되는 공용공간으로서의 성격을 가지도록 의도되었다. 또한, 대지의 동측에 자리한 공원의 풍경을 내부에서 차경(借景)할 수 있도록 창을 배치하여 내부에서만 머무르더라도 공간이 확장되는 효과를 가지도록 의도되었다.
재료의 측면에서 보면 건축주가 이 집과 함께 쌓아갈 시간에도 굳건히 형태를 유지해 나가고, 때가 타면서 세월을 담아낼 수 있는 벽돌을 주재료로 하였다. 도시계획에서 정의해 놓은 지붕의 경사도를 이용하여 각 공간의 형태가 밖으로 드러나도록 하여 시각적 특성을 부여하였으며, 지붕의 경사는 내부공간의 경사가 되어 풍부한 공간이 되도록 하였다.
시간이 지나면 각각의 공간을 점유하는 구성원이 바뀌기도 하고, 구성원의 수가 늘기도 하면서 집은 주인과 함께 늙어갈 것이다.

The client wanted to build a house that would grow older together with him. Just like his own desire to become older as a parent on whom his two children, who are now teenagers, would be able to come back to rely even after they go out to the world in search of their own lives in the future, he wanted his house as well to be the place where his children could come and rest at any time.
Each member's individual space had to have a structure not only to satisfy the current use but also to allow his future independent children to stay with their own families for a short period of time. Accordingly, each member's bedroom had to be able not only to occupy an independent position in the interior, but also be of sufficient size to be capable of functioning independently. As it is difficult to secure the program requested by the client within the floor area ratio stipulated in the law, the design began by seeking a way to secure the maximum area.
During the design process, the COVID-19 era has come. The sufficient size and independence of the space, which were the requirements of the client, have become essential elements in the era where people must prolong their stay at home. It means that the space that they used to come in at night and then go to sleep is being transformed into the space that they stay for 24 hours and contain all the actions of sleeping, resting, working, and excreting.
The bedrooms of each member are distributed on each floor to secure the position of an independent individual space, and the living room and the kitchen, shared by the family, were also made to have an independent structure. Each bedroom has a separate toilet, so that they may live independently. In addition, considering the fact that the size of the interior space cannot help being limited, a window was planned to visually bring in the natural and urban exterior space surrounding the site.
The longer the time spent at home becomes, the greater the requirements for external space will become naturally. Since the external space cannot be physically contained in the small-size site, the yard from a traditional concept was designed to be replaced with the balcony space prepared on the upper part of roofs and on each floor. Each balcony space is intended to be attached to the commonly-used space and to have the character as an expanded common-use space. In addition, by arranging windows so that the scenery of the park located on the east side of the site can be seen from the inside, it was intended to have the effect of expanding the space even if the client’s family might stay inside only.
In terms of materials, bricks were utilized as a main material, since they could firmly hold its shape even while the time is accumulated with the client and this house and could contain the trace of years as stained more as time goes by. By using the roof gradient defined in the city planning, the shape of each space was made to be exposed to the outside to give visual properties, and the slope of the roof becomes the slope of the interior space to create a rich space.
As time passes, while the members occupying each component’s space might change and the number of members might increase, the house will grow older together with the owner.







| 사이먼하우스 설계자 | 윤훤 · 이지은_건축사사무소 디베르카 건축주 | 안성모 시공사 | 안성모 _ (주)아이티종합건설 대지위치 | 경기도 파주시 동패로51번길 12 주요용도 | 단독주택 대지면적 | 265.30㎡ 건축면적 | 154.87㎡ 연면적 | 301.36㎡ 건폐율 | 58.38 % 용적률 | 113.59 % 규모 | 지상 3층 구조 | 철근콘크리트구조 외부마감재 | 롱브릭, 로이3중유리 설계기간 | 2019. 09 - 2020. 03 공사기간 | 2020. 04 - 2021. 04 사진 | 여인우 |
Simon House Architect | Yoon, Hwon · Lee, Jieun_D_Werker Architects Client | Ahn, Simon Construction | Ahn, Simon _ IT Construction Location | 12, Dongpae-ro 51beon-gil, Paju-si, Gyeonggi-do, Korea Program | Single House Site area | 265.30㎡ Building area | 154.87㎡ Gross floor area | 301.36㎡ Building to land ratio | 58.38 % Floor area ratio | 113.59 % Building scope | 3F Structure | RC Exterior finishing | Brick, Low-E Triple Glass Design period | Sep. 2019 - Mar. 2020 Construction period | Apr. 2020 - Apr. 2021 Photograph | Yeo, Inwoo |

'회원작품 | Projects > House' 카테고리의 다른 글
| USD HOUSE 2022.2 (0) | 2023.02.16 |
|---|---|
| 기와의 추억 2022.2 (0) | 2023.02.16 |
| 수완동 주택 2022.2 (0) | 2023.02.16 |
| 커브 하우스 2022.1 (0) | 2023.02.15 |
| 레시오빌딩 트리폴리 2022.1 (0) | 2023.02.15 |