2023. 2. 17. 09:10ㆍ회원작품 | Projects/House
Jeju Dalkomgeumbok House

제주에서 그나마 가장 ‘도시적’인 냄새가 묻어있는 곳을 꼽으라면 제주공항 인근일 것이다. 제주공항에서 동쪽으로 8킬로미터쯤 들어가면 신도시 삼양동이 있다. 삼양동도 도시적인 느낌이 강한 제주공항 인근에 포함된다. 육지의 어떤 신도시보다 작은 규모의 동네지만 신도시라는 지칭에 그런대로 잘 어울린다. 잘 구획된 도로로 하여금 삼양동을 제법 그럴싸한 신도시로 가장케 한 것이다. 그럼에도 한편으로는 ‘제주스러움’을 간직하고 있다.
건축물은 그 속에 근거하는 인간의 삶을 필연적으로 닮게 되어있다. 어린아이 둘을 둔 부부가 살게 될 집은 역동하는 삶을 담을 수 있어야 했다. 같은 방향을 보고 걸어가는 것이 부부라고 하여도, 본디 서로 달리 살아오던 둘의 삶이 맞물리게 된 것이므로, 각자의 삶을 녹여낼 공간도 필요하다.
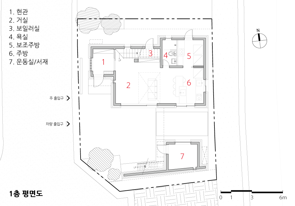
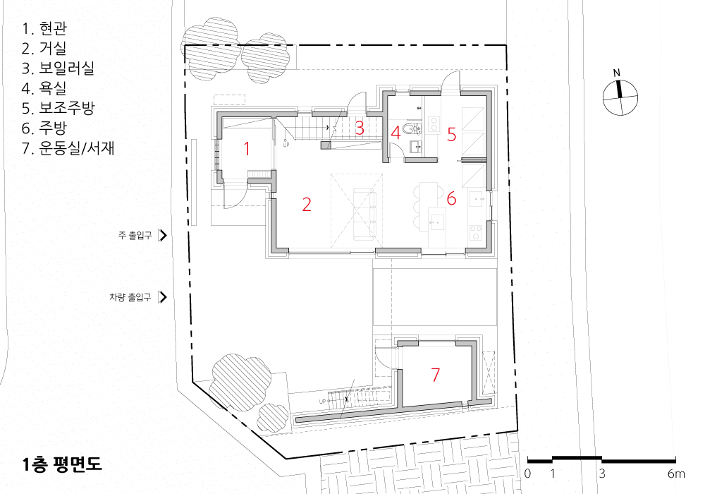
1층은 거실 주방과 남편의 취미실, 작은 화장실이 있다. 2층은 두 아이의 방과 가족실, 안방, 아내의 취미실이 있다. 1층과 2층으로 부부가 주로 활동하는 공간이 잘 분리되어, 공간적 궁합이 잘 맞게 되었다는 생각이 들었다. 부부의 취미 공간이 층을 달리하여, 부부의 사생활이 보장받게 된 것이다.
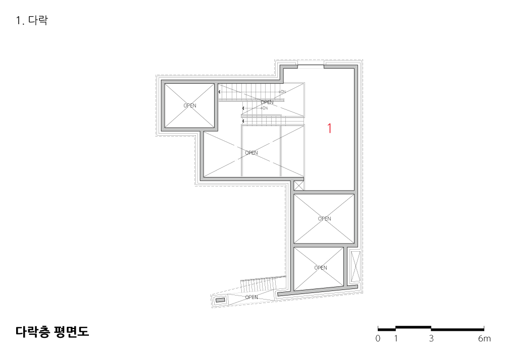
2층의 아이방 역시 어른들의 취미방이 층을 달리한 것과 맥락을 같이한다. 아이들도 어른들과 마찬가지로 개인으로서 존중받아야 마땅하다. 아이방1에서 조금 더 올라가면 아이방2가 있고, 또 그곳에서 한 번 더 올라가야 다락이 있는 형식인데, 작은 별개의 공간들이 계단을 중심으로 연속적으로 엮여있어 아이들이 가족과 함께하면서도 독립된 인격체로서 존중받을 수 있는 영역을 확보할 수 있게 했다. 가족 구성원들이 다 자신의 자리가 있는 집의 형상을 만들고자 했기에 넉넉한 기분이 드는 집이 되었다.
집 밖으로 나와 전체를 보자면, 집이 마당을 빙 둘러친 듯한 형태로 있다. 작은 중심공간(마당)을 품고 있는 주변부 큰 공간(집)이 있는 셈이다. 이를 가족의 형태에 빗댈 수도 있다는 생각이 든다. 중심부 공간은 아이와 같고 주변부 공간은 부모와 같다. 각자의 공간을 굵게 휘감듯 감싸 안아 지키고 있는 듯한 집의 형태가, 가정을 평안하게 지키는 수호신으로서 역할을 할 수 있을 것이라고 생각되리만치 믿음직스러웠다.
마감에 대한 이야기도 빼놓을 수 없다. 내부는 자작합판을 사용하여 다양한 디테일을 추가했다. 가늘고 길게 느껴지는 모서리면을 세우고 민무늬면을 넓게 붙여서 세로의 길쭉한 느낌을 내부 공간에 반영했다.
외부는 벽돌을 붙여서 제주도의 거친 현무암 느낌을 나타냈다. 이 집만의 멋스러움을 더 하기 위해서 다양한 쌓기 방식을 추구하고, 내부의 수직적 느낌과 통일성을 주고자 외벽의 일부를 벽돌로 마감했다. 벽돌의 수직적인 느낌과 사선의 철골 구조가 만나 비상하는 듯한 역동성이 있는데, 이는 젊은 부부의 모습을 반영한다.
건축은 건축주의 취향을 반영하는 것이기도 하고, 그들의 삶의 형태를 반영하기도 한다. 집이 다 지어졌을 때 나는 항상 복을 짓는 말을 하며, 복을 짓는 행동으로 상대를 대하던 부부를 닮은 집이 탄생한 것 같다는 생각이 들었다. ‘달콤금복집’이라는 집의 이름에 걸맞게, 항상 복이 가득 들고 기운이 넘치는 집이 되기를 소망한다.

Probably, Jeju is the place that exudes its distinctive flavor from the name more than anywhere else in Korea.
Jeju was also called Samdado because stone, wind, and women were many in Jeju. Although the original explanation of lots of ‘wind, women, and stone” is changing so quickly that these days it feels a little far-fetched, it is still positioned as a resting place somehow in our hearts. Although not physically far from land, Jeju seems quite far from urban things. You can feel the identity of Jeju wherever you go, unlike in Seoul, where you have entirely different feelings depending on administrative districts. The wind, smell, and flavor from its vegetation and seas.
If I were to pick one place in Jeju having the most ‘urban’ vibe, it would be near Jeju International Airport. About 8 kilometers east of Jeju International Airport, a new city called Samyang-dong. Samyang-dong is also in Jeju International Airport, which has a strong urban feel. Although it is a smaller town than any new town on land, it befits the name of a new city. Moreover, the well-divided roads made Samyang-dong a plausible new village. On the other hand, nevertheless, it keeps ‘Jeju-style.’
In Samyang-dong, a young city that has melted into Jeju with its strong personality, a young couple who was trying to set up a small home there one day came to my office. After several thoughts that a young couple and a young city had something in common, so it was desirable, I began designing by reflecting on their story.
To describe the site in detail where the couple's house was located, it was a place with a lot of energy and a good location where there are roads for pedestrians and vehicles on both sides. If a luxurious detached house is built, it could be sure to attract a lot of people's attention.
A building inevitably resembles the life of the people who have their base in. So the house in which a couple with their two young children will live had to contain an active life. Even if the couple walks in the same direction, the lives of the two who had initially lived differently have been intertwined so that spaces for each one's life are also needed.
There are a living room, a kitchen, the husband's hobby room, and a small bathroom on the first floor. The second floor has two children's rooms, a family room, the main bedroom, and the wife's hobby room. The spaces in which the couple spend mainly are so separated on the first and second floors that spatial compatibility was a good fit. In addition, they can do their hobbies on different floors, so the couple's privacy is guaranteed.
The children's rooms on the second floor are also in the same context as the hobby rooms for the adults on different floors. Children also deserve respect as individuals like adults. You can find a children's room 2 when you go up a little more from a children's room 1, and from there, you have to go up one more time to get an attic. Small separate spaces are continuously connected around the stairs, allowing the children to secure an area where they can be respected as individuals while being with their families. Since all the family members wanted to form a house with their places, it became a home that could feel spacious.
When you look at the whole house, it is shaped like encircling a yard. In other words, there is ample space(house) in the periphery that embraces a small central area (yard). I think it can be compared to the form of families. The main space is like children, and the peripheral space is like parents. The shape of the house, which was like wrapping around each one's space as if nestling and guarding, was so reliable that I thought it could play a role as a guardian deity to keep peace in the family.
When the house was built entirely, I thought that a place resembles the couple who always treat others, saying and doing something to bring good luck. Therefore, befitting the name 'Dalkom Geumbok House,' I hope it will always be a house full of happiness and energy.








| 제주 달콤금복집 설계자 | 김동희_건축사사무소 케이디디에이치 건축주 | 남상진 감리자 | 강성은 _ 건축사사무소혜윰 시공사 | 건축주 직영 설계팀 | 김도연, 손정용, 정혜수, 김미선, 애블린 대지위치 | 제주특별자치도 제주시 건주로2길 17 주요용도 | 단독주택 대지면적 | 207.00㎡ 건축면적 | 80.53㎡ 연면적 | 139.23㎡ 건폐율 | 38.90% 용적률 | 67.26% 규모 | 2층 구조 | 철근콘크리트구조 외부마감재 | 벽돌, 칼라강판 내부마감재 | 자작합판, 벽지, 강마루 설계기간 | 2018. 05 - 2018. 10 공사기간 | 2018. 10 - 2019. 09 사진 | 이한울 전문기술협력 - 구조분야 : 지성철 · 임영민 _ 건축구조기술사사무소 지성 - 기계설비분야 : (주)대림엠이씨 - 전기분야 : (주)대림엠이씨 - 소방분야 : (주)대림엠이씨 |
Jeju Dalkomgeumbok House Architect | Kim, Donghee_ KDDH architects Client | Nam, Sangjin Supervisor | Kang, Seongeun Construction | Owner direct control Project team | Kim, Doyeon / Son, Jeongyong / Jeong, Hyesu / Kim, Misun / Evelien Van de Vel Location | 17, Geonju-ro 2-gil, Jeju-si, Jeju-do, Korea Program | House Site area | 207.00㎡ Building area | 80.53㎡ Gross floor area | 139.23㎡ Building to land ratio | 38.90% Floor area ratio | 67.26% Building scope | 2F Structure | RC Exterior finishing | Brick, Color steel plate Interior finishing | Birch plywood, Wallpaper, Wood floor Design period | 2018. 05 - 2018. 10 Construction period | 2018. 10 - 2019. 09 Photograph | Lee, Hanul Structural engineer | Ji, Seongcheol / Lim, Yeongmin Mechanical engineer | Dealim mech. Elec. Donsultants Electrical engineer | Dealim mech. Elec. Donsultants Fire engineer | Dealim mech. Elec. Donsultants |

'회원작품 | Projects > House' 카테고리의 다른 글
| 안녕, 김녕SEA 2022.3 (0) | 2023.02.17 |
|---|---|
| 요산재 2022.3 (0) | 2023.02.17 |
| 커튼콜 2022.2 (0) | 2023.02.16 |
| USD HOUSE 2022.2 (0) | 2023.02.16 |
| 기와의 추억 2022.2 (0) | 2023.02.16 |