2023. 2. 17. 09:11ㆍ회원작품 | Projects/House
YOSANJEA

요산재가 들어서는 위치는 과거 신제주 개발사업의 일환으로 형성되었다.
오래된 단층이나 2층 주택들이 대부분인 지역에서, 주변의 건축과 어울리며 동시에 앞으로 변화할 이 지역에 어떤 기준점을 풀어나가는 접근을 시도하였다.
도심의 노후화에 따라 도심 재생, 활성화가 사회적 문제로 대두되고 있다.
건설업에 종사하는 입장에서(건축주) 이 문제를 풀어나가는 방식으로 접근하였다. 밤이 되면 비어버리는 도심이 아닌, 주거와 업무, 소비가 균형을 이루는 건물을 원하였다.
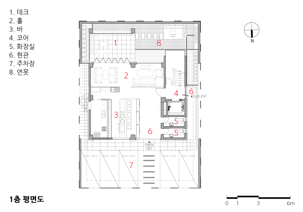
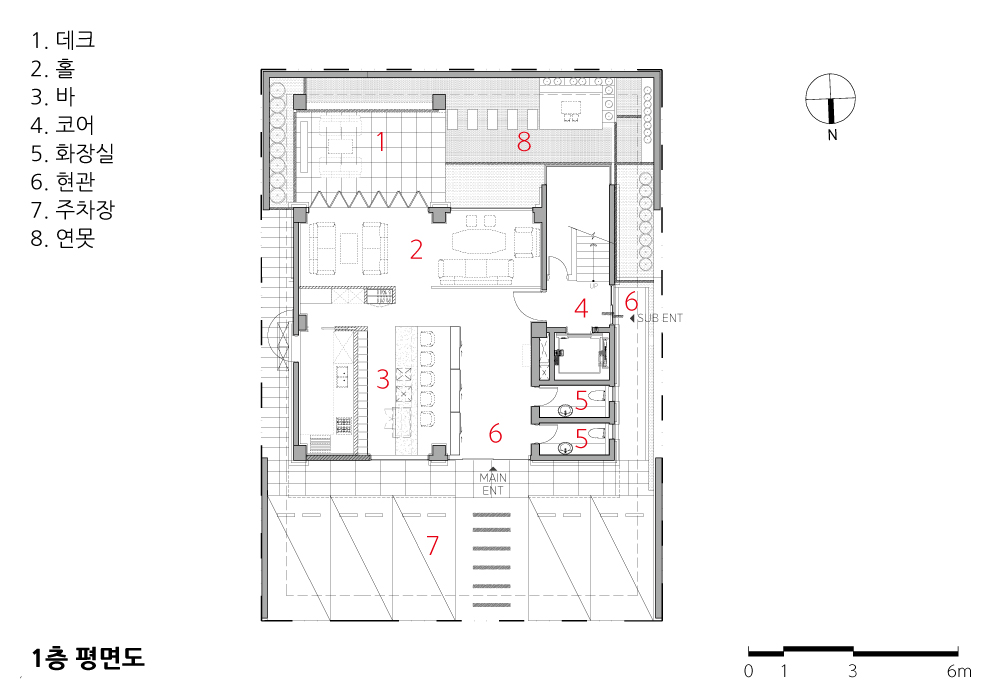
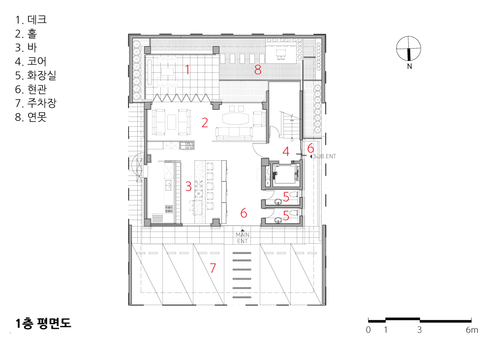
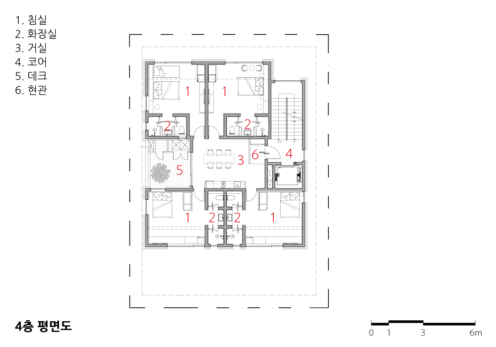
건물의 배치는 건설회사 사옥에 맞는 강한 박스 형태로 시각적 이미지를 표현하였다. 그리고 그 박스 형태는 절삭하고, 매스를 분절하고 비움으로써 공간이 형성된다.
이 공간으로 강하지만 유한 이미지를 동시에 표현한다. 중정으로서 복도의 통유리로 비치는 오죽과 연못은 창밖으로 온전한 계절들이 변해가는 시퀀스를 나타내고 있다.
강한 시각적 이미지에 맞춰 입면에 쌓아 올린 블록은 과거로부터 현재, 미래로 이어지는 건축 재료이다. 콘크리트의 무거운 매스감과 다르게 단일 덩어리를 구축 및 조합하는 과정에서 블록의 매력을 느낄 수 있다. 블록을 쌓아 올린다는 건축적인 수법은 건축주가 원하는 ‘요산재’의 의미를 담아내기에 아주 적합한 재료였다. 단순히 쌓아 올린다는 개념과 더불어 새롭게 조합하여 결합하는 방식을 사용하여 건물이 가지고 있는 전체적인 이미지를 형성했다.

The location of the YOSANZAE acid medicine was formed as part of the New Jeju Development Project in the past.
In areas where most of the old single-story or two-story houses are located, they attempted to approach the area, which will be changed at the same time as the surrounding architecture.
With the aging of the city center, urban regeneration and revitalization are emerging as a social problem.From the perspective of the construction industry, this problem was approached in a way that was solved. I wanted a building that balances housing, work and consumption, not a downtown that empties at night.
The layout of the building expresses visual images in the form of strong boxes suitable for the construction company's building.And the box shape is formed by cutting and segmenting and emptying the mass.Due to this space, we simultaneously represent strong but finite images. The bamboo and pond, which are reflected in the whole glass of the hallway as a mid-autumn, represent a sequence of complete seasons changing out of the window.
Blocks that are stacked on the elevation according to strong visual images are construction materials that continue from the past to the present and future. Unlike the heavy mass of concrete, you can feel the charm of blocks in the process of building and combining a single mass. The architectural method of stacking blocks was a very suitable material to capture the meaning of the "urban ritual" desired by the architect. The idea of simply stacking up and combining together to form a whole image of the building.








| 요산재 설계자 | 박현모 _ (주)아뜰리에일일건축사사무소 건축주 | 박종욱 감리자 | 박현모 _ (주)아뜰리에일일건축사사무소 시공사 | 원일건설 주식회사 설계팀 | 오보경 대지위치 | 제주특별자치도 제주시 신대로 16길 23 주요용도 | 제2종근린생활시설 / 단독주택(다가구주택) 대지면적 | 352.00㎡ 건축면적 | 181.17㎡ 연면적 | 624.74㎡ 건폐율 | 51.47% 용적률 | 177.48% 규모 | 5층 구조 | 철근콘크리트구조 외부마감재 | 와이드벽돌(390x90x38-성산벽돌) / 큐블럭(190x190x120-성산벽돌) / 금속스틸프레임 내부마감재 | 에폭시(에피졸 TL-4투명-조광페인트) / 무광코팅페인트(글로스 투명 무광-조광페인트) / 복합대리석타일(델리카토크림600x600x9T-(주)비바세라믹) / 고흥석(THK20-국내산) / COLOR LAC`Q(조광페인트) 설계기간 | 2019. 05 – 2019. 10 공사기간 | 2019. 11 – 2020. 09 사진 | 반치옥 전문기술협력 - 구조분야 : 정구조사무소 - 기계설비분야 : (주)건일엔지니어링 - 전기분야 : 이일엔지니어링 - 소방분야 : (주)건일엔지니어링 / 이일엔지니어링 |
YOSANJEA Architect | Park, Hyunmo _ Atelier11 Architectural Firm, Inc Client | Park, Jongwook Supervisor | Park, Hyunmo _ Atelier11 Architectural Firm, Inc Construction | Wonil Construction, Inc. Project team | Oh, Bokyung Location | 23, Sindae-ro 16-gil, Jeju-si, Jeju-do, Korea Program | Class 2 neighborhood living facilities / Multi-family house Site area | 352.00㎡ Building area | 181.17㎡ Gross floor area | 624.74㎡ Building to land ratio | 51.47% Floor area ratio | 177.48% Building scope | 5F Structure | RC Exterior finishing | Wide brick / Q block / Metal steel frame Interior finishing | Epoxy, Coating paint, Marble tile, Granite stone, COLOR LAC`Q Design period | May 2019 – Oct. 2019 Construction period | Nov. 2019 – Sep. 2020 Photograph | Ban, Chiok Structural engineer | JUNG Structural Engineer Mechanical engineer | Gunil Engineering Co., Ltd. Electrical engineer | 21 Engineering Corp. Fire engineer | Gunil Engineering Co., Ltd. |

'회원작품 | Projects > House' 카테고리의 다른 글
| 바란다 2022.3 (0) | 2023.02.17 |
|---|---|
| 안녕, 김녕SEA 2022.3 (0) | 2023.02.17 |
| 제주 달콤금복집 2022.3 (0) | 2023.02.17 |
| 커튼콜 2022.2 (0) | 2023.02.16 |
| USD HOUSE 2022.2 (0) | 2023.02.16 |