2023. 2. 18. 09:19ㆍ회원작품 | Projects/House
BACHHAUS

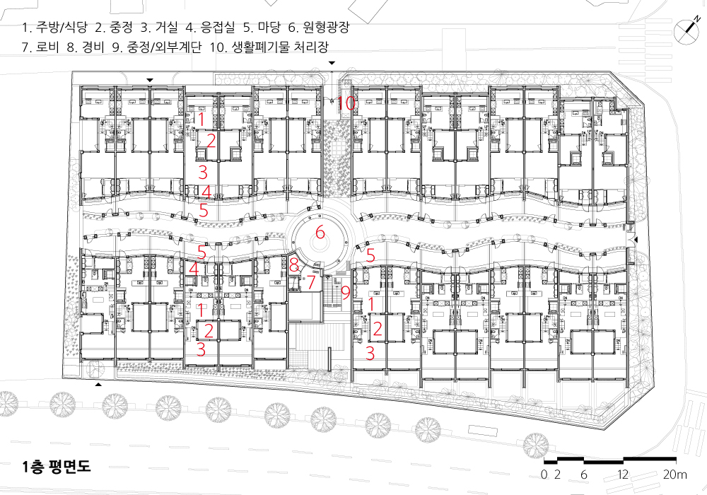
바흐하우스는 29세대로 구성된 단독형 연립주택이다.
기존 저층연립주택의 평면구성에서 벗어나 각 세대별로 독립된 중정과 함께 3개의 복층으로 구성된 한샘바흐하우스는 공동주택과 단독주택의 장점을 공유하는 새로운 형태의 연립주택 안이다.
전체 단지는 서로 다른 6개 타입의 29세대가 4개의 동으로 구성된다. 각 세대는 수직적으로 독립된 형태이며 세대 간의 층간 소음으로부터 자유롭다. 단독주택처럼 모든 세대가 개인 정원을 소유하고, 다양한 규모의 테라스와 높은 중정에서 다채로운 공간감을 느낄 수 있으며, 자신만의 옥상정원을 즐길 수 있다.
남측 출입구를 통해 연결되는 지하 1층 로비하우스와 주민공동시설은 단지 내 주민들에게 편의와 보안을 제공하며, 주민들 간의 만남과 소통의 장소이다. 지하주차장은 각 세대의 보조현관과 연결되며, 각 세대의 지하층에서는 엘리베이터를 통해 지상으로 올라갈 수 있도록 계획하였다.
중앙 원형광장과 부드러운 곡선의 단지 내 보행로는 각 세대의 대문과 연결되는 복도이자 집 앞에서 즐길 수 있는 산책로이다. 모든 세대는 이 산책로를 통해 개인 정원을 지나서 현관으로 진입하며 각 세대별로 특화되어있는 중정을 만나게 된다. 이러한 흐름을 통해 앞마당, 중정, 뒷마당과 같은 다양한 옥외 조경공간을 마주하며 도심 속 전원을 실현한다.

Bach House is a attached tenement house consisting of 29 houses.
Hanssembach House is a new type of row house that has the advantages of an apartment house and a detached house, consisting of three duplex units with an independent courtyard for each household, differentiated from the floor plan of the existing low-rise row houses.
The entire complex consists of four buildings consist of 29 households of six different types. Each house is vertically independent and free from intergenerational noise. Like a detached house, every generation owns a private yard, and residents can feel a various sense of space in terraces and high courtyards. also they can enjoy their own roof garden.
The lobby house and community facilities on the first basement floor, connected through the south entrance, provide convenience and security to residents in the complex, and are a place for meeting and communication among residents. The underground parking lot is connected to the sub-entrance of each household, and the basement floor of each can go up to the ground floor through an elevator.
The central circular plaza and the walking path with soft curved footpath in the complex are a corridor that connects to the gates of each generation and a walking path that you can enjoy in front of your house. All households enter the front garden and meet the courtyard specialized for each house. Through this flow, each house has various outdoor spaces such as the front yard, courtyard, and back yard.








| 바흐하우스 설계자 | 이한종_(주)스튜디오 이일공오 건축사사무소 공동설계자 | Keisuke Maeda(Japanese) / UID 건축주 | (주)랜드마크 알이디 감리자 | (주)스튜디오 이일공오 건축사사무소 시공사 | (주)한샘 설계팀 | 김기성, 이동균, 김혜경, 최승일, 조국영, 박민아 설계의도 구현 | (주)스튜디오 이일공오 건축사사무소 대지위치 | 경기도 성남시 분당구 구미로159번길 6 주요용도 | 공동주택(연립주택) 및 부대복리시설 대지면적 | 4,344.10㎡ 건축면적 | 2,545.50㎡ 연면적 | 7,095.54㎡ 건폐율 | 58.60% 용적률 | 89.89% 규모 | 연립주택 29세대(지하 2층, 지상 3층), 부대복리시설 구조 | 철근콘크리트구조 외부마감재 | 점토타일, 리얼징크, 라임스톤 내부마감재 | 벽지, 원목마루, 타일 설계기간 | 2017. 07 - 2018. 02 공사기간 | 2018. 03 - 2020. 04 사진 | (주)스튜디오 이일공오 건축사사무소 전문기술협력 - 구조분야 : 크로스구조연구소기술사사무소 - 기계설비분야 : 주성 ENG - 전기분야 : 나라 ENG |
BACHHAUS Architect | Lee, Hanjong_Studio 2105 Architects Co-architect | Keisuke Maeda(Japanese) / UID Client | Landmark RED Supervisor | Studio 2105 Architects Construction | Hanssem Project team | Kim, Kisung / Lee, Donggyun / Kim, Hyekyung / Choi, Seungil / Cho, Kukyoung / Park, Mina Design intention realization | Studio 2105 Architects Location | 6, Gumi-ro 159beon-gil, Bundang-gu, Seongnam-si, Gyeonggi-do, Korea Program | Apartment house / Amenities Site area | 4,344.10㎡ Building area | 2,545.50㎡ Gross floor area | 7,095.54㎡ Building to land ratio | 58.60% Floor area ratio | 89.89% Building scope | 29 households in a row house (B2-3F), Amenities Structure | RC Exterior finishing | Clay tile, Real zinc, Limestone Interior finishing | Wallpaper, Hardwood floors, Tiles Design period | 2017. 07 - 2018. 02 Construction period | 2018. 03 - 2020. 04 Photograph | Studio 2105 Architects Structural engineer | Cross Structural Research Mechanical engineer | Jusung ENG Electrical engineer | Nara ENG |

'회원작품 | Projects > House' 카테고리의 다른 글
| 세 상자 2022.5 (0) | 2023.02.19 |
|---|---|
| 트윈하우스 2022.5 (0) | 2023.02.19 |
| 욜로.192 2022.4 (0) | 2023.02.18 |
| 김천 동그란집 2022.4 (0) | 2023.02.18 |
| 세현담 2022.4 (0) | 2023.02.18 |