2023. 2. 22. 09:17ㆍ회원작품 | Projects/Neighborhood Facility
Mosaic

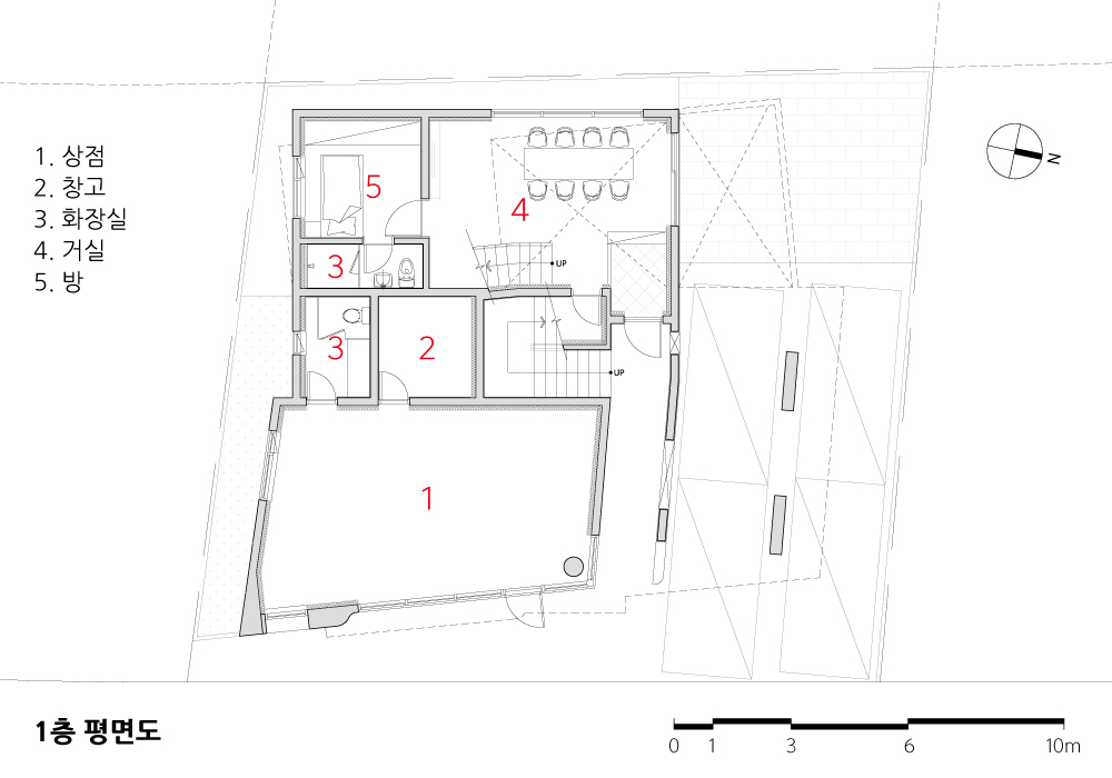
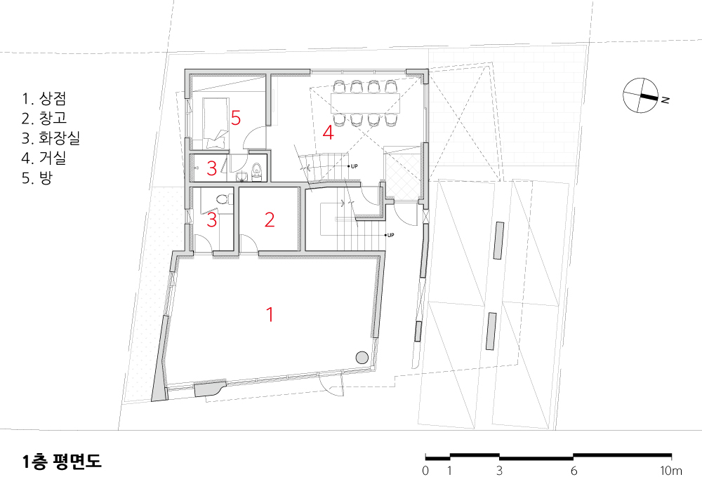
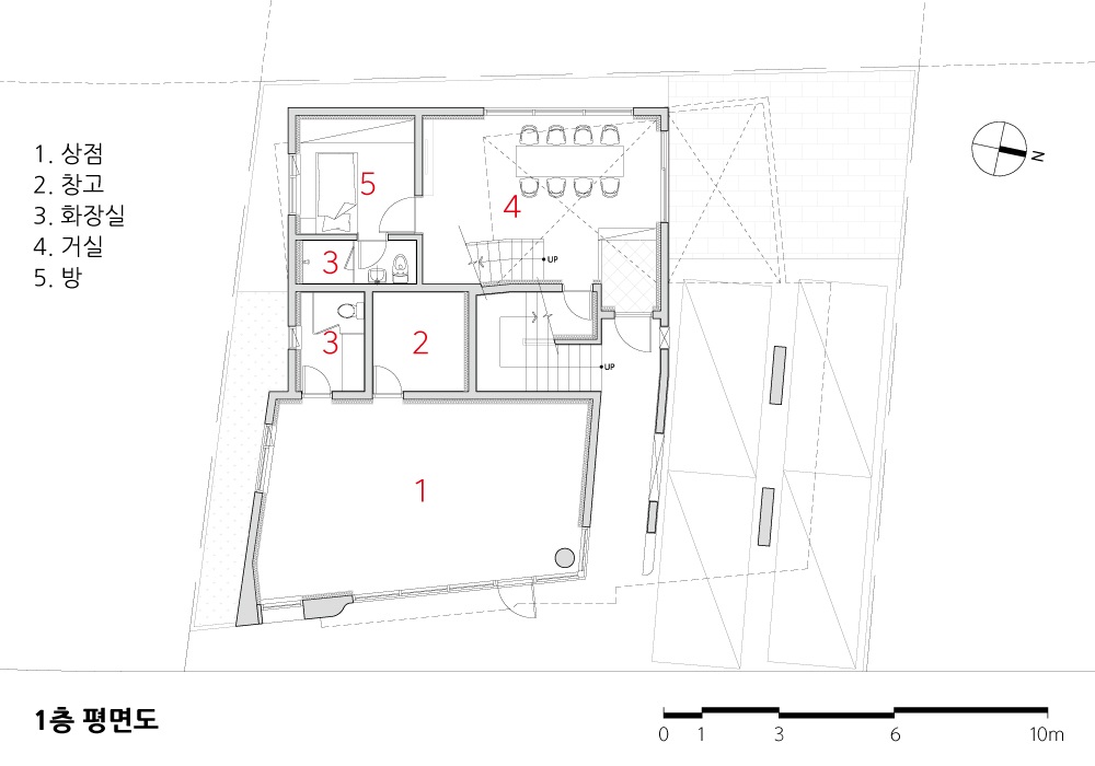
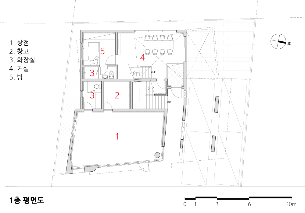
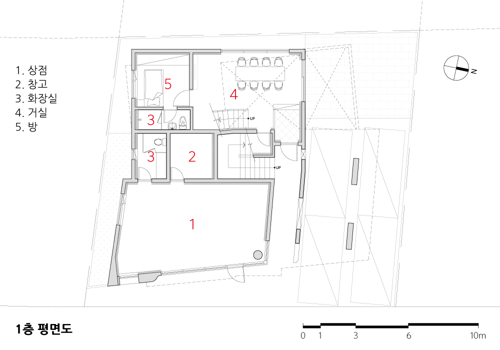
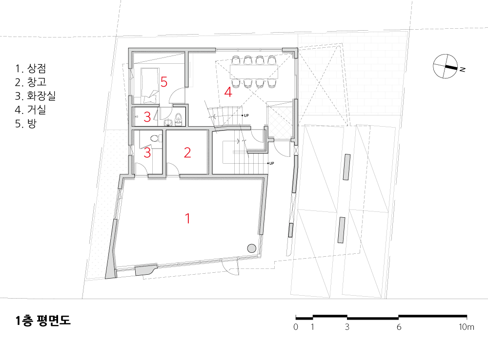
상가주택을 짓게 되면 대부분 상가가 중심이 된다. 하지만 이 주택은 주거가 우선이 되는 작업이다. 엄마와 아들이 같이 살기 위해 두 가구의 주택을 만들고, 추가로 작은 공방을 개소하려는 시도이다. 현대는 가족관계에서 편리함과 개인의 점점 생활이 강조되는 시대이다. 집안에서 대화도 사라지고, 부모와 자식 간의 관계도 예전 같지 않다. 하지만, 부모와 자식 간 관심과 관계를 끊을 수도 없다. 그렇다고 단절되지도 않는다. 이러한 현실에 적합한 또 하나의 주거방식을 찾아보는 작업이다. 개인의 생활이 최대한 보장되고, 모자간에 멀리 있다는 불안감은 지울 수 있는 거주방식이 이 주택에서 시도된다.
숨김과 드러남
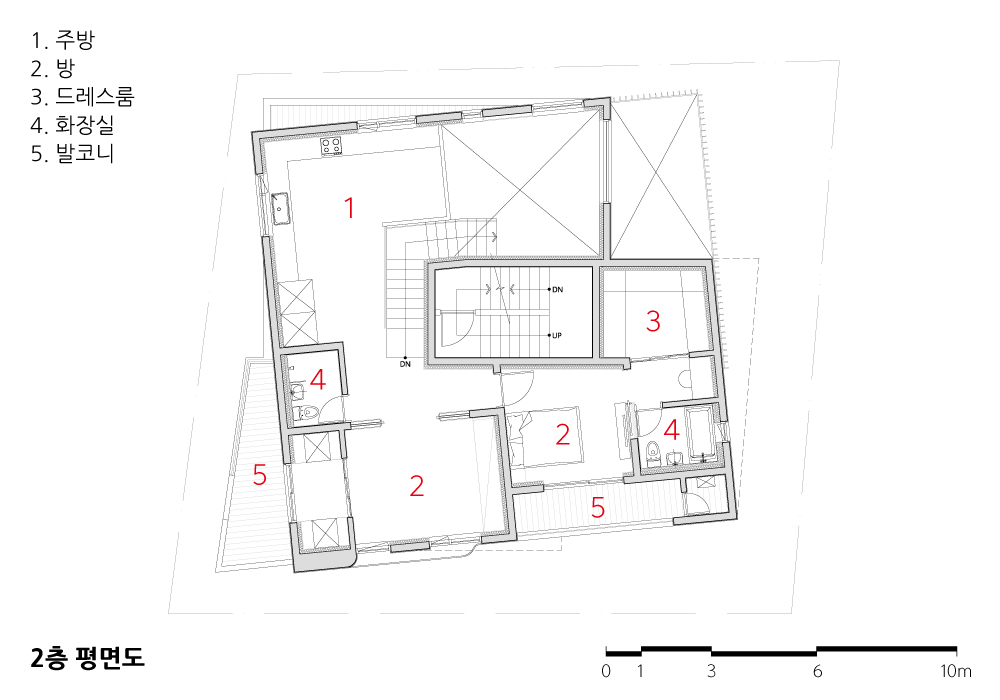
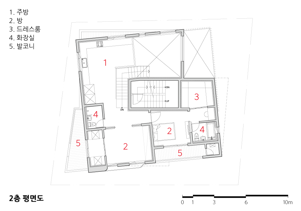
엄마 집과 아들 집, 이 두 가구의 공간과 생활을 숨기거나, 드러나는 식의 반복으로 전체를 구성하였다. 그래서 각 집의 볼륨은 서로 섞이게 되고, 개별로 드러나게도 된다.
외벽의 재료인 모자이크 타일은 작은 것으로부터 큰 것으로의 성장 이미지를 암시하고, 이는 백색 건축의 또 다른 재료와 텍스처의 실험이다. 그리고 빛과 시간에 따른 미묘한 백색의 변화를 느끼고자 한 선택이다.
이 공간에서 엄마와 아들은 모자이크처럼 하나가 된다. 두 가구의 분리 생활과 관심 생활의 농도를 조절해서 구성하였지만, 1, 2층의 엄마 집과 3층과 다락의 아들 집은 1층에서 하나가 된다. 하지만 각각 출입하여, 그들의 생활은 따로 사는 듯하면서도 가까이 사는 모자간이 된다.

When it comes to flats with shops, it is considered that the function of a shop is generally more central than the function of a residence. But, ‘Mosaic’ is a project where the function of residence is prioritized rather than the function as a shop.
In the process of planning the flats with shops, clients (mother and son) wanted to have two houses to live together in one building, and they wanted to open an additional small craft workroom there. But, in modern society, it is increasingly important to ensure individual lives, even in family relationships. And then, not only has the conversation between parents and children decreased, but the relationship between them is not the same as before. However, interests and relationships between them can't be broken up easily. Therefore, it was important and necessary to find a suitable solution considering this reality regarding housing. And it was to ensure individual lives as much as possible and to relieve the anxiety caused by physical distance between mother and son.
Hide and Reveal
In the process of planning the mother's house and the son's house, the entire space was constructed based on the repetition that the spaces and lives of the two households being hidden or revealed. So, the volume of each houses are harmonized with each other, and it can be revealed individually.
The mosaic tile, an exterior wall material, hints at a growth image from small to large, and is also an experiment with another material and texture of white architecture. And, it is a choice to feel the subtle changes in white over time and light.
In ‘Mosaic', the mother and son unite like a mosaic. The building was constructed by separating the two households and adjusting the concentration of each other's lives, but the mother's house (first and second floors) and the son's house (third floor, attic) become united on the first floor. However, since they enter their houses through different entrances, they can become mother and son who physically live separated from each other but are psychologically close to each other.







|
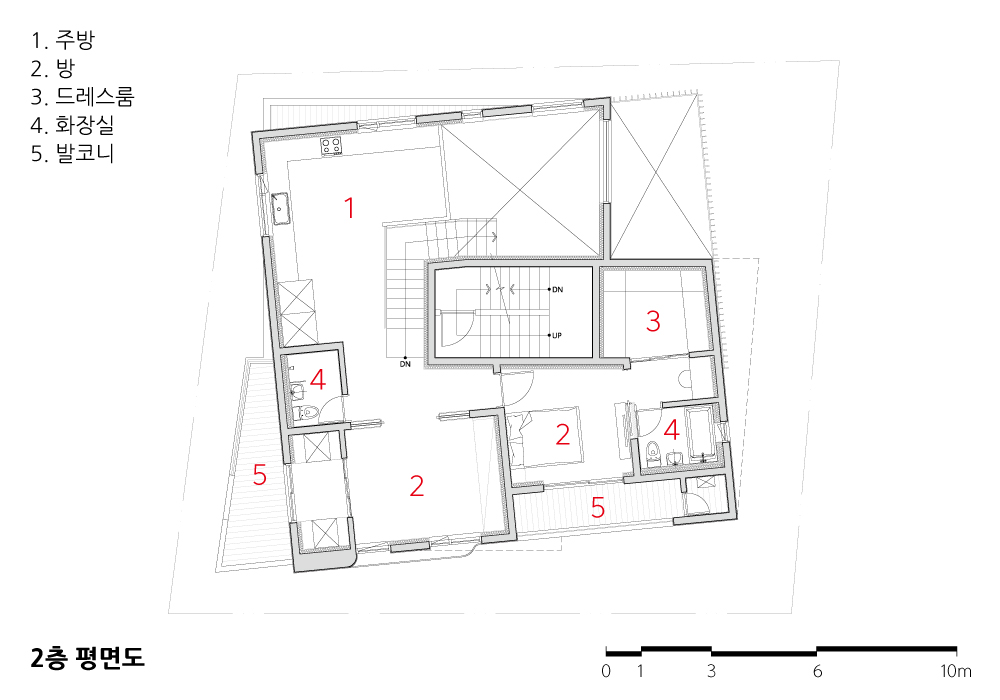
모자익 설계자 | 오신욱 _ (주)라움건축사사무소 건축주 | 이승준 감리자 | 오신욱 _ (주)라움건축사사무소 시공사 | (주)대정건설 설계팀 | 노정민, 안신, 유성철, 윤정옥, 최윤정, 김다영, 임아현 대지위치 | 부산광역시 강서구 명지국제12로 73 주요용도 | 단독주택(다가구주택), 제1종근린생활시설 대지면적 | 272.00㎡ 건축면적 | 159.23㎡ 연면적 | 379.00㎡ 건폐율 | 58.54% 용적률 | 139.34% 규모 | 3층 구조 | 철근콘크리트구조 외부마감재 | 모자이크타일(화이트), 노출콘크리트(유로폼), 알루미늄각재 루버 위 불소도장(화이트) 내부마감재 | 대리석타일, 강마루, 실크벽지 설계기간 | 2018. 10 – 2018. 12 공사기간 | 2019. 04 - 2019. 12 사진 | 윤준환 전문기술협력 - 구조분야 : 인구조 - 기계설비분야 : (주)신흥이앤지 - 전기분야 : 영신이앤지 |
Mosaic Architect | Oh, Sinwook _ Architects Group RAUM Client | Lee, Seungjun Supervisor | Oh, Sinwook _ Architects Group RAUM Construction | Daejeong Construction Project team | No, Jungmin / An, Shin / Yu, Seongchul / Yoon, Jeongok / Choi, Yoonjeong / Kim, Dayeong / Im, Ahyun Location | 73, Myeongjigukje 12-ro, Gangseo-gu, Busan, Korea Program | Detached House(Multiplex House), Neighborhood Living Facility Site area | 272.00㎡ Building area | 159.23㎡ Gross floor area | 379.00㎡ Building to land ratio | 58.54% Floor area ratio | 139.34% Building scope | 3F Structure | RC Exterior finishing | Mosaic Tile(White), Exposed Concrete(Euro Form), PVDF Coating on Aluminum Louver(White) Interior finishing | Marble Tile, Wood Flooring, Silk Wallpaper Design period | Oct. 2018 – Dec. 2018 Construction period | Apr. 2019 - Dec. 2019 Photograph | Yoon, Joonhwan Structural engineer | In Structure Mechanical engineer | Shinheung ENG Electrical engineer | Yeongshin ENG |

'회원작품 | Projects > Neighborhood Facility' 카테고리의 다른 글
| 투썸플레이스 가수원대로DT 2022.9 (0) | 2023.02.23 |
|---|---|
| 성수동 더 그라운드 2022.8 (0) | 2023.02.22 |
| HDC랩스타워 2022.7 (0) | 2023.02.21 |
| 혜도원 2022.5 (0) | 2023.02.19 |
| 마일스톤 SG 2022.5 (0) | 2023.02.19 |