2023. 2. 22. 09:18ㆍ회원작품 | Projects/Neighborhood Facility
The Ground

맥락과 조건
요즘 핫한 장소인 성수동. 건축주는 뉴욕과 한국을 오가면서 작업하는 사진작가이다. 건축주는 임대, 전시, 작업실, 거주, 파티룸 등의 다양한 프로그램이 담긴 건축이기를 원했다. 풍부한 문화적 감수성이 있는 성수동의 특징을 담는 공간이고 싶어했다. 작은 땅에 높이 올라가는 수직적인 건물이겠지만, 건축주가 창간한 잡지 <THE GROUND>는 개념적 출발의 모티브가 되었다.
vertical GROUND_프로그램 적층의 수직적 형태구성
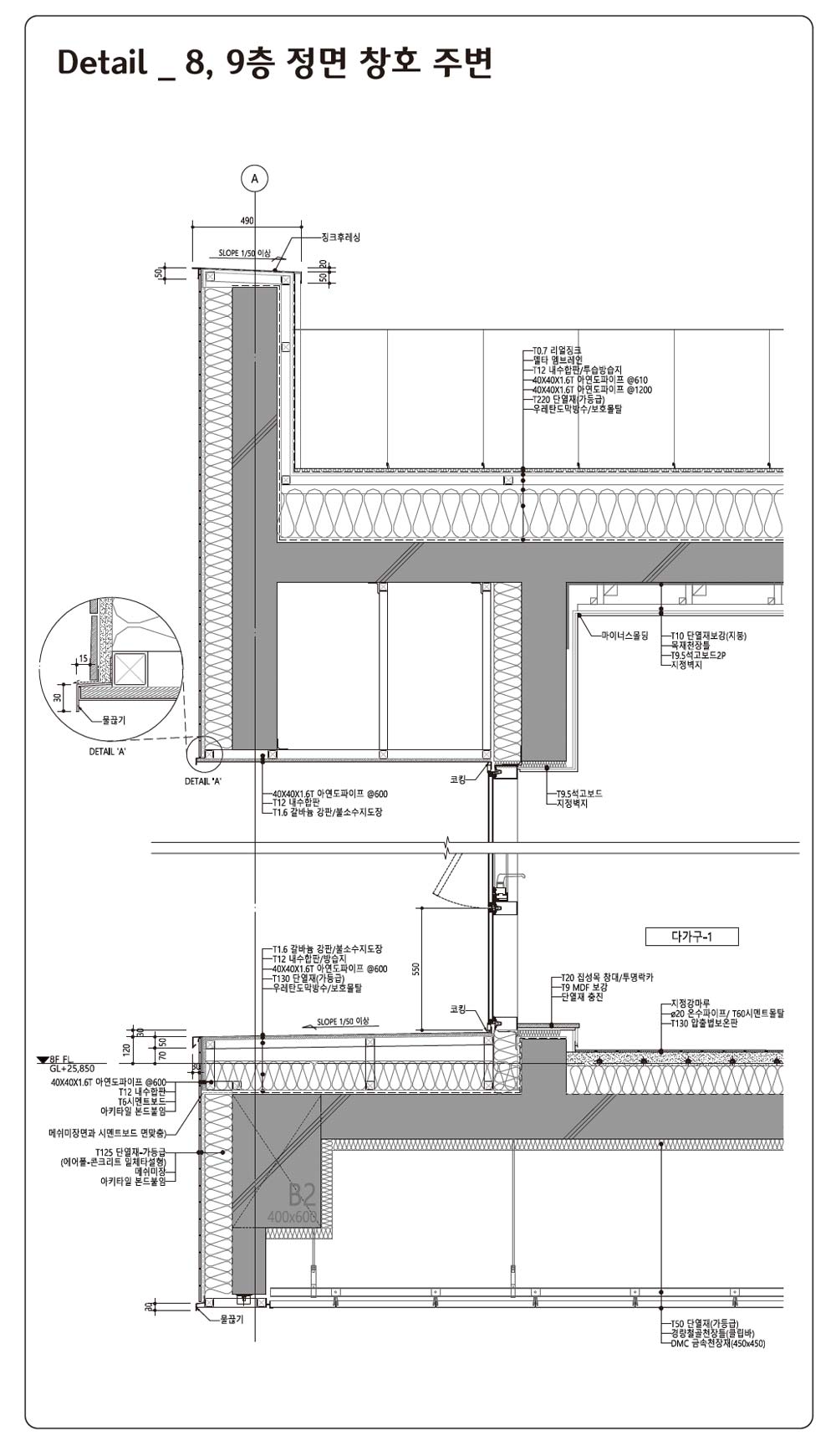
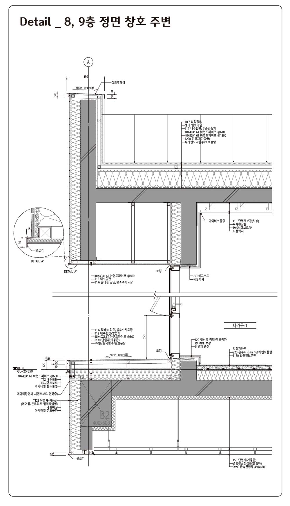
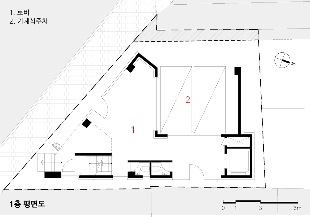
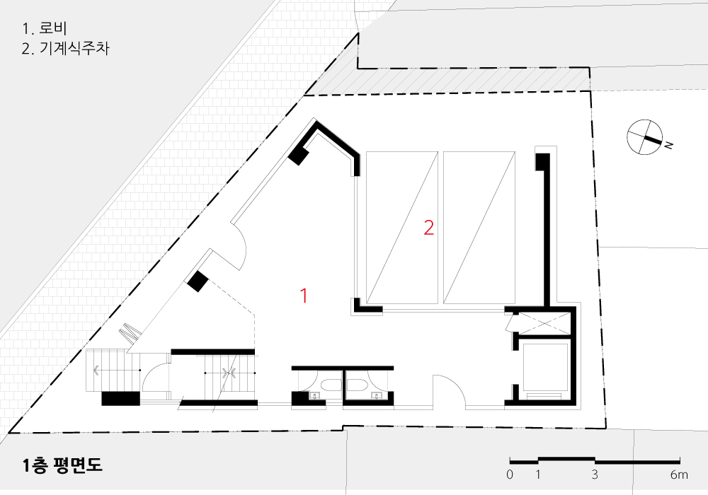
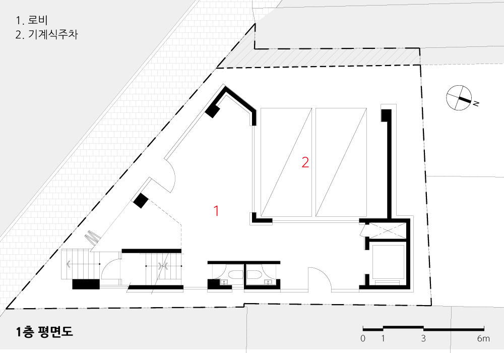
준공업지역의 특징상 용적률 400퍼센트의 용적을 작은 땅위에 세워야 하는 문제가 있다. 우리는 프로그램을 크게 네 개의 조닝으로 나누고 각 영역의 위치와 공간의 특징을 계획해 나갔다. 임대, 전시와 촬영, 휴식과 이벤트, 거주영역(GROUND)의 4개로 나누고 수직적인 적층의 문제를 각 조닝의 요구되는 공간의 특징과 영역간 관계, 도시경관 및 스케일, 도시가로와의 관계의 문제 등을 따져가면서 구성했다. 4개의 영역은 1층에서 3층까지를 임대 영역, 4층에서 5층을 전시와 촬영 영역, 6층과 7층을 휴식과 이벤트 영역, 8층과 9층을 주거 영역으로 구성했다. 중요한 것은 수직 적층으로 층간 분리될 수밖에 없는 한계를, 수평적인 도시에서 골목길로 이어지듯 다양한 계단 공간을 통해 수직적으로 이어지는 연속성을 만들고자 했다. 계단은 수직성을 공간적으로 이어주는 중요한 공동적 길이 된다. 계단은 내부의 계단실로가 아니라 외부의 도시가로와 바로 이어진다. 1층 로비는 위층으로 가기위해 계단이 아닌 엘리베이터를 타는 사람들만 이용하게 된다. 도시가로와 이어진 계단은 공간 폭의 변화, 계단 방향의 변화, 도시조망의 변화, 스탠드형 계단 등이 계획되어 수직적 프로그램들을 이어주고 있다.
digital GROUND_매트릭스 surface
3면이 길에 접한 작은 땅에 높이 올라가는 건물이기에 건물은 사방에서 잘 보이는 맥락을 가지고 있다. 필지의 모양은 그대로 형태가 되지만, 사진작가의 사옥으로서의 의미를 담아내고 싶었다. 외피가 디지털 이미지를 이루는 화상의 최소 단위인 픽셀(pixel)의 이미지로 보이면서, 프로그램적인 행위가 깊이감 있게 보이는 면이 구성되는 입면을 계획했다. 또 솔리드한 면과 보이드한 면으로 수직적인 구성을 했다. 주차장을 활용하는 1·2층 보이드된 전시장, 4·5층 복층의 촬영장, 6·7층 비워진 이벤트 장소는 솔리드한 픽셀 표피와 구성되는 표층면이 된다. 이처럼 디지털 그라운드라 개념 지은 입면은 같은 모듈의 불규칙한 모양의 타일이 빛의 각도에 따라 다르게 연출되는 표피를 배경으로 깊이감 있는 행위의 중첩을 경험할 수 있다.
void GROUND_생성적 장소인 수직 보이드(vertical void)
이 건물은 세 군데에 보이드 공간을 두고 있다. 각각의 보이드 공간은 프로그램과 주변 환경과의 관계를 조직하면서 정체성을 갖게 된다. 저층부(1~3층)의 주차장과 계단실 보이드는 전시 프로그램과 도시가로와의 관계를 조직하고 있다. 주차장 보이드는 경계를 투명한 유리로 계획하여 3면의 도시가로까지 시각적으로 보이게 된다. 주차장에서 전시되면 각 길에서도 투영되는 것이다. 길과 바로 이어지는 계단실 보이드는 교육과 전시 영상이 가능한 스탠드형으로 구성하여 아래로는 주차장이 보이면서 입체적인 장소성을 띠게 된다.
중층부(4~5층)의 내부 보이드는 촬영 및 업무 프로그램과 채광과의 관계를 고려했다. 촬영 장소의 프로그램은 높은 층고와 자연채광의 벽면 등 내부 보이드는 일상적이지 않은 독특한 공간감을 만들어 주고 있다.
상층부(6~7층)의 테라스 보이드는 이벤트, 휴식 프로그램과 도시풍경 조망, 도시적 스케일의 관계를 고려하여 계획했다. 테라스 보이드는 주변 저층 건물의 도시적 높이를 반영하여 어울리게 하면서 3면을 유리로 둘러 한강, 남산, 아차산 등 서울의 도시 풍경을 개방감 있게 담아내는 장소가 되고 있다.
이처럼 건축면적이 적은 수직적 건물에서 보이드 된 장소는 프로그램과 관계된 생성적 장소가 되어 도시를 표상하고 있다.

Context and conditions
Seongsu-dong is a hot place these days. The client is a photographer working between New York and Korea. The client wanted the building to include various programs such as rental, exhibition, studio, residence, and party room. In addition, the client wanted to create a space that contains the characteristics of Seongsu-dong with a rich cultural sensibility. It may be a vertical building that rises high on a small piece of land, but <THE GROUND>, a magazine launched by the client, became a motif for its concept.
vertical GROUND_Vertical structure of program stacking
Due to the characteristics of the semi-industrial area, there is a problem that the floor area ratio is up to 400% on this small site. We divided the program into four zoning areas and planned the characteristics of the location and space of each area. It was divided mainly into four categories: rental, exhibition & photography, rest & event, and residential area (GROUND), and the problem of vertical stacking was solved by considering the characteristics of space required for each zoning, the relationship between the areas, urban landscape and scale, and the relationship with urban streets, etc. The four areas consist of a rental area from the 1st to 3rd floors, an exhibition and photography area on the 4th to 5th floors, a rest and event area on the 6th and 7th floors, and a residential area on the 8th and 9th floors. The important thing is to create a continuity that connects vertically through the various spaces of stairs as if connecting from a horizontal city to an alleyway, overcoming the limit that cannot but be separated by vertical stacking. The stairs serve as an important communal path that connects verticality spatially. The stairs lead directly to the urban street outside, not to the staircase inside. The first-floor lobby is only used by people who take the elevator, not the stairs to go upstairs. For the stairs connected to the urban street, changes in space width, changes in stairs direction, changes in city view, and stand-type stairs are planned to connect vertical programs.
digital GROUND_Matrix surface
Since it is a building that rises high on a small piece of land facing the road on three sides, the building is visible from all directions. The parcel's shape becomes the form as it is, but we wanted it to capture the meaning of the photographer's office building. Therefore, we designed the exterior to be seen as the image of the pixel, the single minor component of a digital image. We planned the elevation so that the programmatic action is viewed in depth. In addition, a vertical structure of solids and voids was applied. The void exhibition hall on the 1st and 2nd floors utilizing the parking lot, the studio on the 4th and 5th floors, and the empty event venues on the 6th and 7th floors become the surface layer composed of the solid pixel exterior. The elevation built with the digital ground can experience the overlapping of actions with a sense of depth against the background of the exterior, in which irregularly shaped tiles of the same module are produced differently depending on the angle of light.
void GROUND_Vertical void as a generative place
The building has three void spaces. Each void space has an identity by organizing the relationship between the program and the surrounding environment. The parking lot on the lower floors (1st to 3rd floors) and the stairwell void contain the relationship between the exhibition program and the urban street. The boundaries are transparent glass for the parking lot void to make even the three sides' urban streets visible. If something is exhibited in the parking lot, it will be projected on each road. The stairwell void that leads directly to the road is constructed as a stand-type that allows for education and exhibition so that the parking lot can be seen below it, giving it a three-dimensional sense of place.
For the indoor void of the middle floors (4th to 5th floors), we considered the relationship between photography, work programs, and lighting. The program of the photography place creates a unique sense of space that is not common in indoor voids, such as a high ceiling and a wall with natural light.
The terrace void on the upper floors (6th to 7th floors) was planned considering the relationship between event, relaxation programs, city view, and urban scale. The terrace void reflects and harmonizes with the urban height of the surrounding low-rise buildings. It is becoming a place to openly capture the urban landscape of Seoul, including the Han River, Namsan Mountain, and Achasan Mountain, since it is surrounded by glass on three sides.
The voided place in the vertical building with a small building area has become a generative place related to the program, representing the city.










| 성수동 더 그라운드 설계자 | 홍만식_(주)리슈건축사사무소 건축주 | 윤용석 감리자 | 이현석 _ (주)아키씨엠종합건축사사무소 시공사 | (주)예지인종합건설 설계팀 | 김유나 대지위치 | 서울특별시 성동구 뚝섬로 419 주요용도 | 제2종근린생활시설, 단독주택(다가구) 대지면적 | 201.00㎡ (도로제척10.82㎡, 실사용190.18㎡) 건축면적 | 113.53㎡ 연면적 | 856.99㎡ 건폐율 | 59.70% 용적률 | 398.19% 규모 | 지하 1층 - 지상 9층 구조 | 철근콘크리트구조 외부마감재 | 아키타일(릭실-라스케이브) 내부마감재 | 콘크리트 면정리 설계기간 | 2018. 02 - 2019. 04 공사기간 | 2019. 04 - 2020. 09 사진 | 김재윤 전문기술협력 - 구조분야 : (주)은구조기술사사무소 |
The Ground Architect | Hong, Man-sik_Richue Architects Client | Yoon, Ryan Supervisor | ArchiCM Architecture Construction Management Construction | Yeziin Project team | Kim, Youna Location | 419, Ttukseom-ro, Seongdong-gu, Seoul, Korea Program | Neighborhood convenience facilities, Multi-household house Site area | 201.00㎡(after exclusion: 190.18㎡) Building area | 113.53㎡ Gross floor area | 856.99㎡ Building to land ratio | 59.70% Floor area ratio | 398.19% Building scope | B1F - 9F Structure | RC Exterior finishing | Archi-tile(LIXIL-LASCAVE) Interior finishing | Concrete Design period | Feb. 2018 - Apr. 2019 Construction period | Apr. 2019 - Sep. 2020 Photograph | Kim, Jae-Yoon Structural engineer | Eun consulting structural Engineers |

'회원작품 | Projects > Neighborhood Facility' 카테고리의 다른 글
| GRAY BLOSSOM 2022.9 (0) | 2023.02.23 |
|---|---|
| 투썸플레이스 가수원대로DT 2022.9 (0) | 2023.02.23 |
| 모자익 2022.8 (0) | 2023.02.22 |
| HDC랩스타워 2022.7 (0) | 2023.02.21 |
| 혜도원 2022.5 (0) | 2023.02.19 |