2023. 6. 22. 18:07ㆍ회원작품 | Projects/Neighborhood Facility
Cheonan Pastel Studio

사람을 만나다
파스텔 스튜디오는 만삭촬영에서부터 가족촬영까지 다양한 서비스를 제공하며 전국적 지점을 확보하고 있는 전문 사진 촬영 브랜드이다. 사업 초기부터 인연이 되어 여러 프로젝트를 함께 진행할 기회가 있었으며, 이번 천안점도 그 연작 중 하나가 되었다. 일방향으로 누군가의 책상 위에서만 이루어지는 것이 아니라 항상 클라이언트와 공유하는 고민과 대화, 설득과 이해, 선택과 실행 등을 거쳐 모두가 같이 만들어 가는 작업의 연속이었다.
건축 설계는 결국 만남에 의해 시작되고 구체화되며, 그렇게 만들어진 공간은 또 새로운 만남의 장소가 된다는 것을 느끼게 해주는 언제나 감사한 작업이다.
Prologue
대지는 아산 탕정 신도시 외곽지역 탕정면로 변 약 9미터 언덕 위에 새롭게 정비되고 있는 단지 내에 위치해 있다. 지형상 외부로의 노출이 극대화되어 상업건물 입지로는 최적의 장소다.
동측으로 야트막한 구릉지에서 흘러내리는 단지 내 경사의 끝단 언덕 위에 어디에서든 인지 가능한 이정표처럼 아이코닉한 건물을 앉히고, 자연스럽게 다시 하늘을 향해 확장하는 스카이라인 연출을 위해, 맑은 유리 위로 부유하는 순백의 처마라인을 제안해 본다.
스스로 완결되는 하나의 오브젝트보다, 끊김 없이 이어지는 자연의 연속적 흐름을 이어가고 싶었다.
풍경이 되는 건축
사진이라는 매체를 다루는 특성상 건축 공간은 피사체를 위한 풍경 혹은 배경이 되는 역할이어야 한다. 촬영 프로그램에 적합한 기능적 요구들을 충족시키면서 최대한 남측의 자연광을 풍부하게 제공해야 한다.
심도차에 의해 실루엣으로 보이는 주변의 형상이 인위적인 세트와 공존하며 시너지 효과를 낼 수 있도록 남측을 투명유리로 계획해, 멀리 투영되는 자연과 도심의 색감이나 형상까지 아스라한 배경이 될 수 있는 앵글 선택의 기회를 제공하고자 했다.
대지 형상에 의해 자연스럽게 틀어진 배치와 솔리드(solid)한 북측 면으로부터의 진입 동선은 내부에서의 개방감을 더욱 극대화하는 장치였다. 변화감 있는 건축적 시퀀스를 대면하게 하여 새로운 긴장감을 유발시키고, 고객들에게 이곳이 평범한 일상이 아닌 사진이라는 매체 속 주인공으로 변신하는 공간이라는 유니크한 장소성을 체험할 수 있도록 했다.
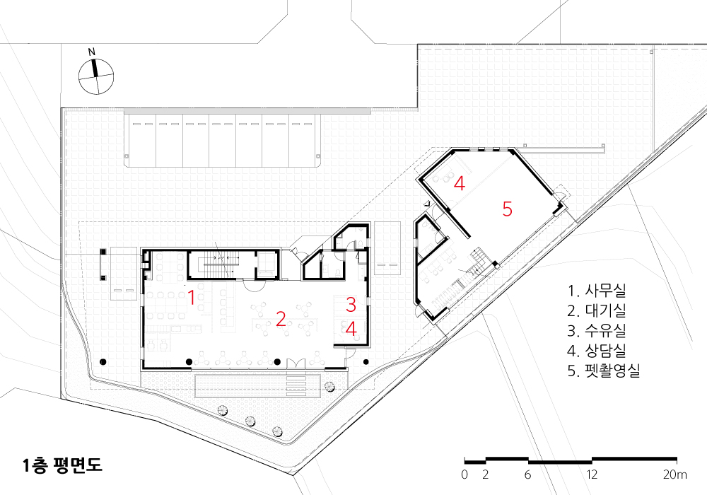
메인 촬영공간과 pet촬영 공간은 원칙적으로 분리하되, 2층에서 외부 테라스를 공유하는 브리지 형식의 연결통로를 구성해 공간 전이의 효과가 느껴질 수 있도록 했다. 3층의 촬영공간은 하늘을 향해 들어 올려진 처마에 의해 천정라인이 프레임 속에서 사라지고 내부 공간이 연속적으로 확장하는 연출이 가능한 공간이 될 수 있게 계획했다.
사진이라는 시각적 매체를 통해 만나게 되는 색다른 경험은 사용자에게 언제나 재생 가능한 추억으로 기억될 것이며, 건축은 풍경으로 각인되어 오랜 시간 동안 영속적으로 남아있을 것이다.




Meet people
Pastel Studio is a professional photography brand that provides a variety of services from maternity photography to family photography and has branches nationwide. From the beginning of the business, we had the opportunity to work on several projects together, and this Cheonan studio became one of those series.
It was not a one-way decision, but a continuation of work with the client, such as consideration and conversation, persuasion and understanding, selection and execution etc. Architectural design is initiated and materialized by meeting with client, and it lets us know that the created space becomes a new meeting place.
Prologue
The site is located in a newly reformed complex on top of a 9m hill along Tangjeongmyeon-ro in the outskirts of Asan-Tangjeong New Town. Topographically, exposure to the outside is maximized, making it the best location for a commercial building.
An “iconic” building like a milestone recognizable from anywhere is placed at the end of the slope of the complex that flows down from the low hill to the east. In order to create a skyline that naturally expands toward the sky again, we propose a pure white eaves floating on clear glass.
It is expected to create the continuous flow of nature rather than a single object that is completed by itself.
Architecture as a Scenery
Due to the characteristic of photography work, the architectural space should serve as a scenery or background for the subject. It should provide plenty of natural light from the south side while meeting the functional requirements suitable for the filming program.
The south side is planned with transparent glass so that the surrounding shapes that are seen as silhouettes by the depth of a focus difference coexist with the artificial set and create a synergistic, and the colors and shapes of nature and city that are projected far away can also be used as a faint background.
The layout naturally twisted by the shape of the site, and the entry approach from the solid north side are devices for the effect of maximizing the sense of openness from the inside. It creates a new sense of tension by confronting a changing architectural sequence, and visitors can experience a unique place where they escape from ordinary daily life and become a protagonist in the medium of photography.
The main shooting space and the pet shooting space are separated in principle, but a bridge-type connection passage that shares the external terrace on the second floor is constructed for the effect of spatial transition. The shooting space on the third floor is planned so that the ceiling line disappears in the frame due to the eaves lifted toward the sky and the internal space can be continuously expanded.
The unique experience through the visual medium of photography will always be remembered as a reproducible memory by visitors, and the architecture will be imprinted as a scenery and remain permanently for a long time.






| 천안 파스텔 스튜디오 설계자 | 송주정 _ (주)건축사사무소 다림건축 건축주 | Pastel Studio Group 감리자 | (주)건축사사무소 다림건축 시공사 | (주)위아건설 설계팀 | 지동현, 전상현, 김성희, 김병진 설계의도 구현 | (주)건축사사무소 다림건축 대지위치 | 충청남도 아산시 탕정면 탕정면로 168-31 주요용도 | 근린생활시설 대지면적 | 1,537.00㎡ 건축면적 | 583.92㎡ 연면적 | 1,253.05㎡ 건폐율 | 37.99% 용적률 | 77.48% 규모 | B1F -3F 구조 | 철근콘크리트구조 외부마감재 | 스타코, 벽돌타일, 로이복층유리 내부마감재 | 카펫타일, 내부용 친환경 수성페인트 설계기간 | 2021. 06 - 2021. 10 공사기간 | 2021. 10 - 2022. 11 사진 | CA, 제임스 정 구조분야 | 미도구조컨설턴트 기계설비분야 | (주)청우이엔지 전기분야 | (주)청우이엔지 소방분야 | (주)청우이엔지 |
Cheonan Pastel Studio Architect | Song, Jujung _ DALIM Architects Client | Pastel Studio Group Supervisor | DALIM Architects Construction | WEARE Design Builders Project team | Ji, Donghyun / Jeon, Sanghyeon / Kim, Seonghui / Kim, Byungjin Design intention realization | DALIM Architects Location | 168-31, Tangjeongmyeon-ro, Tangjeong-myeon, Asan-si, Chungcheongnam-do, Korea Program | Commrtcial Facility(Photo Studio) Site area | 1,537.00㎡ Building area | 583.92㎡ Gross floor area | 1,253.05㎡ Building to land ratio | 37.99% Floor area ratio | 77.48% Building scope | B1F -3F Structure | RC Exterior finishing | Stucco, Brick tile Interior finishing | Carpet tile, Paint Design period | Jun, 2021 - Oct, 2021 Construction period | Oct, 2021 - Nov, 2022 Photograph | CA, James Jeong Structural engineer | Mido Structural Consultants Mechanical engineer | Chung-Woo ENG. Electrical engineer | Chung-Woo ENG. Fire engineer | Chung-Woo ENG. |
'회원작품 | Projects > Neighborhood Facility' 카테고리의 다른 글
| 등촌오각 2023.6 (0) | 2023.06.23 |
|---|---|
| 3x4 2023.6 (0) | 2023.06.23 |
| 황학동 옥수수집 2023.5 (0) | 2023.05.19 |
| 성수 wave 2023.3 (0) | 2023.03.17 |
| 초당동 곶감집 2023.3 (0) | 2023.03.17 |
