2023. 7. 21. 14:43ㆍ회원작품 | Projects/Office
MARU 360

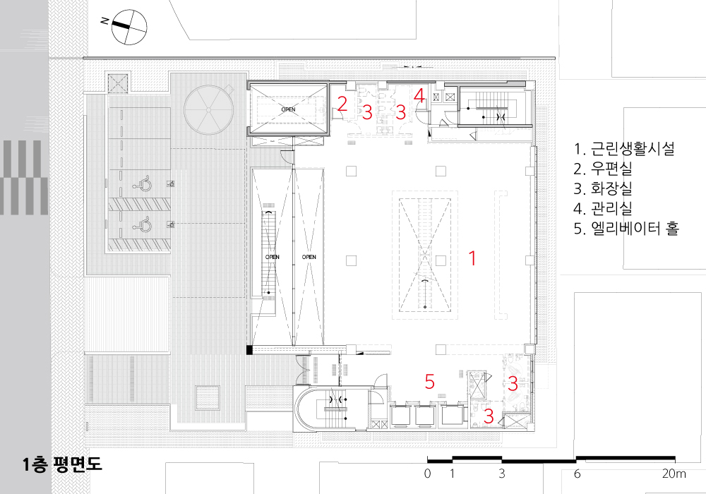
MARU 360 리노베이션 프로젝트는 아산나눔재단이 운영하는 두 번째 창업지원센터이다. 아산나눔재단이 2014년도에 첫 번째 역삼동 창업지원센터(MARU 180)를 설립한 후 그에 인접한 본 사업대상지에 MARU 360을 계획하였다. 더 많은 스타트업 기업 지원공간과 함께 아산나눔재단의 본사를 이전할 계획이다. 본 프로젝트는 ‘스타트업 육성 밸리(스타트 트랙)’에 위치한 기존의 우보사옥이라는 제한된 조건 안에서 어떻게 아산나눔재단의 이미지와 본래 기능을 수용할 것인가에 중점을 두었다. 스타트트랙에서 전면마당을 두고 후퇴된 건물의 존재감을 드러내는 것이 입면계획과 전면 진입마당계획의 주된 목표였다. 화강석의 더블스킨으로 입면을 정리했다. 향을 고려한 형태, 공간별 그룹핑을 통한 리듬감의 입면은 스타트트랙의 컨텍스트를 유지하면서도 다른 기억을 남기기 위한 노력이다. 저층부는 최대한 투명하여 배면의 조경까지 열어두었으며, 전면 진입마당은 깨끗하게 비워두어 입주자는 물론 다양한 캐릭터들의 자연스러운 접근이 가능한 다양한 행사 공간으로 탈바꿈했다. 각층 스타트업 기업의 각 구성원의 특징을 콘셉트로 한 3개의 라운지는 그룹화된 기업들의 교류를 만들어내기 위함이다. 전 층의 라운지를 통과하는 하나의 동선은 더 넓은 범위의 소통을 목적으로 했다. 라운지 계획의 과정에서 확보한 면적은 수평·수직 증축으로 업무환경을 개선했다. 방치되었던 11층은 일상의 업무에서 벗어나 숲속에 둘러싸인 공간에서 휴식, 행사, 회의 등 입주자들의 특별한 기억을 남기는 공간이 되었다.
리모델링으로서의 건축적 도전
볼륨과 외피의 확장 _ 리모델링의 대상으로서 기존 건물의 용적률은 바뀔 수 없는 제한적인 조건이다. 하지만 새로운 업무환경을 만들기 위해 기존 건물의 바닥을 뚫고 좀 더 열려 있는 커뮤니티 공간을 만드는 것을 기회로, 이 과정에서 없어진 바닥면적을 모아 수평적으로는 전면의 외피를 확장하여 새로운 인상을 만들고 수직적으로는 한 층을 더 높여 옥상 정원을 활용할 수 있도록 했다. 결과적으로 건물 전체는 바람을 집어넣듯 공간을 불어넣어 볼륨이 확장되는 변화를 갖게 되었다.
시간의 흔적을 담은 물질 _ 내부의 마감을 전체적으로 새로 계획하면서 기존의 건물 내부 마감을 다 철거하게 되었다. 이 과정에서 노출된 골조들은 한편으로 거칠어 보이기도 했지만, 본질적으로 건물이 거쳐온 시간이 그대로 쌓여 흔적이 남은 것으로 이해할 수 있었다. 그래서 오랜 시간의 흔적이 물성으로 그대로 드러나는 골조를 다듬어 그대로 최종 마감으로 보일 수 있도록 했다. 이것은 시간을 건축적으로 표현할 수 있는 리모델링 건물만의 기회이기도 했다.
창업지원오피스로서의 건축적 도전
커뮤니티 공간의 수직적 연속성 _ 창업지원 오피스는 다양한 협업과 교류가 필요한 업무 공간이다. 그래서 입주 기업의 특성을 살려 두 개 층 단위로 바닥을 뚫고, 오픈된 커뮤니티 공간을 만들어 공간을 연결했다. 보통은 이러한 오픈공간이 단면적으로 하나의 위치에 쌓여 각각을 연결하기는 쉽지 않은데, MARU 360에서는 이 오픈 공간을 사선으로 연속되도록 계획했다. 이로써 각각의 커뮤니티 공간은 그들 나름대로의 공간적 특성이 다르게 구분되면서도 전체적으로 하나의 동선으로 연결될 수도 있는 재미있는 여정이 되었다.
그라운드의 확장 _ 도심지 오피스는 외부공간이 협소할 수밖에 없다. 하지만 새로운 창업을 꿈꾸는 기업들은 자신들을 알리기 위해, 혹은 교류를 위해 넓은 마당, 그라운드와 그에 어울리는 정면이 도움이 된다. 그래서 지하1층과 1층, 2층은 하나로 연속되는 그라운드의 개념으로 보아 커다란 입구와 같은 크게 열린 프레임으로 정면을 만들어 시각적으로도, 공간적으로도 확장되어 연결되도록 했다.




The MARU360 Renovation Project is the second startup support center operated by the Asan Nanum Foundation. After establishing the first MARU180 startup support center in Yeoksam-dong in 2014, the Asan Nanum Foundation planned MARU360 in the adjacent project area. The plan includes relocating the Asan Nanum Foundation's headquarters along with providing more space for startup companies. The main focus of this project was how to accommodate the image and original functions of the Asan Nanum Foundation within the constraints of the existing Woo Bo building, located in the "Startup Incubation Valley" (Start Track).
The main objective of the facade design and front courtyard plan was to reveal the presence of the building, which had previously receded, with a prominent front yard in the Start Track area. The facade was adorned with granite double skin, considering both form and fragrance, and creating a rhythmic composition through spatial grouping. This design effort aimed to maintain the context of Start Track while leaving a distinct memory. The lower floors were made as transparent as possible, allowing views of the surrounding landscaping. The front courtyard was left clean and open, transforming it into a versatile event space that facilitates natural access for not only occupants but also various characters.
The concept behind the three lounges, each representing the characteristics of the members of startup companies on each floor, is to foster interaction among the grouped companies. The flow of passing through the lounges on each floor was designed to facilitate broader communication. The area secured through the lounge planning process was utilized for horizontal and vertical expansion, improving the work environment. The previously neglected 11th floor has been transformed into a space surrounded by a forest, providing a unique setting for relaxation, events, meetings, and creating special memories for the occupants outside their everyday work routine.
Architectural challenge as remodeling
Expansion of Volume and Envelope - As the subject of remodeling, the existing building's volume cannot be altered due to limited constraints. However, to create a new working environment, the opportunity was taken to create a more open community space by puncturing the existing floor, gathering the eliminated floor area, and expanding the facade horizontally to create a new impression. Vertically, an additional floor was added to utilize the rooftop garden. As a result, the entire building underwent a transformation where space was infused, allowing for an expansion of volume, as if letting in the breeze.
Material Bearing Traces of Time - As the overall interior finishes were re-planned, the existing interior finishes of the building were completely removed. In this process, the exposed structural elements, although appearing rough in one sense, could be understood as the accumulation of time that the building had gone through, leaving behind its traces. Therefore, the weathered appearance of the structural elements, with the authentic marks of time, was refined to be showcased as the final finish. This provided a unique opportunity to architecturally express the passage of time in the remodeled building.
Architectural challenge as a start-up support office
Vertical Continuity of Community Spaces - The startup support office is a workspace that requires diverse collaboration and interaction. To accommodate the characteristics of the resident companies, the floors were punctured in two-story units, creating open community spaces that connect the different levels. Typically, connecting such open spaces in a sectional manner at different locations can be challenging. However, in MARU360, these open spaces were planned to be connected diagonally, creating a continuous flow. As a result, each community space is distinct in its spatial characteristics, yet it becomes an engaging journey that can be connected as a whole through a single circulation route.
Expansion of the Ground Level - Office buildings in urban areas often have limited exterior spaces. However, for startups with aspirations of showcasing themselves or fostering collaboration, having a spacious courtyard or ground level, along with a fitting facade, can be advantageous. Therefore, in MARU360, the concept of a continuous ground level was adopted, connecting the basement, first floor, and second floor. A large open frame, resembling a grand entrance, was created to visually and spatially extend and connect the front area. This design allows for visual and spatial expansion, enhancing connectivity and providing a welcoming atmosphere.





| 마루 360 설계자 | 오호근 _ (주)종합건축사사무소 디자인캠프 문박 디엠피 건축주 | 재단법인 아산나눔재단 감리자 | (주)종합건축사사무소 디자인캠프 문박 디엠피 시공사 | (주)케이씨씨건설 설계팀 | 전봉진, 장호년, 구진모 대지위치 | 서울특별시 강남구 역삼로 172 주요용도 | 업무시설, 근린생활시설 대지면적 | 1,197.30㎡ 건축면적 | 569.73㎡ 연면적 | 6,773.32㎡ 건폐율 | 47.58% 용적률 | 400.53% 규모 | B3F - 11F 구조 | 철근콘크리트구조 외부마감재 | 화강석(사비석, 거창석) 내부마감재 | 화강석(사비석) , 노출콘크리트, 친환경수성페인트 설계기간 | 2019. 10 - 2020. 12 공사기간 | 2020. 02 - 2021. 09 사진 | 윤준환 구조분야 | (주)광림구조엔지니어링 기계설비분야 | (주)정도설비 전기분야 | (주)일신이엔씨 소방분야 | (주)남도티이씨 |
Maru 360 Architect | Oh, Ho-Keun _ designcamp moonpark dmp Client | The Asan Nanum Foundation Supervisor | designcamp moonpark dmp Construction | KCC E&C Project team | Jeon, Bongjin / Chang, Honyon / Koo, Jinmoh Location | 172, Yeoksam-ro, Gangnam-gu, Seoul, Korea Program | Office, Neighborhood facility Site area | 1,197.30㎡ Building area | 569.73㎡ Gross floor area | 6,773.32㎡ Building to land ratio | 47.58% Floor area ratio | 400.53% Building scope | B3F - 11F Structure | RC Exterior finishing | Granite stone(color granite) Interior finishing | Granite stone(color granite), Exposed concrete, Waterbased paint Design period | 10, 2019 - 12, 2020 Construction period | 02, 2020 - 09, 2021 Photograph | Yoon, Joonhwan Structural engineer | Gwanglim Structure Engineering Corp. Mechanical engineer | Jungdo enginerring Electrical engineer | Ilshin ENC(engineering & construction) Fire engineer | Namdo TEC |
'회원작품 | Projects > Office' 카테고리의 다른 글
| 더 스타일 빌딩 2024.2 (0) | 2024.03.08 |
|---|---|
| (주)세이프코리아 사옥 _ 소소원 2024.2 (0) | 2024.03.08 |
| 대한주정판매(주) 사옥 증축공사 2023.3 (0) | 2023.03.17 |
| DNF _ 오피스텔 2022.5 (0) | 2023.02.19 |
| 성수동 정암빌딩 2022.4 (0) | 2023.02.18 |
