2023. 3. 17. 17:35ㆍ회원작품 | Projects/Office
Korea Ethanol Supplies Company Building






계획대지는 서울 IT산업의 중심인 가산디지털단지와 구로디지털단지, 두 지역 중간과 주거지역 경계선상에 위치한다.
대로변 주변은 시야 확보를 위해 저층 스카이라인으로 분지와 흡사하며, 주 진입로에선 소규모 슬레이트 지붕, 샌드위치 외벽패널로 슬럼화된 거리를 적잖게 볼 수 있다.
대한주정판매가 사무실, 제조공장 혹은 창고 등으로 사용하던 이곳에서 낙후된 환경개선과 시설규모 확장을 위해 프로젝트가 시작되었다.
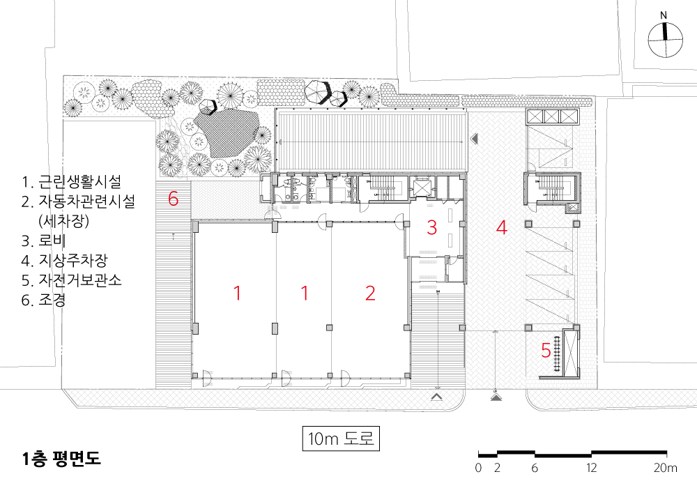
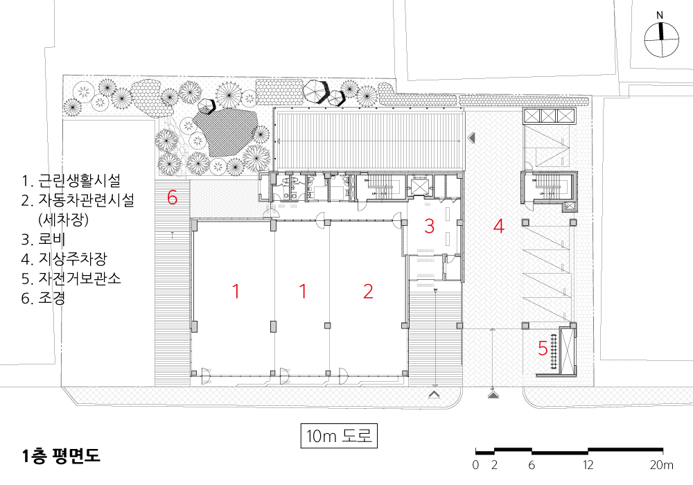
전시, 업무, 휴식공간은 기능을 분화하여 상부매스로 발전시켰고 근·생, 주출입공간은 접근성과 편의성을 고려하여 하부매스로 구성하였으며, 옥외(조경)공간은 내·외부공간의 전이공간으로 효율적 토지 및 공간 활용을 유도하였다.
우뚝 선 주 매스는 도시의 단정함과 세련됨을 단아하게 패턴화하고, 저층부 분리공간은 상업공간의 우아함을 표현하기 위해 유리와 프레임을 텍스처로 반영하여 탈 산업단지, 탈 공장을 목표로 계획하였다.



The site is located in the middle of Gasan Digital Complex and Guro Digital Complex, which are the center of Seoul's IT industry, and on the boundary of the residential area.
With the low-ise skyline to secure visibility, the area around the main street looks like a basin, and from the main access road, you can see a lot of slum streets with small slate roofs and sandwich panels for exterior walls.
This project began to improve the deteriorated environment and expand the scale of facilities in this place where Korea Ethanol Supplies Company used as offices, manufacturing plants, or warehouses.
The functions of exhibition, workplace and rest spaces are divided separately and placed onto upper masses, and main entrance spaces are composed of lower masses in consideration of accessibility and convenience. The outdoor (landscape) space is a transitional space between the indoor and outdoor spaces, leading to efficient use of land and space.
For the main mass, the neatness and sophistication of the city is elegantly patterned, and the divided spaces on the lower floors reflect glass and frame as the texture to express the elegance of commercial space, aiming at a post-ndustrial complex and post-factory.
| 대한주정판매(주) 사옥 증축공사 설계자 | 강성찬 _ (주)한국종합건축사사무소 건축주 | 대한주정판매(주) 감리자 | 윤재일 _ (주)한국종합건축사사무소 시공사 | 박종웅 _ (주)삼일기업공사 설계팀 | 이규홍, 곽준걸, 유상규, 송용규 대지위치 | 서울특별시 금천구 시흥대로153길 16 주요용도 | 업무시설, 제2종 근린생활시설 대지면적 | 1,829.40㎡ 건축면적 | 915.13㎡ 연면적 | 5,516.13㎡ 건폐율 | 50.03% 용적률 | 183.28% 규모 | B2F - 7F 구조 | 철근콘크리트구조 외부마감재 | T5세라믹 복합판넬, T28로이복층유리(소프트코팅), T3알루미늄쉬트루버 내부마감재 | 바닥 _ T0.3 세라믹 코팅, T12 접합타일, T12 포셀린타일 벽체 _ 수성페인트, T9 포셀린타일, T9 자기질타일 천장 _ T9.5 석고텍스, PVC계 천정재, 마이톤 설계기간 | 2018. 09 - 2019. 03 공사기간 | 2019. 04 - 2020. 06 구조분야 | (주)에이치구조 엔지니어링 기계설비·소방분야 | (주)성우엠이씨 전기분야 | (주)진원엔지니어링 |
Korea Ethanol Supplies Company Building Architect | Kang, Seong chan _ Han-guk Architects & Engineers Co., Ltd. Client | Korea Ethanol Supplies Company Supervisor | Youn, Jaeil _ Han-guk Architects & Engineers Co., Ltd. Construction | Park, Jong-woong _ Samil Corporation Project team | Lee, Gyu Hong / Kwak, Jun Girl / You, Sang Gyu / Song, Yong Gyu Location | 16, Siheung-daero 153-gil, Geumcheon-gu, Seoul, Korea Program | Business Facilities, Category 2 Neighborhood Living Facilities Site area | 1,829.40㎡ Building area | 915.13㎡ Gross floor area | 5,516.13㎡ Building to land ratio | 50.03% Floor area ratio | 183.28% Building scope | B2F - 7F Structure | RC Exterior finishing | T5 Ceramic composite panel, T28 Low-E double layer Glass(Soft coating), T3 Aluminum sheet louver Interior finishing | Floor _ T0.3 Ceramic coated, T12 Bonding tile, T12 Porcelain tile Wall _ Water-based Paint, T9 Porcelain tile, T9 Magnetic tile Ceiling _ T9.5 Gypsum tex, PVC-based ceiling material, Myton Design period | Sep, 2018 ~ Mar, 2019 Construction period | Apr, 2019 ~ Jun, 2020 Structural engineer | H Struc. Engeneering Co., Ltd Mechanical·Fire engineer | SungWoo M.E.C Co., Ltd Electrical engineer | JINWON ENGENEERING Co., Ltd |
'회원작품 | Projects > Office' 카테고리의 다른 글
| (주)세이프코리아 사옥 _ 소소원 2024.2 (0) | 2024.03.08 |
|---|---|
| 마루 360 2023.7 (0) | 2023.07.21 |
| DNF _ 오피스텔 2022.5 (0) | 2023.02.19 |
| 성수동 정암빌딩 2022.4 (0) | 2023.02.18 |
| 피네이션 신사동 사옥 2023.2 (0) | 2023.02.17 |
