2023. 2. 17. 18:13ㆍ회원작품 | Projects/Office
P NATION Bldg.

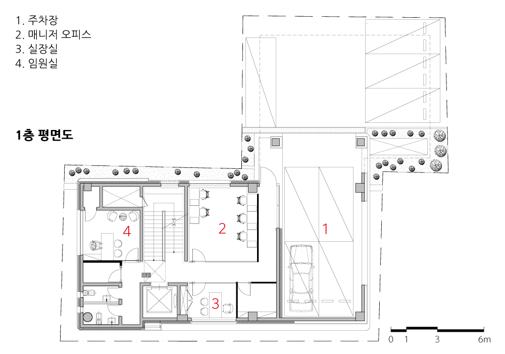
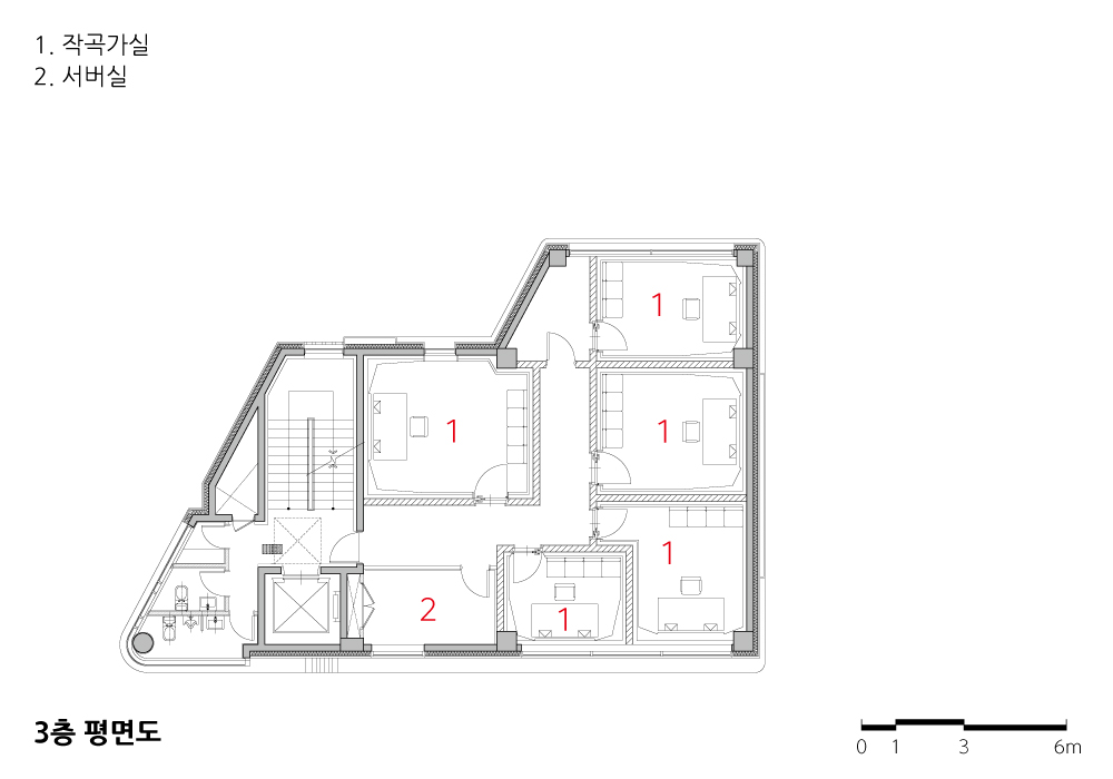
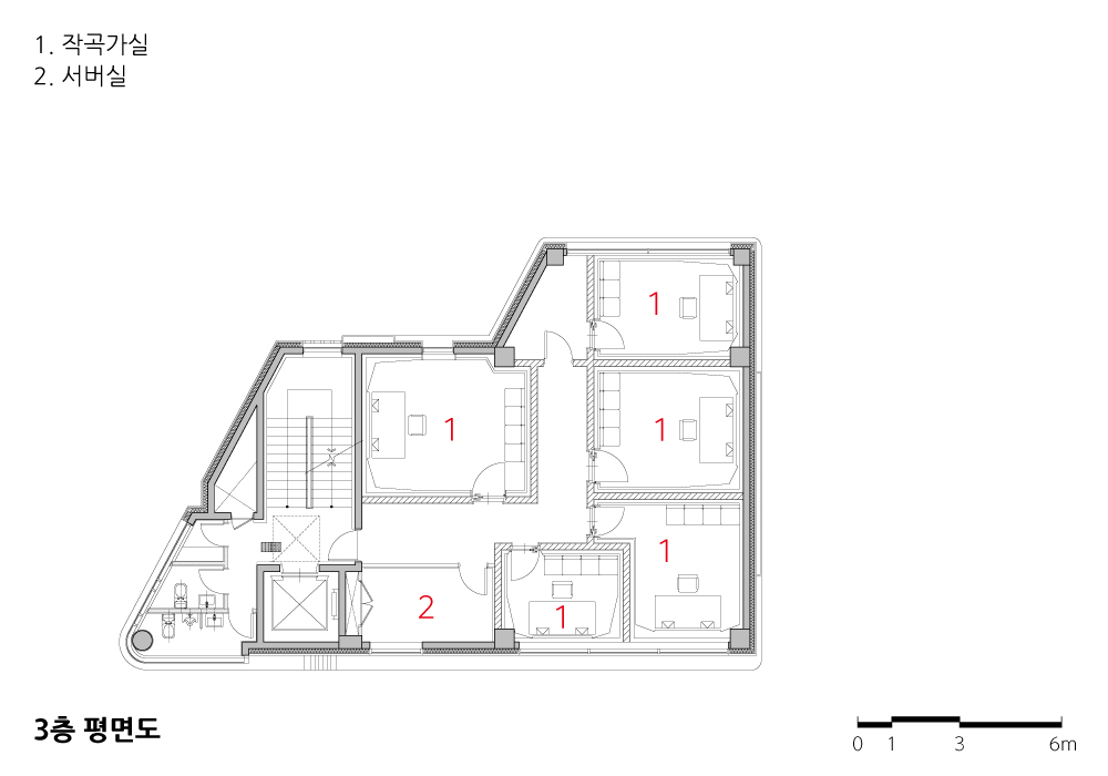
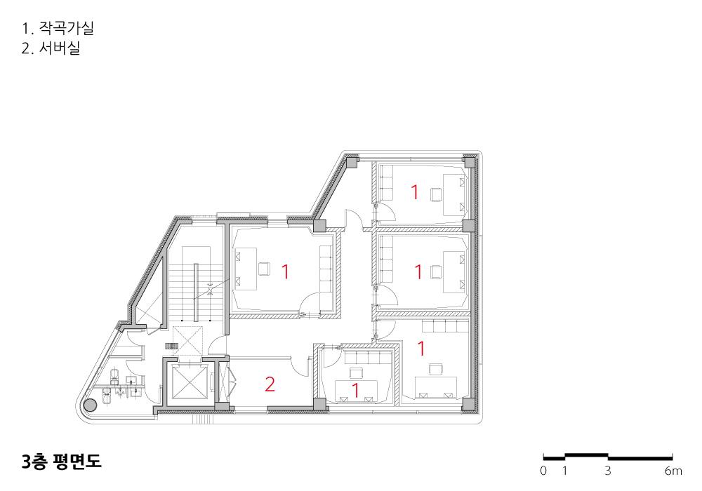
본 작품은 엔터테인먼트 사옥으로서 창의성, 공간활용성과 각 층간조닝의 구분이 명확해야 하기에 업무의 기능을 구성하는 공간, 예술을 창조하는 공간의 구분에 중점을 두었다.
“창의적 사고는 경직성을 띄지 않고 물 흐르듯 유연해야 한다.”
크리에이터의 가장 기본이 되는 명제가 본 프로젝트를 관통하는 가장 중요한 개념이 되었다.
피네이션 사옥은 가수 싸이가 처음 시작한 엔터테인먼트 사업의 요람으로, 작품을 시작할 때 건축주의 요구사항인 ‘창의적인 사고가 가능한 유연한 건축물’을 구현하려 노력하였다.
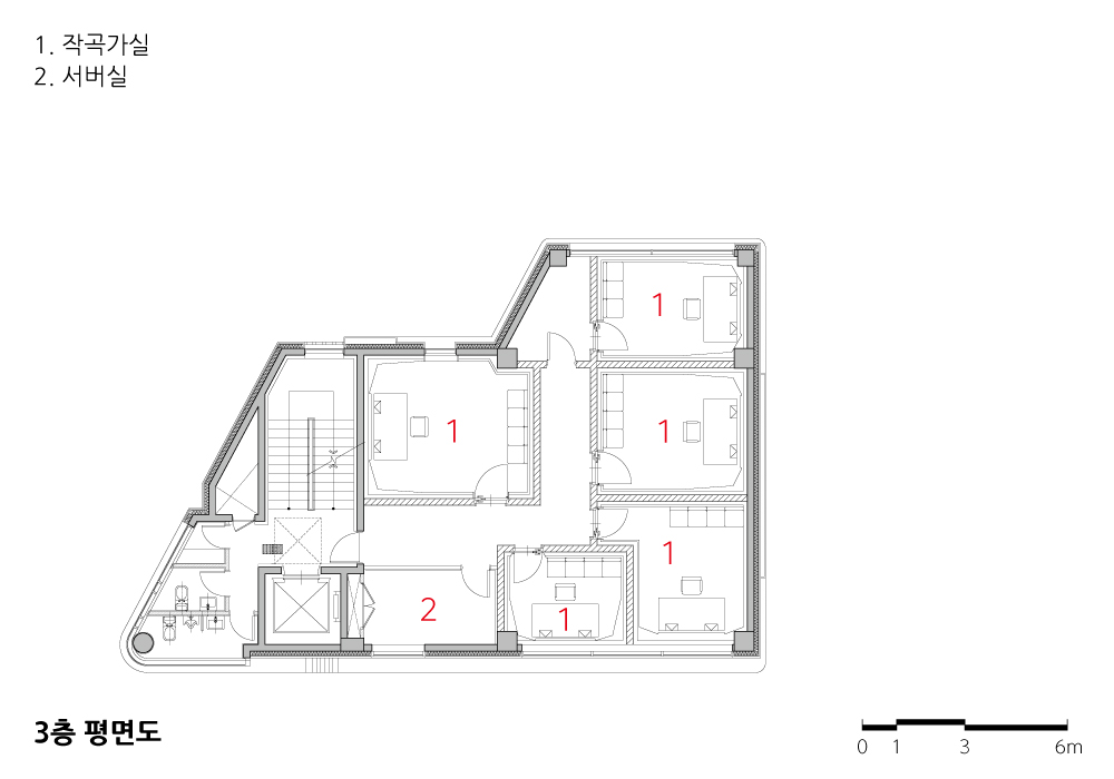
창의적 작업에 열을 쏟는 누구에게도 거슬리지 않을, 절제된 곡선의 입면 디자인과 내부 동선의 흐름, 각 스튜디오, 녹음실, 연습실, 지원부서, 업무공간들이 구분되면서도 자연스럽게 연결될 수 있는 공간구성을 통해서 하나의 커다란 ‘놀이터’를 구현하고자 하였다.
건축주와 건축사는 많은 시간을 같이 보내며, 대지가 가진 사회적, 환경적 한계성 혹은 단점이라 할 수 있는 것들을 거스르지 않고 받아들이면서 장점으로 변화시키는 작업에 꽤 오랜 시간 공을 들여왔다. 그러면서 물리적 공간을 조금 포기하더라도 창의적 공간을 만들어 내는 것에 좀 더 가치를 두었다. 그렇게 만들어진 결과는 공간의 곳곳에 남아있고, 3층과 최상층의 테라스는 저 멀리 있는 남산의 전망을 건물의 내부로 끌어들이는 창의적 숨구멍을 만들어 낼 수 있었다.

As an entertainment office building, this work focuses on the separation between the space for working and the space for creating art because creativity, space utilization, and zoning between floors must be clearly distinguished.
“Creative thinking should not be rigid, should be flexible like water.”
The creator's most basic proposition has become the most important concept for this project. P NATION office building is the cradle of the entertainment business that singer Psy first started. At the beginning of the project, we tried to realize a ‘flexible building for creative thinking’, the client’s request.
So, it was designed to become one large 'playground' through the elevation design of restrained curves that will not hinder anyone who is passionate about creative work, the flow of internal movement line, as well as the space layout that allows studios, recording studios, practice rooms, supporting department, and work spaces to be naturally connected while being separated.
The client and the architect spent a lot of time together, and it took a long time to accept the social and environmental limitations or disadvantages of the site and turn them into an advantage, rather than going against them. Meanwhile, we put more value on making a creative space, even if we gave up a little bit of physical space. The result of this hard work remains throughout the space, and the terraces on the third and top floors are able to make creative breathing holes that bring the distant view of Mt. Namsan into the building.









| 피네이션 신사동 사옥 설계자 | 박봉준 _ 와이엔피건축사사무소 건축주 | 박재상(가수 싸이) 감리자 | 박봉준 _ 와이엔피건축사사무소 시공사 | (주)두성기업 설계팀 | 유웅덕, 정진욱, 김민경 대지위치 | 서울특별시 강남구 논현로151길 21 주요용도 | 근린생활시설 대지면적 | 389.00㎡ 건축면적 | 185.99㎡ 연면적 | 1,211.78㎡ 건폐율 | 47.81% 용적률 | 184.97% 규모 | B2F - 5F 구조 | 철근콘크리트구조 외부마감재 | 석대(크리마벨로), 큐블럭(Durastack-SC500), 메탈, 로이복층유리 설계기간 | 2017. 12 - 2018. 10 공사기간 | 2018. 12 - 2020. 04 사진 | 제임스 정 / 내부사진 _ 와이엔피 구조분야 : (주) 이건구조기술사사무소 기계설비분야 : (주) 천일이앤씨 전기분야 : (주) 천일이앤씨 소방분야 : (주) 천일이앤씨 |
P NATION Bldg. Architect | Park, Bong-joon _ YnP Architects Client | Park, Jae Sang(PSY) Supervisor | Park, Bong-joon _ YnP Architects Construction | Doosung Co., LTD Project team | Yoo, Woong-Duk / Jung, Jin-Uk / Kim, Min-Kyung Location | 21, Nonhyeon-ro 151-gil, Gangnam-gu, Seoul, Korea Program | Neighbourhood living facility Site area | 389.00㎡ Building area | 185.99㎡ Gross floor area | 1,211.78㎡ Building to land ratio | 47.81% Floor area ratio | 184.97% Building scope | B2F - 5F Structure | RC Exterior finishing | Crema bello, Metal, Q-block(Concrete brick), Low-E Double glazing window Design period | Dec. 2017 - Oct. 2018 Construction period | Dec. 2018 - Apr. 2020 Photograph | James Jeong & YnP Architects Structural engineer | Lee Geon Structural Engineering Co., LTD Mechanical engineer | Cheon Il Engineering & Construction Co., LTD Electrical engineer | Cheon Il Engineering & Construction Co., LTD Fire engineer | Cheon Il Engineering & Construction Co., LTD |
'회원작품 | Projects > Office' 카테고리의 다른 글
| DNF _ 오피스텔 2022.5 (0) | 2023.02.19 |
|---|---|
| 성수동 정암빌딩 2022.4 (0) | 2023.02.18 |
| 더 라움 서울 2022.2 (0) | 2023.02.16 |
| 이원의료재단 송도의학연구소 2021.11 (0) | 2023.02.13 |
| 지타워 2021.5 (0) | 2023.02.03 |
