2023. 2. 16. 09:16ㆍ회원작품 | Projects/Office
The Raum Seoul

회사 내 프로젝트가 많아지면서 함께 설계할 팀원들을 구하기 위해 많은 구직공고를 내보았지만, 서울사무소가 아닌 지역적인 한계와 신생에 소규모 건축사사무소라는 한계가 있었다.
이러한 점을 극복하기 위해 세 명의 건축사와 팀원들 간의 해결방안을 위한 회의를 통해 사무실을 분리해서 운영하는 방안으로 결정하였다.
양평과 서울 두 개로 분리하여 서울에 거주하는 현재 팀원들을 중심으로 서울에는 디자인 연구소를 운영하고 양평에 건축사사무소를 분리해서 운영하는 것을 생각하였고, 적합한 위치를 물색하던 중 양평사무소와 대중교통으로 연결되면서 건축학과가 있는 대학교와 근접한 동대문구 휘경동의 부지를 선정하였다.
기존 건축물이 1954년에 지어진 오래된 건물이라 과도한 구조의 조정은 어려웠고, 2면이 도로에 접하였음에도 불구하고 저녁에 쓰레기가 쌓이게 되었던 어두운 공간을 밝게 바꾸어 주변 건축물에 선한 영향을 줄 수 있도록 계획하였다.
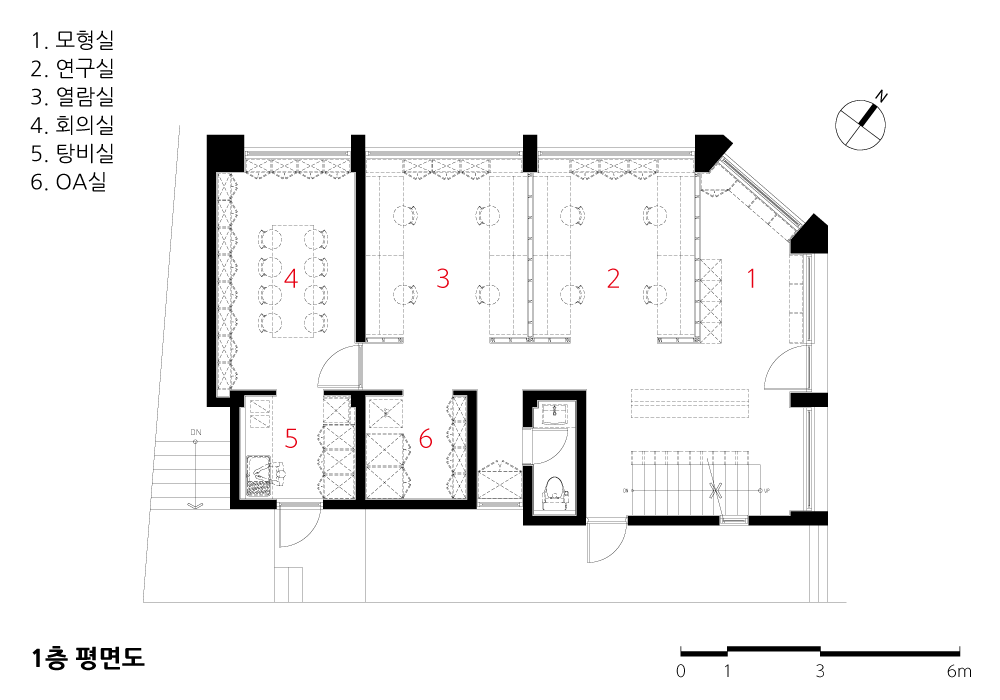
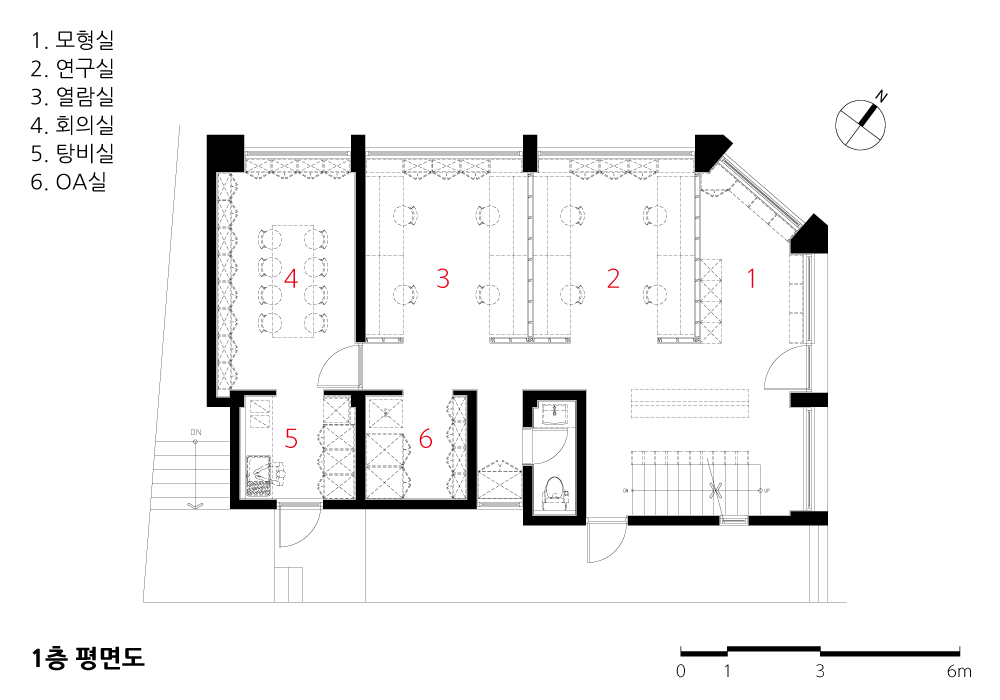
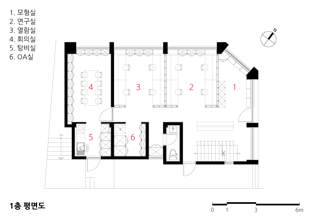
1층은 근린생활시설, 지하 1층과 2층은 단독주택으로 쓰이고 있던 기존 건축물이 다양한 평면 대안들을 거쳐 사무실과 직원들을 위한 공간으로 탈바꿈되었다. 내부적으로는 기존 양평 사무실에서 부족했던 탕비공간, 회의공간 등을 보완하고, 건축 디자인 연구소 기능을 구현하기 위한 모형 및 목업 제작실, 쇼룸 등을 계획하였다.

As the number of projects in the company increased, many job openings were made to find team members to design together, but there were limitations that it was a small building office due to regional limitations and start-up, not a Seoul office.In order to overcome this point, it was decided as a separate operation of the office through a meeting for a solution between the three directors and team members.While looking for a suitable location, Yangpyeong Office and Hwigyeong-dong, Dongdaemun-gu, which was connected by public transportation and selected a site in Hwigyeong-dong, Dongdaemun-gu, close to the university where the architecture department is located.Since the existing building was built in 1954, it was difficult to adjust the structure excessively, and despite the two sides facing the road, it was planned to change the dark space where garbage was piled up in the evening to have a good effect on the surrounding buildings.The first floor of the existing building was used as a neighborhood living facility, and the basement and second floors were used as detached houses. Through various alternatives, it has been transformed into a space for architectural design lab and employees.Inside the building, pantry rooms and meeting spaces, which were insufficient in the existing Yangpyeong office, were supplemented, and models, mock-up production rooms, and showrooms were planned to implement the functions of the architectural design lab.








|
더 라움 서울 설계자 | 방재웅 · 장근용 _라움 건축사사무소 건축주 | 방재웅 감리자 | 방재웅 _ 라움 건축사사무소 시공사 | 위드라움 대지위치 | 서울특별시 동대문구 전농로38길 88 주요용도 | 건축 디자인 연구소 대지면적 | 159.00㎡ 건축면적 | 83.41㎡ 연면적 | 151.58㎡ 건폐율 | 52.46% 용적률 | 95.33% 규모 | 지하 1층, 지상 2층 구조 | 연와조 외부마감재 | 롱 브릭 타일, 스타코 마감 내부마감재 | 수성페인트 도장마감 설계기간 | 2020.10 - 2021. 03 공사기간 | 2021. 03 - 2021. 06 사진 | 이한울 _ 나르실리온 |
The Raum Seoul Architect | Bang, Jaewoong · Jang, Geunyong _ RAUM architecture Client | Bang, Jaewoong Supervisor | Bang, Jaewoong _ RAUM architecture Construction | withraum Location | 88, Jeonnong-ro 38-gil, Dongdaemun-gu, Seoul, Korea Program | Architectural Design lab Site area | 159.00㎡ Building area | 83.41㎡ Gross floor area | 151.58㎡ Building to land ratio | 52.46% Floor area ratio | 95.33% Building scope | B1F - 2F Structure | Built of brick Structure Exterior finishing | Long brick tile, Stucco Interior finishing | Eco-Friendly Water Based Paint Design period | Oct. 2020 - Mar. 2021 Construction period | Mar. 2021 - Jun. 2021 Photograph | Lee, Hanul |

'회원작품 | Projects > Office' 카테고리의 다른 글
| 성수동 정암빌딩 2022.4 (0) | 2023.02.18 |
|---|---|
| 피네이션 신사동 사옥 2023.2 (0) | 2023.02.17 |
| 이원의료재단 송도의학연구소 2021.11 (0) | 2023.02.13 |
| 지타워 2021.5 (0) | 2023.02.03 |
| 3.1빌딩 리노베이션 2021.3 (0) | 2023.02.01 |