2023. 7. 24. 15:17ㆍ회원작품 | Projects/Neighborhood Facility
Leikkipuisto


가평군 행현리 축령산 자락에 자리 잡은 아침고요 수목원은 원예학을 전공한 한 교수님이 한국 전통의 아름다움을 담은 정원을 만들어 널리 알리고 싶은 열망으로 여러 해 동안 전국 방방곡곡을 돌며 신중에 신중을 기해 선택되어 만들어진 곳이라고 한다.
사무소 개소 후 첫 펜션 작품을 시작으로 중·소규모의 숙박시설을 8년간 작업해오면서, 항상 기존의 숙박시설의 형태를 벗어난 새로운 패러다임의 프로그램을 고민해 왔다. 기본적으로 숙박과 접목시킬 수 있는 놀거리, 문화, 힐링, 서비스 등의 콘텐츠와 MZ세대, 어린아이를 둔 젊은 가족, 노인과 중년층, 단체 등의 수요를 고려하여 계획하는 것은 프로젝트를 진행하며 항상 고민하는 숙제이기도 하다.
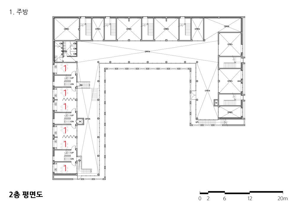
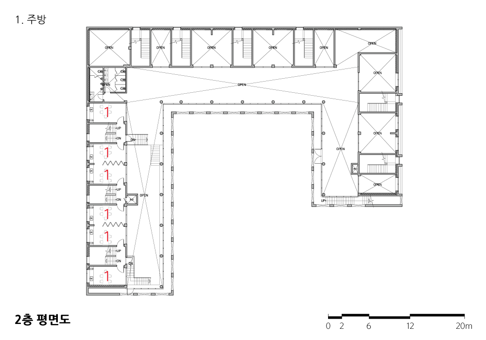
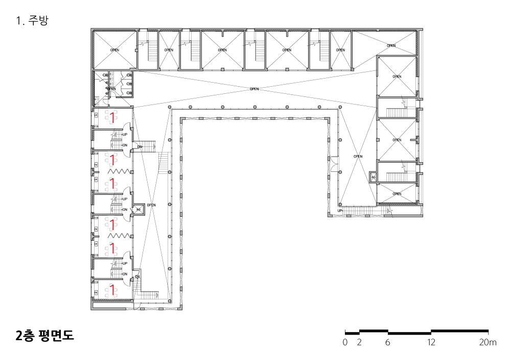
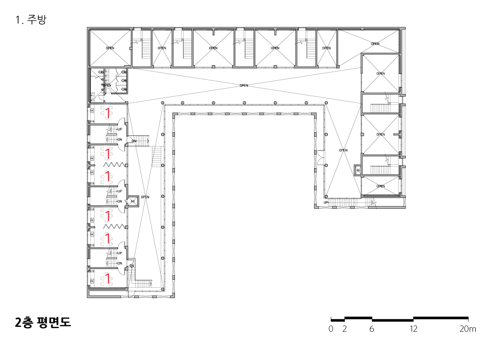
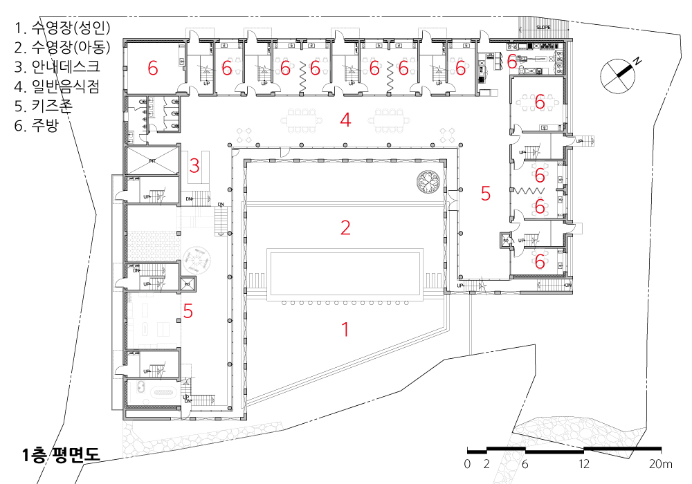
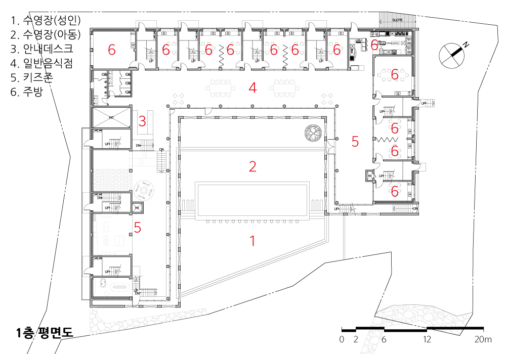
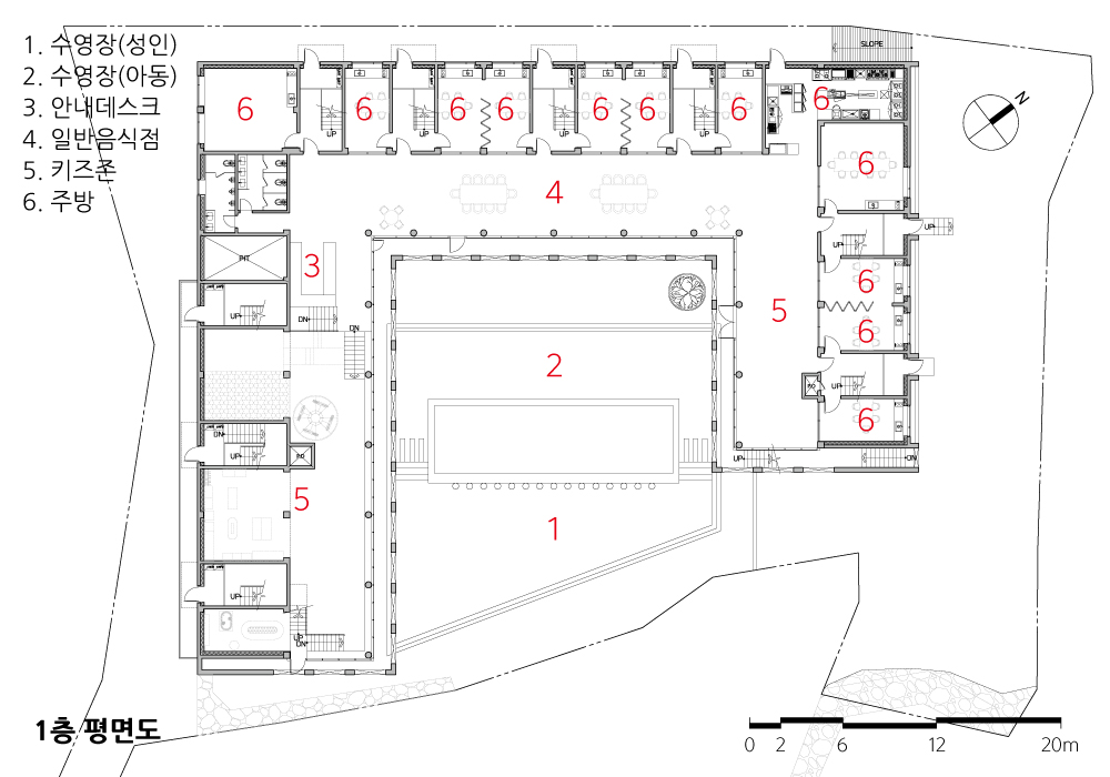
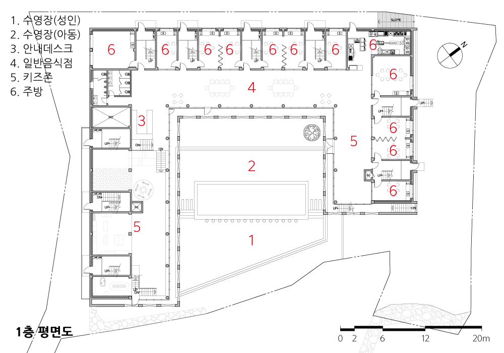
아침고요수목원을 아래로 내려다볼 수 있을 정도로 다소 높은 위치에 자리 잡은 본 작품은 숙박, 카페 그리고 놀이시설을 결합해 아이를 둔 젊은 부부들이 쉴 수 있는 공간으로 계획했다. 지하층은 파티 룸을 비롯해 리셉션 공간으로 구성했고, 1층의 대형 홀은 어린이시설과 카페 공간 그리고 개별 바비큐장을 두었다. 디귿(ㄷ)자 형태의 평면배치는 중앙에 수공간을 만들어 아이들의 놀거리를 제공한다. 2층은 17개의 객실이 독립되는 동시에 합해지기도 하는 가변적 평면 형태를 고려했다.
대형 호텔 또는 리조트에서 볼 수 있는 부대시설인 레스토랑, 카페, 어린이놀이시설, 야외수영장 시설에 더해 중·소규모의 숙박시설에서 볼 수 있는 개별 바비큐장을 직접 연결시켜 각각의 장점만을 융합한 새로운 패러다임의 숙박시설을 제안하고자 했다.
노출콘크리트의 묵직하고 거친 건축의 구조적 소재는 반복되는 아치 패턴의 아름다운 곡선과 믹스매치(mix-match)하여 독특한 외부 공간을 연출했다. 중앙에서 수공간을 지나 작은 정원을 통과하는 시선은 아침고요수목원을 품은 축령산의 빼어난 경치에 머무르고, 사용자로 하여금 잠시나마 무념의 시간을 갖게 한다.
본 작품은 당사의 자체개발사업 프로젝트로서, 신중에 신중을 기하고 지우고 또 그리기를 반복해 개념을 정립했다. 그 과정에서 고생한 직원들과 인생의 멘토이자 공동투자와 아이디어를 주신 홍태중 T&J 대표님과 여러 관계자분들께 깊은 감사를 표한다.






The Morning Calm Arboretum, located on the slopes of Chukryeong Mountain in Henghyeon-ri, Gapyeong County, is said to have been carefully selected and created by a professor specializing in horticulture. Over the years, the professor has traveled throughout the country with a strong desire to promote the beauty of Korean traditional gardens. The arboretum showcases the essence of Korean tradition and aims to be widely known.
Since the opening of our office, I have been working on various small and medium sized accommodations for the past eight years, starting with our first pension project. Throughout this time, I have always strived to explore new paradigms that go beyond the traditional forms of accommodations. One of the ongoing challenges in our projects is to plan and consider the demands of different target groups such as the MZ generation (Millennials and Generation Z), young families with young children, seniors, middle-aged individuals, and groups, while incorporating activities, culture, healing, and services that can be integrated with the accommodation experience.
This particular project is situated in a slightly elevated location, allowing a view overlooking the Morning Calm Arboretum. It combines accommodations, a cafe, and recreational facilities, designed as a space for young couples with children to relax. The underground floor consists of a party room and a reception area. On the first floor, there is a large hall that includes facilities for children, a cafe space, and individual barbecue areas. The layout of the floor plan forms a "ㄷ" shape, creating a central space for children to play. For the second floor, a flexible layout was considered, where 17 rooms can function independently or be combined together.
The intention was to propose a new paradigm for accommodations by combining the advantages of various facilities commonly found in large hotels or resorts, such as restaurants, cafes, children's play areas, and outdoor swimming pool facilities, with the addition of individual barbecue areas typically seen in small to medium sized accommodations. By directly connecting these amenities, the aim was to create a unique accommodation experience that brings together the best of both worlds.
The solid and rugged materiality of exposed concrete, combined with the repetitive arch pattern, has been used to create a unique external space. The view, starting from the central space and passing through a small garden, allows guests to linger and appreciate the exceptional scenery of Chukryeong Mountain, embracing the Morning Calm Arboretum. It provides users with a momentary escape, allowing them to have a contemplative time.
This project is a result of our in house development initiative, and it required careful consideration and multiple iterations to establish the concept. Throughout the process, we are deeply grateful to our hardworking staff who persevered, as well as to Mr. Hong Tae-Jung, the CEO of T&J, who served as both a mentor in life and a co-investor, providing valuable ideas. We extend our heartfelt gratitude to Mr. Hong Tae-Jung and all other individuals involved in this project.






| 레이키푸이스토 설계자 | 김정수 _ 건축사사무소호반석(주) 건축주 | (주)티앤제이파트너스 감리자 | 건축사사무소호반석(주) 시공사 | (주)동인에프씨 대지위치 | 경기도 가평군 상면 수목원로386번길 14-12 외 3필지 주요용도 | 생활숙박시설 / 제2종근린생활시설 대지면적 | 2,517.00㎡ 건축면적 | 973.66㎡ 연면적 | 2,322.20㎡ 건폐율 | 38.68% 용적률 | 81.13% 규모 | B1F - 3F 구조 | 철근콘크리트구조 외부마감재 | 노출콘크리트, 적벽돌 아롱쌓기 내부마감재 | 집성목, 비닐계타일, 콘크리트 노출마감, 내부용 수성페인트, 강마루 설계기간 | 2021. 04 - 2022. 07 공사기간 | 2021. 11 - 2023. 02 사진 | 함영인 _ f64 스튜디오 구조분야 | 바우엔구조 기계설비분야 | (주)승진이엠씨 전기분야 | (주)승진이엠씨 소방분야 | (주)승진이엠씨 |
Leikkipuisto Architect | Kim, Jeong-Su _ HOBANSUK Architects Client | T&J Partners Co., Ltd. Supervisor | HOBANSUK Architects Construction | DONGINFC Co., Ltd. Location | 14-12 and three lots, Sumogwon-ro 386beon-gil, Sang-myeon, Gapyeong-gun, Gyeonggi-do, Korea Program | Living accommodation / Type 2 neighborhood living facilities Site area | 2,517.00㎡ Building area | 973.66㎡ Gross floor area | 2,322.20㎡ Building to land ratio | 38.68% Floor area ratio | 81.13% Building scope | B1F - 3F Structure | RC Exterior finishing | Euroform exposed concrete, Red brick Interior finishing | Agregate wood, Vinyl tile, Exposed concrete, Water-based paint, Wood floor Design period | Apr. 2021 - Jul. 2022 Construction period | Nov. 2021 - Feb. 2023 Photograph | Ham, Youngin _ f64 studio Structural engineer | BAUEN structure Mechanical engineer | SEUNGJIN EMC Co., Ltd. Electrical engineer | SEUNGJIN EMC Co., Ltd. Fire engineer | SEUNGJIN EMC Co., Ltd. |

'회원작품 | Projects > Neighborhood Facility' 카테고리의 다른 글
| TAILWIND 2023.9 (0) | 2023.09.14 |
|---|---|
| 스테이 오피스 2023.8 (0) | 2023.08.18 |
| 호반 써밋 라테라스 2023.7 (0) | 2023.07.24 |
| CMK빌딩 2023.7 (0) | 2023.07.21 |
| 인문 아카이브 양림(養林) 2023.6 (0) | 2023.06.23 |