2023. 8. 18. 15:23ㆍ회원작품 | Projects/Neighborhood Facility
STAY OFFICE

스테이 온 더 그라운드 : 스테이 오피스 빌딩
마포구 내에서 비교적 평화롭고 한산한 동네인 성산동의 대로변에 위치한 건축물은 남향 빛을 받아 채광이 풍성하고 건물 전면에는 버스 정류장이 있어 등하교 하는 아이들로 북적인다. 한때 용적률이 300% 이상까지 허용되었던 탓에 기존 건축물은 현재의 허용 용적률보다 크게 지어져있었고, 신축보다 대수선을 선택하는 계기가 되었다.
대수선을 선택하면서 다시 태어날 건물과 주변 맥락과의 관계를 고민했다. 일상적 동네 가로에서 혼자 돋보이기보다는 가로 풍경에 이질감 없이 녹아들기를 바랐고, 인접한 건축물들을 통해 마감재와 주색채를 도출했다. 신축 건물을 찾아보기 힘든 성미산로에는 그 시대의 건축양식을 보여주는 적벽돌과 화강석으로 마감된 건물이 대다수였고, 자연스럽게 그레이 톤의 벽돌 마감으로 계획되었다.
건축물의 형태는 큰 변화를 거쳤다. 상가주택의 전면 창호의 위치와 형태는 불규칙적이었으며, 상층부의 장식적인 요소는 주변 맥락과 동떨어져있었다. 이에 라멘 구조재만 남긴 채 전면부 입면 전체를 철거하고 다시 계획했다. 6층 구조를 외부까지 확장하고 뒤로 후퇴해있던 계단실 구조를 앞으로 돌출시켜 전면을 올곧은 형태로 정돈했으며, 대형 창호를 설치해 가로환경과 남향 빛을 충만하게 받아들이는 입면으로 탈바꿈했다.
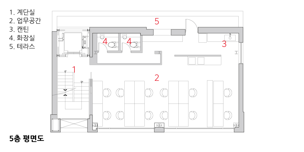
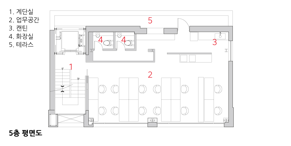
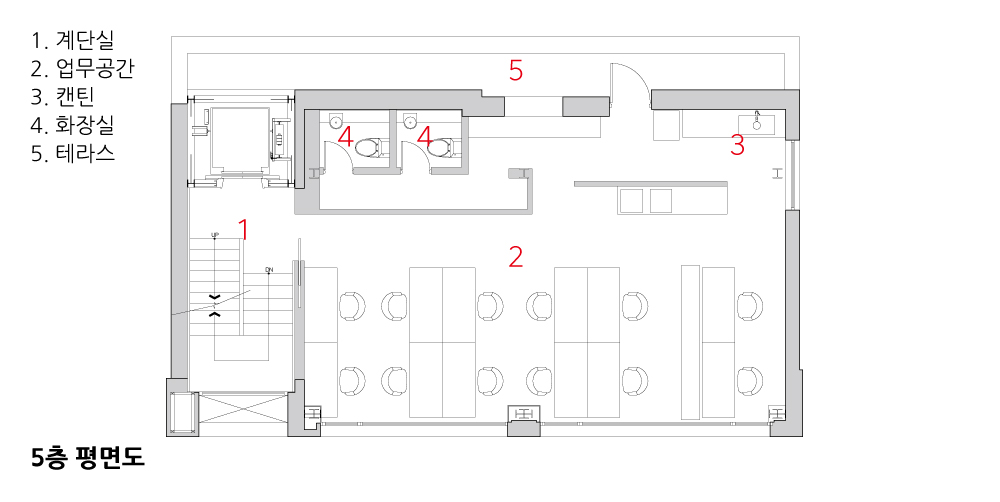
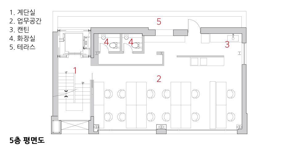
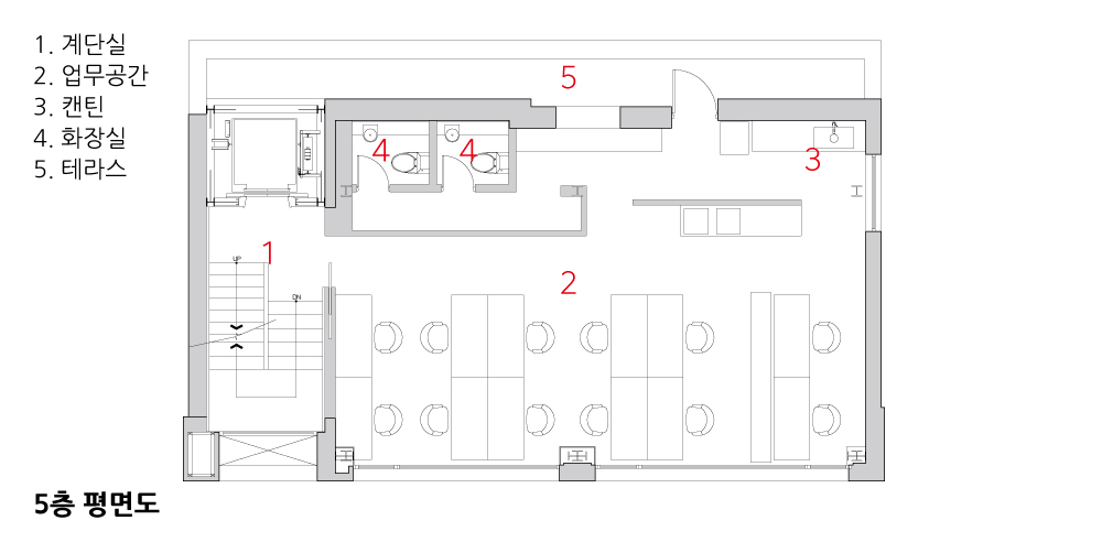
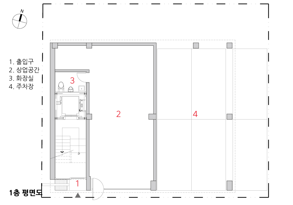
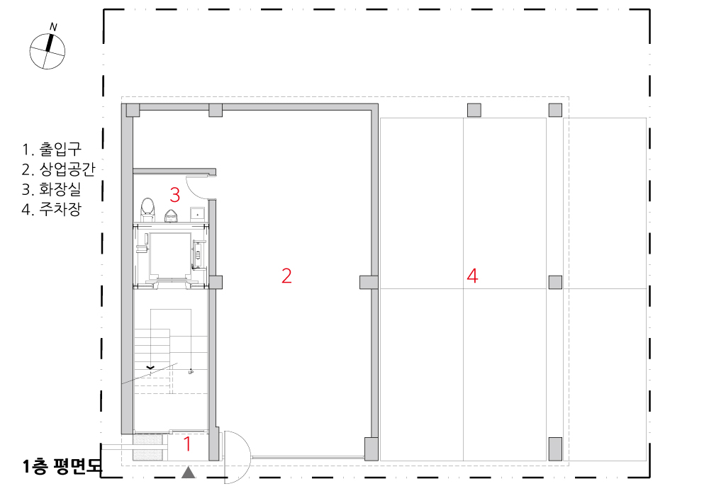
신축과 구축을 포함해 5층 내외 규모 건축물의 가장 중요한 이슈는 계단의 배치와 엘리베이터의 유무인데, 이 건물도 그러했다. 협소한 계단실과 각층의 복도에 배치된 공용화장실은 20년이 넘은 꼬마빌딩의 전형적인 평면이었고, 기존의 화장실 위치에 엘리베이터를 삽입하기 위해 화장실과 계단을 철거한 후 신설했다. 주택의 모습이었던 5층과 6층의 내력벽 철거와 구조보강도 함께 이루어졌다.
스테이 오피스는 도시를 구성하는 건축물 중에서 상당히 높은 비율을 차지하고 있는 꼬마빌딩의 새로운 모습을 보여주며, 이들의 변화와 재사용에 대하여 생각하게 한다.


STAY ON THE GROUND : STAY OFFICE
The existing building, located on the roadside of Seongsan-dong, a relatively peaceful and quiet neighborhood in Mapo-gu, was lit by the south facing light, and the bus stop in front of the building was crowded with children going to and from school. At one time, the floor area ratio was allowed up to 300% or more, so existing buildings were built larger than the current allowable floor area ratio, and it was an opportunity to choose a major renovation rather than a new construction.
The finishing materials and color plan were made by reflecting the atmosphere of the adjacent buildings and the overall street on both sides, and the elevation and interior division were considered in consideration of the main usage status of the surrounding buildings and the use plan of the main building. At first, because the upper floors of the building were houses, the location and shape of the front windows were irregular and consisted of small windows as a whole. Considering that the entire floor will be used as an office, the entire elevation was demolished, leaving only the structure, and the windows were extended to transform it into a regular elevation. In the process, a detailed plan was needed to complement the ramen structure in which structural members of different sizes are asymmetrically arranged. As a result, the stairwell, which had retreated backwards, was protruded and the gap between the columns was supplemented to create a three dimensional and unified architectural language.
The most important issues for a building with a scale of about five floors, including new construction and construction, are stairs and elevators, as was the case with this building. The narrow staircase room and the shared toilets in the hallways on each floor were typical of a small building that was over 20 years old, and they were built after the toilets and stairs were demolished to insert an elevator into the existing toilet location. The demolition and structural reinforcement of the load-bearing walls of the 5th and 6th floors, which used to be houses, were also carried out.
STAY office is the work space of STAY architects and shows a new look of the small building, which occupies a fairly high proportion of the buildings that make up the city, and makes you think about their change and reuse.






| 스테이 오피스 설계자 | 홍정희 _ 스테이아키텍츠 건축사사무소 건축주 | 스테이아키텍츠 건축사사무소 감리자 | 스테이아키텍츠 건축사사무소 시공사 | (주)도담종합건설 설계팀 | 고정석, 김판수 설계의도 구현 | 스테이아키텍츠 건축사사무소 대지위치 | 서울특별시 마포구 성미산로 29-1 주요용도 | 근린생활시설 대지면적 | 232.20㎡ 건축면적 | 139.23㎡ 연면적 | 587.83㎡ 건폐율 | 59.96% 용적률 | 253.16% 규모 | 6F 구조 | 철근콘크리트구조 외부마감재 | 벽돌마감 내부마감재 | 원목마루, 도장 설계기간 | 2021. 02 - 2021. 07 공사기간 | 2021. 08 - 2021. 01 사진 | 홍기웅 구조분야 : 서전구조 기계설비분야 | (주)세원엔지니어링 전기분야 | (주)세원엔지니어링 조경분야 | 스타일지음 |
STAY OFFICE Architect | Hong, Junghee _ STAY architects Client | STAY architects Supervisor | STAY architects Construction | Dodam Construction Project team | Justin Ko / Kim, Pansu Design intention realization | STAY architects Location | 29-1, Seongmisan-ro, Mapo-gi, Seoul, Korea Program | Office Site area | 232.20㎡ Building area | 139.23㎡ Gross floor area | 587.83㎡ Building to land ratio | 59.96% Floor area ratio | 253.16% Building scope | 6F Structure | RC Exterior finishing | Brick Interior finishing | Wooden floor, Paint Design period | 2021. 02 - 2021. 07 Construction period | 2021. 08 - 2021. 01 Photograph | Hong, Kiwoong Structural engineer | Seojeon Structural Engineering Mechanical engineer | Sewon Engineering Electrical engineer | Sewon Engineering Landscape engineer | Style Jieum |
'회원작품 | Projects > Neighborhood Facility' 카테고리의 다른 글
| 이태원 골목끝집 2023.9 (0) | 2023.09.14 |
|---|---|
| TAILWIND 2023.9 (0) | 2023.09.14 |
| 레이키푸이스토 2023.7 (0) | 2023.07.24 |
| 호반 써밋 라테라스 2023.7 (0) | 2023.07.24 |
| CMK빌딩 2023.7 (0) | 2023.07.21 |
