2023. 7. 21. 14:51ㆍ회원작품 | Projects/Neighborhood Facility
CMK Building

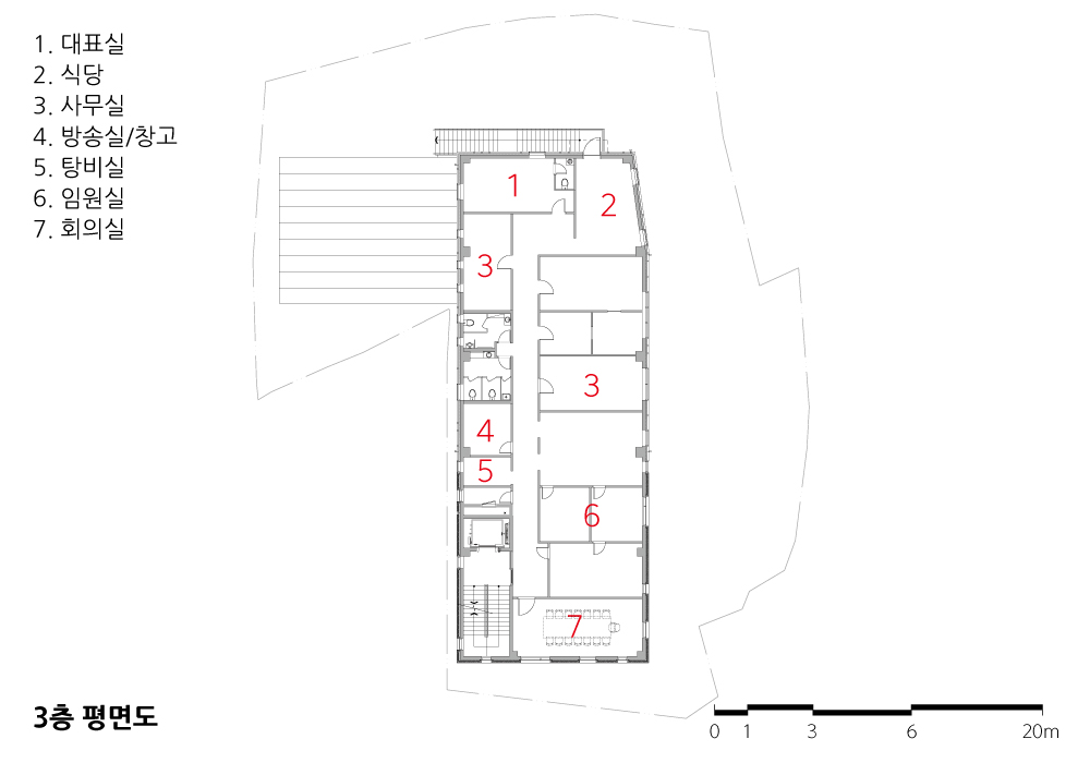
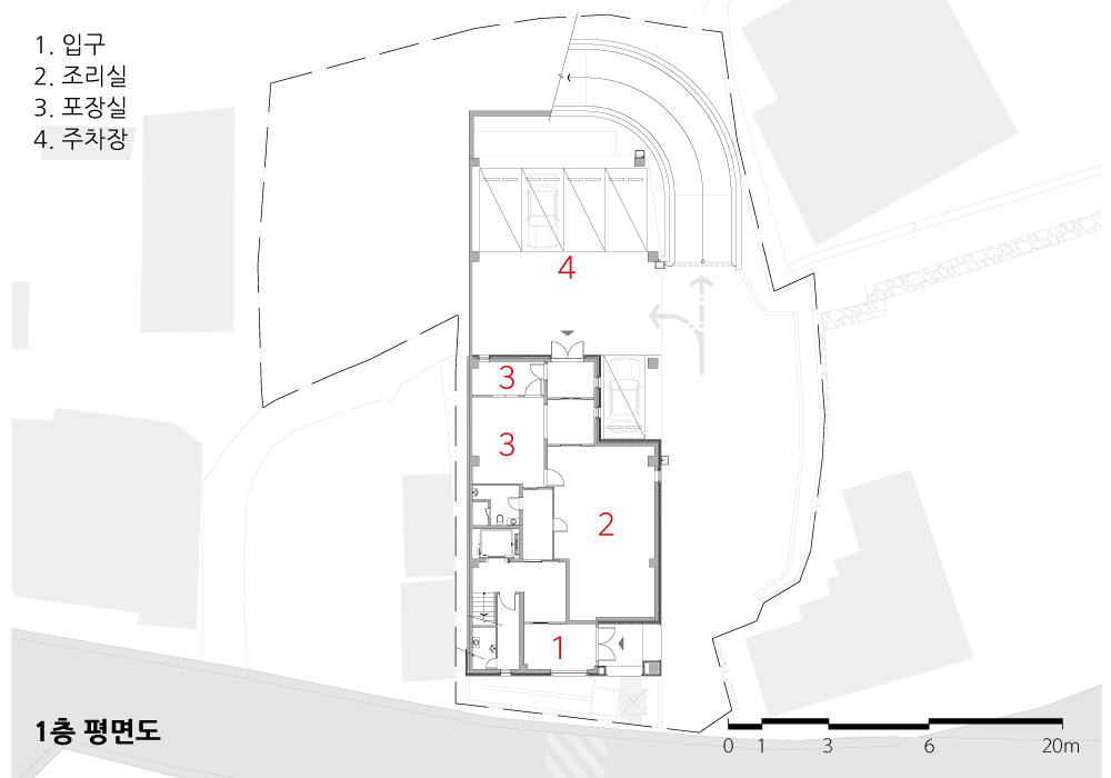
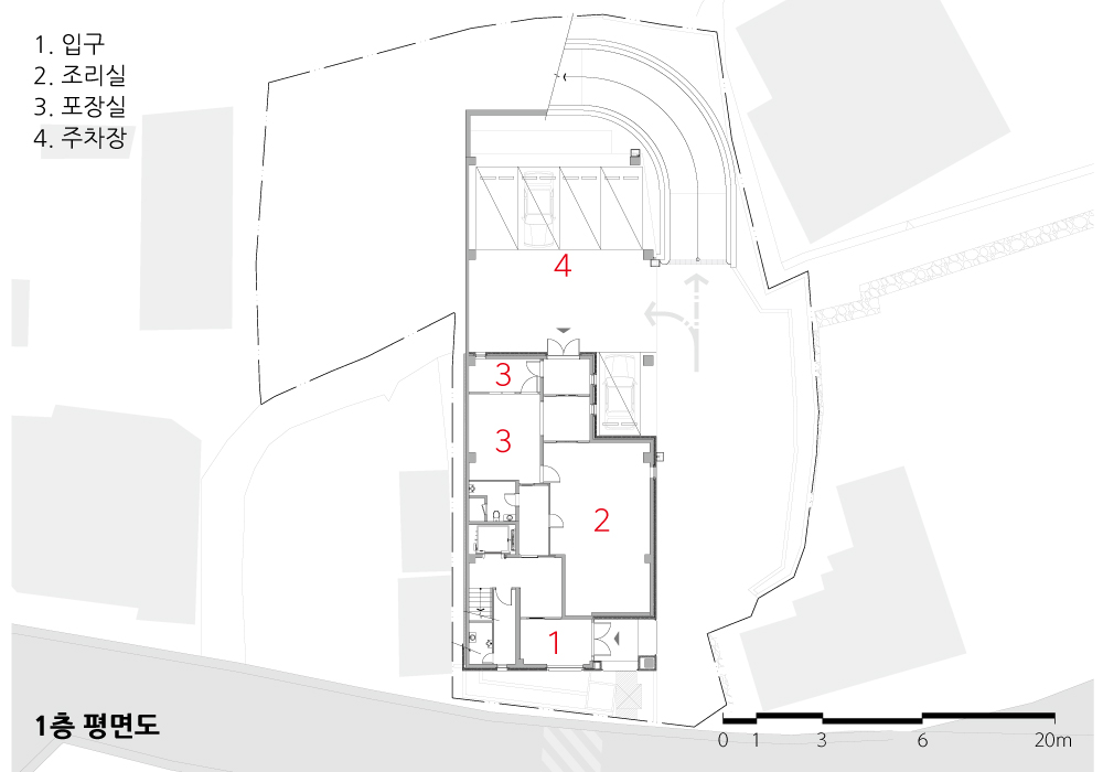
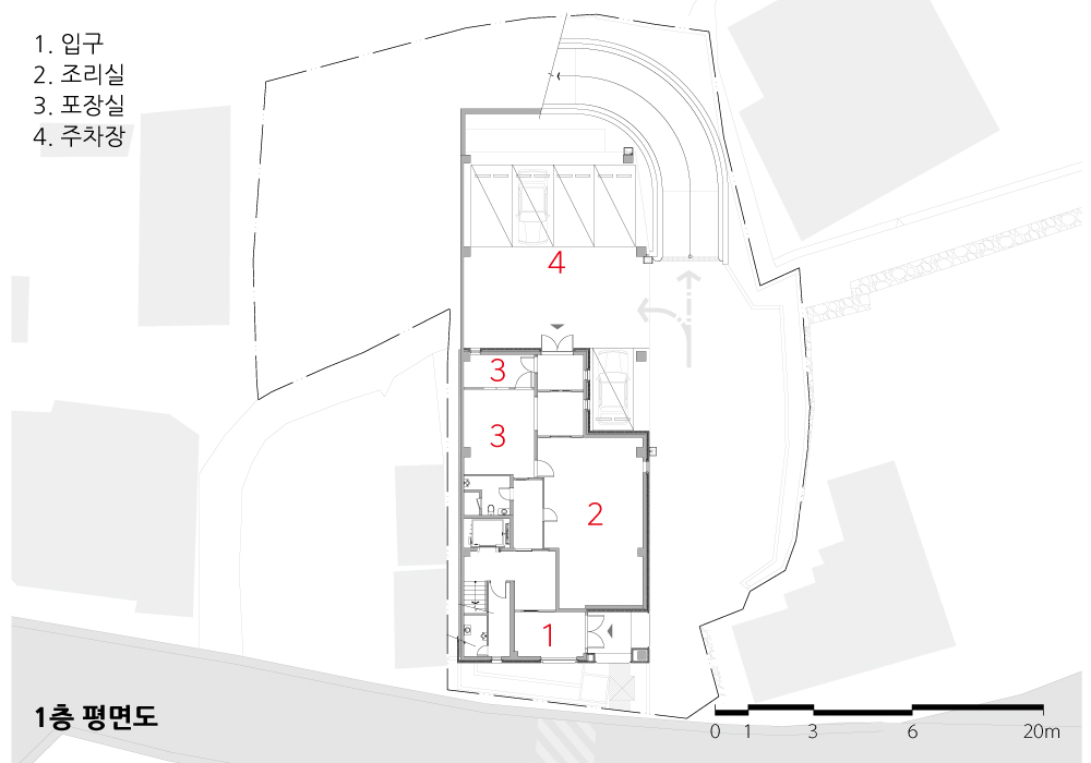
예전부터 알고 지내던 지인으로부터 설계의뢰가 들어왔다. 자신이 영위하던 회사의 사옥이 필요하다는 연락이었다. 프로젝트는 몇 개의 부지에 대해 조언하는 것으로 시작되었다. 건물의 용도가 사옥이다 보니, 건물의 프로그램은 명확했다. 명확한 프로그램을 온전히 담을 수 있는 고민이 필요했다. 사업 부지로 선정된 곳의 주변은 벽돌로 마감된 멋스러운 성당과 마주 보고 있었고, 저층의 건물들이 주변에 불규칙하게 자리 잡고 있었다. 사업 부지는 7~8미터 정도 차이 나는 경사를 이루고 있는 부지였다. 가까운 곳에 새롭게 조성된 아파트 단지가 있어, 거리의 환경은 조금씩 바뀌고 있었다.
계획의 단서는 성당의 벽돌과 경사 부지, 어수선하게 연결된 자연과 도시의 조화로운 연결에서 출발했다. 건축주와 다양한 의견 교환을 진행하며, 조금씩 건축의 계획을 구체화했다. 시설의 효율성과 함께 주변과의 관계도 중요하게 고려되었다. 외부 파사드 디자인은 건물의 상징성과 주변과의 관계성을 고려하여, 두 개의 캐릭터로 구분해 구성되었다. 거리를 지나는 사람들이 처음 마주하게 될 정면은 벽돌 마감과 상부의 경사 루버 입면 디자인을 적용했다. 건축물의 상징성과 기업 상징성의 동시 수용을 고려했다. 벽돌로 구성된 안정된 입면과 경사 루버로 구성된 경쾌한 운동성의 입면 구성은 거리를 지나는 사람들에게 건물의 상징성과 거리의 긍정적 변화를 유도할 수 있는 디자인 요소가 되리라 기대해 본다.
두 번째로 보게 될 건축물 뒤쪽의 파사드는 점진적 변화와 규칙성을 부여한 입면 구성을 통해, 자연과 도시의 연결성을 질서정연하게 적용할 수 있도록 의도했다.
새롭게 들어온 CMK 빌딩이 주변과 조화롭게 연결되어 거리를 지나는 많은 사람의 즐거운 산책 시간에 기여할 수 있기를 기대해 본다.



A design request came from an acquaintance I had known for a long time. I was informed that I needed the office building of my company. The project began with advice on several sites. Since the purpose of the building was the office building, the program of the building was clear. It was necessary to think about how to fully contain a clear program. The surroundings of the selected site of the business were faced with a stylish cathedral finished with bricks, and low-rise buildings were irregularly located around. The project site was a site with a slope of about 7 to 8m. There was a newly built apartment complex nearby, and the environment of the street was changing little by little.
The clue of the plan began with the brick and slope sites of the cathedral, and the harmonious connection between the cluttered nature and the city. They exchanged opinions with the owner of the building and gradually embodied the architectural plan. Along with the efficiency of the facility, the relationship with the surroundings was considered important. The exterior façade design was divided into two characters in consideration of the symbolism of the building and the relationship with the surroundings. The facade that passers by will face for the first time has a brick finish and an upper sloped louver elevation design. The simultaneous acceptance of the symbolism of the building and the symbolism of the company was considered. The stable elevation consisting of bricks and the light athletic elevation consisting of inclined louver are expected to be a design element that can induce positive changes in the symbolism and distance of the building for those passing through the street.
The façade behind the building, which will be seen for the second time, is intended to apply the connectivity between nature and the city in an orderly manner through gradual change and regularity.
We hope that the new CMK building will be connected in harmony with the surroundings and contribute to the pleasant walking time of many people passing through the street.








| 우록리 주택 설계자 | 동원서 _ 디에이 건축사사무소 건축주 | 윤민환 감리자 | 디에이 건축사사무소 시공사 | (주)성우아이디건설 설계팀 | 조연지, 한송민 설계의도 구현 | 디에이 건축사사무소 대지위치 | 대구광역시 수성구 지범로48길 30 주요용도 | 근린생활시설 대지면적 | 1,006.00㎡ 건축면적 | 442.09㎡ 연면적 | 992.20㎡ 건폐율 | 43.95% 용적률 | 98.63% 규모 | 4F 구조 | 철근콘크리트구조 외부마감재 | 0.5B 점토벽돌 치장쌓기, 로이복층유리, STO 외단열 토탈마감 내부마감재 | 대리석복합타일, 화강석 물갈기, 도기질 벽타일 설계기간 | 2021. 01 공사기간 | 2021. 03 – 2022. 05 사진 | 윤동규 구조분야 | 오에스구조 기계설비분야 | 서진설비설계사무소 전기통신분야 | 우진엔지니어링 |
Urok-ri House Architect | Dong, Wonsoe _ DA architects Client | Yoon, Minhwan Supervisor | DA architects & Engineers Construction | SUNGWOOID Construction Project team | Cho, Yeonji / Han, Songmin Design intention realization | DA architects & Engineers Location | 30, Jibeom-ro 48-gil, Suseong-gu, Daegu, Korea Program | Neighborhood Facilities Site area | 1,006.00㎡ Building area | 442.09㎡ Gross floor area | 992.20㎡ Building to land ratio | 43.95% Floor area ratio | 98.63% Building scope | 4F Structure | RC Exterior finishing | 0.5B Clay Brick, Low-E Glass, STO Therm Vario Interior finishing | Composite Tile, Granite, Ceramic Tile Design period | 2021. 01 Construction period | 2021. 03 – 2022. 05 Photograph | Yoon, Donggyu Structural engineer | OS Structure Engineering Mechanical engineer | SEOJIN ENG Electrical engineer | Woojin Engineering |
'회원작품 | Projects > Neighborhood Facility' 카테고리의 다른 글
| 레이키푸이스토 2023.7 (0) | 2023.07.24 |
|---|---|
| 호반 써밋 라테라스 2023.7 (0) | 2023.07.24 |
| 인문 아카이브 양림(養林) 2023.6 (0) | 2023.06.23 |
| 등촌오각 2023.6 (0) | 2023.06.23 |
| 3x4 2023.6 (0) | 2023.06.23 |
