2023. 9. 14. 18:35ㆍ회원작품 | Projects/Neighborhood Facility
Blind Alley

때론 어찌할 도리 없이 변화하는 상황에 대응해 차선을 선택해야 한다. 건축물을 계획하면서 가장 마주치기 싫은 설계변경이란 상황에 대한 이야기다. 해당 건물은 1969년에 준공한 연와조 주택으로 당시 용산구청장의 사택으로 지어졌다. 지금도 주변에서 흔히 볼 수 있는 검박한 연와조 주택으로 연식에 비해 상태가 좋아 신축에 버금가는 증축 리모델링으로 설계가 착수되었다.
당초 계획안은 철골 보강을 통한 2개 층을 증축해 지하를 포함한 총 5개 층을 사옥으로 활용하는 야심찬 그림이었으나, 코로나19에 대응해 도입된 대규모 경기부양책이 급격히 축소되며 기존의 계획안에 먹구름이 드리웠다. 급격한 금리 변동과 함께 크고 작은 금융계 악재들이 터지며 건축주는 미리 자금 조달 협의를 해두었던 금융사로부터 추가 대출 불가 통보를 받았다. 개인들로 구성된 소규모 그룹이었던 건축주는 이미 상당한 자본을 부동산 매입에 사용한 상태였기에 결국 공사예산은 당초의 4분의 1로 줄어든 상황이었다.
규모를 늘리는 기존 계획안을 고수하기는커녕 오히려 현재의 건물을 최소한으로 수선하고 기존의 것들을 최대한 활용하는 방안을 고민해야 했고, 그런 상황에 건축사가 할 수 있는 일은 별로 없었다. 어쩌면 건축주는 타절을 원할 수도 있겠다는 생각이 들었지만 성격상 그렇게 끝내기는 더 싫었기에 당초 계약했던 설계비도 삭감해 가며 그 와중에 할 수 있는 일을 찾아 존재의 의미를 증명해야 하는 묘한 외통수에 놓였다.
결국 재생의 가치에 좀 더 집중해 공간의 목적에 부합하면서도 합당한 쓰임새에 맞춰 고쳐 쓰는 최소이면서도 필수의 것들을 설계하게 되었다. 무언가를 더 증설하고 새로 넣을 여력이 없는 환경은 오히려 반대로 걷어내고 비우는 행위에 더 치중하게 만든다.
내외부 벽체는 박피를 하듯 마감과 미장, 칠들을 걷어내며 오롯이 공간을 구성하는 날것의 물성을 드러내어 공간이 변모했던 흔적, 혹은 유적과 같은 층위를 마감의 요소로 차용했다. 기존의 외부 철제 난간은 해체와 재구성을 통해 막다른 골목길의 새로운 풍경을 만들어냈다.


Sometimes, you have to choose an alternative path to adapt to changing situations that seem unavoidable. This is a story about dealing with the dreaded situation of design changes while planning a building. The building in question is a yŏnwa-jo (traditional Korean tiled-roof house) constructed in 1969, originally serving as the residence of the mayor of Yongsan District at the time. Despite its age, the house remains in good condition, resembling the typical black-tiled yŏnwa-jo commonly seen in the area. With the intention of expansion and remodeling that rivals new construction, the design process began.
The initial plan was an ambitious endeavor to expand the building by adding two floors with reinforced steel framing, ultimately utilizing a total of five floors including the basement for official purposes. However, the onset of the COVID-19 pandemic led to a significant reduction in the large-scale economic stimulus measures, overshadowing the original plan. Swift fluctuations in interest rates and various financial setbacks within the financial sector ensued, resulting in the architects receiving notice from the originally arranged financial institution that additional loans were no longer available. The group of individual investors who were the owners had already invested a considerable amount of capital into real estate acquisitions. As a result, the construction budget was reduced to a mere quarter of the original.
Rather than sticking to the original plan of expanding the scale, the architects had to explore options that would minimize renovation while maximizing the utilization of existing elements, all while accommodating the current building. In such a situation, the architects had limited choices. It might have crossed the building owners' minds to abandon the project altogether, but their nature made such an option unappealing. Therefore, while reducing the initially agreed upon design fees, they searched for ways to find purpose amidst the perplexing situation.
Ultimately, the focus shifted towards the value of rejuvenation. The goal was to redesign elements that were in harmony with the purpose of the space and aligned with practical usage. Given the constraints of the environment, where there was no room for additional installations, the emphasis was on stripping away and emptying, which, counterintuitively, became the prevailing theme. Both interior and exterior wall surfaces were treated by removing finishes, coatings, and paint, revealing the raw nature of the space. The marks of transformation, akin to traces or relics, were incorporated into the elements of the finishes. The existing exterior wrought iron railing, having obstructed the end of a narrow alley, was dismantled and reconstructed, creating a fresh new streetscape in the cul-de-sac.






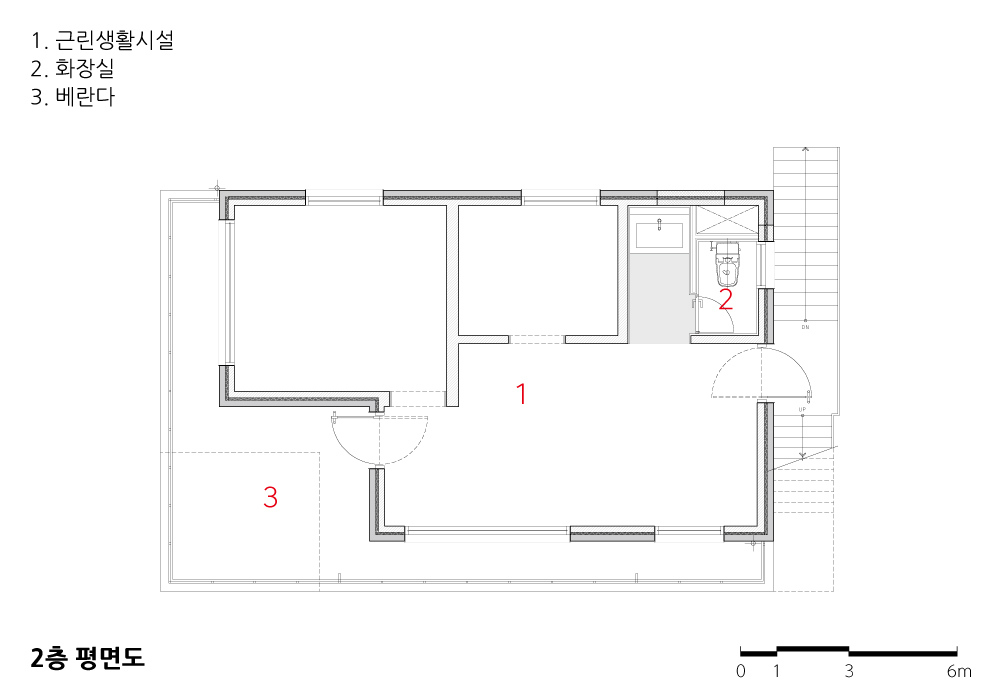
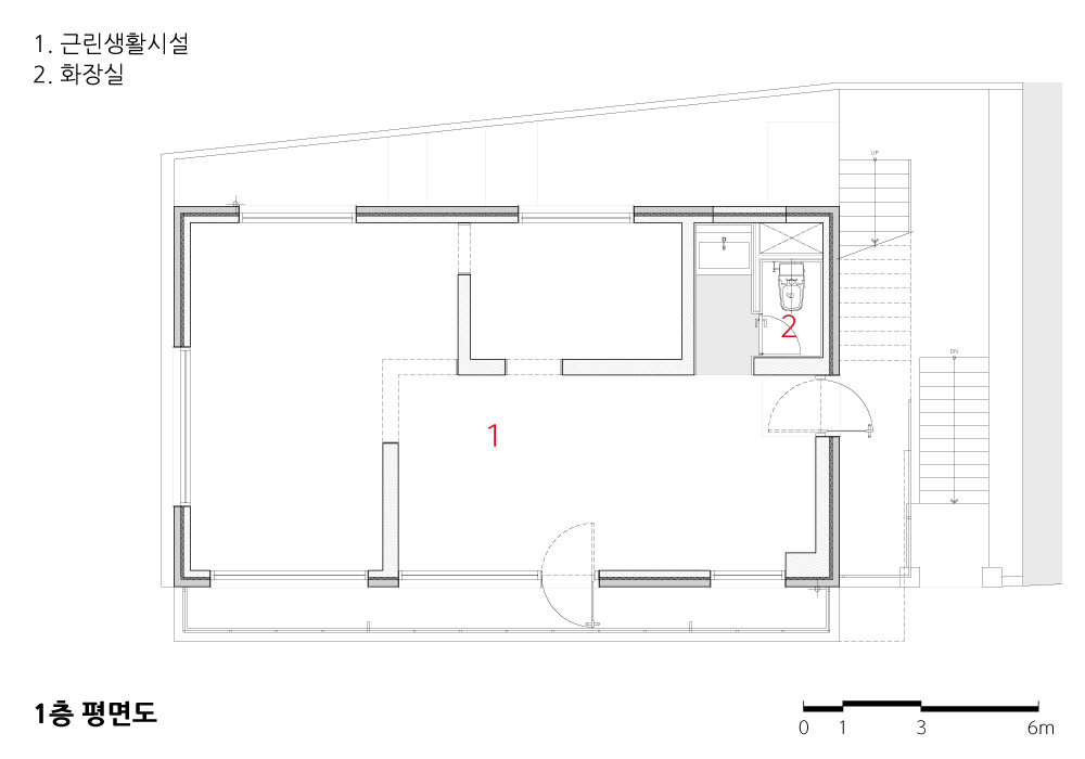
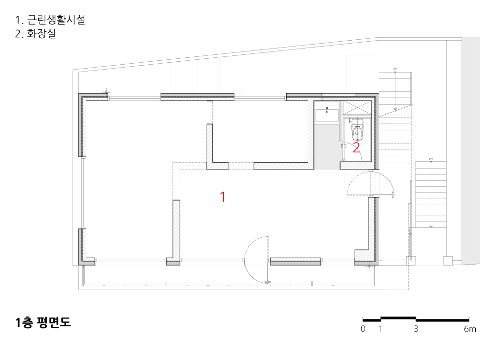
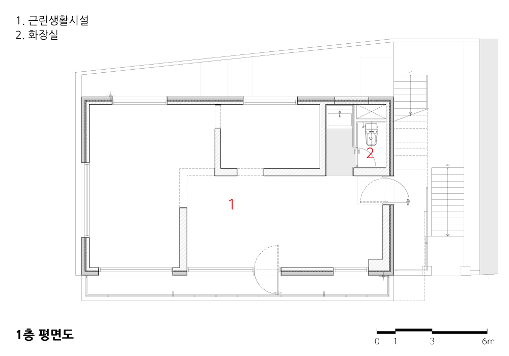
| 이태원 골목끝집 설계자 | 이승진_ (주)엘제이엘건축사사무소 김원방 _ (주)퍼스펙티브스건축사사무소 건축주 | (주)코너스톤브릿지 시공사 | 박종화 설계의도 구현 | (주)엘제이엘건축사사무소, (주)퍼스펙티브스건축사사무소 대지위치 | 서울특별시 용산구 보광로60길 14-13 주요용도 | 근린생활시설 대지면적 | 99.80㎡ 건축면적 | 55.80㎡ 연면적 | 158.08㎡ 건폐율 | 55.92% 용적률 | 102.49% 규모 | B1F - 2F 구조 | 연와조 외부마감재 | 치장벽돌보수, 콘크리트면정리 내부마감재 | 시멘트벽돌노출 설계기간 | 2022. 11 - 2023. 01 공사기간 | 2023. 01 - 2023. 04 사진 | 노경 구조분야 : (주)이든구조컨설턴트 기계설비분야 | 진흥이엔지 전기분야 | 진흥이엔지 |
Blind Alley Architect | Lee, Seungjin _ LJL Architects Kim, Wonbang _ Perspectives Architects Client | Cornerstone Bridge Construction | Park, Jonghwa Design intention realization | LJL Architects / Perspectives Architects Location | 14-13, Bogwang-ro 60-gil, Yongsan-gu, Seoul, Korea Program | Neighborhood facilities Site area | 99.80㎡ Building area | 55.80㎡ Gross floor area | 158.08㎡ Building to land ratio | 55.92% Floor area ratio | 102.49% Building scope | B1F - 2F Structure | Built of brick Exterior finishing | Brick & Concrete repair Interior finishing | Exposed brick Design period | Nov. 2022 ~ Jan. 2023 Construction period | Jan. 2023 ~ Apr. 2023 Photograph | Roh, Kyung Structural engineer | Eden Structural Engineering Group Mechanical engineer | Jin Heung ENG Electrical engineer | Jin Heung ENG |
'회원작품 | Projects > Neighborhood Facility' 카테고리의 다른 글
| 완산뜨락 주민소통방 2023.10 (0) | 2023.10.31 |
|---|---|
| 고창군청 등나무숨 카페 2023.10 (0) | 2023.10.31 |
| TAILWIND 2023.9 (0) | 2023.09.14 |
| 스테이 오피스 2023.8 (0) | 2023.08.18 |
| 레이키푸이스토 2023.7 (0) | 2023.07.24 |

