2023. 9. 14. 17:50ㆍ회원작품 | Projects/Neighborhood Facility
TAILWIND

무질서하게 들어선 주거단지의 이면도로 깊숙이 자리한 오피스.
이 부지는 사방이 빌라로 둘러싸인 이른바 논현동 빌라촌 내에 자리하고 있다.
최근 서울 도심지 깊숙한 곳까지 여러 젊은 스타트업 회사들의 오피스 수요가 늘어나고 있다. 과거의 이상적인 오피스는 대로변에 줄줄이 늘어선 번듯하고 높은 고층 빌딩에 자리 잡고 있었다면, 요즘 젊은 기업이 추구하는 업무 공간은 많은 부분에서 성격을 달리한다.
우선, 눈에 띄는 점은 규모의 소형화다. 예전에는 대표 아래 산하 팀이 구성되고 적어도 조직 내에 몇십 명은 구성되어야 번듯한 회사라 불렸다면, 요즘 젊은 스타트업 기업은 1인, 혹은 마음 맞는 둘셋이 일단 업무에 뛰어들어 부딪히며 성장해 나간다. 당장 컴퓨터 하나 놓고 업무를 시작할 수 있고, 고객들과 소통할 수 있는 공간이면 충분하다. 그 공간이 내 브랜드의 성향에 맞게 스타일리시했으면 하고, 획일적이지 않기를 바란다.
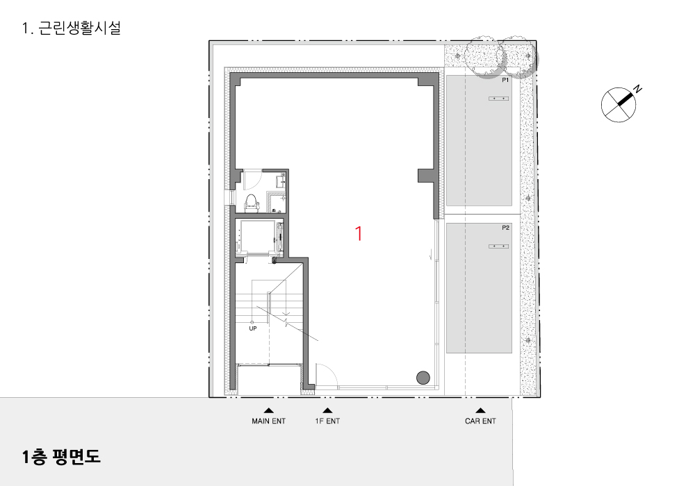
‘Tailwind’라 이름 지어진 이 오피스 건물도 스타트업 기업의 육성 공간으로 기획되었다. 기업의 아이덴티티를 드러낼 수 있는 경직되지 않은 분위기, 소규모의 인원으로 시작하기에 부담 없고 효율적인 공간이기를 바랐다. 주거단지 내에 자리한 터라 필연적으로 생긴 각 층의 테라스 공간은 자칫 답답할 수 있는 소형 사무실에 숨을 고를 수 있는 틈을 내어주고, 빌라와 가까이 얼굴을 맞대고 난 창은 빛은 끌어오되 시선은 피할 수 있는 루버 디자인과 벽돌 쌓기 방식에 변화를 주어 해결 방법을 모색했다. 이 공간에서 시작하는 젊은 기업인들이 순풍에 돛을 달고 순항하며 넒은 바다로 나아갈 수 있기를….



An office situated deep within the backstreets of a residential complex that was entered in a disorderly manner. This site is located within what is commonly referred to as the "Nonhyeon-dong Villa Village," surrounded on all sides by villas.
Recently, there has been an increasing demand for office spaces from various young startup companies even in the heart of Seoul. The traditional ideal office used to be located in tall, well-constructed high rise buildings lining the main roads. However, the nature of workspaces sought by young companies today differs significantly in many aspects.
Firstly, a noticeable trend is the downsizing of office scale. In the past, a successful company was often deemed to have multiple teams under the leadership of a CEO, with dozens of members forming the organizational structure. In contrast, young startup companies nowadays consist of one or a few individuals who dive into their work, colliding and growing in the process. A single computer is enough to start tasks immediately, and a space for communicating with clients is sufficient. These spaces are expected to be stylish in line with the brand's identity and avoid being monotonous.
The office building named 'Tailwind' was also conceived as a nurturing space for startup companies. The intention was to create an environment that allows the company's identity to shine through, with a relaxed atmosphere and an efficient layout suitable for small teams. Being within a residential complex, the terraced spaces on each floor, a natural consequence, provide breathing room within the compact office spaces that might otherwise feel claustrophobic. The windows facing the villas and the nearby surroundings incorporate louvers and brick stacking, allowing in light while shielding from direct view, a solution born out of thoughtful design. The aspiration is for the young companies that start their journey in this space to catch the tailwind and sail smoothly, navigating toward the vast sea ahead.







| TAILWIND 설계자 | 이선민 · 신동진 _ 건축사사무소 오오티오 감리자 | 건축사사무소 오오티오 시공사 | (주)알에이종합건설 설계팀 | 서유나 대지위치 | 서울특별시 강남구 강남대로122길 61-4 주요용도 | 근린생활시설 대지면적 | 172.50㎡ 건축면적 | 102.77㎡ 연면적 | 321.73㎡ 건폐율 | 59.57% 용적률 | 186.51% 규모 | 4F 구조 | 철근콘크리트구조 외부마감재 | 콘크리트벽돌, 스타코 내부마감재 | 노출콘크리트, 석고보드위 친환경수성페인트 설계기간 | 2021. 04 - 2021. 10 공사기간 | 2021. 11 - 2022. 11 사진 | 배지훈 구조분야 | 예스구조엔지니어링 기계설비분야 | (주)대명기술단 전기분야 | (주)대명기술단 소방분야 | (주)대명기술단 |
TAILWIND Architect | Lee Sunmin · Shin Dongjin _ SPACE OOTO Supervisor | SPACE OOTO Construction | RA Construction Project team | Seo, Yu na Location | 61-4, Gangnam-daero 122-gil, Gangnam-gu, Seoul, Korea Program | Neighborhood living facility Site area | 172.50㎡ Building area | 102.77㎡ Gross floor area | 321.73㎡ Building to land ratio | 59.57% Floor area ratio | 186.51% Building scope | 4F Structure | RC Exterior finishing | Masonry, Stucco Interior finishing | Exposed concrete, Paint Design period | Apr. 2021 - Oct. 2021 Construction period | Nov. 2021 - Nov. 2022 Photograph | Bae, Jihun Structural engineer | YES Structural ENG. Mechanical engineer | DAE MYUNG Electrical engineer | DAE MYUNG Fire engineer | DAE MYUNG |
'회원작품 | Projects > Neighborhood Facility' 카테고리의 다른 글
| 고창군청 등나무숨 카페 2023.10 (0) | 2023.10.31 |
|---|---|
| 이태원 골목끝집 2023.9 (0) | 2023.09.14 |
| 스테이 오피스 2023.8 (0) | 2023.08.18 |
| 레이키푸이스토 2023.7 (0) | 2023.07.24 |
| 호반 써밋 라테라스 2023.7 (0) | 2023.07.24 |
