2022. 12. 2. 18:16ㆍ회원작품 | Projects/House
Three yard house

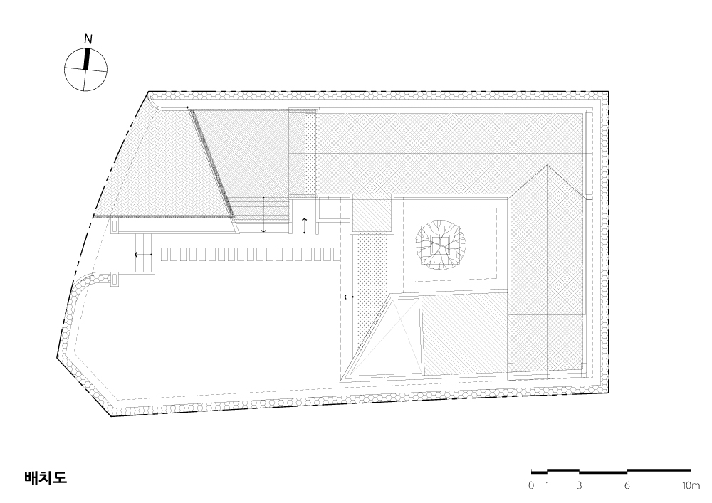
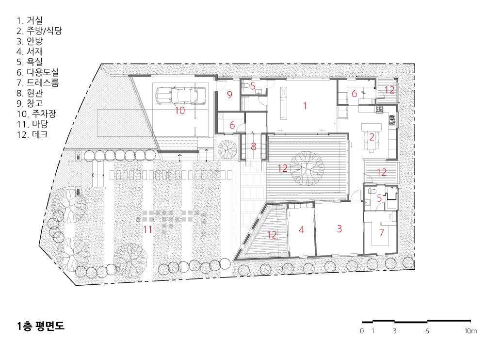
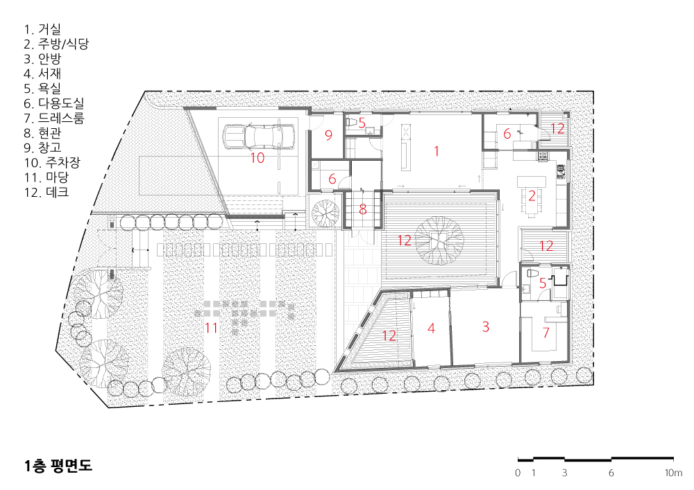
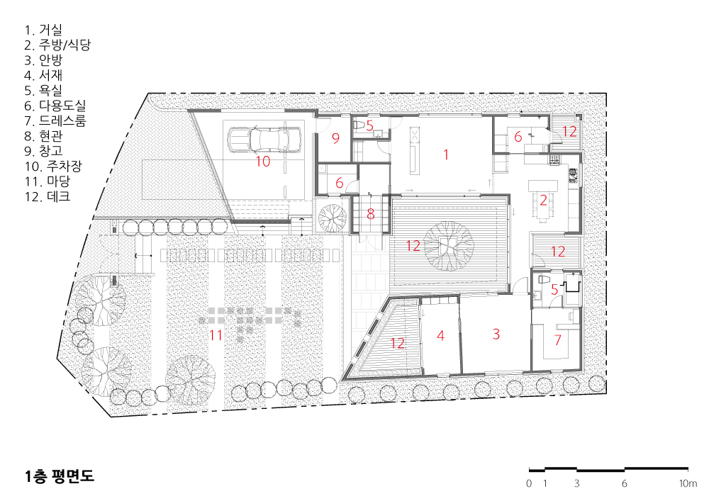
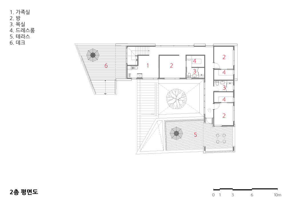
세종특별자치시 단독주택용지에 한국 전통한옥의 중정 공간 구조를 이미지화해서 설계된 3개 의 마당을 품은 집이다. 본채와 별채 사이에 중정을 설정하여 폐쇄적이지 않으면서 주택 내부의 사생활을 보호하는 공간을 만들었다. 더불어 도로에서의 바라보는 주택의 외관도 고려했다. 본 채는 거실과 주방, 2층의 방으로 구성돼 있다. 남쪽의 별채는 단층으로 낮추어 중정을 통해 충 분한 빛을 유입시키고 부부가 사용하는 안방과 서재가 있다.
주택에는 생활패턴에 맞게 다양한 마당을 배치됐다. 먼저 중정형 안마당과 거주자가 서재에서 사용하는 전용 안마당이 있다. 마지막으로 담장이 없는 정원마당에서는 외부공간과 연결되어 자연스럽게 걸으며 소통할 수 있다.
지붕의 형태는 신재생에너지인 태양광을 사용할 수 있는 박공형 지붕을 남쪽방향으로 설치했 다. 건물의 주 외장재료는 무채색계열의 티타늄징크와 청고벽돌, 세라믹 사이딩을 사용했다.

It is a house that includes three yards designed by imaging the spatial structure of the courtyard of Korean traditional hanok in the detached housing area of Sejong Special Self-Governing City. I designed a courtyard between the main house and the annex to create a space to protect the privacy of the inside of the house without being closed in. In addition, I took into consideration the appearance of the houses viewed from the road. The main building consists of a living room, a kitchen, and a second floor room. The southern annex is lowered to a single layer to receive enough light through the courtyard, and there are a main room and a study room which couples use.
The house is designed to have various yards to suit living patterns. First, there are an original courtyard and a private yard used by the residents in the library. Finally, the garden without a fence is naturally connected with outside space so you can communicate naturally while walking.
The shape of the roof is a south-facing gable roof incorporating solar panels for generating renewable energy. The main exterior material of the building is an achromatic series of titanium zinc, vintage blue brick, and ceramic siding.












| 삼마당집 설계자 | 김윤환 KIRA _ 명작 건축사사무소 건축주 | 김혜숙 감리자 | 김윤환 KIRA _ 명작 건축사사무소 시공사 | (주)포스홈종합건설 대지위치 | 세종특별자치시 만남로1길 30 (고운동 1836) 주요용도 | 단독주택 대지면적 | 632.30㎡ 건축면적 | 230.34㎡ 연면적 | 323.17㎡ 건폐율 | 36.43% 용적률 | 51.11% 규모 | 지상 2층 구조 | 기타강구조(스틸하우스) 외부마감재 | 외벽 - 청고벽돌, 세라믹사이딩, 노출 콘크리트, AL 이건창호 지붕 - 티타늄 아연판 돌출이음(징크) 내부마감재 | 바닥- 복합대리석, 이건원목마루 설계기간 | 2016. 04 ~ 2016. 07 공사기간 | 2016. 07 ~ 2017. 04 사진 | 변종석 기계설비분야 : 동호설비 전기분야 : 이일전기 소방분야 : 동호설비, 이일전기 |
Three yard house Architect | Kim, Yunhwan _ MasterpieceArchitecture Client | Kim, Hyesuk Supervisor | Kim, Yunhwan _ Masterpiece Architecture Construction | Poshome construction Co., Ltd. Location | 30, Mannam-ro 1-gil, Sejong-si, Korea Program | Detached house Site area | 632.30㎡ Building area | 230.34㎡ Gross floor area | 323.17㎡ Building to land ratio | 36.43% Floor area ratio | 51.11% Building scope | 2F Structure | Steel structure(Steel house) Exterior finishing | Wall - Brick, Ceramic siding, Exposed concrete, AL window(EAGON) / Roof - Zinc panel Interior finishing | Floor - Marble, Wood floor(EAGON) Design period | Apr. 2016 ~ Jul. 2016 Construction period | Jul. 2016 ~ Apr. 2017 Photograph | Byun, Jongseok Mechanical engineer | Dongho Equipment Electrical engineer | I-il Electrical Fire engineer | Dongho Equipment, I-il Electrical |
'회원작품 | Projects > House' 카테고리의 다른 글
| 허백당(虛白堂) 2018.08 (0) | 2022.12.06 |
|---|---|
| 층층마당집 2018.08 (0) | 2022.12.06 |
| 월하리 N씨 근생주택 2018.06 (0) | 2022.12.02 |
| 밀양(密陽) 햇살 담은 집2018.06 (0) | 2022.12.02 |
| 공원을 품은 집 2018.06 (0) | 2022.12.02 |