2022. 12. 2. 18:14ㆍ회원작품 | Projects/House
Wolhari Mr.N House

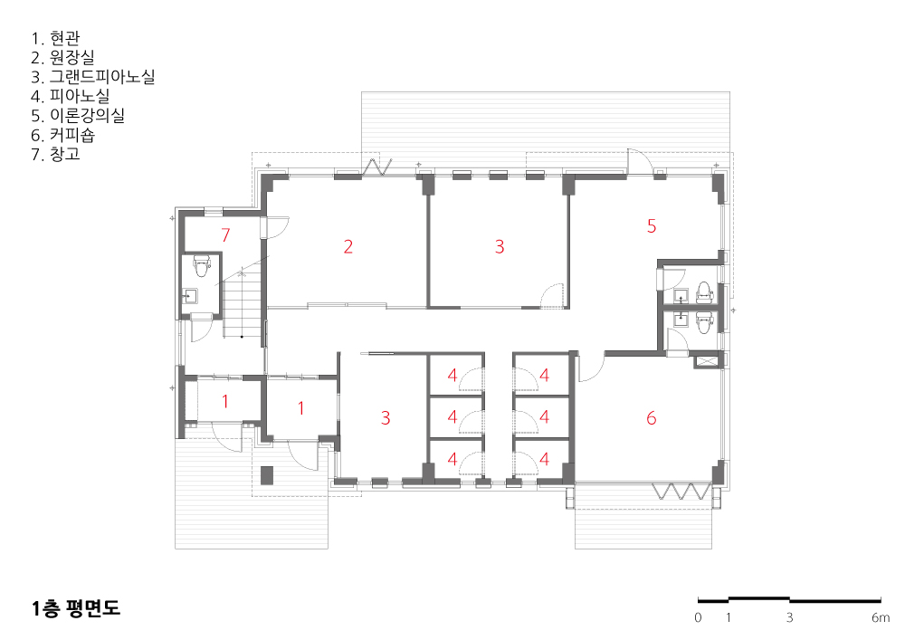
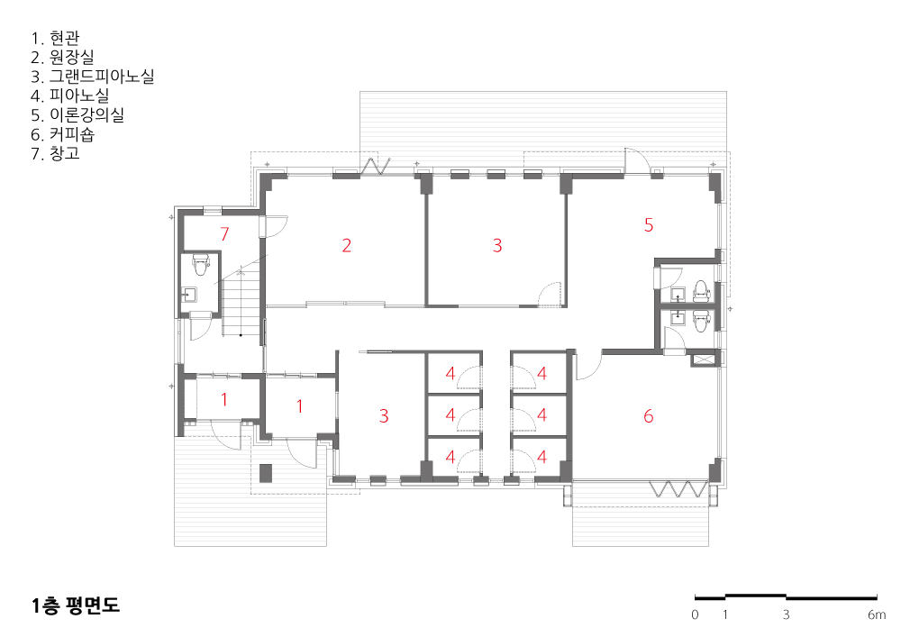
건물이 들어선 대지는 좌우측으로 초등학교와 성당이 있었고 앞뒤로 밭과 야산이 펼쳐 져 있었다. 건축물의 전면은 북서향을 향하며 도로와 접해있다. 피아노 학원과 단독주택 을 도로 앞쪽 소음으로부터 해결해야 했다.
먼저, 성당과 학교 사이에 조화를 고려한 모던하고 깔끔한 느낌을 주도록 설계했다. 한 적한 시골 마을에서 간결하고 정제된 형태가 더 조화로울 것이라 생각했기 때문이다. 외 관에 쓰인 벽돌도 이러한 이유로 사용됐다.
소음 등의 주변환경으로부터 가족의 사생활을 지키기 위해 집의 배치를 뒤집었다. 도로 와 접한 전면에는 주출입구와 카페를 놓고 접근성을 높이면서 사적인 공간을 도로와 떨 어지게 배치했다. 주택의 잔디마당도 남동향을 가진 건물의 배면쪽으로 오게끔 했다.
창문을 이용해 다양한 공간을 표현하기도 했다. 학원으로 쓰이는 실이 있는 곳에는 세로 로 긴 창을 배열하여 리듬감을 주었다. 전면과 배면을 같은 파사드로 작업해 무용공간이 없도록 했다.
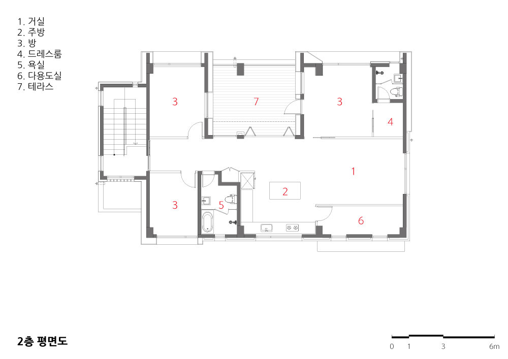
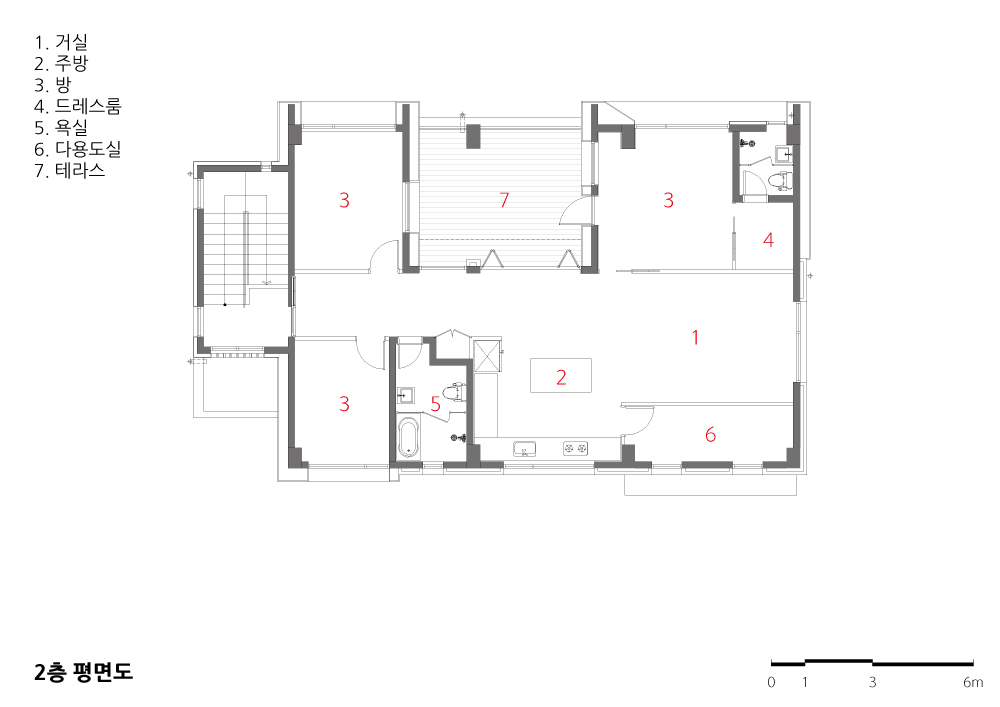
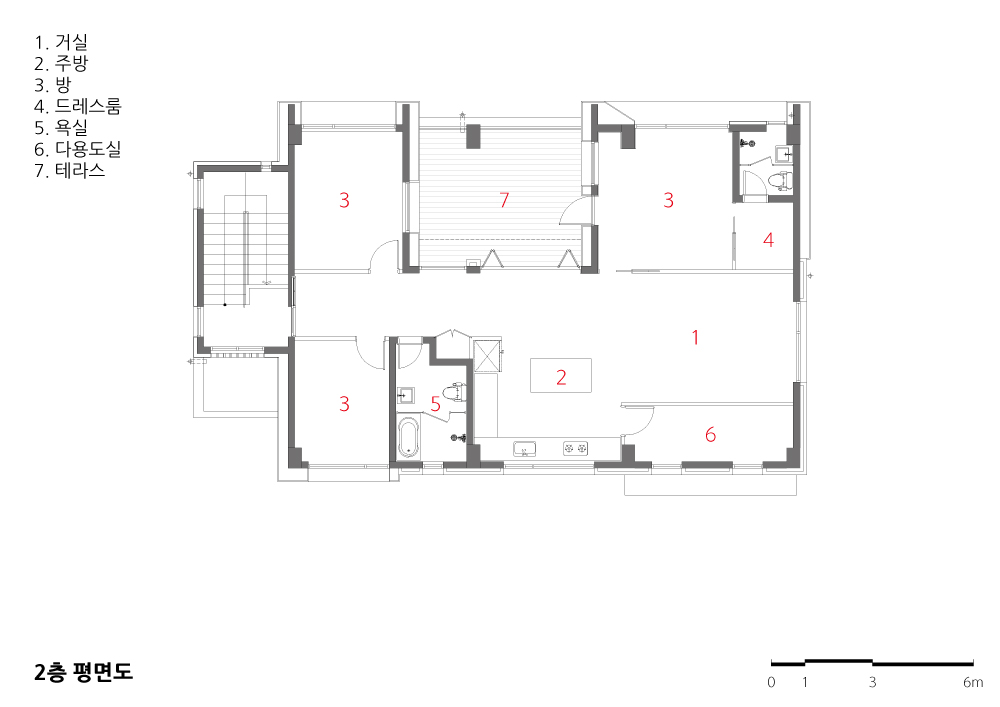
2층은 주로 주택공간이 들어서있다. 주방과 식당 앞으로는 넓은 데크공간이 나와 외부 와의 관계를 가깝게 했다.
집짓기라는 것은 사람과 사람 땅과 그 주변과의 관계에서 출발한다. 좋은 집을 짓겠다는 이해 관계자들의 의지에서 좋은 결과물이 나온다고 생각한다. 월하리 근생주택을 진행 하면서 건축주와 시공자의 노력들을 경험하면서 건축사로서 많은 것을 느낄 수 있었다.

There was an elementary school on the left and a church on the right sides of the site where the building was located, and there was a field and a hill in front of it and behind the site. The front side of the building faces a road toward the north west. I had to protect a piano academy and a detached house from the noise coming from he road in front of it.
First, it was designed to look modern and clean between the cathedral and the school in consideration of harmony. I thought that the concise and refined form would be more harmonious in a secluded rural village. The bricks used in the exterior were also used for this reason.
I overturned the house layout to protect the privacy of the family from the surrounding environment including noise. On the front facing the road, the main entrance and café were placed and the private space was arranged to be separated from the road while improving accessibility. I also located the grassy courtyard of the house to the rear of the building facing the south-east direction.
I used windows to express various spaces. Where there is a room used as a school, a long window was arranged vertically to give a rhythm. The front and back sides used the same facade to ensure there was no wasted space. The second floor is mainly housing space. In front of a kitchen and a dining room, spacious deck space was constructed close to the outside.
Building a house starts fromthe relationshipbetweenpeople,people's land, andits surroundings. I think that good results come out from all stakeholders working together to create a practical structure. I was able to realize a lot as an architect while experiencing the efforts of the client and the contractor when building the Wolha-ri commercial-residential building.











| 월하리 N씨 근생주택 설계자 ┃ 김광준 KIRA _ (주)테마 종합건축사사무소 건축주 | 노택균 감리자 | 박덕기 _ 세종 건축사사무소 시공사 | 노택균 대지위치 | 세종특별자치시 연서면 도원로 51 주요용도 | 근린생활시설(학원) 및 단독주택 대지면적 | 937.00㎡ 건축면적 | 168.63㎡ 연면적 | 296.25㎡ 건폐율 | 18.00% 용적률 | 31.62% 규모 | 지상 2층 구조 | 철근콘크리트조 외부마감재 | 청고벽돌, 현무암, 송판무늬콘크리트 내부마감재 | 폴리싱타일, 온돌마루, 벽지, 비닐페인트 설계기간 | 2017. 05 ~ 2017. 08 공사기간 | 2017. 08 ~ 2018. 03 사진 | 김광준 구조분야 : 인터이앤씨 기계설비분야 : (주)미래이앤지 전기분야 : (주)미래이앤지 소방분야 : (주)미래이앤지 |
Wolhari Mr.N House Architect | Kim, Kwangjun _ Theme Architects Client | No, Taekgyun Supervisor | Park, Dukgi _ Sejong Architects Construction | No, Taekgyun Location | 51, Dowon-ro, Yeonseo-myeon, Sejong-si, Korea Program | Neighborhood living facilities, Detached house Site area | 937.00㎡ Building area | 168.63㎡ Gross floor area | 296.25㎡ Building to land ratio | 18.00% Floor area ratio | 31.62% Building scope | 2F Structure | RC Exterior finishing | Brick, Basalt,Exposed concrete Interior finishing | Polishing tile, Wood floor, Wall paper, Vinyl paint Design period | May. 2017 ~ Aug. 2017 Construction period | Aug. 2017 ~ Mar. 2018 Photograph | Kim, Kwangjun Structural engineer | Inter E&C Mechanical engineer | Mirae E&G Electricalengineer | Mirae E&G Fire engineer | Mirae E&G |
'회원작품 | Projects > House' 카테고리의 다른 글
| 층층마당집 2018.08 (0) | 2022.12.06 |
|---|---|
| 삼마당 집 2018.06 (0) | 2022.12.02 |
| 밀양(密陽) 햇살 담은 집2018.06 (0) | 2022.12.02 |
| 공원을 품은 집 2018.06 (0) | 2022.12.02 |
| 고운동 단독주택 2018.06 (0) | 2022.12.02 |