2022. 12. 2. 18:12ㆍ회원작품 | Projects/House
House with a garden

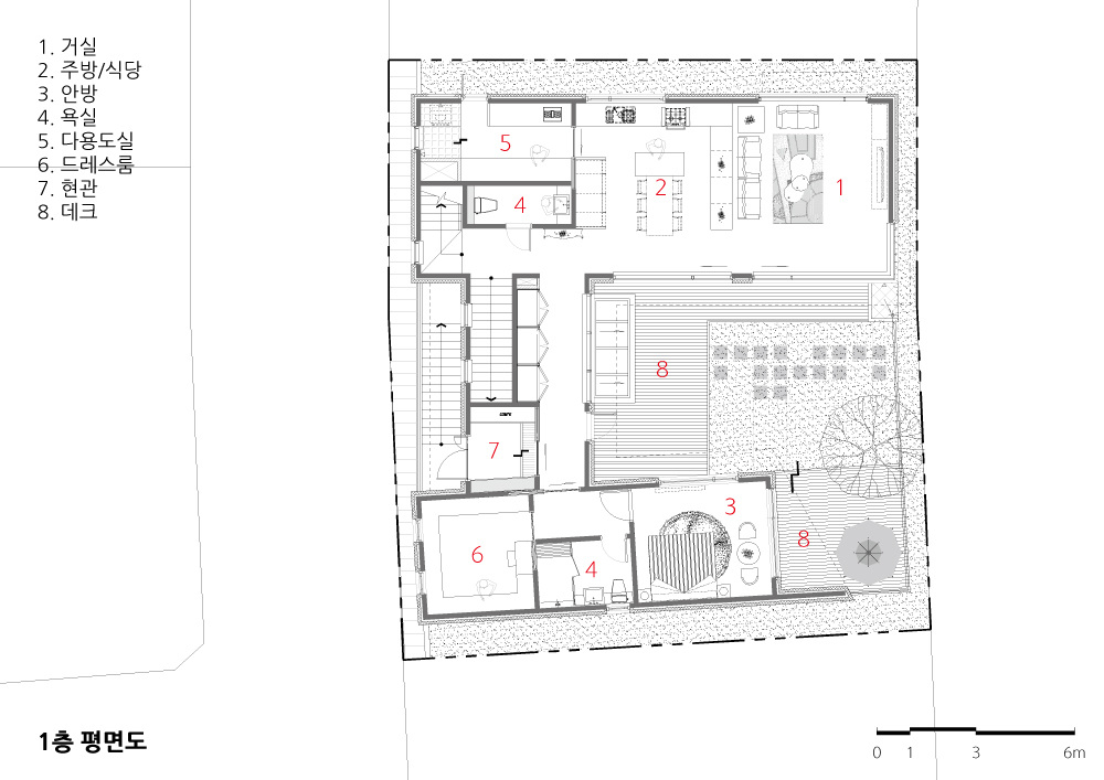
건축주는 빛이 잘드는 거실이 있는 주택을 원했다. 3면에는 인접한 주택들과 동쪽으로는 도로 건녀편에 근린공원이 있는 대지로, 주변 환경과 잘 어울리면서 거주자의 프라이버시를 고려해 야 했다.
동쪽의 근린공원 쪽으로 거실과 주방이 있는 공용공간과 안방공간으로 구성된 별채 사이로 중 정형의 아늑한 마당을 가진 배치를 계획했다.
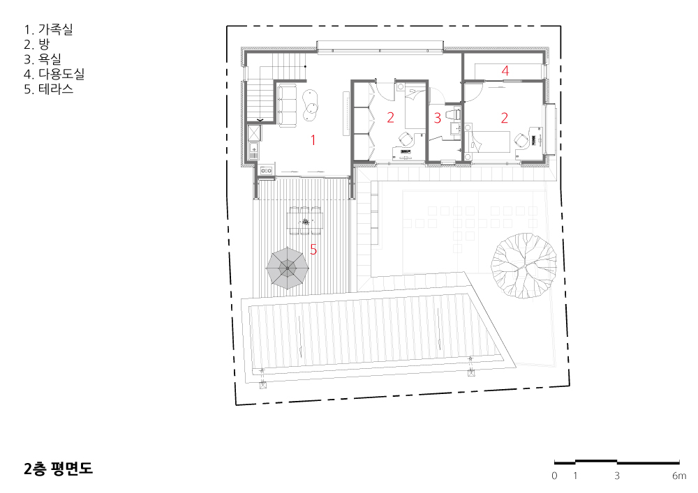
외장 재료는 유지관리가 편하며 건물의 형태에 잘 어울리도록 청고벽돌과 백고벽돌을 이용했 다. 본채는 거실과 주방, 2층의 방이 있으며, 별채는 부부가 사용하는 안방과 드레스룸으로 이 루어져 있다. 모든 실에 큰 창문을 배치해 공원의 사계절의 풍경을 감상할 수 있다. 남쪽에 위치 한 별채는 단층으로 낮추어 중정에 빛이 충분히 들어올 수 있도록 고려했다. 2층 복도의 가로로 긴 창에서 보이는 계룡산 설경은 멋진 장관을 연출한다.
건축주와 가족들은 지하에 마련한 A. V 룸도 만족했으며, 입주 후에도 즐겁게 생활하고 있다고 전해들었다.

The client wanted a house with an abundance of natural light in the living room. The building had houses adjacent on three sides and on the east side ther e was a neighbouring park across the street, and I had to consider the privacy of the residents in harmony with the surroundings.
Facing the eastern neighbouring park, I planned the layout of a cosy courtyard through the annex consisting of the common space with a living room and a kitchen, and the main room.
Exterior materials wer e vintage blue and whit e bricks for easy maintenance and match the shape of the building. The main house was composed of a living room, a kitchen, and a second floor room, and the annex was composed of a main room and a dressing room used b y the couple. Big windows wer e installed in all rooms t o enjo y the scenery of the four seasons seen in the park. The annex on the south side was lowered t o a single level so that enough light could enter the courtyard. The scenery of Mount Gyeryong seen from the long window on the second floor corridor creates a spectacular view.
The client and family wer e satisfied with the A. V room in the basement, and I was told that they wer e enjoying life after moving in.













| 공원을 품은 집 설계자 ┃ 김윤환 KIRA ┃ 명작 건축사사무소 건축주 | 조종철, 이분삼 감리자| 김윤환 _ 명작 건축사사무소 시공사 | (주)포스홈종합건설 대지위치 | 대전광역시 유성구 상대서로 101-50 (상대동459-61) 주요용도 | 단독주택 대지면적 | 282.90㎡ 건축면적 | 140.86㎡ 연면적 | 383.45㎡ 건폐율 | 49.79% 용적률 | 78.87% 규모 | 지하 1층, 지상 2층 구조 | 기타강구조(스틸하우스) 외부마감재 | 외벽 – 청고벽돌, 백고벽돌, 송판 노출 콘크리트, AL 이건창호 지붕 – 고내식성 POS-MAC 강판 돌 출이음 내부마감재 | 바닥재 – 복합대리석, 이건원목마루 설계기간 | 2017. 02 ~ 2017. 05 공사기간 | 2017. 05 ~ 2017. 10 사진 | 변종석 기계설비분야 : 동호설비 전기분야 : 이일전기 소방분야 : 동호설비, 이일전기 |
House with a gardenArchitect Architect | Kim, Yunhwan _ Masterpiece Architecture Client | Cho, Jongcheol / Lee, Bunsam Supervisor | Kim, Yunhwan _ Masterpiece Architecture Construction | Poshome construction Co., Ltd. Location | 101-50, Sangdaeseo-ro, Yuseong-gu, Daejeon, Korea Program | Detached house Site area | 282.90㎡ Building area | 140.86㎡ Gross floor area | 383.45㎡ Building to land ratio | 49.79% Floor area ratio | 78.87% Building scope | B1F - 2F Structure | Steel structure(Steel house) Exterior finishing | Wall - Brick, Exposed concrete with wood texture, AL window(EAGON) / Roof - POS-MAC Interior finishing | Floor Marble, Wood floor(EAGON) Design period | Feb. 2017 ~ May. 2017 Construction period | May. 2017 ~ Oct. 2017 Photograph | Byun, Jongseok Mechanical engineer | Dongho Equipment Electrical engineer | I-il Electrical Fire engineer | Dongho Equipment, I-il Electrical |
'회원작품 | Projects > House' 카테고리의 다른 글
| 월하리 N씨 근생주택 2018.06 (0) | 2022.12.02 |
|---|---|
| 밀양(密陽) 햇살 담은 집2018.06 (0) | 2022.12.02 |
| 고운동 단독주택 2018.06 (0) | 2022.12.02 |
| 양촌리 가온누리 패시브인증 주택단지 2018.05 (0) | 2022.12.01 |
| 에비앙 빌리지 2018.05 (0) | 2022.12.01 |