2022. 12. 1. 15:26ㆍ회원작품 | Projects/House
Yangchonri Gaon Nuri

“같이-가치 건강한 공동체 만들기”
■ 가온누리 - 청주 패시브하우스의 중심
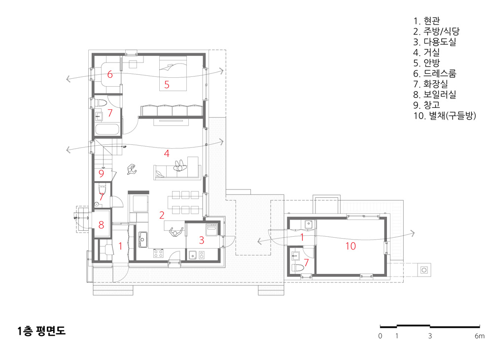
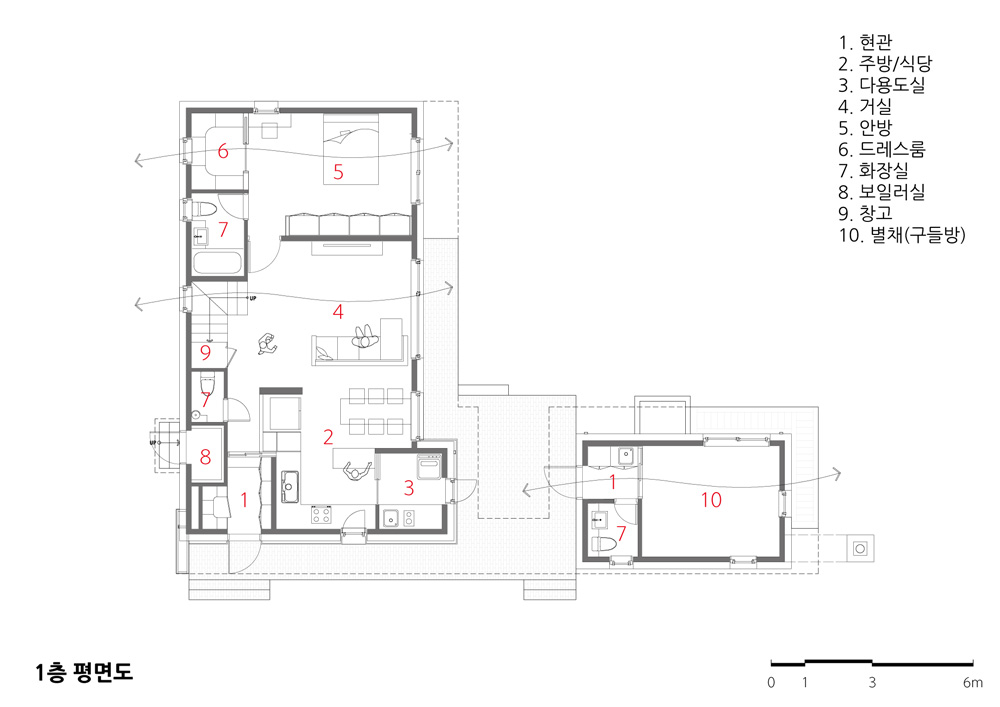
양촌리 가온누리 전원주택단지는 세 명의 건축주가 함께 토지매입을 하면서 시작됐다. 총 8채 필지의 작은 단지 안에 패시브하우스 본채와 황토구들방 별채가 있는 이웃공동체를 이루고 있다. 연간 난방에너지 요구량은 2.7리터로 한국패시브협회의 인증을 받은 주택이다. 현재 6채가 완공되고 2채는 건축을 준비 중이다
■ ‘같이’의 가치
개별필지로 건축되어 제각기 다른 경관을 구성하지 않도록 단지구성 전반에 모든 건축주들이 협의를 통해 공간구성, 규모설정, 공법 및 공사비 결정, 시공사 선정, 자재선정 등을 함께 결정했다. 이 과정에서 단지구성으로 ‘같이’ 할 것과 개별 특성을 살릴 것을 구분했다.
‘같이’할 것은 첫째 에너지제로형 패시브하우스로 건축할 것, 둘째 외부재료와 지붕의 형태를 동일하게 하여 단지의 성격을 가질 것, 셋째 단지 내 도로 경계부는 생울타리 담장 등의 낮고 투명한 경계로 구성할 것이다.
몇 개의 대안으로 시작된 계획안은 공사비 결정과정을 거치면서 두 개의 타입으로 선정됐다. 내부는 집주인의 취향에 따라 공간의 용도와 인테리어가 다르게 구성되고, 외부는 형태와 재료를 통일하여 아름다운 단지가 되도록 협의됐다. 건축주들은 낯선 건축과정에서 일어나는 예상치 못한 상황에도 함께 문제를 해결하며 더욱 돈독한 공동체가 되었다.
■ 건강한 집, 자연과 사람을 건강하게
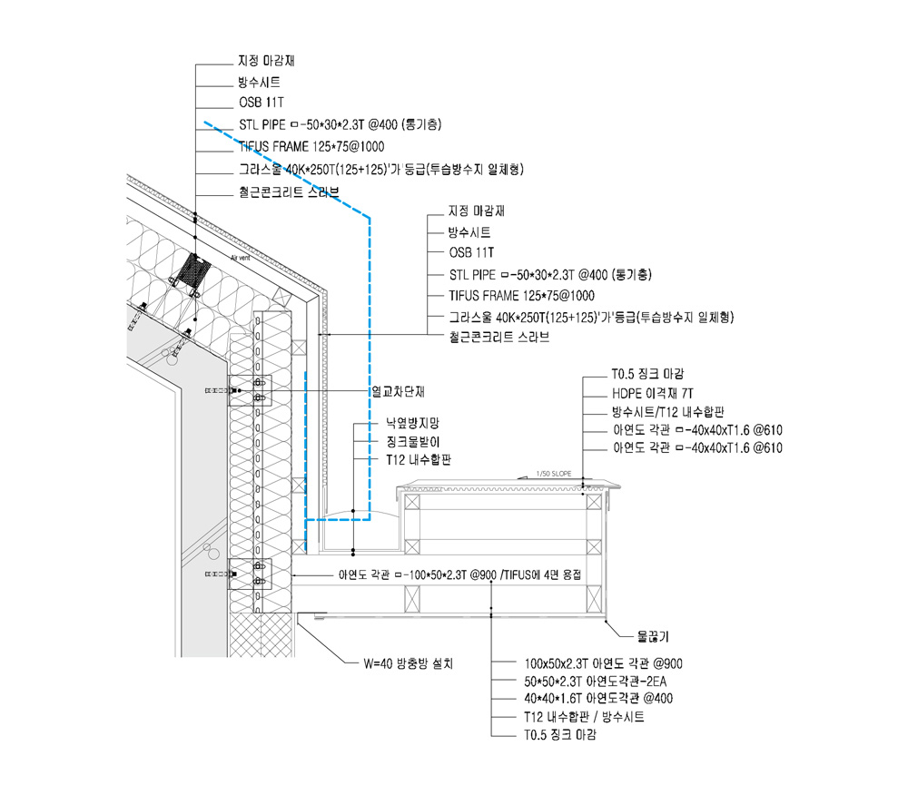
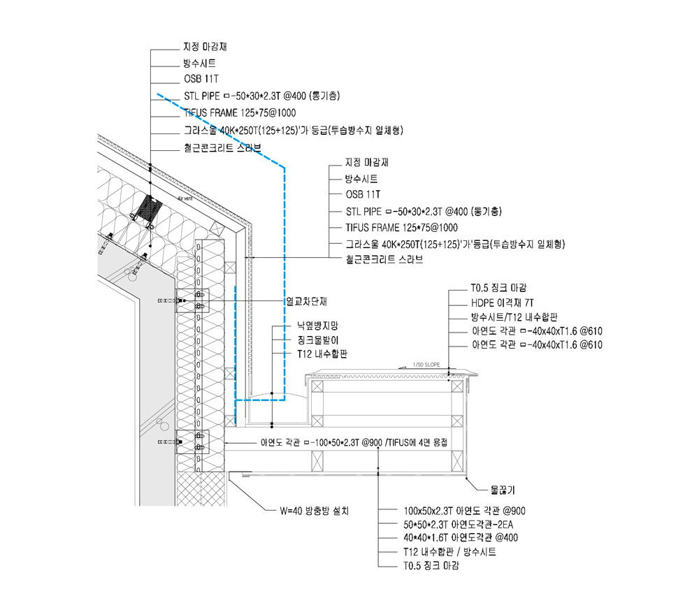
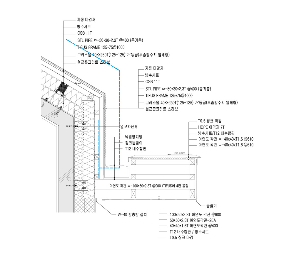
패시브하우스는 목표하는 난방에너지 사용량을 맞추기 위해 콤팩트한 매스, 일사량을 계산한 차양설계, 기초단열을 포함한 고단열, 고기밀 삼중창호, 열교없는 디테일 설계로 설계단계에서 재료의 성능검토와 선정이 이루어진다.
때문에 일반적인 공사비에 대비하여 건축비용이 약 15% 이상 상승되는데 가온누리 패시브주택 단지는 정부의 지원없이 순수하게 민간에서 추진한 단지로서 의미가 있다. 완공 후 입주한 건축주들의 “한겨울에도 너무 따뜻하고 포근해서 좋다”, “저녁이면 집으로 여행을 떠나는 심정으로 퇴근한다”는 반응은 설계자로서 받는 가장 큰 보상이 아닐까? 아름다운 지구환경을 지속가능하도록 하고 사람이 살기좋은 거주환경을 만드는 건강한 주택단지가 확대되기를 바라는 마음이다.

Together - building healthy community.
■ Ga-on: the center of Passive housing complex in Cheongju.
Yangchon, Ga-on passive housing community is started with three developers purchasing the land together. In total of 8 lots, each has a passive house and a separated Hwangto-clay paved annex building. Annual heat energy consumption for the building is 2.7 liter, and it is a certified building by Korea Passive house Association. Currently, 6 houses are completely built and 2 are under construction.
■ Value of being together
Not to be designed individually and not to lost its unity, owners meet together to discuss the design and budgets, construction technique, layout, finding general contractor and select materials. During the process, owners tried to find characteristic diversities while still maintaining the ‘unity’.
In order to form the unity, every building has to be built as eco-friendly passive house. Using same exterior material and having similar roofing form was another factor to keep its unity. Houses are separated with plants.
Started with several plans, the design was set with two schemes. Interior design was developed individually for its unique character.
■ Healthy house, to keep people and nature healthy.
Main goal of passive housing is to keep the low energy consumption. Constricted plan, solar shade design, high thermal insulation including foundation insulation, high-tight triple window, and detail without heat-bridges will be reviewed. Therefore, the construction cost is raised by 15 percents or more than general construction cost. The Ga-on passive house community is purely built without government support and it is meaningful.
After completion and move in, owners responded as “it feels warm and cozy in the middle of winter”, “coming home feels like traveling”. To make environment sustainable, passive housing complex must be built and spread more.











| 양촌리 가온누리 패시브인증 주택단지 설계자 ┃ 유보영 KIRA ┃ (주)무심 종합건축사사무소 건축주 | 류오현, 변재철, 백보현+홍성미, 어지선, 우제석, 김규창 감리자 | (주)무심 종합건축사사무소 시공사 | (주)대한건설 설계팀 | 김희성, 김태수, 배은미 대지위치 | 충청북도 청주시 서원구 남이면 양촌길 45 주요용도 | 단지형 단독주택 대지면적 | 4,967㎡ 건축면적 | 90.46 ~ 112.06㎡ 연면적 | 141.44 ~ 163.04㎡ 건폐율 | 15.87 ~ 19.98% 용적률 | 24.81~ 29.06% 규모 | 지상 2층 구조 | 철근콘크리트조 외부마감재 | 외단열시스템, 리얼징크, 적삼목사이딩 내부마감재 | 합지벽지, 온돌, 수성페인트, 자작나무합판 설계기간 | 2015. 02 ~ 2015. 09 공사기간 | 2016. 03 ~ 2016. 12 사진 | 변종석 구조분야 : JW구조사무소 기계설비·전기분야 : 건사엔지니어링 에너지컨설팅 및 환기분야 : 한국패시브건축협회 인테리어 분야 : Space.D |
Yangchonri Gaon Nuri Architect | Ryu, Boyoung _ Moosim Archiects Client | Ryu, Ohean / Bean, Jaechul / Baek, Bohean + Hong, Seongmi / Eo, Jisun / Wu, Jesuk / Kim, Guchang Supervisor | Moosim Archiects Construction | Daehan Construction Project team | Kim, Heeseong / Kim, Teasoo / Bea, Yeanmi Location | 45, Yangchon-gil, Nami-myeon, Seowon-gu, Cheongju-si, Chungcheongbuk-do, Korea Program | Single-family house(Complex type) Site area | 4,967㎡ Building area | 90.46 ~ 112.06㎡ Gross floor area | 141.44 ~ 163.04㎡ Building to land ratio | 15.87 ~ 19.98% Floor area ratio | 24.81~ 29.06% Building scope | 2F Structure | RC Exterior finishing | Stucco, Zinc, Red cedar Interior finishing | Wallpaper, Ondol floor, Water paint, White birch stair Design period | 2015. 02 ~ 2015. 09 Construction period | 2016. 03 ~ 2016. 12 Photograph | Byeon, Jongseok Structural engineer | JW engineering Mechanical·Electrical engineer | Gunsa engineering Energy Consulting | Passive House Institute Korea Interior | Space.D |
'회원작품 | Projects > House' 카테고리의 다른 글
| 공원을 품은 집 2018.06 (0) | 2022.12.02 |
|---|---|
| 고운동 단독주택 2018.06 (0) | 2022.12.02 |
| 에비앙 빌리지 2018.05 (0) | 2022.12.01 |
| 문의예술인마을 ‘미술가의 집’ 2018.05 (0) | 2022.12.01 |
| 고고하우스 2018.05 (0) | 2022.12.01 |