2022. 12. 1. 14:51ㆍ회원작품 | Projects/House
GOGO House

“제가 그려본 도면인데 이렇게 집을 짓는게 가능할까요?”
고향으로 내려와 처음 맞이하는 특별한 건축주와의 대화는 이렇게 시작되었다. 30대 초반의 건축주는 몇몇 건축사사무소를 거친 후 였고 대뜸 스케치업으로 만든 도면을 제시하며 스킵플로어 형식이라는 단어를 구사하기도 했다. 미니멀리즘과 보조난방장치의 장단점을 나열할 수 있을만큼 건축주로서 준비가 되어 있다고 할 수 있었고 그 때문에 매우 지쳐 보이기도 했다. 우리는 우선 자신부터 알자고 했다. 왜 단독주택인지 처음부터 되짚어 보자고 했다. 그렇게 건축주와의 대화는 6개월이 소요됐다.
건축주를 닮은 정직하고 순수한 건물이 되었으면 했다.
몇날 며칠을 오랜 친구같이 삶에 대해 이야기하며 건축주가 어떻게 살았는지 또 어떻게 살 것인지를 생각하고 공감했다. 그 결과 초점을 입면디자인이나 구조형식에서 벗어나 삶 속에 건축이 배어들 수 있도록 설계했다.
“주택을 설계하는 것은 자신이 어떻게 살 것인지 결정하는 일련의 과정이다”
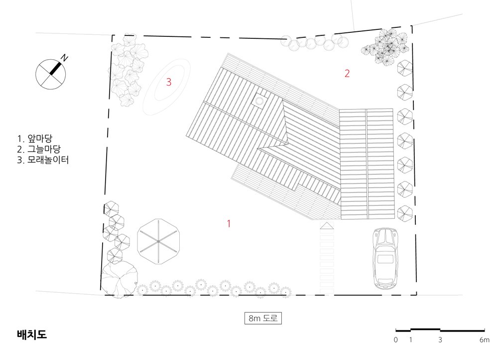
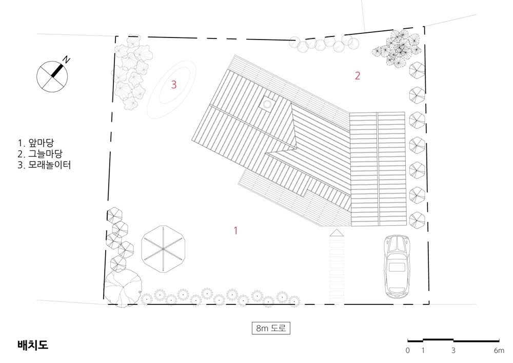
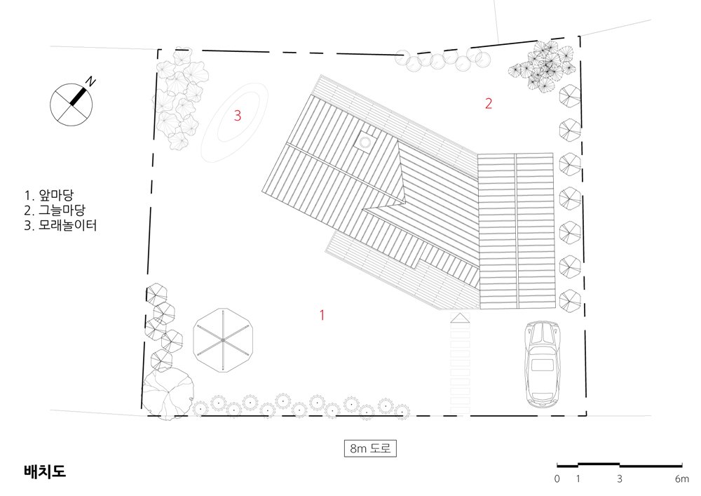
360제곱미터의 대지와 협소주택의 컨셉, 아기가 두명인 가족구성원에 맞게 스몰하우스로 계획했다. 도시 근교의 경사지 주택단지에 위치한 집은 군더더기 없이 담백하고 주변환경과 어우러지는 집이 됐으면 했다.
배치계획은 도로축과 향축을 고려하여 주 매스의 방향을 정남향으로 틀어 따듯한 햇살을 최대한 끌어들였다. 앞마당은 개방감을, 뒷마당은 건축물이 감싸는 그늘마당이 되도록 했다. 아늑하게 조성된 뒷마당은 그늘이 있는 필로티와 데크를 따라 이어져 아이들의 모래놀이터를 계획했다. 소박하고 소중한 추억이 생겨날 장소이다.
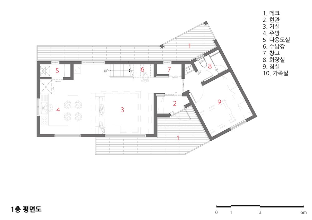
정남향으로 배치되어진 거실은 데크를 통하여 마당으로 나갈 수 있게 했다. 면적이 적은 평면구성을 극복하고자 데크를 설치하여 내부를 공간을 외부공간으로 확장한 것이다. 1,2층 오픈공간은 에너지 효율을 높이고자 거실 일부만을 오픈하여 개방감을 부여하되 냉난방 하는 체적을 줄이고자 했고 그에 따은 지붕선은 지형의 선과 나란히 하여 주변 환경과 동화될 수 있는 디자인으로 구성했다.
1층은 거실과 주방, 부부침실 2층은 가족실, 서재, 아이방을 구성했다. 공용공간과 개인공간의 영역성을 확보하고 기능상 공유가 가능한 공간은 쇼파, 식탁, 장식장의 배치를 통하여 가번이 가능하도록 계획 했다.
군더더기 없는 공간구성을 입면에서도 구연할 수 있었으면 좋겠다는 건축주의 의지를 반영하여 스타코와 고벽돌, 루나우드, 징크로 깨끗한 매스감을 해치지 않으려 입면을 구성했다.

"Is it possible to build a house with this drawing I have drawn?"
The conversation with a special client, whom I met for the first time after I went down to my hometown, started like this. The client in his early thirties already met some architectural offices, and he even suggested his sketch-up drawing using a word skip floor style. He was well-prepared to be an client enough to list the advantages and disadvantages of minimalism and auxiliary heating system, and because of it, he seemed very exhausting. We first needed to know about ourselves. I wanted to retrace the reason why the client wanted a single-family house. So the conversation with the client took six months.
I hoped that the building will be honest and pure like its owner.
We talked about our lives like old friends for a few days, and thought and sympathized with how the client lived and how to live. As a result, I focused on designing, not to include life into architecture, but to pervade architecture into life, getting out of the elevation design or structural from.
"Designing a house is a series of processes that determine how I will live”
The concept of a 360㎡ land and a narrow house, and a small house are designed for a family with two children. Our house, which is located in a sloping residential area near the city, will be a minimalist house without unnecessities which can be harmonized with the surroundings.
The layout plan changed the direction of main mass to fully face South and have warm sunlight as much as possible considering the axis of road and adaxial surfaces. The front yard is designed to give the feeling of openness, and the back yard to become a shady yard covered by the building. The cozy backyard was planned along the shady piloti and deck to make children's sand playground. It is a place where simple and precious memories will arise.
The living room, which was arranged in the full-south direction, was able to allow people to go out to the yard through the deck. In order to overcome the floor plan configuration with a small area, a deck was installed to expand the space from the inside to the outside space. The open spaces on the first and second floors were designed to reduce the volume of heating and cooling by opening a part of the living room to enhance energy efficiency, and the roof line was designed to be able to assimilate with the surrounding environment alongside the terrain line.
The first floor has a living room and a kitchen, and the second bedroom consists of a family room, a study, and an children’s room. It is planned to secure territoriality for public and private spaces, and the flexible spaces that can be shared functionally are designed through the layout of sofas, dining tables and cabinets.
Reflecting the will of the owner who wants to realize the neat space composition in the elevation plan as well, the elevation was planned to keep the clean mass, using stucco, vintage brick, luna wood, and zinc.













| 고고하우스 설계자 ┃ 황영환 KIRA _ 종합건축사사무소 도펠하우스 건축주 | 이강휘 감리자 | 황영환 _ 종합건축사사무소 도펠하우스 시공사 | 노종식 설계팀 | 김태섭, 황경호 대지위치 | 충청북도 충주시 금곡1길 41-25 주요용도 | 단독주택 대지면적 | 360.00㎡ 건축면적 | 71.67㎡ 연면적 | 96.78㎡ 건폐율 | 19.91% 용적률 | 26.88% 규모 | 지상 2층 구조 | 경량목구조 외부마감재 | 스타코플랙스, 고벽돌타일 내부마감재 | 강화온돌마루, 벽지 설계기간 | 2013. 05 ~ 2013. 12 공사기간 | 2013. 12 ~ 2014. 05 사진 | 변종석 구조분야 : 이태권 _ (주)신화엔지니어링 기계설비·전기·소방분야 : 홍기영 _ (주)정찬이앤지 |
GOGO House Architect | Hwang, Younghwan _ Doppelhaus Design Group Client | Lee, Ganghwi Supervisor | Hwang, Younghwan _ Doppelhaus Design Group Construction | Noh, Jongsik Project team | Kim, Taeseop / Hwang, Kyungho Location | 41-25, Geumgok 1-gil, Chungju-si, Chungcheongbuk-do, Korea Program | Detached house Site area | 360.00㎡ Building area | 71.67㎡ Gross floor area | 96.78㎡ Building to land ratio | 19.91% Floor area ratio | 26.88% Building scope | 2F Structure | Light tree structure Exterior finishing | Stucco, Brick tile Interior finishing | Ondol(korea floor heating system) floor, Wall paper Design period | May. 2013 ~ Dec. 2013 Construction period | Dec. 2013 ~ May. 2014 Photograph | Byun, Jongsuk Structural engineer | Lee, Taekwon _ Shinhwa engineering Mechanical·Electrical·Fire engineer | Hong, Giyeong _ Jungchaneng |
'회원작품 | Projects > House' 카테고리의 다른 글
| 에비앙 빌리지 2018.05 (0) | 2022.12.01 |
|---|---|
| 문의예술인마을 ‘미술가의 집’ 2018.05 (0) | 2022.12.01 |
| 상대동 협소주택, 더테라스 2018.04 (0) | 2022.12.01 |
| 화암동 주택 2018.04 (0) | 2022.12.01 |
| 관저 예미지, 명가의 풍경 2018.04 (0) | 2022.12.01 |