2022. 12. 1. 15:19ㆍ회원작품 | Projects/House
Evian Village

겨울이면 붉게 물들어 여행객들의 마음을 사로잡는 마을 위미리.
동백꽃의 낮선 붉은색이 선사하는 즐거움과 제주도 어디에서나 볼 수 있는 감귤농장이 어우러진 위미리에 본 대지가 위치하고 있다.
일주동로에 인접하며 바다가 그리 멀지 않고 남북으로 길쭉한 대지에 타운하우스 설계를 요청 받았다. 딱 그런 대지였다.
인근에 비슷한 규모의 타운이 조성되어 있었고, 남원읍에서 불편하지 않을 정도의 거리를 두고 있으며, 아름답고 조용하며 도로망까지 훌륭하게 갖추고 있는 곳, 여러 해 제주도를 다녀보면서도 개인적으로도 마음에 들어 제주로 이사하게 되면 꼭 살고 싶은 곳이었다.
평지에 앉아있는 대지의 모양과 건축주의 요구사항이 분명했으므로 크게 고민할 부분은 없어보였지만 오픈된 구조의 빌리지 안에서 각 세대의 프라이버시를 조금이라도 확보해주고 마당의 풍경을 한껏 품을 수 있었으면 좋겠다고 생각했다.
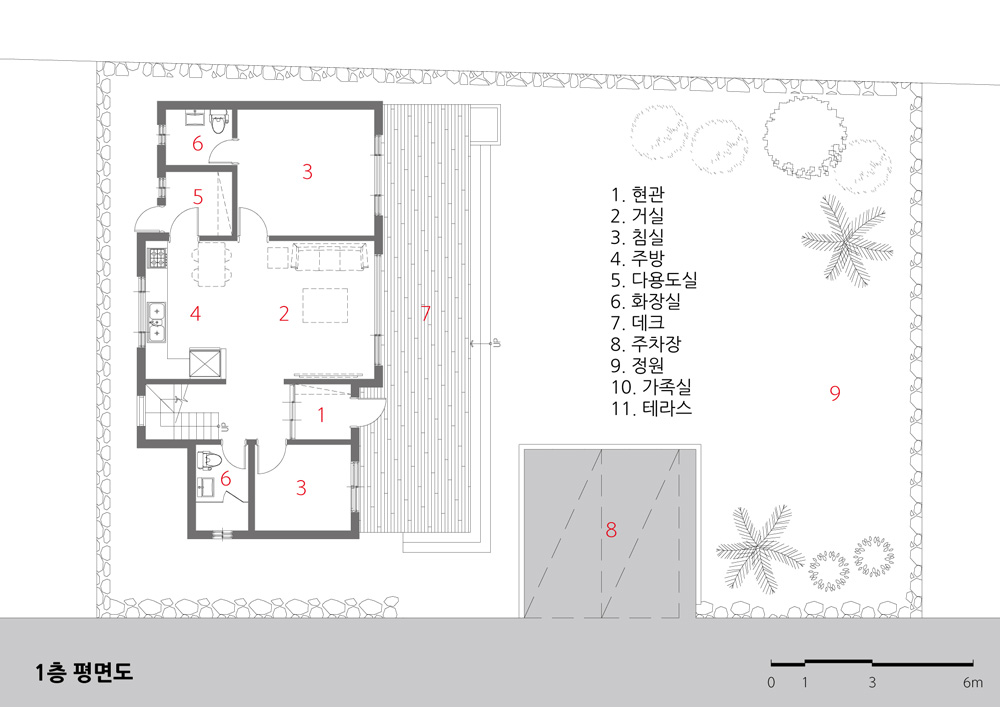
주 생활공간인 1층은 난간이 없는 널찍한 데크와 연결해 이국적인 조경이 있는 앞마당과 바로 연결시키고 2층에는 오픈구조의 작은 가족실을 두어 마당 전체를 바라볼 수 있는 2층 데크와 연결했다. 바로 뒷 동의 앞마당이 보이지 않도록 적당한 높이로 올린 파라펫 너머로 보이는 한라산과 멀리 보이는 바다의 풍경과 더불어 이따금씩 마당 그네에 앉아 잔잔한 음악속에서 제주 하늘의 햇살을 마주한다면 마음이 참 편안해지지 않을까 생각해본다.

Wimi-ri, a town which is colored with red and captures the hearts of tourists in the winter season.
This site is located in the village Wimi-ri, where the pleasure of unfamiliar red-tinged camellia blossoms is harmonized with citrus farms found anywhere in Jeju Island.
I was asked to design a town house on the land which is adjacent to Iljudong-ro, not far from the sea, and elongated from north to south. It was just such a land.
A similar sized town was built nearby, and the site is located at an inconvenient distance from Namwon-eup. It is beautiful, quiet, and well equipped with road network. Although I have travele around Jeju Island for several years, it is a very place in which I personally want to live if I move to Jeju.
The shape of the site on a flatland and the client’s requirements were so clear that it did not seem much to worry about, but I thought it could be better to secure some privacy for each generation and show the scenery of the yard in an open structure village.
The first floor, the main living space, is connected to a spacious deck with no railing to connect directly to a front yard with exotic landscape. On the second floor, a small family room with an open structure is connected to the second floor deck where you can see the entire yard. I think you would feel more comfortable if you face the sunshine of Jeju in the calm music while sitting on the swing of the yard, as well as the view of Mt. Halla and the sea far beyond the parapet raised at a proper height so that the front yard of the behind building can not be seen.











| 에비앙 빌리지 설계자 ┃ 윤석필 KIRA _ 건축사사무소 이레·EL 건축주 | 박지성 감리자 | 윤석필 _ 건축사사무소 이레·EL 시공사 | 박지성 설계팀 | 배은미, 최희진 대지위치 | 제주특별자치도 서귀포시 남원읍 남원체육관로 61(위미리21-2) 주요용도 | 타운하우스 대지면적 | 6,595.0㎡ 건축면적 | 1,083.60㎡(77.40㎡, 14동) 연면적 | 1,491.00㎡(106.50㎡, 14동) 건폐율 | 16.43% 용적률 | 22.60% 규모 | 지상 2층 구조 | 철근콘크리트조 외부마감재 | 스타코, 점토타일, 적삼목 내부마감재 | 지정벽지, 강화마루 설계기간 | 2016. 09 ~ 2016. 11 공사기간 | 2017. 05 ~ 2018. 02 사진 | 윤석필 기계설비분야 : 창신엔지니어링 전기분야 : (주)태일전력기술단 |
Evian Village Architect | Yoon, Seokpil _ Architects JIREH·EL Client | Park, Jisung Supervisor | Yoon, Seokpil _ Architects JIREH·EL Construction | Park, Jisung Project team | Bae, Eunmi / Choi, Heejin Location | 61, Namwoncheyukgwan-ro, Namwon-eup, Seogwipo-si, Jeju-do, Korea Program | Town House Site area | 6,595.0㎡ Building area | 1,083.60㎡ (77.40㎡, 14 houses) Gross floor area | 1,491.00㎡ (106.50㎡, 14 houses) Building to land ratio | 16.43% Floor area ratio | 22.60% Building scope | 2F Structure | RC Exterior finishing | Stucco, Clay tile, Red cedar Interior finishing | Wallpaper, Laminate floor Design period | Sep. 2016 ~ Nov. 2016 Construction period | May. 2017 ~ Feb. 2018 Photograph | Yoon, Seokpil Mechanical engineer | Changsin Engineering. Co Electrical engineer | Taeil Engineering. Co |
'회원작품 | Projects > House' 카테고리의 다른 글
| 고운동 단독주택 2018.06 (0) | 2022.12.02 |
|---|---|
| 양촌리 가온누리 패시브인증 주택단지 2018.05 (0) | 2022.12.01 |
| 문의예술인마을 ‘미술가의 집’ 2018.05 (0) | 2022.12.01 |
| 고고하우스 2018.05 (0) | 2022.12.01 |
| 상대동 협소주택, 더테라스 2018.04 (0) | 2022.12.01 |