2023. 10. 31. 10:10ㆍ회원작품 | Projects/House
JANG HOUSE

대지는 아직 개발의 바람이 닿지 않은 양평의 한적한 산지 지형의 능선이다. 5년 지기인 건축주는 크고 작은 프로젝트를 함께 해온 분으로, 자신의 여생을 평안히 오가며 보낼 수 있는 세컨드하우스 겸 소장품을 전시할 수 있는 갤러리를 의뢰했다. 여러 요구 조건을 기반으로, 대지를 매입하는 과정부터 설계, 감리, 완공까지 2년여의 여정을 함께 하며 모든 순간을 기록해 왔다. 건축은 과정의 예술이기에, 다양한 가치가 휘발되지 않도록 모든 순간들을 아카이빙하여 영롱한 결과를 발현시키기 위해 노력했다.
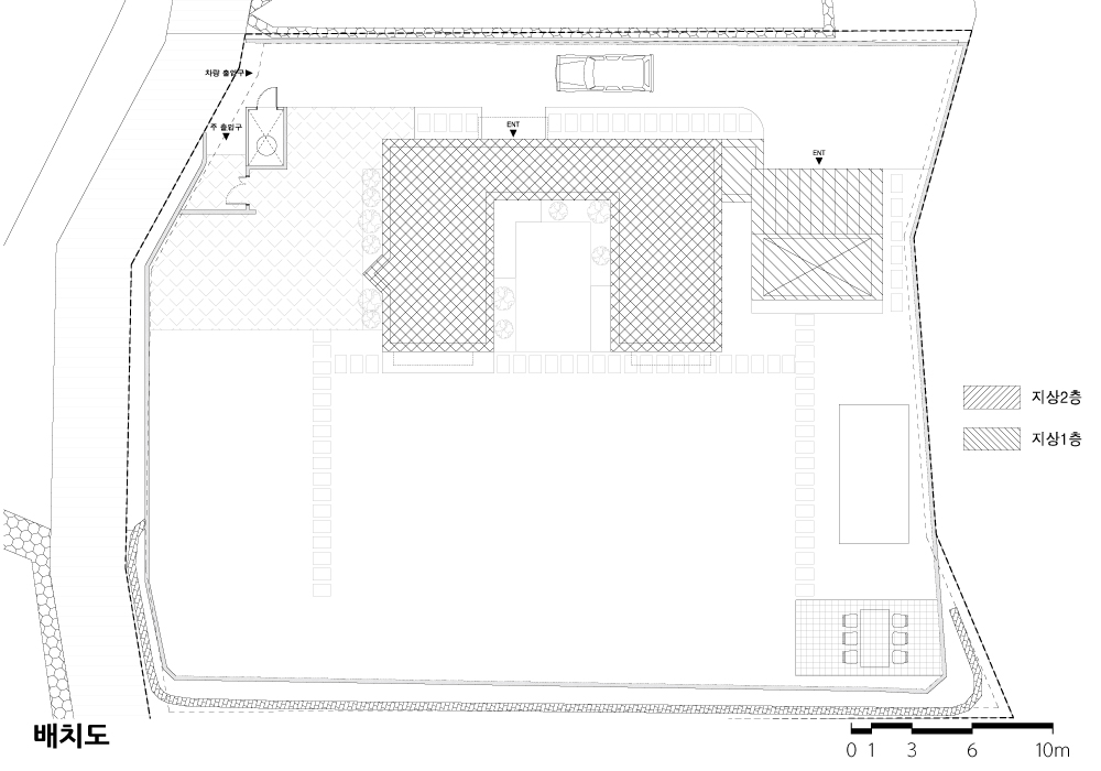
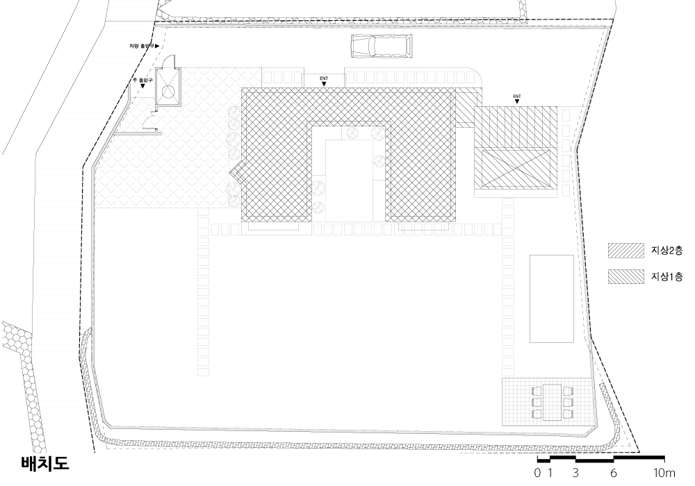
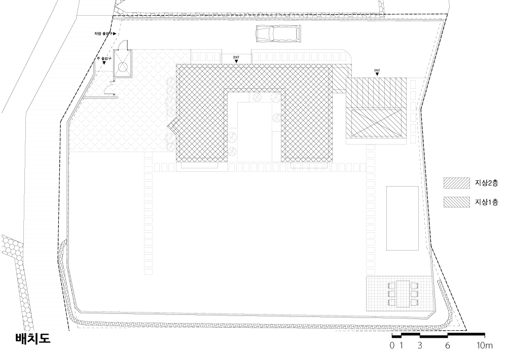
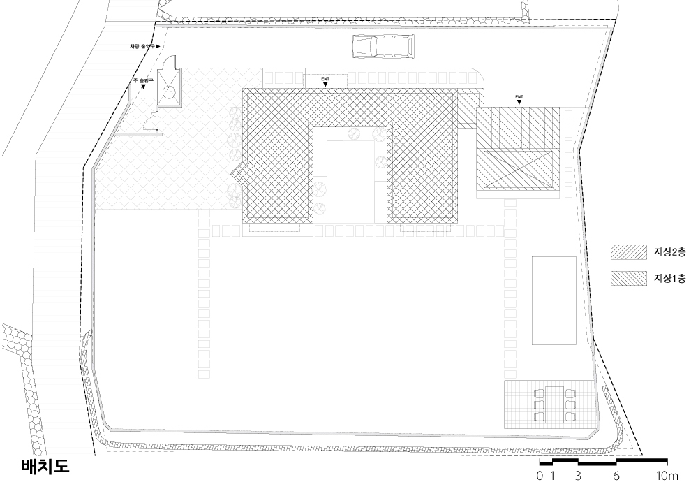
대지는 남향의 언덕이며, 1,322제곱미터(400평) 가량의 경사지를 옹벽화하고 성토해 대지의 기반을 조성했다. 마스터플랜 설계에서는 배치의 여러 요구 조건들을 고려해 대지를 편집하고 의미를 부여하는 과정이 매우 중요하다. 콘텍스트(context)를 만들어내고, 그에 맞는 삶의 요구 조건들을 투영해 물리적 형태들로 매만지기 시작했다. 주차 동선, 보행 동선의 시퀀스 구성, 우수의 원활한 처리를 위한 레벨링, 대지에 들어서는 순간부터 미시 공간까지 이르는 연속선상에 놓여있는 시·지각적인 풍경의 배열, 미래의 삶을 고려한 마당의 영역 분할 등 배치에 중요한 요소들을 설계의 척도로 삼았다.
넓은 대지에 독존하는 형태의 단일 매스를 구축하는 것보다, 대지에 녹아드는 형태를 만들기 위해 ‘ㄷ’자형 매스로 디자인하여 중정을 구성했다. 또한 별도의 창고나 실내주차장 매스를 본동으로부터 이격해 배치함으로써, 전체적으로 대지의 장축을 선형으로 점유하도록 계획했다. 전체 대지 안에 뒷산과 건물, 담장들로 둘러싸인 너른 마당을 구축하려 했다.
건축주는 단아하고 단단하며 양감이 있고 절제된 기하학적 언어를 쓰길 원했다. 따라서 직선, 수평, 수직선을 기반으로 전체 기하 언어를 정돈하며 구성했다. 외장재에서도 꾸밈없이 정갈한 분위기를 자아내기 위해, 단아한 화강암을 단일 재료로 디테일들을 계획했다. 자연의 품 안에서 도드라지지 않고 겸허하게 자리하기 위해 낮은 채도의 석재를 선택했다. 또 선형의 미를 고양시키기 위해 석재의 가로줄눈을 강조하려 했고, 그러기 위해 단일 판석의 상단부를 45도 커팅하여 음영이 더 드리우게 계획했다.
대지의 조건을 검토할 때 아늑하고 인적이 드문 곳을 선택하다 보니, 접근로의 협소함이 수반되어 공사 과정에서 가장 큰 어려움으로 다가왔다. 각종 장비 또는 차량들의 회전 반경을 확보하기 위해 이웃집 토지주들에게 읍소하고 소통하는 것이 어려웠지만, 현명하게 해결해나갔다.
상당 부분의 마당 조경을 진행하지 않은 이유는 건축주의 여생 동안 지인들과 함께 직접 크고 작은 나무들을 심고, 가꾸고, 농사도 지으며, 자연과 함께 살아가고자 하는 계획 때문이다. 건축사의 역할은 비어진 대지에 주변과 함께 긴 호흡을 할 수 있는, 적절한 크기와 재질의, ‘공간’이라는 여백의 캔버스를 마련하는 것이라 생각한다. 그 안에 그려질 그림은 바로 건축주의 삶이라고 생각한다. 건축주가 그 안에서 만족할 만한 그림을 그리며, 진정한 삶의 의미를 구가하기를 기도해 본다. 서로에게 녹아들 자연, 건축과 함께….



The site is a tranquil hillside in Yangpyeong, untouched by development, where the client, an architecture enthusiast, embarked on a journey to create a second home that would also serve as a gallery to showcase their collection, offering peace for their remaining years. Every moment of this two year journey, from land acquisition to design, supervision, and completion, was meticulously documented, recognizing that architecture is an art of process, and preserving these moments was essential to manifest a brilliant outcome.
The site, facing south, encompassed approximately 1,322 square meters (400 pyeong) of sloping terrain, which was terraced and filled to establish a solid foundation. In the masterplan design, editing and imbuing meaning into the site were crucial, considering various placement requirements. The design process began with creating context and projecting the requirements of life into physical forms. Elements such as parking routes, pedestrian sequences, leveling for smooth circulation, the arrangement of the visual and sensory landscape along a continuous line from the moment one enters the site to micro spaces, and division of yard areas, all played significant roles in shaping the design.
Rather than constructing a standalone mass on the vast site, a 'ㄷ'-shaped mass was designed to integrate with the site, forming a central courtyard. Additionally, the warehouse and indoor parking mass were strategically placed apart from the main building to occupy the site's long axis linearly. The objective was to create a spacious yard surrounded by the building, backyard, and fences within the entire site.
The client desired a minimalistic, sturdy, tactile, and restrained geometric language. Therefore, the overall geometric language was organized around straight lines, horizontals, and verticals. To maintain a clean atmosphere in the external finishings, a simple granite material was planned for all details. Low saturation stone was chosen to harmoniously coexist within the embrace of nature. To accentuate the stone's horizontal lines and create linear beauty, the upper part of a single stone slab was planned to be cut at a 45-degree angle to enhance shading.
Selecting a secluded and sparsely populated area led to the challenge of narrow access roads during construction. Securing the turning radius for various equipment and vehicles posed a significant difficulty, but it was smartly resolved through communication and cooperation with neighboring landowners.
Much of the yard landscaping was intentionally left undone because the client's life plan involved planting, nurturing, and farming various trees with friends over the years, as well as living in harmony with nature. The role of an architect, in this context, is to provide the canvas of 'space,' appropriately sized and with suitable materials, where the client and nature can create their artwork. The picture that will be painted within is the client's life, and I hope it's a satisfying and meaningful one. Nature, architecture, and the individuals will blend together in this canvas...






| 장하우스 설계자 | 이근식 _ (주)엘케이에스에이 건축사사무소 건축주 | 장재연 감리자 | 이근식 _ (주)엘케이에스에이 건축사사무소 시공사 | (주)파인씨앤디 종합건설 설계팀 | 조명선, 권승배 대지위치 | 경기도 양평군 서종면 서정로 67-44 주요용도 | 단독주택 대지면적 | 1,396.00㎡ 건축면적 | 161.79㎡ 연면적 | 280.75㎡ 건폐율 | 11.59% 용적률 | 17.53% 규모 | 2F 구조 | 철근콘크리트구조 외부마감재 | 석재 내부마감재 | 석고보드 위 도장 설계기간 | 2021. 09 – 2022. 04 공사기간 | 2022. 05 – 2023. 05 사진 | 구의진 구조분야 | 서전 구조엔지니어링(주) |
JANG HOUSE Architect | Lee, Keun Sik _ LEE KEUN SIK ARCHITECTS Client | Jang, Jaeyeon Supervisor | Lee, Keun Sik _ LEE KEUN SIK ARCHITECTS Construction | FINE C&D Project team | Jo, Myeongseon / Kwon, Seungbae Location | 67-44, Seojeong-ro, Seojong-myeon, Yangpyeong-gun, Gyeonggi-do, Korea Program | House Site area | 1,396.00㎡ Building area | 161.79㎡ Gross floor area | 280.75㎡ Building to land ratio | 11.59% Floor area ratio | 17.53% Building scope | 2F Structure | RC Exterior finishing | Stone Interior finishing | Paint finish above Gypsum board Design period | 2021. 09 – 2022. 04 Construction period | 2022. 05 – 2023. 05 Photograph | Gu, Ui Jin Structural engineer | SEOJEON |
'회원작품 | Projects > House' 카테고리의 다른 글
| 몽하우스 2023.10 (0) | 2023.10.31 |
|---|---|
| 연주가 2023.10 (0) | 2023.10.31 |
| 담빛95 2023.10 (0) | 2023.10.31 |
| 미술관을 닮은 집 2023.9 (0) | 2023.09.15 |
| 유연재 裕軟齋 2023.9 (0) | 2023.09.14 |
