2023. 10. 31. 11:14ㆍ회원작품 | Projects/House
YEON-JU GA

신도시 택지지구의 단독주택지, 지구단위계획지침 내용은 지역에 상관없이 대체로 유사하다. 대부분 필지들은 반듯한 형태에 면적은 약 231~265제곱미터(70~80평) 내외, 단지 내 도로 폭은 6미터 내외로 균질하며, 그런 이유로 작은 필지들이 이웃하여 유사한 집들이 연속되는 동네 풍경이 된다.
주차장 2면과 대지경계선 이격 거리, 일조권 사선이격 규정을 지킨 후 남은 땅은 작은 마당이 되고, 집은 그 마당을 면해 기역(ㄱ) 자나 일자형으로 배치된다. 지붕의 경사도, 주요 재료, 집의 색감까지 지침을 지켜야 하는 현실에서 법령이 정한 기준과 틀은 지키면서 주변 환경에 신선한 자극과 긍정적 환기가 되는 집을 목표로 했던 것이 설계의 출발점이었다.
건축주가 원한 집의 조건은 대략 다음과 같다. “성처럼 미음(ㅁ) 자로 둘러쳐진 집은 싫지만, 프라이버시가 최대한 고려된 집이면 좋겠다. 멋진 집이더라도 이웃들에게 불편함과 위압감을 주는 건 곤란하다. 마당이 있지만 늘 그늘져있는 마당, 길에서 집 실내가 훤히 들여다보이는 배치, 이웃들 시선 땜에 마당 사용이 불편하거나 외부 형태 또는 공간이 너무 흔하고 뻔한, 그런 집은 아니길 바란다….” 콕 집어 어떤 집이 되면 좋겠다는 구체적 내용은 아니었으나, 이런 집은 아니었으면 좋겠다는 분명한 방향성이 있었다. 그래서 건축주가 언급한 부정적 요소를 하나씩 뺄셈하며 설계를 진행했고, 그 과정에서 자연스럽게 공간적 틀이 만들어졌다.
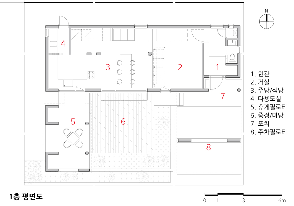
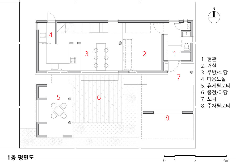
외부공간은 각 쓰임새에 맞게 몇 개로 분할되어 좀 더 명료하게 사용되길 기대했다. 집을 만들고 남은 땅은 마당이 되는 일차원적 어프로치는 배제하는 설계였고 주차필로티, 중정, 휴게필로티로 이어지는 하층부와 계단식 테라스, 옥상으로 연결되는 상층부에 각각 거주에 필요한 외부 공간들이 개별적 성격을 갖고 기능할 수 있도록 하는 데 주안점을 두었다.




New Town Residential Zones and District Level Planning Guidelines for detached houses tend to share a similar framework regardless of the region. Most plots are uniform in shape, with an area of approximately 231 to 265 square meters (70 to 80 pyeong), and the road width within the residential area is generally around 6 meters. As a result, small plots are often adjacent to each other, creating a neighborhood with similar-looking houses in a row.
After adhering to regulations regarding parking spaces, setback distances from property boundaries, and sunlight angles, the remaining land is transformed into small gardens, and the houses are arranged around these gardens in a "ㄱ" or straight line layout. The design's starting point was to aim for homes that comply with legal standards and guidelines, while also providing a refreshing stimulus and positive ventilation to the surrounding environment.
The homeowner had the following general conditions in mind: "I don't like houses that are completely enclosed like castles, but I prefer houses that prioritize privacy as much as possible. Even if it's a beautiful house, it's problematic if it makes neighbors uncomfortable or gives an imposing feeling. I want a garden, but not one that's always shaded, and I'd like to avoid layouts where the interior of the house is clearly visible from the street, making it inconvenient for neighbors to use the garden. I don't want a house that looks too common or ordinary..." Although there were no specific details about what the ideal house should be like, there was a clear direction of what it should not be. As a result, the design process involved removing negative elements one by one, naturally creating a spatial framework.
The outdoor spaces were divided according to their respective uses to promote more efficient utilization. The design rejected a one dimensional approach where the leftover land simply becomes a garden. The main focus was on ensuring that the lower level, which includes parking lots, courtyards, and relaxation areas, as well as the upper level, consisting of terraced terraces and rooftops connected by stairs, each had individual and functional outdoor spaces tailored to the needs of the residents.







| 연주가 설계자 | 최준석 _ 건축사사무소 나우 감리자 | 최준석(건축사사무소 나우) 시공사 | 건축주 직영 설계팀 | 이종준 대지위치 | 경기도 용인시 기흥구 영덕동 주요용도 | 단독주택 대지면적 | 241.00㎡ 건축면적 | 118.67㎡ 연면적 | 186.08㎡ 건폐율 | 49.24% 용적률 | 77.21% 규모 | 2F 구조 | 철근콘크리트구조 외부마감재 | 알미늄패널 마감, 외단열도장 마감(파렉스디피알) 내부마감재 | 친환경 도장, 강마루 설계기간 | 2022. 02 – 2022. 08 공사기간 | 2022. 10 – 2023. 05 사진 | 최진보 구조분야 | 델타구조 기계설비분야 | 정연엔지니어링 전기분야 | 정연엔지니어링 |
YEON-JU GA Architect | Choi, Jun Seok _ NAAU LAB ARCHITECTS Supervisor | Choi, Jun Seok _ NAAU LAB ARCHITECTS Construction | Owner direct control Project team | Lee, Jong Jun Location | Yeongdeok-dong, Giheung-gu, Yongin-si, Gyeonggi-do, Korea Program | Single house Site area | 241.00㎡ Building area | 118.67㎡ Gross floor area | 186.08㎡ Building to land ratio | 49.24% Floor area ratio | 77.21% Building scope | 2F Structure | RC Exterior finishing | Aluminium panel, External insulation system Interior finishing | Paint finish, Wooden floor Design period | 2022. 02 – 2022. 08 Construction period | 2022. 10 – 2023. 05 Photograph | Choi, Jin Bo Structural engineer | DELTA structure Mechanical engineer | JEONG-YEON engineering Electrical engineer | JEONG-YEON engineering |
'회원작품 | Projects > House' 카테고리의 다른 글
| 태민빌딩 2023.11 (0) | 2023.11.30 |
|---|---|
| 몽하우스 2023.10 (0) | 2023.10.31 |
| 장하우스 2023.10 (0) | 2023.10.31 |
| 담빛95 2023.10 (0) | 2023.10.31 |
| 미술관을 닮은 집 2023.9 (0) | 2023.09.15 |
