2023. 11. 30. 10:10ㆍ회원작품 | Projects/House
Taemin building

안행8길의 대로변 안쪽, 고즈넉하게 완산공원 도화봉의 풍경을 마주 보고 있는 대지는 다양한 채도의 회색으로 둘러싸여 있다. 건축주는 아이들이 어릴 때 함께하는 시간을 늘리기 위해 이 대지에 주택을 포함한 근생건축을 계획하기로 했다. 도화봉의 풍경을 최대한 차경으로 담으며, 주택과 근생의 시각적 개방과 분리를 조율하는 것이 가장 중요했다.
상리공생(相利共生) : 상호 작용을 통해 서로 이익을 주고받는 것
· 마을과 태민빌딩 _ 세월의 모습을 켜켜이 담고 있지만 정체되어 있는 안행8길. 튀지 않고 담백하게 주변과 조화를 이루면서 무게감 있는 건축물을 계획해 새로운 변화의 구심점을 만들고자 했다. 회색의 모노롱타일을 다양한 채도로 베이스 삼아 주변과 시각적인 밸런스를 살렸다. 날씨와 시간에 따라 다른 색으로 보이는 라임스톤과 모노롱타일 마감재를 외부에서 내부까지 연결했다.
· 대지와 태민빌딩 _ 넓은 대지에 사선 없이 반듯하고 쉽게 첫 건축물이 들어설 수도 있었지만, 앞으로 지어질 건축의 가능성에 더 많은 자리를 내어주고 법이 가장 많이 적용되는 부분에 건물을 배치했다. 4층 주택과 이용자의 프라이버시 보호를 위해 다중이용시설인 사우나 방향의 평․입면 디자인은 소음과 시선의 차단을 우선시했다. 전면에 넓은 면적의 창을 두고, 다양한 공간을 배치해 시각적 공간이 내부에서 자연으로 확장되도록 했다.
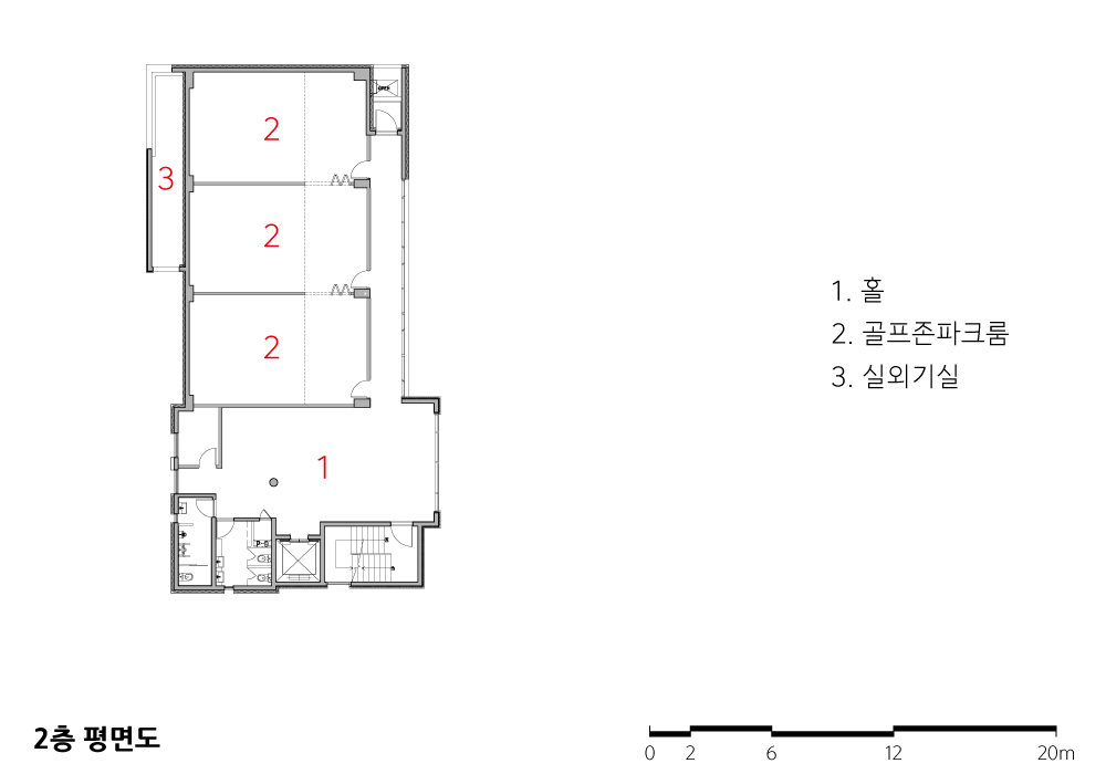
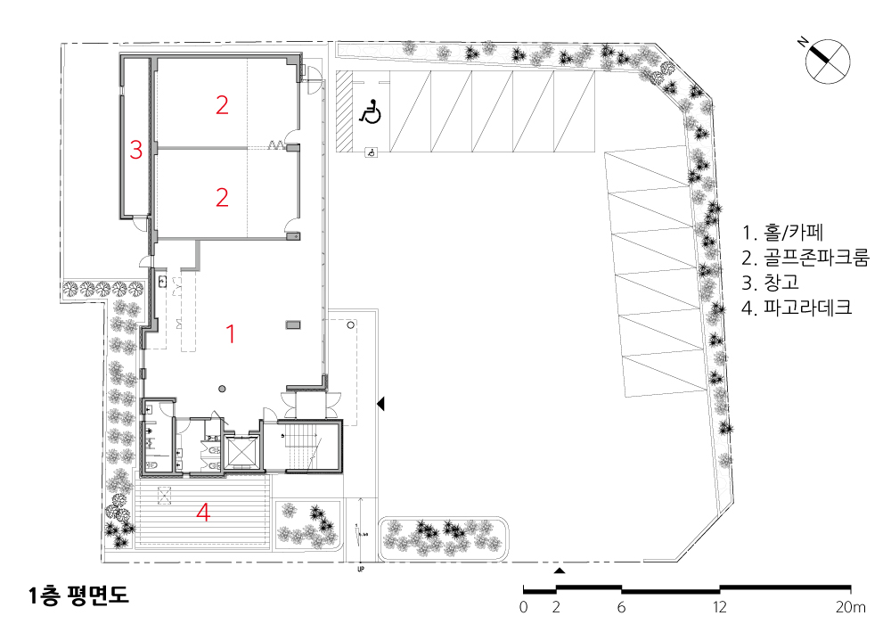
· 근생(운동시설)과 주택 _ 아이들은 어릴 때 아파트를 떠나 근생의 마당과 뒷마당, 주택의 베란다와 옥상마당을 넘나들며 다양한 쉼과 놀이를 향유할 수 있다. 용도별로 단정하게 자리 잡은 매스들은 분절과 일조사선과의 조화로 깎이고 다듬어져서 고유의 매스를 형성한다. 주택은 매스를 분절한 듯 보이는 베란다를 구심점으로 안으로 모이고, 근생은 층별로 존재하는 홀의 전창을 통해 밖으로의 시각적 연계를 극대화한다. 스크린룸을 나서자마자 전창 가득 채워진 초록과 개방감을 접할 수 있다. 수익 공간에 대한 욕심 없이 층마다 자연을 감상할 수 있는 넉넉한 테라스와 홀이 계획되었다. 기능적으로 수직․수평의 공간을 나눈 뒤 하나의 건물로 다시 엮었다. 물리적 동선으로 분리된 각기 다른 공간이 서로 공존하며, 건축주의 삶 속에서 상호작용을 하며 함께 자란다.




The site, facing the serene landscape of Dohwabong(Dohwa Peak) at Wansan Park, is located inside Anhaeng 8-gil and is surrounded by shades of gray. The client decided to plan the construction of a neighborhood living facility, including a house on this site, to increase the time spent with the children when they were young. The most crucial challenge was to incorporate the landscape of Dohwabong as borrowed scenery, a traditional East Asian architectural technique that brings natural landscapes into the building as if they are part of it while balancing the visual openness and separation of the residential and community facilities.
Mutual symbiosis:
Giving and receiving benefits through mutual interaction
- Village and Taemin Building _ Anhaeng 8-gil, which encapsulates the passage of time yet remains in a state of inertia. When designing the architecture, the goal was to create a substantial building that seamlessly harmonizes with its surroundings without being extravagant, thereby presenting a focal point for new changes. Therefore, a variety of shades of gray monolong tiles were used as the main background to maintain visual balance with the surroundings. Limestone and monolong tile finishes, which appear in different colors depending on the weather and time, were used to establish a connection from the exterior to the interior.
- Land and Taemin Building _ The first building could have been easily placed on the expansive site, as it was neither sloped nor challenging. However, to secure space for potential future constructions and in compliance with relevant building regulations, the placement of the initial building was carefully considered. To prioritize privacy, noise and sight isolation took precedence when designing the layout and facade of the multi-purpose sauna facility. It was designed to expand the visual space from the interior to nature by placing a large window in the front and arranging various areas.
- Neighborhood living facilities (sports facilities) and housing _ Children can leave their apartments at a young age and enjoy a variety of rest and play by moving between the yards and backyards of neighborhood living facilities and the verandas and rooftops of houses. Without excessive consideration of profit space, ample terraces and halls were designed for each volume and floor where residents can enjoy nature. Functionally, the area was divided into vertical and horizontal spaces and arranged neatly for each purpose. After being segmented, the masses were carved and trimmed with solar radiation lines. The house draws attention inwards to the front veranda, which seems to divide the two masses, as the central point, while the neighborhood living facilities point the eye outward through the main hall’s entire window. As soon as one leaves the dark screen room, the resident’s field of vision is filled with greenery and a sense of openness. Different spaces, separated by physical circulation, coexist and grow together in the life of the building owner.






| 태민빌딩 설계자 | 송수연 _ 공간백터 건축사사무소 건축주 | 주식회사태민개발 감리자 | 양정호 _ 정플러스건축사사무소 시공사 | 에이치세븐건설(주) 대지위치 | 전라북도 전주시 완산구 안행8길 주요용도 | 운동시설, 단독주택 대지면적 | 1,235.80㎡ 건축면적 | 308.25㎡ 연면적 | 1,037.35㎡ 건폐율 | 24.94% 용적률 | 83.94% 규모 | 4F 구조 | 철근콘크리트구조 외부마감재 | 라임스톤, 모노롱타일 내부마감재 | 라임스톤, 모노롱타일, 금속스크린루버 설계기간 | 2020. 07 – 2021. 08 공사기간 | 2020. 11 – 2021. 09 사진 | 윤준환 구조분야 | (주)제이케이안전진단연구원 기계설비·전기·소방분야 | (주)부윤엔지니어링 소방감리분야 | (주)대신기술단 |
Taemin building Architect | Song, Sooyeon _ Spacevector Studio Client | Taemin Development Supervisor | Yang, Jeongho _ Jeong plus architects Construction | H7-construction Location | Anhaeng-8gil, Wansan-gu, Jeonju-si, Jeollabuk-do, Korea Program | Sports facilities, Detached house Site area | 1,235.80㎡ Building area | 308.25㎡ Gross floor area | 1,037.35㎡ Building to land ratio | 24.94% Floor area ratio | 83.94% Building scope | 4F Structure | RC Exterior finishing | Limestone, monolongtile Interior finishing | Limestone, monolongtile, Metal screen louver Design period | 2020. 07 – 2021. 08 Construction period | 2020. 11 – 2021. 09 Photograph | Yoon, Joonhwan Structural engineer | J&K Structural engineering Mechanical·Electrical·Fire engineer | Buyun engineering Fire supervisor | Daesin engineering & consultants |
'회원작품 | Projects > House' 카테고리의 다른 글
| 고운동주택:열린덮개_No3 2023.11 (0) | 2023.11.30 |
|---|---|
| 감솔채 2023.11 (0) | 2023.11.30 |
| 몽하우스 2023.10 (0) | 2023.10.31 |
| 연주가 2023.10 (0) | 2023.10.31 |
| 장하우스 2023.10 (0) | 2023.10.31 |
