2023. 11. 30. 10:25ㆍ회원작품 | Projects/House
Three pines

감솔채는 ‘놀집’이다. 암벽등반, 서핑, 트레킹 등 산과 바다를 좋아하는 건축주는 일이 없을 때 잘 놀고 잘 쉬며 지금까지 해온 무언가를 버리고 앞으로 해야 할 무언가를 채울 수 있는 준비를 하는 공간인 ‘놀집’을 의뢰했다.  
  
현장 방문 첫날, 이 땅의 낮은 언덕과 소나무에 손을 대지 못하겠다는 생각에 건축주에게 동의를 구하여 결과적으로 이 언덕은 집의 뒷마당이 되었다. 낮은 언덕을 몇 걸음 오르면 그곳에 일부 평평한 땅이 있어 마당이라 부르기 어색할 수 있으나, 이곳은 주택 내부, 실용적인 앞마당 등과 연결되는 생활에서 잠시 거리를 두고 사색할 수 있는 공간인 동시에 기존 집터의 형상이 그대로 보존된 대지에서 가장 높은 곳에 위치한 외부공간으로서, 집이 들어서기 전 이 땅의 기억을 남겨둔 공간이기도 하다. 
집을 짓는다는 것은 어떠한 방법으로든 원래의 땅을 훼손하는 것이며, 이는 우리를 둘러싼 환경을 지배하고 통제한 후에야 안정된 삶을 지속할 수 있는 인간의 본능을 충족시키는 작업을 수행하는 것이다. 자연과 교감하고 그 속에서 삶을 그리고 있으나, 한편으로는 자연을 통제하고 지배해야 하는 상황에서 두 가지 욕망의 적절한 접점을 찾아내는 것은 자연 속에 집을 지을 때 공간을 구성하는 중요한 좌표가 된다.  
이 좌표를 따라 움직이다 보니 대지의 가장 높은 지점을 비우게 되어 땅의 절반이 북쪽 마당이 되었다. 상대적으로 앞마당은 건축주의 요구사항을 충족하는 다양한 공간으로 활용 가능하고 유지관리에 용이한 적절한 규모가 되었다. 
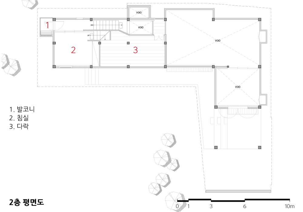
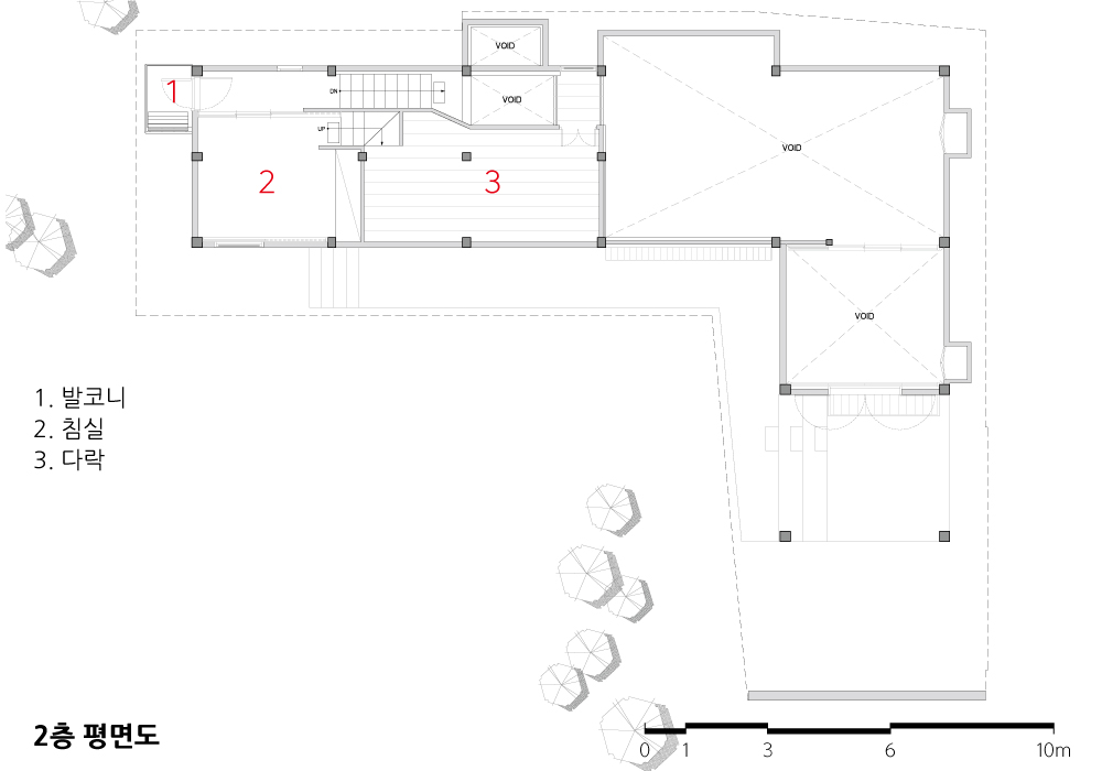
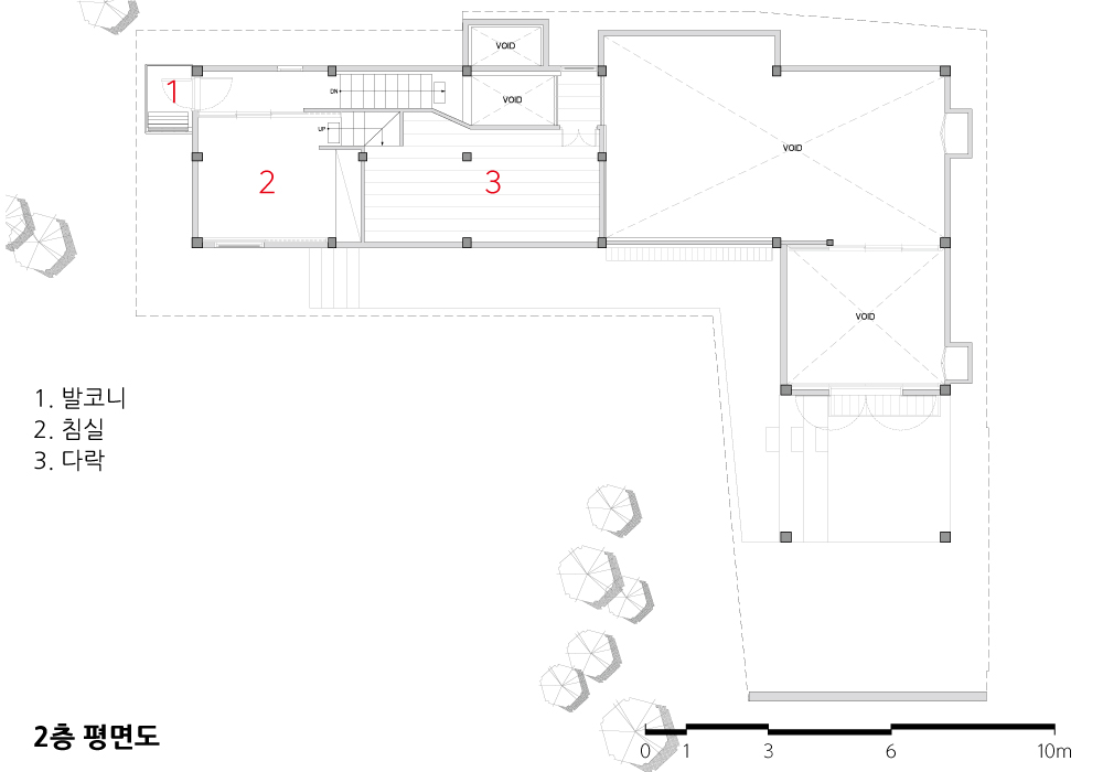
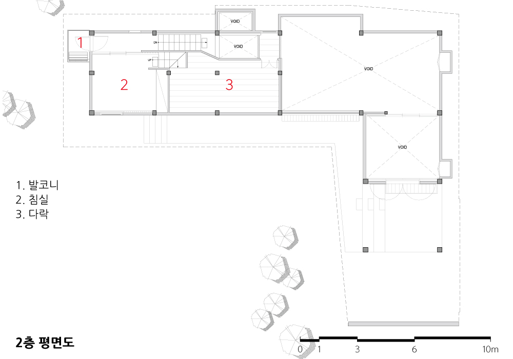
두 마당을 나누기도 하고 잇기도 하며 안과 밖을 연결해 주는 매개 장소로서의 옥외데크는 ‘놀집’으로서 이 집의 정점인 구들방과 맞닿아 있으며, 노천을 품고 있다. 남북으로 길게 나열된 공간들은 남쪽 끝의 가장 사적인 공간에서 출발해 앞마당과 맞닿아 있는 LDK를 지나 구들방과 옥외 데크로 이어진다. 그 과정에서 기존 지형에 순응해 점차적으로 외부공간과 적극적으로 관계를 맺으며 노는 공간으로 자연스럽게 흐르도록 의도했다.  
모든 공간의 위치와 레벨 등은 시공과정의 현장지도를 포함해 설계 과정에서 여러 차례의 현장조사를 거친 성실한 스터디의 결과물이다. 
예산에 맞추어 경량목구조로 진행되던 설계과정에 한옥 한 채 분량의 중목들을 활용하게 되어 주요 구조부를 중목으로 변경하고 내부로 노출했으며, 존재하는 부재들을 활용 가능한 범위 내에서 구조계산 이상의 적절한 비례의 사이즈를 적용, 구조를 도드라지게 의도하여 공간에 무게감을 주었다. 
도시에서 벗어난 곳에서의 삶을 꿈꾸는 여러 건축주를 만나 주택설계를 진행하며 매번 땅에 건축물이 어떻게 존재해야 하는지 고민해 왔다. ‘놀집’ 프로젝트는 살림집이라면 적용하지 못했거나 망설였을 여러 시도를 적극적으로 시도할 수 있었고, ‘주거’로 분류되지만 살림집과는 여러 가지 부분이 다를 수밖에 없는 별장 등의 ‘놀집’이 어떤 유형일 수 있는지 제시할 수 있는 작업이라 생각한다.



Gamsolchae is a ‘noljip’ (a house to play), designed for the client in love with mountains and oceans, who goes rock climbing, tracking, and surfing in his free time. It is a space for the client to have fun and relax well, letting go and getting ready for what is to come.  
In the back madang there is a gentle hill with a pine tree. On the very first visit I determined to conserve it as it is and consulted with the client to keep it as a back madang. Although it may not seem like a madang in the traditional sense as there is only a small flat area a few steps uphill, it functions as madang in that it offers a space for contemplation, taking a brief time off away from indoors and the functional front madang. This outdoor space is at the highest point of the plot. I deliberately left it as a space for memories, preserving the original shape of the house site so that it embodies the memories of the site before construction.  
  
Building a house is taking part in the destruction of the original site in order to satisfy the fundamental human desire to dominate and control the environment for the sake of self preservation. The configuration of space for building with and in nature thus calls for the reconciliation of two conflicting inclinations: the desire to live life in close rapport with nature, while still in need of controlling it.  
Following this principle, I designed the house to be balanced between the spaces to live with and in nature. The northern back madang at the highest point is left empty for living with nature, taking up the half of the plot, while the front madang serves as a functional, adaptable, and versatile space of a manageable size that can be used for the various needs of the client. 
  
The outdoor deck serves as a medium to bridge indoors and outdoors; it also divides the back madang and front madang, as well as connects them. Directly touching the gudeulbang which encapsulates the essence of this house as a noljip, the outdoor deck also features an open air bath. At the southern end is the most private space for the owner of the house located; next to it is the LDK, facing the front madang; then there is the gudeulbang with the outdoor deck. Moving from the southern end to the northern parts of the house, the interior space is designed to evolve from the most private to a more playful public space, which blends more in the surrounding natural environment and actively engages with exterior space. 
It was only possible through the comprehensive research prior to and throughout the design process and the careful field guidance during the construction process to determine the precise location and level for each space. 
For a budgetary reason, the initial plan was to use a light-weight wood frame structure for the entire house. It later became possible to partly incorporate a heavy timber frame structure into the initial design, as the client managed to bring enough solid wood to build a hanok. To add depth to the space, a thoughtful use of oversized materials helps accentuate the heavy-timber wood frame that is deliberately exposed to face indoors and serves as a central piece of the house. 
Working with clients dreaming of a simple rural life, an escape from the urban life, the quest of reconciliation with nature always requires me to reflect the tangled relationship between construction and environment, carefully visualizing the most fitting house form for each building site. The project of Gamsolchae, a ‘noljip’ that is not primarily meant for dwelling, offers plenty of room for experiment and imagination to help reconfigure the various house forms for leisure that must be conceptualized and designed differently from the regular dwelling house. 






| 감솔채 설계자 | 원계연 _ 건축사사무소 스튜디오더원 건축주 | 정은경 시공사 | 건축주 직영 설계팀 | 이제선 대지위치 | 강원특별자치도 고성군 토성면 성대로 215-10 주요용도 | 단독주택 대지면적 | 659.00㎡ 건축면적 | 129.25㎡ 연면적 | 135.82㎡ 건폐율 | 19.61% 용적률 | 20.61% 규모 | 2F 구조 | 일반목구조 외부마감재 | 적삼목, 시멘트사이딩, 콘크리트노출, 아스팔트싱글 내부마감재 | 친환경페인트, 타일, 한지창호, 스프러스루버 위 스테인 설계기간 | 2016. 12 - 2018. 08 공사기간 | 2018. 09 - 2019. 05 사진 | 박완순 구조분야 | 나라구조 기계설비분야 | (주)신화엔지니어링 전기분야 | (주)신화엔지니어링 | Three pines Architect | Won, Gye-yeon _ studiothewon Construction | Direct construction Project team | Design intention realization | Location | 215-10, Seongdae-ro, Toseong-myeon, Goseong-gun, Gangwon-do, Korea Program | Lee, Je-seon Site area | 659.00㎡ Building area | 129.25㎡ Gross floor area | 135.82㎡ Building to land ratio | 19.61% Floor area ratio | 20.61% Building scope | 2F Structure | Timber frame Exterior finishing | Red cedar, Cement siding, Exposed concrete, Asphalt shingles Interior finishing | Paint, Tile, Hanji window, Stained spruss louver Design period | Dec. 2016 - Aug. 2018 Construction period | Sep. 2018 - May 2019 Photograph | Park, Wan-sun Structural engineer | Nara Structure Engineerng Mechanical engineer | Shinhwa Engineering Electrical engineer | Shinhwa Engineering | 
'회원작품 | Projects > House' 카테고리의 다른 글
| 지산돌집 2023.12 (0) | 2023.12.30 | 
|---|---|
| 고운동주택:열린덮개_No3 2023.11 (0) | 2023.11.30 | 
| 태민빌딩 2023.11 (0) | 2023.11.30 | 
| 몽하우스 2023.10 (0) | 2023.10.31 | 
| 연주가 2023.10 (0) | 2023.10.31 | 
